Property
Account |
| Property ID: | 32905 | Abbreviated Legal Description: | KALA POINT #4 LOT 116B |
| Parcel # / Geo ID: | 965000112 | Agent Code: | |
| Type: | Real | | |
| Tax Area: | 0111 - 1-50F1E1H2L1 | Land Use Code | 11 |
| Open Space: | N | DFL | N |
| Historic Property: | N | Remodel Property: | N |
| Multi-Family Redevelopment: | N | | |
| Township: | 30N | Section: | 27 |
| Range: | 1W |
Location |
| Address: | 361 FOXFIELD DR PORT TOWNSEND, WA 98368 | Mapsco: | 046/048 |
| Neighborhood: | KALA PT - DIV 1, 2, PART OF 3 & 4 | Map ID: | |
| Neighborhood CD: | 5390 |
Owner |
| Name: | ELIZABETH S DAVIS | Owner ID: | 98623 |
| Mailing Address: | 361 FOXFIELD DR PORT TOWNSEND, WA 98368-9599 | % Ownership: | 100.0000000000% |
| | | Exemptions: | |
Pay Tax Due
Select the appropriate checkbox next to the year to be paid. Multiple years may be selected.
*Convenience Fee not included
Taxes and Assessment Details
Property Tax Information as of
03/09/2026
Click on "Statement Details" to expand or collapse a tax statement.
* Please enter a valid date ** Please enter a valid date *
Statement Details |
| 2026 | 22171 | STATE - STATE LEVY (SCHOOL) | $974.16 | $974.14 | $0.00 | $0.00 | $0.00 | $1948.30 |
| 2026 | 22171 | COUNTY - COUNTY LEVIES (CE, DD, VET, MH) | $389.47 | $389.46 | $0.00 | $0.00 | $0.00 | $778.93 |
| 2026 | 22171 | CONSERVE - CONSERVATION FUTURES | $11.68 | $11.68 | $0.00 | $0.00 | $0.00 | $23.36 |
| 2026 | 22171 | COROADS - COUNTY ROADS (ROADS, DIV TO CE) | $314.19 | $314.18 | $0.00 | $0.00 | $0.00 | $628.37 |
| 2026 | 22171 | PORTPT - PORT DISTRICT | $157.30 | $157.29 | $0.00 | $0.00 | $0.00 | $314.59 |
| 2026 | 22171 | PUD1 - PUD #1 | $25.34 | $25.33 | $0.00 | $0.00 | $0.00 | $50.67 |
| 2026 | 22171 | LIB1 - LIBRARY DIST #1 | $121.56 | $121.55 | $0.00 | $0.00 | $0.00 | $243.11 |
| 2026 | 22171 | HD2 - HOSP DIST #2 | $22.72 | $22.71 | $0.00 | $0.00 | $0.00 | $45.43 |
| 2026 | 22171 | SD50 - SCHOOL DIST #50 | $771.75 | $771.73 | $0.00 | $0.00 | $0.00 | $1543.48 |
| 2026 | 22171 | FD1 - FIRE DISTRICT #1 | $515.74 | $515.74 | $0.00 | $0.00 | $0.00 | $1031.48 |
| 2026 | 22171 | EMS1 - FIRE DIST #1 EMS | $198.30 | $198.29 | $0.00 | $0.00 | $0.00 | $396.59 |
| 2026 | 22171 | FP - DNR Forest Fire Protection Assmt | $8.50 | $8.50 | $0.00 | $0.00 | $0.00 | $17.00 |
| 2026 | 22171 | FPLCA - DNR Landowner Contingency Assmt | $3.00 | $3.00 | $0.00 | $0.00 | $0.00 | $6.00 |
| 2026 | 22171 | JCCD - JC Conservation District | $2.55 | $2.55 | $0.00 | $0.00 | $0.00 | $5.10 |
| 2026 | 22171 | NWA - Noxious Weed Assessment | $2.98 | $2.97 | $0.00 | $0.00 | $0.00 | $5.95 |
| 2026 | 22171 | OSS - On Site Septic | $23.10 | $23.10 | $0.00 | $0.00 | $0.00 | $46.20 |
| 2026 | 22171 | WAT - Clean Water District | $13.00 | $13.00 | $0.00 | $0.00 | $0.00 | $26.00 |
| 2026 | 22171 | FP ADMIN - FP ADMIN | $0.50 | $0.00 | $0.00 | $0.00 | $0.00 | $0.50 |
| 2026 | 22171 | TOTAL: | $3555.84 | $3555.22 | $0.00 | $0.00 | $0.00 | $7111.06 |
|
| 2026 | 22171 | $3555.84 | $3555.22 | $0.00 | $0.00 | $0.00 | $7111.06 |
Statement Details |
| 2025 | 22233 | STATE - STATE LEVY (SCHOOL) | $1016.07 | $1016.07 | $0.00 | $0.00 | $2032.14 | $0.00 |
| 2025 | 22233 | COUNTY - COUNTY LEVIES (CE, DD, VET, MH) | $399.57 | $399.56 | $0.00 | $0.00 | $799.13 | $0.00 |
| 2025 | 22233 | CONSERVE - CONSERVATION FUTURES | $11.98 | $11.98 | $0.00 | $0.00 | $23.96 | $0.00 |
| 2025 | 22233 | COROADS - COUNTY ROADS (ROADS, DIV TO CE) | $320.12 | $320.11 | $0.00 | $0.00 | $640.23 | $0.00 |
| 2025 | 22233 | PORTPT - PORT DISTRICT | $163.05 | $163.04 | $0.00 | $0.00 | $326.09 | $0.00 |
| 2025 | 22233 | PUD1 - PUD #1 | $26.15 | $26.14 | $0.00 | $0.00 | $52.29 | $0.00 |
| 2025 | 22233 | LIB1 - LIBRARY DIST #1 | $123.85 | $123.85 | $0.00 | $0.00 | $247.70 | $0.00 |
| 2025 | 22233 | HD2 - HOSP DIST #2 | $23.31 | $23.31 | $0.00 | $0.00 | $46.62 | $0.00 |
| 2025 | 22233 | SD50 - SCHOOL DIST #50 | $742.58 | $742.57 | $0.00 | $0.00 | $1485.15 | $0.00 |
| 2025 | 22233 | FD1 - FIRE DISTRICT #1 | $527.27 | $527.27 | $0.00 | $0.00 | $1054.54 | $0.00 |
| 2025 | 22233 | EMS1 - FIRE DIST #1 EMS | $202.80 | $202.80 | $0.00 | $0.00 | $405.60 | $0.00 |
| 2025 | 22233 | FP - DNR Forest Fire Protection Assmt | $8.50 | $8.50 | $0.00 | $0.00 | $17.00 | $0.00 |
| 2025 | 22233 | FPLCA - DNR Landowner Contingency Assmt | $3.00 | $3.00 | $0.00 | $0.00 | $6.00 | $0.00 |
| 2025 | 22233 | JCCD - JC Conservation District | $2.55 | $2.55 | $0.00 | $0.00 | $5.10 | $0.00 |
| 2025 | 22233 | NWA - Noxious Weed Assessment | $2.15 | $2.15 | $0.00 | $0.00 | $4.30 | $0.00 |
| 2025 | 22233 | OSS - On Site Septic | $21.50 | $21.50 | $0.00 | $0.00 | $43.00 | $0.00 |
| 2025 | 22233 | WAT - Clean Water District | $13.00 | $13.00 | $0.00 | $0.00 | $26.00 | $0.00 |
| 2025 | 22233 | FP ADMIN - FP ADMIN | $0.50 | $0.00 | $0.00 | $0.00 | $0.50 | $0.00 |
| 2025 | 22233 | TOTAL: | $3607.95 | $3607.40 | $0.00 | $0.00 | $7215.35 | $0.00 |
|
| 2025 | 22233 | $3607.95 | $3607.40 | $0.00 | $0.00 | $7215.35 | $0.00 |
Statement Details |
| 2024 | 22278 | STATE - STATE LEVY (SCHOOL) | $941.65 | $941.64 | $0.00 | $0.00 | $1883.29 | $0.00 |
| 2024 | 22278 | COUNTY - COUNTY LEVIES (CE, DD, VET, MH) | $402.96 | $402.92 | $0.00 | $0.00 | $805.88 | $0.00 |
| 2024 | 22278 | CONSERVE - CONSERVATION FUTURES | $12.09 | $12.08 | $0.00 | $0.00 | $24.17 | $0.00 |
| 2024 | 22278 | COROADS - COUNTY ROADS (ROADS, DIV TO CE) | $324.24 | $324.22 | $0.00 | $0.00 | $648.46 | $0.00 |
| 2024 | 22278 | PORTPT - PORT DISTRICT | $166.44 | $166.43 | $0.00 | $0.00 | $332.87 | $0.00 |
| 2024 | 22278 | PUD1 - PUD #1 | $26.47 | $26.46 | $0.00 | $0.00 | $52.93 | $0.00 |
| 2024 | 22278 | LIB1 - LIBRARY DIST #1 | $125.45 | $125.44 | $0.00 | $0.00 | $250.89 | $0.00 |
| 2024 | 22278 | HD2 - HOSP DIST #2 | $23.51 | $23.51 | $0.00 | $0.00 | $47.02 | $0.00 |
| 2024 | 22278 | SD50 - SCHOOL DIST #50 | $761.85 | $761.83 | $0.00 | $0.00 | $1523.68 | $0.00 |
| 2024 | 22278 | FD1 - FIRE DISTRICT #1 | $532.78 | $532.78 | $0.00 | $0.00 | $1065.56 | $0.00 |
| 2024 | 22278 | EMS1 - FIRE DIST #1 EMS | $203.51 | $203.50 | $0.00 | $0.00 | $407.01 | $0.00 |
| 2024 | 22278 | FP - DNR Forest Fire Protection Assmt | $8.50 | $8.50 | $0.00 | $0.00 | $17.00 | $0.00 |
| 2024 | 22278 | FPLCA - DNR Landowner Contingency Assmt | $3.00 | $3.00 | $0.00 | $0.00 | $6.00 | $0.00 |
| 2024 | 22278 | JCCD - JC Conservation District | $2.55 | $2.55 | $0.00 | $0.00 | $5.10 | $0.00 |
| 2024 | 22278 | NWA - Noxious Weed Assessment | $2.15 | $2.15 | $0.00 | $0.00 | $4.30 | $0.00 |
| 2024 | 22278 | OSS - On Site Septic | $21.00 | $21.00 | $0.00 | $0.00 | $42.00 | $0.00 |
| 2024 | 22278 | WAT - Clean Water District | $12.50 | $12.50 | $0.00 | $0.00 | $25.00 | $0.00 |
| 2024 | 22278 | FP ADMIN - FP ADMIN | $0.50 | $0.00 | $0.00 | $0.00 | $0.50 | $0.00 |
| 2024 | 22278 | TOTAL: | $3571.15 | $3570.51 | $0.00 | $0.00 | $7141.66 | $0.00 |
|
| 2024 | 22278 | $3571.15 | $3570.51 | $0.00 | $0.00 | $7141.66 | $0.00 |
Statement Details |
| 2023 | 22315 | STATE - STATE LEVY (SCHOOL) | $896.67 | $896.66 | $0.00 | $0.00 | $1793.33 | $0.00 |
| 2023 | 22315 | COUNTY - COUNTY LEVIES (CE, DD, VET, MH) | $391.28 | $391.27 | $0.00 | $0.00 | $782.55 | $0.00 |
| 2023 | 22315 | CONSERVE - CONSERVATION FUTURES | $11.74 | $11.73 | $0.00 | $0.00 | $23.47 | $0.00 |
| 2023 | 22315 | COROADS - COUNTY ROADS (ROADS, DIV TO CE) | $316.58 | $316.56 | $0.00 | $0.00 | $633.14 | $0.00 |
| 2023 | 22315 | PORTPT - PORT DISTRICT | $164.84 | $164.82 | $0.00 | $0.00 | $329.66 | $0.00 |
| 2023 | 22315 | PUD1 - PUD #1 | $25.94 | $25.93 | $0.00 | $0.00 | $51.87 | $0.00 |
| 2023 | 22315 | LIB1 - LIBRARY DIST #1 | $122.48 | $122.48 | $0.00 | $0.00 | $244.96 | $0.00 |
| 2023 | 22315 | HD2 - HOSP DIST #2 | $22.84 | $22.83 | $0.00 | $0.00 | $45.67 | $0.00 |
| 2023 | 22315 | SD50 - SCHOOL DIST #50 | $711.52 | $711.52 | $0.00 | $0.00 | $1423.04 | $0.00 |
| 2023 | 22315 | FD1 - FIRE DISTRICT #1 | $322.34 | $322.33 | $0.00 | $0.00 | $644.67 | $0.00 |
| 2023 | 22315 | EMS1 - FIRE DIST #1 EMS | $137.12 | $137.11 | $0.00 | $0.00 | $274.23 | $0.00 |
| 2023 | 22315 | FP - DNR Forest Fire Protection Assmt | $8.50 | $8.50 | $0.00 | $0.00 | $17.00 | $0.00 |
| 2023 | 22315 | FPLCA - DNR Landowner Contingency Assmt | $3.00 | $3.00 | $0.00 | $0.00 | $6.00 | $0.00 |
| 2023 | 22315 | JCCD - JC Conservation District | $2.55 | $2.55 | $0.00 | $0.00 | $5.10 | $0.00 |
| 2023 | 22315 | NWA - Noxious Weed Assessment | $2.15 | $2.15 | $0.00 | $0.00 | $4.30 | $0.00 |
| 2023 | 22315 | OSS - On Site Septic | $20.50 | $20.50 | $0.00 | $0.00 | $41.00 | $0.00 |
| 2023 | 22315 | WAT - Clean Water District | $12.00 | $12.00 | $0.00 | $0.00 | $24.00 | $0.00 |
| 2023 | 22315 | FP ADMIN - FP ADMIN | $0.50 | $0.00 | $0.00 | $0.00 | $0.50 | $0.00 |
| 2023 | 22315 | TOTAL: | $3172.55 | $3171.94 | $0.00 | $0.00 | $6344.49 | $0.00 |
|
| 2023 | 22315 | $3172.55 | $3171.94 | $0.00 | $0.00 | $6344.49 | $0.00 |
Values
| (+) Improvement Homesite Value: | + | $0 | |
| (+) Improvement Non-Homesite Value: | + | $725,874 | |
| (+) Land Homesite Value: | + | $0 | |
| (+) Land Non-Homesite Value: | + | $121,550 | |
| (+) Curr Use (HS): | + | $0 | $0 |
| (+) Curr Use (NHS): | + | $0 | $0 |
| | | -------------------------- | |
| (=) Market Value: | = | $847,424 | |
| (–) Productivity Loss: | – | $0 | |
| | | -------------------------- | |
| (=) Subtotal: | = | $847,424 | |
| (+) Senior Appraised Value: | + | $0 | |
| (+) Non-Senior Appraised Value: | + | $847,424 | |
| | | -------------------------- | |
| (=) Total Appraised Value: | = | $847,424 | |
| (–) Senior Exemption Loss: | – | $0 | |
| (–) Exemption Loss: | – | $0 | |
| | | -------------------------- | |
| (=) Taxable Value: | = | $847,424 | |
Taxing Jurisdiction
| Owner: | ELIZABETH S DAVIS | | |
| % Ownership: | 100.0000000000% | | |
| Total Value: | $847,424 | | |
| Tax Area: | 0111 - 1-50F1E1H2L1 |
| CE | COUNTY CURRENT EXPENSE | 0.9034619479 | $847,424 | $847,424 | $765.62 | | |
| CNTYDD | DEVELOPMENTAL DISABILITIES | 0.0052121823 | $847,424 | $847,424 | $4.42 | | |
| CNTYVET | VETERANS RELIEF | 0.0052777810 | $847,424 | $847,424 | $4.47 | | |
| MENTAL | MENTAL HEALTH | 0.0052121823 | $847,424 | $847,424 | $4.42 | | |
| ROADS | COUNTY ROADS | 0.7415066410 | $847,424 | $847,424 | $628.37 | | |
| ROADSCU | COUNTY ROADS TO CUR EXP | 0.0000000000 | $847,424 | $847,424 | $0.00 | | |
| HOSP2CASH | HOSP DIST #2 GENERAL | 0.0536075306 | $847,424 | $847,424 | $45.43 | | |
| SCH50BOND | SCHOOL DIST #50 BOND 2016 | 0.5377451389 | $847,424 | $847,424 | $455.70 | | |
| SCH50CP | SCHOOL DIST #50 CAP PROJ | 0.4573475088 | $847,424 | $847,424 | $387.57 | | |
| SCH50MO | SCHOOL DIST #50 EP & O | 0.8262822886 | $847,424 | $847,424 | $700.21 | | |
| CONSERVE | CONSERVATION FUTURES | 0.0275621078 | $847,424 | $847,424 | $23.36 | | |
| EMS1 | FIRE DIST #1 EMS | 0.4679948282 | $847,424 | $847,424 | $396.59 | | |
| FD1 | FIRE DIST #1 GENERAL | 1.2171942929 | $847,424 | $847,424 | $1,031.48 | | |
| LIB1 | LIBRARY DIST #1 GENERAL | 0.2868827388 | $847,424 | $847,424 | $243.11 | | |
| PORTPT | PORT OF PT GENERAL | 0.1134941229 | $847,424 | $847,424 | $96.18 | | |
| PORTPTIDD | PORT OF PT IDD 2019 | 0.2577346692 | $847,424 | $847,424 | $218.41 | | |
| PUD1 | PUD #1 GENERAL | 0.0597888892 | $847,424 | $847,424 | $50.67 | | |
| STATE | STATE SCHOOL PART 1 | 1.4940692947 | $847,424 | $847,424 | $1,266.11 | | |
| STATE2 | STATE SCHOOL PART 2 | 0.8050170049 | $847,424 | $847,424 | $682.19 | | |
| | Total Tax Rate: | 8.2653911500 | | | | | |
| | | | | Taxes w/Current Exemptions: | $7,004.31 | | |
| | | | | Taxes w/o Exemptions: | $7,004.31 | | |
Improvement / Building
| Improvement #1: | Residential Bldg | State Code: | 11 | 2422.0 sqft | Value: | $725,874 |
| Bathrooms (#): | 2 (FULL) | Bedrooms (#): | 3 | | Exterior Wall: | SI/ST | Fireplace: | SIN 1-GOOD | | Floor Construction: | FRAME | Foundation: | CONPR | | Heating/Cooling: | HPUMP | Roof Cover: | COMP |
|
| | Type | Description | Class CD | Sub Class CD | Year Built | Area |
| | MA | Main Area | 5- | 1S | 2007 | 2422.0 |
| | PATIO | House Patio | 5 | 1S | 2007 | 200.0 |
| | HCPOR | House Concrete Porch | 5 | 1S | 2007 | 230.0 |
| | HDECK | House Deck | 5 | 1S | 2007 | 214.0 |
| | GATT | House Attached Garage | 5 | 1S | 2007 | 706.0 |
| | CONCD | Concrete Drive | 5 | 1S | 2007 | 2400.0 |
Sketch
Property Image
Land
| 1 | 5390-1175L | | 0.0000 | 0.00 | 0.00 | 0.00 | 1.00 | $121,550 | $0 |
Roll Value History
| 2026 | N/A | N/A | N/A | N/A | N/A |
| 2025 | $725,874 | $121,550 | $0 | $847,424 | $847,424 |
| 2024 | $725,874 | $121,550 | $0 | $847,424 | $847,424 |
| 2023 | $703,760 | $110,250 | $0 | $814,010 | $814,010 |
| 2022 | $671,771 | $90,000 | $0 | $761,771 | $761,771 |
Deed and Sales History
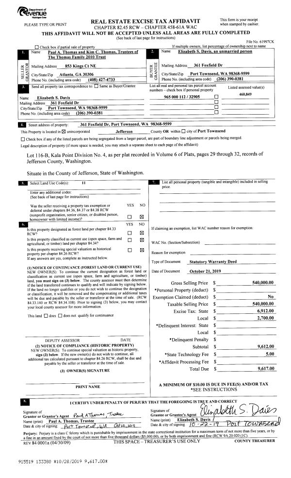
| 1 | 10/21/2019 | SWD | Statutory Warranty Deed | THOMAS FAMILY TRUST | ELIZABETH S DAVIS | | | $540,000.00 | 133380 | |
| 2 | 08/11/2016 | SWD | Statutory Warranty Deed | RHONDA K SOLHEIM | THOMAS FAMILY TRUST | | | $480,000.00 | 126164 | |
| 3 | 03/06/2007 | SWD | Statutory Warranty Deed | MILLENNIUM ONE HOMES INC | SOLHEIM, RHONDA KAYE | 0 | 0 | $543,000.00 | 108761 | 0 |
| 4 | 09/06/2005 | SWD | Statutory Warranty Deed | CRANSTON CONSTRUCTION CO, | MILLENNIUM ONE HOMES, INC. | 0 | 0 | $81,000.00 | 104708 | 0 |
| 5 | 12/04/2003 | SWD | Statutory Warranty Deed | BLITZER, DIANE CLAIRE | CRANSTON CONSTRUCTION COMPANY | 0 | 0 | $39,000.00 | 98965 | 0 |
Payout Agreement
| No payout information available.. |