Property
Account |
| Property ID: | 32944 | Abbreviated Legal Description: | KALA POINT #5 LOT 265 |
| Parcel # / Geo ID: | 965000151 | Agent Code: | |
| Type: | Real | | |
| Tax Area: | 0111 - 1-50F1E1H2L1 | Land Use Code | 11 |
| Open Space: | N | DFL | N |
| Historic Property: | N | Remodel Property: | N |
| Multi-Family Redevelopment: | N | | |
| Township: | 30N | Section: | 27 |
| Range: | 1W |
Location |
| Address: | 400 BAYCLIFF DR PORT TOWNSEND, WA 98368 | Mapsco: | 047/022 |
| Neighborhood: | KALA PT - DIV 3(PART) & DIV 5 - 10, THE HEIGHTS | Map ID: | |
| Neighborhood CD: | 5391 |
Owner |
| Name: | KELLY S & LINDA CLARK | Owner ID: | 106006 |
| Mailing Address: | 4033 E TONTO ST PHOENIX, AZ 85044-3970 | % Ownership: | 100.0000000000% |
| | | Exemptions: | |
Pay Tax Due
There is currently No Amount Due on this property.
Taxes and Assessment Details
Property Tax Information as of
03/12/2026
Click on "Statement Details" to expand or collapse a tax statement.
* Please enter a valid date ** Please enter a valid date *
Statement Details |
| | TOTAL: | $0.00 | $0.00 | $0.00 | $0.00 | $0.00 | $0.00 |
|
| | $0.00 | $0.00 | $0.00 | $0.00 | $0.00 | $0.00 |
Values
| (+) Improvement Homesite Value: | + | $0 | |
| (+) Improvement Non-Homesite Value: | + | $351,365 | |
| (+) Land Homesite Value: | + | $0 | |
| (+) Land Non-Homesite Value: | + | $112,200 | |
| (+) Curr Use (HS): | + | $0 | $0 |
| (+) Curr Use (NHS): | + | $0 | $0 |
| | | -------------------------- | |
| (=) Market Value: | = | $463,565 | |
| (–) Productivity Loss: | – | $0 | |
| | | -------------------------- | |
| (=) Subtotal: | = | $463,565 | |
| (+) Senior Appraised Value: | + | $0 | |
| (+) Non-Senior Appraised Value: | + | $463,565 | |
| | | -------------------------- | |
| (=) Total Appraised Value: | = | $463,565 | |
| (–) Senior Exemption Loss: | – | $0 | |
| (–) Exemption Loss: | – | $0 | |
| | | -------------------------- | |
| (=) Taxable Value: | = | $463,565 | |
Taxing Jurisdiction
| Owner: | KELLY S & LINDA CLARK | | |
| % Ownership: | 100.0000000000% | | |
| Total Value: | $463,565 | | |
| Tax Area: | 0111 - 1-50F1E1H2L1 |
| CE | COUNTY CURRENT EXPENSE | 0.9034619479 | $463,565 | $463,565 | $418.81 | | |
| CNTYDD | DEVELOPMENTAL DISABILITIES | 0.0052121823 | $463,565 | $463,565 | $2.42 | | |
| CNTYVET | VETERANS RELIEF | 0.0052777810 | $463,565 | $463,565 | $2.45 | | |
| MENTAL | MENTAL HEALTH | 0.0052121823 | $463,565 | $463,565 | $2.42 | | |
| ROADS | COUNTY ROADS | 0.7415066410 | $463,565 | $463,565 | $343.74 | | |
| ROADSCU | COUNTY ROADS TO CUR EXP | 0.0000000000 | $463,565 | $463,565 | $0.00 | | |
| HOSP2CASH | HOSP DIST #2 GENERAL | 0.0536075306 | $463,565 | $463,565 | $24.85 | | |
| SCH50BOND | SCHOOL DIST #50 BOND 2016 | 0.5377451389 | $463,565 | $463,565 | $249.28 | | |
| SCH50CP | SCHOOL DIST #50 CAP PROJ | 0.4573475088 | $463,565 | $463,565 | $212.01 | | |
| SCH50MO | SCHOOL DIST #50 EP & O | 0.8262822886 | $463,565 | $463,565 | $383.04 | | |
| CONSERVE | CONSERVATION FUTURES | 0.0275621078 | $463,565 | $463,565 | $12.78 | | |
| EMS1 | FIRE DIST #1 EMS | 0.4679948282 | $463,565 | $463,565 | $216.95 | | |
| FD1 | FIRE DIST #1 GENERAL | 1.2171942929 | $463,565 | $463,565 | $564.25 | | |
| LIB1 | LIBRARY DIST #1 GENERAL | 0.2868827388 | $463,565 | $463,565 | $132.99 | | |
| PORTPT | PORT OF PT GENERAL | 0.1134941229 | $463,565 | $463,565 | $52.61 | | |
| PORTPTIDD | PORT OF PT IDD 2019 | 0.2577346692 | $463,565 | $463,565 | $119.48 | | |
| PUD1 | PUD #1 GENERAL | 0.0597888892 | $463,565 | $463,565 | $27.72 | | |
| STATE | STATE SCHOOL PART 1 | 1.4940692947 | $463,565 | $463,565 | $692.60 | | |
| STATE2 | STATE SCHOOL PART 2 | 0.8050170049 | $463,565 | $463,565 | $373.18 | | |
| | Total Tax Rate: | 8.2653911500 | | | | | |
| | | | | Taxes w/Current Exemptions: | $3,831.58 | | |
| | | | | Taxes w/o Exemptions: | $3,831.58 | | |
Improvement / Building
| Improvement #1: | Residential Bldg | State Code: | 11 | 1024.0 sqft | Value: | $351,365 |
| Bathrooms (#): | 2 (FULL) | Bedrooms (#): | 3 | | Exterior Wall: | PL/T1 | Fireplace: | DBL 2-GOOD | | Floor Construction: | FRAME | Foundation: | CONPR | | Heating/Cooling: | ELBB | Roof Cover: | COMP |
|
| | Type | Description | Class CD | Sub Class CD | Year Built | Area |
| | MA | Main Area | 4+ | 1S | 1984 | 1024.0 |
| | PATIO | House Patio | 4 | 1S | 1984 | 84.0 |
| | HWPOR | House Wood Porch | 4 | 1S | 1984 | 28.0 |
| | HDECK | House Deck | 4 | 1S | 1984 | 208.0 |
| | GATT | House Attached Garage | 3 | 1S | 1984 | 400.0 |
| | BSMTF | House basement finished | 4 | 1S | 1984 | 1040.0 |
| | CONCD | Concrete Drive | 4 | 1S | 1984 | 990.0 |
Sketch
Property Image
Land
| 1 | 5391-1165L | Area of Fair/Filtered PT Bay and/or Cascades Views | 0.0000 | 0.00 | 0.00 | 0.00 | 1.00 | $112,200 | $0 |
Roll Value History
| 2026 | N/A | N/A | N/A | N/A | N/A |
| 2025 | $351,365 | $112,200 | $0 | $463,565 | $463,565 |
| 2024 | $351,365 | $112,200 | $0 | $463,565 | $463,565 |
| 2023 | $305,828 | $101,063 | $0 | $406,891 | $406,891 |
| 2022 | $291,926 | $91,250 | $0 | $383,176 | $383,176 |
Deed and Sales History
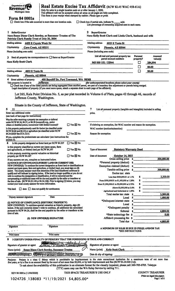
| 1 | 10/14/2021 | SWD | Statutory Warranty Deed | PATRICIA CLARK TRSTEE | KELLY S & LINDA CLARK | | | $300,000.00 | 138083 | |
| 2 | 07/20/2004 | QCD | Quit Claim Deed | CLARK, GORDON ARTHUR/ESTA | CLARK, PATRICIA | 0 | 0 | $0.00 | 100847 | 0 |
| 3 | 07/20/2004 | QCD | Quit Claim Deed | CLARK, PATRICIA J | CLARK, PATRICIA/TRUSTEE | 0 | 0 | $0.00 | 100848 | 0 |
Payout Agreement
| No payout information available.. |