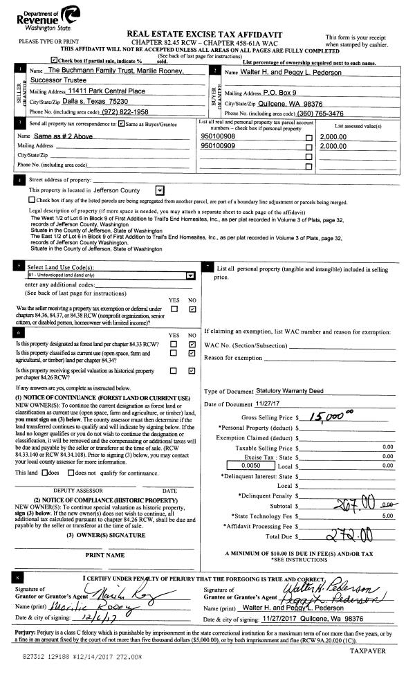
Property
Account |
| Property ID: | 32955 | Abbreviated Legal Description: | KALA POINT #5 LOT 279 |
| Parcel # / Geo ID: | 965000162 | Agent Code: | |
| Type: | Real | | |
| Tax Area: | 0111 - 1-50F1E1H2L1 | Land Use Code | 11 |
| Open Space: | N | DFL | N |
| Historic Property: | N | Remodel Property: | N |
| Multi-Family Redevelopment: | N | | |
| Township: | 30N | Section: | 27 |
| Range: | 1W |
Location |
| Address: | 23 FAIRBREEZE DR PORT TOWNSEND, WA 98368 | Mapsco: | 047/034 |
| Neighborhood: | KALA PT - DIV 3(PART) & DIV 5 - 10, THE HEIGHTS | Map ID: | |
| Neighborhood CD: | 5391 |
Owner |
| Name: | ERIC L & CLAIRE F FARRINGER | Owner ID: | 98184 |
| Mailing Address: | 83 SHORECREST COURT PORT TOWNSEND, WA 98368 | % Ownership: | 100.0000000000% |
| | | Exemptions: | |
Pay Tax Due
Select the appropriate checkbox next to the year to be paid. Multiple years may be selected.
*Convenience Fee not included
Taxes and Assessment Details
Property Tax Information as of
03/10/2026
Click on "Statement Details" to expand or collapse a tax statement.
* Please enter a valid date ** Please enter a valid date *
Statement Details |
| 2026 | 22221 | STATE - STATE LEVY (SCHOOL) | $707.36 | $707.36 | $0.00 | $0.00 | $0.00 | $1414.72 |
| 2026 | 22221 | COUNTY - COUNTY LEVIES (CE, DD, VET, MH) | $282.82 | $282.79 | $0.00 | $0.00 | $0.00 | $565.61 |
| 2026 | 22221 | CONSERVE - CONSERVATION FUTURES | $8.48 | $8.48 | $0.00 | $0.00 | $0.00 | $16.96 |
| 2026 | 22221 | COROADS - COUNTY ROADS (ROADS, DIV TO CE) | $228.14 | $228.14 | $0.00 | $0.00 | $0.00 | $456.28 |
| 2026 | 22221 | PORTPT - PORT DISTRICT | $114.22 | $114.21 | $0.00 | $0.00 | $0.00 | $228.43 |
| 2026 | 22221 | PUD1 - PUD #1 | $18.40 | $18.39 | $0.00 | $0.00 | $0.00 | $36.79 |
| 2026 | 22221 | LIB1 - LIBRARY DIST #1 | $88.27 | $88.26 | $0.00 | $0.00 | $0.00 | $176.53 |
| 2026 | 22221 | HD2 - HOSP DIST #2 | $16.50 | $16.49 | $0.00 | $0.00 | $0.00 | $32.99 |
| 2026 | 22221 | SD50 - SCHOOL DIST #50 | $560.38 | $560.38 | $0.00 | $0.00 | $0.00 | $1120.76 |
| 2026 | 22221 | FD1 - FIRE DISTRICT #1 | $374.50 | $374.49 | $0.00 | $0.00 | $0.00 | $748.99 |
| 2026 | 22221 | EMS1 - FIRE DIST #1 EMS | $143.99 | $143.99 | $0.00 | $0.00 | $0.00 | $287.98 |
| 2026 | 22221 | JCCD - JC Conservation District | $2.55 | $2.55 | $0.00 | $0.00 | $0.00 | $5.10 |
| 2026 | 22221 | NWA - Noxious Weed Assessment | $2.98 | $2.97 | $0.00 | $0.00 | $0.00 | $5.95 |
| 2026 | 22221 | OSS - On Site Septic | $23.10 | $23.10 | $0.00 | $0.00 | $0.00 | $46.20 |
| 2026 | 22221 | WAT - Clean Water District | $13.00 | $13.00 | $0.00 | $0.00 | $0.00 | $26.00 |
| 2026 | 22221 | TOTAL: | $2584.69 | $2584.60 | $0.00 | $0.00 | $0.00 | $5169.29 |
|
| 2026 | 22221 | $2584.69 | $2584.60 | $0.00 | $0.00 | $0.00 | $5169.29 |
Statement Details |
| 2025 | 22283 | STATE - STATE LEVY (SCHOOL) | $737.80 | $737.80 | $0.00 | $0.00 | $1475.60 | $0.00 |
| 2025 | 22283 | COUNTY - COUNTY LEVIES (CE, DD, VET, MH) | $290.13 | $290.13 | $0.00 | $0.00 | $580.26 | $0.00 |
| 2025 | 22283 | CONSERVE - CONSERVATION FUTURES | $8.70 | $8.70 | $0.00 | $0.00 | $17.40 | $0.00 |
| 2025 | 22283 | COROADS - COUNTY ROADS (ROADS, DIV TO CE) | $232.45 | $232.44 | $0.00 | $0.00 | $464.89 | $0.00 |
| 2025 | 22283 | PORTPT - PORT DISTRICT | $118.40 | $118.38 | $0.00 | $0.00 | $236.78 | $0.00 |
| 2025 | 22283 | PUD1 - PUD #1 | $18.99 | $18.98 | $0.00 | $0.00 | $37.97 | $0.00 |
| 2025 | 22283 | LIB1 - LIBRARY DIST #1 | $89.93 | $89.93 | $0.00 | $0.00 | $179.86 | $0.00 |
| 2025 | 22283 | HD2 - HOSP DIST #2 | $16.93 | $16.92 | $0.00 | $0.00 | $33.85 | $0.00 |
| 2025 | 22283 | SD50 - SCHOOL DIST #50 | $539.22 | $539.20 | $0.00 | $0.00 | $1078.42 | $0.00 |
| 2025 | 22283 | FD1 - FIRE DISTRICT #1 | $382.87 | $382.86 | $0.00 | $0.00 | $765.73 | $0.00 |
| 2025 | 22283 | EMS1 - FIRE DIST #1 EMS | $147.26 | $147.26 | $0.00 | $0.00 | $294.52 | $0.00 |
| 2025 | 22283 | JCCD - JC Conservation District | $2.55 | $2.55 | $0.00 | $0.00 | $5.10 | $0.00 |
| 2025 | 22283 | NWA - Noxious Weed Assessment | $2.15 | $2.15 | $0.00 | $0.00 | $4.30 | $0.00 |
| 2025 | 22283 | OSS - On Site Septic | $21.50 | $21.50 | $0.00 | $0.00 | $43.00 | $0.00 |
| 2025 | 22283 | WAT - Clean Water District | $13.00 | $13.00 | $0.00 | $0.00 | $26.00 | $0.00 |
| 2025 | 22283 | TOTAL: | $2621.88 | $2621.80 | $0.00 | $0.00 | $5243.68 | $0.00 |
|
| 2025 | 22283 | $2621.88 | $2621.80 | $0.00 | $0.00 | $5243.68 | $0.00 |
Statement Details |
| 2024 | 22328 | STATE - STATE LEVY (SCHOOL) | $674.28 | $674.27 | $0.00 | $0.00 | $1348.55 | $0.00 |
| 2024 | 22328 | COUNTY - COUNTY LEVIES (CE, DD, VET, MH) | $288.53 | $288.53 | $0.00 | $0.00 | $577.06 | $0.00 |
| 2024 | 22328 | CONSERVE - CONSERVATION FUTURES | $8.65 | $8.65 | $0.00 | $0.00 | $17.30 | $0.00 |
| 2024 | 22328 | COROADS - COUNTY ROADS (ROADS, DIV TO CE) | $232.17 | $232.17 | $0.00 | $0.00 | $464.34 | $0.00 |
| 2024 | 22328 | PORTPT - PORT DISTRICT | $119.18 | $119.17 | $0.00 | $0.00 | $238.35 | $0.00 |
| 2024 | 22328 | PUD1 - PUD #1 | $18.95 | $18.95 | $0.00 | $0.00 | $37.90 | $0.00 |
| 2024 | 22328 | LIB1 - LIBRARY DIST #1 | $89.83 | $89.82 | $0.00 | $0.00 | $179.65 | $0.00 |
| 2024 | 22328 | HD2 - HOSP DIST #2 | $16.84 | $16.83 | $0.00 | $0.00 | $33.67 | $0.00 |
| 2024 | 22328 | SD50 - SCHOOL DIST #50 | $545.52 | $545.52 | $0.00 | $0.00 | $1091.04 | $0.00 |
| 2024 | 22328 | FD1 - FIRE DISTRICT #1 | $381.51 | $381.50 | $0.00 | $0.00 | $763.01 | $0.00 |
| 2024 | 22328 | EMS1 - FIRE DIST #1 EMS | $145.72 | $145.72 | $0.00 | $0.00 | $291.44 | $0.00 |
| 2024 | 22328 | JCCD - JC Conservation District | $2.55 | $2.55 | $0.00 | $0.00 | $5.10 | $0.00 |
| 2024 | 22328 | NWA - Noxious Weed Assessment | $2.15 | $2.15 | $0.00 | $0.00 | $4.30 | $0.00 |
| 2024 | 22328 | OSS - On Site Septic | $21.00 | $21.00 | $0.00 | $0.00 | $42.00 | $0.00 |
| 2024 | 22328 | WAT - Clean Water District | $12.50 | $12.50 | $0.00 | $0.00 | $25.00 | $0.00 |
| 2024 | 22328 | TOTAL: | $2559.38 | $2559.33 | $0.00 | $0.00 | $5118.71 | $0.00 |
|
| 2024 | 22328 | $2559.38 | $2559.33 | $0.00 | $0.00 | $5118.71 | $0.00 |
Statement Details |
| 2023 | 22365 | STATE - STATE LEVY (SCHOOL) | $648.78 | $648.78 | $0.00 | $0.00 | $1297.56 | $0.00 |
| 2023 | 22365 | COUNTY - COUNTY LEVIES (CE, DD, VET, MH) | $283.12 | $283.08 | $0.00 | $0.00 | $566.20 | $0.00 |
| 2023 | 22365 | CONSERVE - CONSERVATION FUTURES | $8.49 | $8.49 | $0.00 | $0.00 | $16.98 | $0.00 |
| 2023 | 22365 | COROADS - COUNTY ROADS (ROADS, DIV TO CE) | $229.05 | $229.05 | $0.00 | $0.00 | $458.10 | $0.00 |
| 2023 | 22365 | PORTPT - PORT DISTRICT | $119.27 | $119.25 | $0.00 | $0.00 | $238.52 | $0.00 |
| 2023 | 22365 | PUD1 - PUD #1 | $18.77 | $18.76 | $0.00 | $0.00 | $37.53 | $0.00 |
| 2023 | 22365 | LIB1 - LIBRARY DIST #1 | $88.62 | $88.62 | $0.00 | $0.00 | $177.24 | $0.00 |
| 2023 | 22365 | HD2 - HOSP DIST #2 | $16.53 | $16.52 | $0.00 | $0.00 | $33.05 | $0.00 |
| 2023 | 22365 | SD50 - SCHOOL DIST #50 | $514.83 | $514.81 | $0.00 | $0.00 | $1029.64 | $0.00 |
| 2023 | 22365 | FD1 - FIRE DISTRICT #1 | $233.23 | $233.22 | $0.00 | $0.00 | $466.45 | $0.00 |
| 2023 | 22365 | EMS1 - FIRE DIST #1 EMS | $99.21 | $99.21 | $0.00 | $0.00 | $198.42 | $0.00 |
| 2023 | 22365 | JCCD - JC Conservation District | $2.55 | $2.55 | $0.00 | $0.00 | $5.10 | $0.00 |
| 2023 | 22365 | NWA - Noxious Weed Assessment | $2.15 | $2.15 | $0.00 | $0.00 | $4.30 | $0.00 |
| 2023 | 22365 | OSS - On Site Septic | $20.50 | $20.50 | $0.00 | $0.00 | $41.00 | $0.00 |
| 2023 | 22365 | WAT - Clean Water District | $12.00 | $12.00 | $0.00 | $0.00 | $24.00 | $0.00 |
| 2023 | 22365 | TOTAL: | $2297.10 | $2296.99 | $0.00 | $0.00 | $4594.09 | $0.00 |
|
| 2023 | 22365 | $2297.10 | $2296.99 | $0.00 | $0.00 | $4594.09 | $0.00 |
Values
| (+) Improvement Homesite Value: | + | $0 | |
| (+) Improvement Non-Homesite Value: | + | $505,340 | |
| (+) Land Homesite Value: | + | $0 | |
| (+) Land Non-Homesite Value: | + | $110,000 | |
| (+) Curr Use (HS): | + | $0 | $0 |
| (+) Curr Use (NHS): | + | $0 | $0 |
| | | -------------------------- | |
| (=) Market Value: | = | $615,340 | |
| (–) Productivity Loss: | – | $0 | |
| | | -------------------------- | |
| (=) Subtotal: | = | $615,340 | |
| (+) Senior Appraised Value: | + | $0 | |
| (+) Non-Senior Appraised Value: | + | $615,340 | |
| | | -------------------------- | |
| (=) Total Appraised Value: | = | $615,340 | |
| (–) Senior Exemption Loss: | – | $0 | |
| (–) Exemption Loss: | – | $0 | |
| | | -------------------------- | |
| (=) Taxable Value: | = | $615,340 | |
Taxing Jurisdiction
| Owner: | ERIC L & CLAIRE F FARRINGER | | |
| % Ownership: | 100.0000000000% | | |
| Total Value: | $615,340 | | |
| Tax Area: | 0111 - 1-50F1E1H2L1 |
| CE | COUNTY CURRENT EXPENSE | 0.9034619479 | $615,340 | $615,340 | $555.94 | | |
| CNTYDD | DEVELOPMENTAL DISABILITIES | 0.0052121823 | $615,340 | $615,340 | $3.21 | | |
| CNTYVET | VETERANS RELIEF | 0.0052777810 | $615,340 | $615,340 | $3.25 | | |
| MENTAL | MENTAL HEALTH | 0.0052121823 | $615,340 | $615,340 | $3.21 | | |
| ROADS | COUNTY ROADS | 0.7415066410 | $615,340 | $615,340 | $456.28 | | |
| ROADSCU | COUNTY ROADS TO CUR EXP | 0.0000000000 | $615,340 | $615,340 | $0.00 | | |
| HOSP2CASH | HOSP DIST #2 GENERAL | 0.0536075306 | $615,340 | $615,340 | $32.99 | | |
| SCH50BOND | SCHOOL DIST #50 BOND 2016 | 0.5377451389 | $615,340 | $615,340 | $330.90 | | |
| SCH50CP | SCHOOL DIST #50 CAP PROJ | 0.4573475088 | $615,340 | $615,340 | $281.42 | | |
| SCH50MO | SCHOOL DIST #50 EP & O | 0.8262822886 | $615,340 | $615,340 | $508.44 | | |
| CONSERVE | CONSERVATION FUTURES | 0.0275621078 | $615,340 | $615,340 | $16.96 | | |
| EMS1 | FIRE DIST #1 EMS | 0.4679948282 | $615,340 | $615,340 | $287.98 | | |
| FD1 | FIRE DIST #1 GENERAL | 1.2171942929 | $615,340 | $615,340 | $748.99 | | |
| LIB1 | LIBRARY DIST #1 GENERAL | 0.2868827388 | $615,340 | $615,340 | $176.53 | | |
| PORTPT | PORT OF PT GENERAL | 0.1134941229 | $615,340 | $615,340 | $69.84 | | |
| PORTPTIDD | PORT OF PT IDD 2019 | 0.2577346692 | $615,340 | $615,340 | $158.59 | | |
| PUD1 | PUD #1 GENERAL | 0.0597888892 | $615,340 | $615,340 | $36.79 | | |
| STATE | STATE SCHOOL PART 1 | 1.4940692947 | $615,340 | $615,340 | $919.36 | | |
| STATE2 | STATE SCHOOL PART 2 | 0.8050170049 | $615,340 | $615,340 | $495.36 | | |
| | Total Tax Rate: | 8.2653911500 | | | | | |
| | | | | Taxes w/Current Exemptions: | $5,086.04 | | |
| | | | | Taxes w/o Exemptions: | $5,086.04 | | |
Improvement / Building
| Improvement #1: | Residential Bldg | State Code: | 11 | 1606.0 sqft | Value: | $505,340 |
| Bathrooms (#): | 2 (FULL) | Bedrooms (#): | 3 | | Exterior Wall: | SI/ST | Fireplace: | PROPS-GOOD | | Floor Construction: | FRAME | Foundation: | CONPR | | Heating/Cooling: | ELBB | Roof Cover: | COMP |
|
| | Type | Description | Class CD | Sub Class CD | Year Built | Area |
| | MA | Main Area | 5 | 1S | 1995 | 1606.0 |
| | HCPOR | House Concrete Porch | 5 | 1S | 1995 | 34.0 |
| | HDECK | House Deck | 5 | 1S | 1995 | 278.0 |
| | GATT | House Attached Garage | 5 | 1S | 1995 | 440.0 |
| | CONCD | Concrete Drive | 5 | 1S | 1995 | 900.0 |
Sketch
Property Image
Land
| 1 | 5391-1175L | | 0.0000 | 0.00 | 0.00 | 0.00 | 1.00 | $110,000 | $0 |
Roll Value History
| 2026 | N/A | N/A | N/A | N/A | N/A |
| 2025 | $505,340 | $110,000 | $0 | $615,340 | $615,340 |
| 2024 | $505,340 | $110,000 | $0 | $615,340 | $615,340 |
| 2023 | $486,806 | $96,075 | $0 | $582,881 | $582,881 |
| 2022 | $464,679 | $86,500 | $0 | $551,179 | $551,179 |
Deed and Sales History
| 1 | 03/31/2020 | SWD | Statutory Warranty Deed | KAREN E NAULTY | ERIC L & CLAIRE F FARRINGER | | | $439,000.00 | 134193 | |
| 2 | 05/05/2015 | SWD | Statutory Warranty Deed | WILLIAM P PERNSTEINER | KAREN E NAULTY | | | $302,000.00 | 123242 | |
| 3 | 11/02/2010 | SWD | Statutory Warranty Deed | GARDNER TRUSTEE, ALAN H/N | PERNSTEINER, WILLIAM/JANA | 0 | 0 | $320,000.00 | 115205 | 0 |
| 4 | 01/25/2005 | SWD | Statutory Warranty Deed | SCOTT, JOANN C | GARDNER, ALAN & NICOLE/TRUST | 0 | 0 | $279,000.00 | 102600 | 0 |
| 5 | 09/07/2004 | SWD | Statutory Warranty Deed | DIDJURGIS, DONALD J/VALET | SCOTT, JOANN C | 0 | 0 | $265,000.00 | 101403 | 0 |
| 6 | 01/29/1996 | SWD | Statutory Warranty Deed | ELDRIDGE HOMES INC | DIDJURGIS, DONALD J/VALETTA J | 0 | 0 | $165,000.00 | 78774 | 0 |
| 7 | 04/27/1995 | SWD | Statutory Warranty Deed | SATO, RONALD G/JILL L | ELDRIDGE HOMES INC | 0 | 0 | $20,000.00 | 76930 | 0 |
Payout Agreement
| No payout information available.. |