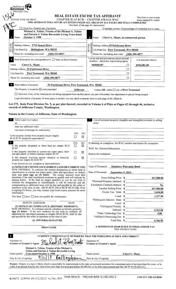
| 1 | 09/09/2013 | SWD | Statutory Warranty Deed | MICHAEL A TOBIAS TRSTE | CHERRI L MANN | | | $267,500.00 | 119974 | |
| 2 | 10/30/2001 | SWD | Statutory Warranty Deed | TOBIAS, MICHAEL A/PATRICI | TOBIAS, MICHAEL A/PATRICIA CO- | 0 | 0 | $0.00 | 93404 | 0 |
| 3 | 07/26/2001 | SWD | Statutory Warranty Deed | ALLEN, WALLACE EVAN/LEILA | TOBIAS, MICHAEL A/PATRICIA J | 0 | 0 | $239,000.00 | 92777 | 0 |
| 4 | 10/21/1996 | SWD | Statutory Warranty Deed | CRANSTON CONSTRUCTION COM | ALLEN, WALLACE EVAN/LEILA MAE | 0 | 0 | $189,500.00 | 80672 | 0 |
| 5 | 01/08/1996 | SWD | Statutory Warranty Deed | MALCOLM, DONALD & MARILYN | CRANSTON CONSTRUCTION CO | 0 | 0 | $31,500.00 | 78673 | 0 |