Property
Account |
| Property ID: | 33048 | Abbreviated Legal Description: | KALA POINT #7 LOT 404 |
| Parcel # / Geo ID: | 965000262 | Agent Code: | |
| Type: | Real | | |
| Tax Area: | 0111 - 1-50F1E1H2L1 | Land Use Code | 11 |
| Open Space: | N | DFL | N |
| Historic Property: | N | Remodel Property: | N |
| Multi-Family Redevelopment: | N | | |
| Township: | 30N | Section: | 27 |
| Range: | 1W |
Location |
| Address: | 665 PINECREST DR PORT TOWNSEND, WA 98368 | Mapsco: | 049/025 |
| Neighborhood: | KALA PT - DIV 3(PART) & DIV 5 - 10, THE HEIGHTS | Map ID: | |
| Neighborhood CD: | 5391 |
Owner |
| Name: | KAREN L OROSZ | Owner ID: | 96370 |
| Mailing Address: | 665 PINECREST DRIVE PORT TOWNSEND, WA 98368 | % Ownership: | 100.0000000000% |
| | | Exemptions: | |
Pay Tax Due
Select the appropriate checkbox next to the year to be paid. Multiple years may be selected.
*Convenience Fee not included
Taxes and Assessment Details
Property Tax Information as of
03/10/2026
Click on "Statement Details" to expand or collapse a tax statement.
* Please enter a valid date ** Please enter a valid date *
Statement Details |
| 2026 | 22314 | STATE - STATE LEVY (SCHOOL) | $904.67 | $904.65 | $0.00 | $0.00 | $0.00 | $1809.32 |
| 2026 | 22314 | COUNTY - COUNTY LEVIES (CE, DD, VET, MH) | $361.68 | $361.67 | $0.00 | $0.00 | $0.00 | $723.35 |
| 2026 | 22314 | CONSERVE - CONSERVATION FUTURES | $10.85 | $10.84 | $0.00 | $0.00 | $0.00 | $21.69 |
| 2026 | 22314 | COROADS - COUNTY ROADS (ROADS, DIV TO CE) | $291.77 | $291.77 | $0.00 | $0.00 | $0.00 | $583.54 |
| 2026 | 22314 | PORTPT - PORT DISTRICT | $146.08 | $146.07 | $0.00 | $0.00 | $0.00 | $292.15 |
| 2026 | 22314 | PUD1 - PUD #1 | $23.53 | $23.52 | $0.00 | $0.00 | $0.00 | $47.05 |
| 2026 | 22314 | LIB1 - LIBRARY DIST #1 | $112.89 | $112.88 | $0.00 | $0.00 | $0.00 | $225.77 |
| 2026 | 22314 | HD2 - HOSP DIST #2 | $21.10 | $21.09 | $0.00 | $0.00 | $0.00 | $42.19 |
| 2026 | 22314 | SD50 - SCHOOL DIST #50 | $716.69 | $716.68 | $0.00 | $0.00 | $0.00 | $1433.37 |
| 2026 | 22314 | FD1 - FIRE DISTRICT #1 | $478.95 | $478.95 | $0.00 | $0.00 | $0.00 | $957.90 |
| 2026 | 22314 | EMS1 - FIRE DIST #1 EMS | $184.15 | $184.15 | $0.00 | $0.00 | $0.00 | $368.30 |
| 2026 | 22314 | FP - DNR Forest Fire Protection Assmt | $8.50 | $8.50 | $0.00 | $0.00 | $0.00 | $17.00 |
| 2026 | 22314 | FPLCA - DNR Landowner Contingency Assmt | $3.00 | $3.00 | $0.00 | $0.00 | $0.00 | $6.00 |
| 2026 | 22314 | JCCD - JC Conservation District | $2.55 | $2.55 | $0.00 | $0.00 | $0.00 | $5.10 |
| 2026 | 22314 | NWA - Noxious Weed Assessment | $2.98 | $2.97 | $0.00 | $0.00 | $0.00 | $5.95 |
| 2026 | 22314 | OSS - On Site Septic | $23.10 | $23.10 | $0.00 | $0.00 | $0.00 | $46.20 |
| 2026 | 22314 | WAT - Clean Water District | $13.00 | $13.00 | $0.00 | $0.00 | $0.00 | $26.00 |
| 2026 | 22314 | FP ADMIN - FP ADMIN | $0.50 | $0.00 | $0.00 | $0.00 | $0.00 | $0.50 |
| 2026 | 22314 | TOTAL: | $3305.99 | $3305.39 | $0.00 | $0.00 | $0.00 | $6611.38 |
|
| 2026 | 22314 | $3305.99 | $3305.39 | $0.00 | $0.00 | $0.00 | $6611.38 |
Statement Details |
| 2025 | 22376 | STATE - STATE LEVY (SCHOOL) | $943.59 | $943.59 | $0.00 | $0.00 | $1887.18 | $0.00 |
| 2025 | 22376 | COUNTY - COUNTY LEVIES (CE, DD, VET, MH) | $371.07 | $371.05 | $0.00 | $0.00 | $742.12 | $0.00 |
| 2025 | 22376 | CONSERVE - CONSERVATION FUTURES | $11.13 | $11.12 | $0.00 | $0.00 | $22.25 | $0.00 |
| 2025 | 22376 | COROADS - COUNTY ROADS (ROADS, DIV TO CE) | $297.28 | $297.28 | $0.00 | $0.00 | $594.56 | $0.00 |
| 2025 | 22376 | PORTPT - PORT DISTRICT | $151.42 | $151.40 | $0.00 | $0.00 | $302.82 | $0.00 |
| 2025 | 22376 | PUD1 - PUD #1 | $24.28 | $24.28 | $0.00 | $0.00 | $48.56 | $0.00 |
| 2025 | 22376 | LIB1 - LIBRARY DIST #1 | $115.02 | $115.01 | $0.00 | $0.00 | $230.03 | $0.00 |
| 2025 | 22376 | HD2 - HOSP DIST #2 | $21.65 | $21.65 | $0.00 | $0.00 | $43.30 | $0.00 |
| 2025 | 22376 | SD50 - SCHOOL DIST #50 | $689.61 | $689.60 | $0.00 | $0.00 | $1379.21 | $0.00 |
| 2025 | 22376 | FD1 - FIRE DISTRICT #1 | $489.66 | $489.65 | $0.00 | $0.00 | $979.31 | $0.00 |
| 2025 | 22376 | EMS1 - FIRE DIST #1 EMS | $188.34 | $188.33 | $0.00 | $0.00 | $376.67 | $0.00 |
| 2025 | 22376 | FP - DNR Forest Fire Protection Assmt | $8.50 | $8.50 | $0.00 | $0.00 | $17.00 | $0.00 |
| 2025 | 22376 | FPLCA - DNR Landowner Contingency Assmt | $3.00 | $3.00 | $0.00 | $0.00 | $6.00 | $0.00 |
| 2025 | 22376 | JCCD - JC Conservation District | $2.55 | $2.55 | $0.00 | $0.00 | $5.10 | $0.00 |
| 2025 | 22376 | NWA - Noxious Weed Assessment | $2.15 | $2.15 | $0.00 | $0.00 | $4.30 | $0.00 |
| 2025 | 22376 | OSS - On Site Septic | $21.50 | $21.50 | $0.00 | $0.00 | $43.00 | $0.00 |
| 2025 | 22376 | WAT - Clean Water District | $13.00 | $13.00 | $0.00 | $0.00 | $26.00 | $0.00 |
| 2025 | 22376 | FP ADMIN - FP ADMIN | $0.50 | $0.00 | $0.00 | $0.00 | $0.50 | $0.00 |
| 2025 | 22376 | TOTAL: | $3354.25 | $3353.66 | $0.00 | $0.00 | $6707.91 | $0.00 |
|
| 2025 | 22376 | $3354.25 | $3353.66 | $0.00 | $0.00 | $6707.91 | $0.00 |
Statement Details |
| 2024 | 22421 | STATE - STATE LEVY (SCHOOL) | $874.17 | $874.16 | $0.00 | $0.00 | $1748.33 | $0.00 |
| 2024 | 22421 | COUNTY - COUNTY LEVIES (CE, DD, VET, MH) | $374.06 | $374.06 | $0.00 | $0.00 | $748.12 | $0.00 |
| 2024 | 22421 | CONSERVE - CONSERVATION FUTURES | $11.22 | $11.21 | $0.00 | $0.00 | $22.43 | $0.00 |
| 2024 | 22421 | COROADS - COUNTY ROADS (ROADS, DIV TO CE) | $301.01 | $300.99 | $0.00 | $0.00 | $602.00 | $0.00 |
| 2024 | 22421 | PORTPT - PORT DISTRICT | $154.51 | $154.50 | $0.00 | $0.00 | $309.01 | $0.00 |
| 2024 | 22421 | PUD1 - PUD #1 | $24.57 | $24.57 | $0.00 | $0.00 | $49.14 | $0.00 |
| 2024 | 22421 | LIB1 - LIBRARY DIST #1 | $116.46 | $116.45 | $0.00 | $0.00 | $232.91 | $0.00 |
| 2024 | 22421 | HD2 - HOSP DIST #2 | $21.83 | $21.82 | $0.00 | $0.00 | $43.65 | $0.00 |
| 2024 | 22421 | SD50 - SCHOOL DIST #50 | $707.24 | $707.24 | $0.00 | $0.00 | $1414.48 | $0.00 |
| 2024 | 22421 | FD1 - FIRE DISTRICT #1 | $494.60 | $494.60 | $0.00 | $0.00 | $989.20 | $0.00 |
| 2024 | 22421 | EMS1 - FIRE DIST #1 EMS | $188.92 | $188.92 | $0.00 | $0.00 | $377.84 | $0.00 |
| 2024 | 22421 | JCCD - JC Conservation District | $2.55 | $2.55 | $0.00 | $0.00 | $5.10 | $0.00 |
| 2024 | 22421 | NWA - Noxious Weed Assessment | $2.15 | $2.15 | $0.00 | $0.00 | $4.30 | $0.00 |
| 2024 | 22421 | OSS - On Site Septic | $21.00 | $21.00 | $0.00 | $0.00 | $42.00 | $0.00 |
| 2024 | 22421 | WAT - Clean Water District | $12.50 | $12.50 | $0.00 | $0.00 | $25.00 | $0.00 |
| 2024 | 22421 | TOTAL: | $3306.79 | $3306.72 | $0.00 | $0.00 | $6613.51 | $0.00 |
|
| 2024 | 22421 | $3306.79 | $3306.72 | $0.00 | $0.00 | $6613.51 | $0.00 |
Statement Details |
| 2023 | 22458 | STATE - STATE LEVY (SCHOOL) | $842.91 | $842.89 | $0.00 | $0.00 | $1685.80 | $0.00 |
| 2023 | 22458 | COUNTY - COUNTY LEVIES (CE, DD, VET, MH) | $367.83 | $367.81 | $0.00 | $0.00 | $735.64 | $0.00 |
| 2023 | 22458 | CONSERVE - CONSERVATION FUTURES | $11.03 | $11.03 | $0.00 | $0.00 | $22.06 | $0.00 |
| 2023 | 22458 | COROADS - COUNTY ROADS (ROADS, DIV TO CE) | $297.59 | $297.58 | $0.00 | $0.00 | $595.17 | $0.00 |
| 2023 | 22458 | PORTPT - PORT DISTRICT | $154.95 | $154.94 | $0.00 | $0.00 | $309.89 | $0.00 |
| 2023 | 22458 | PUD1 - PUD #1 | $24.38 | $24.38 | $0.00 | $0.00 | $48.76 | $0.00 |
| 2023 | 22458 | LIB1 - LIBRARY DIST #1 | $115.14 | $115.13 | $0.00 | $0.00 | $230.27 | $0.00 |
| 2023 | 22458 | HD2 - HOSP DIST #2 | $21.47 | $21.46 | $0.00 | $0.00 | $42.93 | $0.00 |
| 2023 | 22458 | SD50 - SCHOOL DIST #50 | $668.87 | $668.85 | $0.00 | $0.00 | $1337.72 | $0.00 |
| 2023 | 22458 | FD1 - FIRE DISTRICT #1 | $303.01 | $303.00 | $0.00 | $0.00 | $606.01 | $0.00 |
| 2023 | 22458 | EMS1 - FIRE DIST #1 EMS | $128.90 | $128.89 | $0.00 | $0.00 | $257.79 | $0.00 |
| 2023 | 22458 | JCCD - JC Conservation District | $2.55 | $2.55 | $0.00 | $0.00 | $5.10 | $0.00 |
| 2023 | 22458 | NWA - Noxious Weed Assessment | $2.15 | $2.15 | $0.00 | $0.00 | $4.30 | $0.00 |
| 2023 | 22458 | OSS - On Site Septic | $20.50 | $20.50 | $0.00 | $0.00 | $41.00 | $0.00 |
| 2023 | 22458 | WAT - Clean Water District | $12.00 | $12.00 | $0.00 | $0.00 | $24.00 | $0.00 |
| 2023 | 22458 | TOTAL: | $2973.28 | $2973.16 | $0.00 | $0.00 | $5946.44 | $0.00 |
|
| 2023 | 22458 | $2973.28 | $2973.16 | $0.00 | $0.00 | $5946.44 | $0.00 |
Values
| (+) Improvement Homesite Value: | + | $0 | |
| (+) Improvement Non-Homesite Value: | + | $669,272 | |
| (+) Land Homesite Value: | + | $0 | |
| (+) Land Non-Homesite Value: | + | $117,700 | |
| (+) Curr Use (HS): | + | $0 | $0 |
| (+) Curr Use (NHS): | + | $0 | $0 |
| | | -------------------------- | |
| (=) Market Value: | = | $786,972 | |
| (–) Productivity Loss: | – | $0 | |
| | | -------------------------- | |
| (=) Subtotal: | = | $786,972 | |
| (+) Senior Appraised Value: | + | $0 | |
| (+) Non-Senior Appraised Value: | + | $786,972 | |
| | | -------------------------- | |
| (=) Total Appraised Value: | = | $786,972 | |
| (–) Senior Exemption Loss: | – | $0 | |
| (–) Exemption Loss: | – | $0 | |
| | | -------------------------- | |
| (=) Taxable Value: | = | $786,972 | |
Taxing Jurisdiction
| Owner: | KAREN L OROSZ | | |
| % Ownership: | 100.0000000000% | | |
| Total Value: | $786,972 | | |
| Tax Area: | 0111 - 1-50F1E1H2L1 |
| CE | COUNTY CURRENT EXPENSE | 0.9034619479 | $786,972 | $786,972 | $711.00 | | |
| CNTYDD | DEVELOPMENTAL DISABILITIES | 0.0052121823 | $786,972 | $786,972 | $4.10 | | |
| CNTYVET | VETERANS RELIEF | 0.0052777810 | $786,972 | $786,972 | $4.15 | | |
| MENTAL | MENTAL HEALTH | 0.0052121823 | $786,972 | $786,972 | $4.10 | | |
| ROADS | COUNTY ROADS | 0.7415066410 | $786,972 | $786,972 | $583.54 | | |
| ROADSCU | COUNTY ROADS TO CUR EXP | 0.0000000000 | $786,972 | $786,972 | $0.00 | | |
| HOSP2CASH | HOSP DIST #2 GENERAL | 0.0536075306 | $786,972 | $786,972 | $42.19 | | |
| SCH50BOND | SCHOOL DIST #50 BOND 2016 | 0.5377451389 | $786,972 | $786,972 | $423.19 | | |
| SCH50CP | SCHOOL DIST #50 CAP PROJ | 0.4573475088 | $786,972 | $786,972 | $359.92 | | |
| SCH50MO | SCHOOL DIST #50 EP & O | 0.8262822886 | $786,972 | $786,972 | $650.26 | | |
| CONSERVE | CONSERVATION FUTURES | 0.0275621078 | $786,972 | $786,972 | $21.69 | | |
| EMS1 | FIRE DIST #1 EMS | 0.4679948282 | $786,972 | $786,972 | $368.30 | | |
| FD1 | FIRE DIST #1 GENERAL | 1.2171942929 | $786,972 | $786,972 | $957.90 | | |
| LIB1 | LIBRARY DIST #1 GENERAL | 0.2868827388 | $786,972 | $786,972 | $225.77 | | |
| PORTPT | PORT OF PT GENERAL | 0.1134941229 | $786,972 | $786,972 | $89.32 | | |
| PORTPTIDD | PORT OF PT IDD 2019 | 0.2577346692 | $786,972 | $786,972 | $202.83 | | |
| PUD1 | PUD #1 GENERAL | 0.0597888892 | $786,972 | $786,972 | $47.05 | | |
| STATE | STATE SCHOOL PART 1 | 1.4940692947 | $786,972 | $786,972 | $1,175.79 | | |
| STATE2 | STATE SCHOOL PART 2 | 0.8050170049 | $786,972 | $786,972 | $633.53 | | |
| | Total Tax Rate: | 8.2653911500 | | | | | |
| | | | | Taxes w/Current Exemptions: | $6,504.63 | | |
| | | | | Taxes w/o Exemptions: | $6,504.63 | | |
Improvement / Building
| Improvement #1: | Residential Bldg | State Code: | 11 | 2448.0 sqft | Value: | $669,272 |
| Bathrooms (#): | 2 (FULL) | Bathrooms (#): | 1 (HALF) | | Bedrooms (#): | 3 | Exterior Wall: | SI/ST | | Floor Construction: | FRAME | Foundation: | CONPR | | Heating/Cooling: | HPUMP | Roof Cover: | COMP |
|
| | Type | Description | Class CD | Sub Class CD | Year Built | Area |
| | MA | Main Area | 5- | 1S | 2007 | 2448.0 |
| | HWPOR | House Wood Porch | 5 | 1S | 2007 | 56.0 |
| | HDECK | House Deck | 5 | 1S | 2007 | 488.0 |
| | GATT | House Attached Garage | 5 | 1S | 2007 | 720.0 |
Sketch
Property Image
Land
| 1 | 5391-1175L | | 0.0000 | 0.00 | 0.00 | 0.00 | 1.00 | $117,700 | $0 |
Roll Value History
| 2026 | N/A | N/A | N/A | N/A | N/A |
| 2025 | $669,272 | $117,700 | $0 | $786,972 | $786,972 |
| 2024 | $669,272 | $117,700 | $0 | $786,972 | $786,972 |
| 2023 | $648,575 | $107,100 | $0 | $755,675 | $755,675 |
| 2022 | $619,095 | $97,000 | $0 | $716,095 | $716,095 |
Deed and Sales History
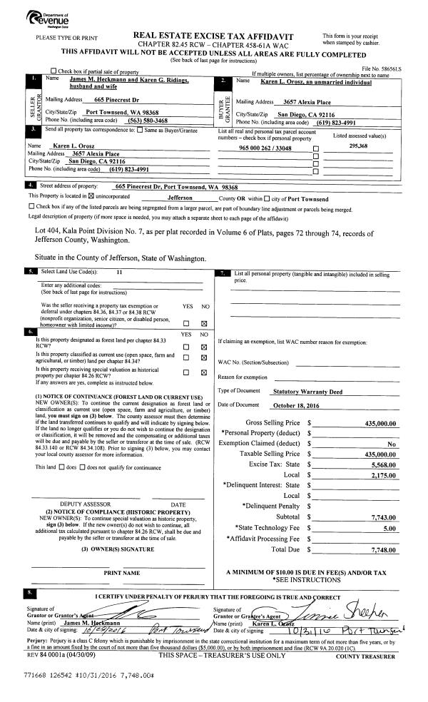
| 1 | 10/18/2016 | SWD | Statutory Warranty Deed | JAMES M HECKMANN & KAREN RIDINGS | KAREN L OROSZ | | | $435,000.00 | 126542 | |
| 2 | 09/25/2014 | SWD | Statutory Warranty Deed | ELAINE JONES | JAMES M HECKMANN & KAREN RIDINGS | | | $325,000.00 | 122004 | |
| 3 | 09/26/2012 | WD | Warranty Deed | FEDERAL HOME LOAN MORTGAG | JONES, ELAINE | 0 | 0 | $231,128.00 | 118103 | 0 |
| 4 | 11/08/2011 | WD | Warranty Deed | NORTHWEST TRUSTEE SERVICE | FEDERAL HOME LOAN MORTGAGE | 0 | 0 | $353,870.00 | 116829 | 0 |
| 5 | 09/17/2010 | QCD | Quit Claim Deed | SHORT, MELINDA G | SHORT, KEVIN P | 0 | 0 | $0.00 | 114911 | 0 |
| 6 | 03/16/2007 | SWD | Statutory Warranty Deed | MILLENNIUM ONE HOMES INC | SHORT, KEVIN & MELINDA | 0 | 0 | $105,000.00 | 108828 | 0 |
| 7 | 07/19/2005 | SWD | Statutory Warranty Deed | AISSEN, LOUIS | MILLENNIUM ONE HOMES INC | | | $67,500.00 | 104237 | 0 |
| 8 | 05/10/2005 | SWD | Statutory Warranty Deed | APPLEGATE, PAUL D/MARY LY | AISSEN, LOUIS | | | $52,000.00 | 103526 | 0 |
| 9 | 12/06/2002 | SWD | Statutory Warranty Deed | DAVID M FARROW | APPLEGATE, PAUL D/MARY LYNN | 0 | 0 | $43,000.00 | 96132 | 0 |
Payout Agreement
| No payout information available.. |