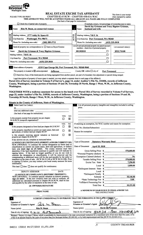
Property
Account |
| Property ID: | 33132 | Abbreviated Legal Description: | KALA POINT #10 LOT 304 |
| Parcel # / Geo ID: | 965000351 | Agent Code: | |
| Type: | Real | | |
| Tax Area: | 0111 - 1-50F1E1H2L1 | Land Use Code | 11 |
| Open Space: | N | DFL | N |
| Historic Property: | N | Remodel Property: | N |
| Multi-Family Redevelopment: | N | | |
| Township: | 30N | Section: | 27 |
| Range: | 1W |
Location |
| Address: | 30 HEMLOCK CT PORT TOWNSEND, WA 98368 | Mapsco: | 051/035 |
| Neighborhood: | KALA PT - DIV 3(PART) & DIV 5 - 10, THE HEIGHTS | Map ID: | |
| Neighborhood CD: | 5391 |
Owner |
| Name: | LORRAINE A INCE | Owner ID: | 113316 |
| Mailing Address: | 30 HEMLOCK CT PORT TOWNSEND, WA 98368-9446 | % Ownership: | 100.0000000000% |
| | | Exemptions: | |
Pay Tax Due
Select the appropriate checkbox next to the year to be paid. Multiple years may be selected.
*Convenience Fee not included
Taxes and Assessment Details
Property Tax Information as of
03/11/2026
Click on "Statement Details" to expand or collapse a tax statement.
* Please enter a valid date ** Please enter a valid date *
Statement Details |
| 2026 | 22397 | STATE - STATE LEVY (SCHOOL) | $855.87 | $855.85 | $0.00 | $0.00 | $0.00 | $1711.72 |
| 2026 | 22397 | COUNTY - COUNTY LEVIES (CE, DD, VET, MH) | $342.18 | $342.16 | $0.00 | $0.00 | $0.00 | $684.34 |
| 2026 | 22397 | CONSERVE - CONSERVATION FUTURES | $10.26 | $10.26 | $0.00 | $0.00 | $0.00 | $20.52 |
| 2026 | 22397 | COROADS - COUNTY ROADS (ROADS, DIV TO CE) | $276.04 | $276.03 | $0.00 | $0.00 | $0.00 | $552.07 |
| 2026 | 22397 | PORTPT - PORT DISTRICT | $138.20 | $138.19 | $0.00 | $0.00 | $0.00 | $276.39 |
| 2026 | 22397 | PUD1 - PUD #1 | $22.26 | $22.25 | $0.00 | $0.00 | $0.00 | $44.51 |
| 2026 | 22397 | LIB1 - LIBRARY DIST #1 | $106.80 | $106.79 | $0.00 | $0.00 | $0.00 | $213.59 |
| 2026 | 22397 | HD2 - HOSP DIST #2 | $19.96 | $19.95 | $0.00 | $0.00 | $0.00 | $39.91 |
| 2026 | 22397 | SD50 - SCHOOL DIST #50 | $678.04 | $678.02 | $0.00 | $0.00 | $0.00 | $1356.06 |
| 2026 | 22397 | FD1 - FIRE DISTRICT #1 | $453.12 | $453.11 | $0.00 | $0.00 | $0.00 | $906.23 |
| 2026 | 22397 | EMS1 - FIRE DIST #1 EMS | $174.22 | $174.21 | $0.00 | $0.00 | $0.00 | $348.43 |
| 2026 | 22397 | JCCD - JC Conservation District | $2.55 | $2.55 | $0.00 | $0.00 | $0.00 | $5.10 |
| 2026 | 22397 | NWA - Noxious Weed Assessment | $2.98 | $2.97 | $0.00 | $0.00 | $0.00 | $5.95 |
| 2026 | 22397 | OSS - On Site Septic | $23.10 | $23.10 | $0.00 | $0.00 | $0.00 | $46.20 |
| 2026 | 22397 | WAT - Clean Water District | $13.00 | $13.00 | $0.00 | $0.00 | $0.00 | $26.00 |
| 2026 | 22397 | TOTAL: | $3118.58 | $3118.44 | $0.00 | $0.00 | $0.00 | $6237.02 |
|
| 2026 | 22397 | $3118.58 | $3118.44 | $0.00 | $0.00 | $0.00 | $6237.02 |
Statement Details |
| 2025 | 22459 | STATE - STATE LEVY (SCHOOL) | $690.75 | $690.73 | $0.00 | $0.00 | $1381.48 | $0.00 |
| 2025 | 22459 | COUNTY - COUNTY LEVIES (CE, DD, VET, MH) | $271.64 | $271.61 | $0.00 | $0.00 | $543.25 | $0.00 |
| 2025 | 22459 | CONSERVE - CONSERVATION FUTURES | $8.15 | $8.14 | $0.00 | $0.00 | $16.29 | $0.00 |
| 2025 | 22459 | COROADS - COUNTY ROADS (ROADS, DIV TO CE) | $217.63 | $217.61 | $0.00 | $0.00 | $435.24 | $0.00 |
| 2025 | 22459 | PORTPT - PORT DISTRICT | $110.84 | $110.84 | $0.00 | $0.00 | $221.68 | $0.00 |
| 2025 | 22459 | PUD1 - PUD #1 | $17.78 | $17.77 | $0.00 | $0.00 | $35.55 | $0.00 |
| 2025 | 22459 | LIB1 - LIBRARY DIST #1 | $84.20 | $84.19 | $0.00 | $0.00 | $168.39 | $0.00 |
| 2025 | 22459 | HD2 - HOSP DIST #2 | $15.85 | $15.84 | $0.00 | $0.00 | $31.69 | $0.00 |
| 2025 | 22459 | SD50 - SCHOOL DIST #50 | $504.82 | $504.81 | $0.00 | $0.00 | $1009.63 | $0.00 |
| 2025 | 22459 | FD1 - FIRE DISTRICT #1 | $358.45 | $358.44 | $0.00 | $0.00 | $716.89 | $0.00 |
| 2025 | 22459 | EMS1 - FIRE DIST #1 EMS | $137.87 | $137.86 | $0.00 | $0.00 | $275.73 | $0.00 |
| 2025 | 22459 | JCCD - JC Conservation District | $2.55 | $2.55 | $0.00 | $0.00 | $5.10 | $0.00 |
| 2025 | 22459 | NWA - Noxious Weed Assessment | $2.15 | $2.15 | $0.00 | $0.00 | $4.30 | $0.00 |
| 2025 | 22459 | OSS - On Site Septic | $21.50 | $21.50 | $0.00 | $0.00 | $43.00 | $0.00 |
| 2025 | 22459 | WAT - Clean Water District | $13.00 | $13.00 | $0.00 | $0.00 | $26.00 | $0.00 |
| 2025 | 22459 | TOTAL: | $2457.18 | $2457.04 | $0.00 | $0.00 | $4914.22 | $0.00 |
|
| 2025 | 22459 | $2457.18 | $2457.04 | $0.00 | $0.00 | $4914.22 | $0.00 |
Statement Details |
| 2024 | 22504 | STATE - STATE LEVY (SCHOOL) | $625.74 | $625.74 | $0.00 | $0.00 | $1251.48 | $0.00 |
| 2024 | 22504 | COUNTY - COUNTY LEVIES (CE, DD, VET, MH) | $267.76 | $267.75 | $0.00 | $0.00 | $535.51 | $0.00 |
| 2024 | 22504 | CONSERVE - CONSERVATION FUTURES | $8.03 | $8.03 | $0.00 | $0.00 | $16.06 | $0.00 |
| 2024 | 22504 | COROADS - COUNTY ROADS (ROADS, DIV TO CE) | $215.47 | $215.45 | $0.00 | $0.00 | $430.92 | $0.00 |
| 2024 | 22504 | PORTPT - PORT DISTRICT | $110.60 | $110.59 | $0.00 | $0.00 | $221.19 | $0.00 |
| 2024 | 22504 | PUD1 - PUD #1 | $17.59 | $17.59 | $0.00 | $0.00 | $35.18 | $0.00 |
| 2024 | 22504 | LIB1 - LIBRARY DIST #1 | $83.36 | $83.36 | $0.00 | $0.00 | $166.72 | $0.00 |
| 2024 | 22504 | HD2 - HOSP DIST #2 | $15.63 | $15.62 | $0.00 | $0.00 | $31.25 | $0.00 |
| 2024 | 22504 | SD50 - SCHOOL DIST #50 | $506.26 | $506.25 | $0.00 | $0.00 | $1012.51 | $0.00 |
| 2024 | 22504 | FD1 - FIRE DISTRICT #1 | $354.05 | $354.04 | $0.00 | $0.00 | $708.09 | $0.00 |
| 2024 | 22504 | EMS1 - FIRE DIST #1 EMS | $135.23 | $135.23 | $0.00 | $0.00 | $270.46 | $0.00 |
| 2024 | 22504 | JCCD - JC Conservation District | $2.55 | $2.55 | $0.00 | $0.00 | $5.10 | $0.00 |
| 2024 | 22504 | NWA - Noxious Weed Assessment | $2.15 | $2.15 | $0.00 | $0.00 | $4.30 | $0.00 |
| 2024 | 22504 | OSS - On Site Septic | $21.00 | $21.00 | $0.00 | $0.00 | $42.00 | $0.00 |
| 2024 | 22504 | WAT - Clean Water District | $12.50 | $12.50 | $0.00 | $0.00 | $25.00 | $0.00 |
| 2024 | 22504 | TOTAL: | $2377.92 | $2377.85 | $0.00 | $0.00 | $4755.77 | $0.00 |
|
| 2024 | 22504 | $2377.92 | $2377.85 | $0.00 | $0.00 | $4755.77 | $0.00 |
Statement Details |
| 2023 | 22542 | STATE - STATE LEVY (SCHOOL) | $601.63 | $601.61 | $0.00 | $0.00 | $1203.24 | $0.00 |
| 2023 | 22542 | COUNTY - COUNTY LEVIES (CE, DD, VET, MH) | $262.53 | $262.53 | $0.00 | $0.00 | $525.06 | $0.00 |
| 2023 | 22542 | CONSERVE - CONSERVATION FUTURES | $7.87 | $7.87 | $0.00 | $0.00 | $15.74 | $0.00 |
| 2023 | 22542 | COROADS - COUNTY ROADS (ROADS, DIV TO CE) | $212.41 | $212.40 | $0.00 | $0.00 | $424.81 | $0.00 |
| 2023 | 22542 | PORTPT - PORT DISTRICT | $110.60 | $110.58 | $0.00 | $0.00 | $221.18 | $0.00 |
| 2023 | 22542 | PUD1 - PUD #1 | $17.40 | $17.40 | $0.00 | $0.00 | $34.80 | $0.00 |
| 2023 | 22542 | LIB1 - LIBRARY DIST #1 | $82.18 | $82.18 | $0.00 | $0.00 | $164.36 | $0.00 |
| 2023 | 22542 | HD2 - HOSP DIST #2 | $15.32 | $15.32 | $0.00 | $0.00 | $30.64 | $0.00 |
| 2023 | 22542 | SD50 - SCHOOL DIST #50 | $477.41 | $477.39 | $0.00 | $0.00 | $954.80 | $0.00 |
| 2023 | 22542 | FD1 - FIRE DISTRICT #1 | $216.27 | $216.27 | $0.00 | $0.00 | $432.54 | $0.00 |
| 2023 | 22542 | EMS1 - FIRE DIST #1 EMS | $92.00 | $92.00 | $0.00 | $0.00 | $184.00 | $0.00 |
| 2023 | 22542 | JCCD - JC Conservation District | $2.55 | $2.55 | $0.00 | $0.00 | $5.10 | $0.00 |
| 2023 | 22542 | NWA - Noxious Weed Assessment | $2.15 | $2.15 | $0.00 | $0.00 | $4.30 | $0.00 |
| 2023 | 22542 | OSS - On Site Septic | $20.50 | $20.50 | $0.00 | $0.00 | $41.00 | $0.00 |
| 2023 | 22542 | WAT - Clean Water District | $12.00 | $12.00 | $0.00 | $0.00 | $24.00 | $0.00 |
| 2023 | 22542 | TOTAL: | $2132.82 | $2132.75 | $0.00 | $0.00 | $4265.57 | $0.00 |
|
| 2023 | 22542 | $2132.82 | $2132.75 | $0.00 | $0.00 | $4265.57 | $0.00 |
Values
| (+) Improvement Homesite Value: | + | $0 | |
| (+) Improvement Non-Homesite Value: | + | $619,122 | |
| (+) Land Homesite Value: | + | $0 | |
| (+) Land Non-Homesite Value: | + | $125,400 | |
| (+) Curr Use (HS): | + | $0 | $0 |
| (+) Curr Use (NHS): | + | $0 | $0 |
| | | -------------------------- | |
| (=) Market Value: | = | $744,522 | |
| (–) Productivity Loss: | – | $0 | |
| | | -------------------------- | |
| (=) Subtotal: | = | $744,522 | |
| (+) Senior Appraised Value: | + | $0 | |
| (+) Non-Senior Appraised Value: | + | $744,522 | |
| | | -------------------------- | |
| (=) Total Appraised Value: | = | $744,522 | |
| (–) Senior Exemption Loss: | – | $0 | |
| (–) Exemption Loss: | – | $0 | |
| | | -------------------------- | |
| (=) Taxable Value: | = | $744,522 | |
Taxing Jurisdiction
| Owner: | LORRAINE A INCE | | |
| % Ownership: | 100.0000000000% | | |
| Total Value: | $744,522 | | |
| Tax Area: | 0111 - 1-50F1E1H2L1 |
| CE | COUNTY CURRENT EXPENSE | 0.9034619479 | $744,522 | $744,522 | $672.65 | | |
| CNTYDD | DEVELOPMENTAL DISABILITIES | 0.0052121823 | $744,522 | $744,522 | $3.88 | | |
| CNTYVET | VETERANS RELIEF | 0.0052777810 | $744,522 | $744,522 | $3.93 | | |
| MENTAL | MENTAL HEALTH | 0.0052121823 | $744,522 | $744,522 | $3.88 | | |
| ROADS | COUNTY ROADS | 0.7415066410 | $744,522 | $744,522 | $552.07 | | |
| ROADSCU | COUNTY ROADS TO CUR EXP | 0.0000000000 | $744,522 | $744,522 | $0.00 | | |
| HOSP2CASH | HOSP DIST #2 GENERAL | 0.0536075306 | $744,522 | $744,522 | $39.91 | | |
| SCH50BOND | SCHOOL DIST #50 BOND 2016 | 0.5377451389 | $744,522 | $744,522 | $400.36 | | |
| SCH50CP | SCHOOL DIST #50 CAP PROJ | 0.4573475088 | $744,522 | $744,522 | $340.51 | | |
| SCH50MO | SCHOOL DIST #50 EP & O | 0.8262822886 | $744,522 | $744,522 | $615.19 | | |
| CONSERVE | CONSERVATION FUTURES | 0.0275621078 | $744,522 | $744,522 | $20.52 | | |
| EMS1 | FIRE DIST #1 EMS | 0.4679948282 | $744,522 | $744,522 | $348.43 | | |
| FD1 | FIRE DIST #1 GENERAL | 1.2171942929 | $744,522 | $744,522 | $906.23 | | |
| LIB1 | LIBRARY DIST #1 GENERAL | 0.2868827388 | $744,522 | $744,522 | $213.59 | | |
| PORTPT | PORT OF PT GENERAL | 0.1134941229 | $744,522 | $744,522 | $84.50 | | |
| PORTPTIDD | PORT OF PT IDD 2019 | 0.2577346692 | $744,522 | $744,522 | $191.89 | | |
| PUD1 | PUD #1 GENERAL | 0.0597888892 | $744,522 | $744,522 | $44.51 | | |
| STATE | STATE SCHOOL PART 1 | 1.4940692947 | $744,522 | $744,522 | $1,112.37 | | |
| STATE2 | STATE SCHOOL PART 2 | 0.8050170049 | $744,522 | $744,522 | $599.35 | | |
| | Total Tax Rate: | 8.2653911500 | | | | | |
| | | | | Taxes w/Current Exemptions: | $6,153.77 | | |
| | | | | Taxes w/o Exemptions: | $6,153.77 | | |
Improvement / Building
| Improvement #1: | Residential Bldg | State Code: | 11 | 1908.0 sqft | Value: | $619,122 |
| Bathrooms (#): | 2 (FULL) | Bedrooms (#): | 2 | | Exterior Wall: | SI/ST | Fireplace: | WD ST-GOOD | | Floor Construction: | FRAME | Foundation: | CONPR | | Heating/Cooling: | HPUMP | Roof Cover: | TILE |
|
| | Type | Description | Class CD | Sub Class CD | Year Built | Area |
| | MA | Main Area | 5 | 1S | 1990 | 1908.0 |
| | HCPOR | House Concrete Porch | 5 | 1S | 1990 | 20.0 |
| | HDECK | House Deck | 5 | 1S | 1990 | 276.0 |
| | GATT | House Attached Garage | 5 | 1S | 1990 | 528.0 |
| | CONCD | Concrete Drive | 5 | 1S | 1990 | 600.0 |
Sketch
Property Image
Land
| 1 | 5391-1165L | | 0.0000 | 0.00 | 0.00 | 0.00 | 1.00 | $125,400 | $0 |
Roll Value History
| 2026 | N/A | N/A | N/A | N/A | N/A |
| 2025 | $619,122 | $125,400 | $0 | $744,522 | $744,522 |
| 2024 | $462,240 | $113,850 | $0 | $576,090 | $576,090 |
| 2023 | $437,502 | $103,425 | $0 | $540,927 | $540,927 |
| 2022 | $417,615 | $93,500 | $0 | $511,115 | $511,115 |
Deed and Sales History
| 1 | 09/09/2025 | SWD | Statutory Warranty Deed | DAN & KATHY MILLER | LORRAINE A INCE | | | $835,000.00 | 144926 | |
| 2 | 08/17/2018 | SWD | Statutory Warranty Deed | KELLY MC LAUGHLIN | DAN & KATHY MILLER | | | $372,000.00 | 130854 | |
| 3 | 01/22/2015 | SWD | Statutory Warranty Deed | KANESTROM FAMILY TRUST | KELLY MC LAUGHLIN | | | $256,000.00 | 122612 | |
| 4 | 08/19/2013 | QCD | Quit Claim Deed | LINDIS KANESTROM | KANESTROM FAMILY TRUST | | | | 119917 | |
Payout Agreement
| No payout information available.. |