Property
Account |
| Property ID: | 33163 | Abbreviated Legal Description: | KILLAPIE BEACH 7 INC. T.L.'S FRTG. |
| Parcel # / Geo ID: | 965100007 | Agent Code: | |
| Type: | Real | | |
| Tax Area: | 0213 - 1-49F1E1H2L1 | Land Use Code | 91 |
| Open Space: | N | DFL | N |
| Historic Property: | N | Remodel Property: | N |
| Multi-Family Redevelopment: | N | | |
| Township: | 27N | Section: | 2 |
| Range: | 1E |
Location |
| Address: | | Mapsco: | 058/007 |
| Neighborhood: | KILLAPIE BEACH & TERMINATION POINT | Map ID: | |
| Neighborhood CD: | 3405 |
Owner |
| Name: | ROBERT M CARSON | Owner ID: | 108938 |
| Mailing Address: | PO BOX 181 PORT GAMBLE, WA 98364-0181 | % Ownership: | 100.0000000000% |
| | | Exemptions: | |
Pay Tax Due
Select the appropriate checkbox next to the year to be paid. Multiple years may be selected.
*Convenience Fee not included
Taxes and Assessment Details
Property Tax Information as of
03/10/2026
Click on "Statement Details" to expand or collapse a tax statement.
* Please enter a valid date ** Please enter a valid date *
Statement Details |
| 2026 | 22428 | STATE - STATE LEVY (SCHOOL) | $18.11 | $18.10 | $0.00 | $0.00 | $0.00 | $36.21 |
| 2026 | 22428 | COUNTY - COUNTY LEVIES (CE, DD, VET, MH) | $7.24 | $7.23 | $0.00 | $0.00 | $0.00 | $14.47 |
| 2026 | 22428 | CONSERVE - CONSERVATION FUTURES | $0.22 | $0.21 | $0.00 | $0.00 | $0.00 | $0.43 |
| 2026 | 22428 | COROADS - COUNTY ROADS (ROADS, DIV TO CE) | $5.84 | $5.84 | $0.00 | $0.00 | $0.00 | $11.68 |
| 2026 | 22428 | PORTPT - PORT DISTRICT | $2.93 | $2.92 | $0.00 | $0.00 | $0.00 | $5.85 |
| 2026 | 22428 | PUD1 - PUD #1 | $0.47 | $0.47 | $0.00 | $0.00 | $0.00 | $0.94 |
| 2026 | 22428 | LIB1 - LIBRARY DIST #1 | $2.26 | $2.26 | $0.00 | $0.00 | $0.00 | $4.52 |
| 2026 | 22428 | HD2 - HOSP DIST #2 | $0.42 | $0.42 | $0.00 | $0.00 | $0.00 | $0.84 |
| 2026 | 22428 | SD49 - SCHOOL DIST #49 | $9.97 | $9.96 | $0.00 | $0.00 | $0.00 | $19.93 |
| 2026 | 22428 | FD1 - FIRE DISTRICT #1 | $9.59 | $9.58 | $0.00 | $0.00 | $0.00 | $19.17 |
| 2026 | 22428 | EMS1 - FIRE DIST #1 EMS | $3.69 | $3.68 | $0.00 | $0.00 | $0.00 | $7.37 |
| 2026 | 22428 | FP - DNR Forest Fire Protection Assmt | $8.50 | $8.50 | $0.00 | $0.00 | $0.00 | $17.00 |
| 2026 | 22428 | FPLCA - DNR Landowner Contingency Assmt | $3.00 | $3.00 | $0.00 | $0.00 | $0.00 | $6.00 |
| 2026 | 22428 | JCCD - JC Conservation District | $2.53 | $2.53 | $0.00 | $0.00 | $0.00 | $5.06 |
| 2026 | 22428 | NWA - Noxious Weed Assessment | $2.98 | $2.97 | $0.00 | $0.00 | $0.00 | $5.95 |
| 2026 | 22428 | WAT - Clean Water District | $13.00 | $13.00 | $0.00 | $0.00 | $0.00 | $26.00 |
| 2026 | 22428 | FP ADMIN - FP ADMIN | $0.50 | $0.00 | $0.00 | $0.00 | $0.00 | $0.50 |
| 2026 | 22428 | TOTAL: | $91.25 | $90.67 | $0.00 | $0.00 | $0.00 | $181.92 |
|
| 2026 | 22428 | $91.25 | $90.67 | $0.00 | $0.00 | $0.00 | $181.92 |
Statement Details |
| 2025 | 22490 | STATE - STATE LEVY (SCHOOL) | $17.99 | $17.98 | $0.00 | $0.00 | $35.97 | $0.00 |
| 2025 | 22490 | COUNTY - COUNTY LEVIES (CE, DD, VET, MH) | $7.07 | $7.07 | $0.00 | $0.00 | $14.14 | $0.00 |
| 2025 | 22490 | CONSERVE - CONSERVATION FUTURES | $0.21 | $0.21 | $0.00 | $0.00 | $0.42 | $0.00 |
| 2025 | 22490 | COROADS - COUNTY ROADS (ROADS, DIV TO CE) | $5.67 | $5.66 | $0.00 | $0.00 | $11.33 | $0.00 |
| 2025 | 22490 | PORTPT - PORT DISTRICT | $2.90 | $2.88 | $0.00 | $0.00 | $5.78 | $0.00 |
| 2025 | 22490 | PUD1 - PUD #1 | $0.47 | $0.46 | $0.00 | $0.00 | $0.93 | $0.00 |
| 2025 | 22490 | LIB1 - LIBRARY DIST #1 | $2.19 | $2.19 | $0.00 | $0.00 | $4.38 | $0.00 |
| 2025 | 22490 | HD2 - HOSP DIST #2 | $0.42 | $0.41 | $0.00 | $0.00 | $0.83 | $0.00 |
| 2025 | 22490 | SD49 - SCHOOL DIST #49 | $9.64 | $9.64 | $0.00 | $0.00 | $19.28 | $0.00 |
| 2025 | 22490 | FD1 - FIRE DISTRICT #1 | $9.34 | $9.33 | $0.00 | $0.00 | $18.67 | $0.00 |
| 2025 | 22490 | EMS1 - FIRE DIST #1 EMS | $3.59 | $3.59 | $0.00 | $0.00 | $7.18 | $0.00 |
| 2025 | 22490 | FP - DNR Forest Fire Protection Assmt | $8.50 | $8.50 | $0.00 | $0.00 | $17.00 | $0.00 |
| 2025 | 22490 | FPLCA - DNR Landowner Contingency Assmt | $3.00 | $3.00 | $0.00 | $0.00 | $6.00 | $0.00 |
| 2025 | 22490 | JCCD - JC Conservation District | $2.53 | $2.53 | $0.00 | $0.00 | $5.06 | $0.00 |
| 2025 | 22490 | NWA - Noxious Weed Assessment | $2.15 | $2.15 | $0.00 | $0.00 | $4.30 | $0.00 |
| 2025 | 22490 | WAT - Clean Water District | $13.00 | $13.00 | $0.00 | $0.00 | $26.00 | $0.00 |
| 2025 | 22490 | FP ADMIN - FP ADMIN | $0.50 | $0.00 | $0.00 | $0.00 | $0.50 | $0.00 |
| 2025 | 22490 | TOTAL: | $89.17 | $88.60 | $0.00 | $0.00 | $177.77 | $0.00 |
|
| 2025 | 22490 | $89.17 | $88.60 | $0.00 | $0.00 | $177.77 | $0.00 |
Statement Details |
| 2024 | 22535 | STATE - STATE LEVY (SCHOOL) | $17.36 | $17.35 | $0.00 | $0.00 | $34.71 | $0.00 |
| 2024 | 22535 | COUNTY - COUNTY LEVIES (CE, DD, VET, MH) | $7.42 | $7.42 | $0.00 | $0.00 | $14.84 | $0.00 |
| 2024 | 22535 | CONSERVE - CONSERVATION FUTURES | $0.23 | $0.22 | $0.00 | $0.00 | $0.45 | $0.00 |
| 2024 | 22535 | COROADS - COUNTY ROADS (ROADS, DIV TO CE) | $5.98 | $5.97 | $0.00 | $0.00 | $11.95 | $0.00 |
| 2024 | 22535 | PORTPT - PORT DISTRICT | $3.07 | $3.06 | $0.00 | $0.00 | $6.13 | $0.00 |
| 2024 | 22535 | PUD1 - PUD #1 | $0.49 | $0.49 | $0.00 | $0.00 | $0.98 | $0.00 |
| 2024 | 22535 | LIB1 - LIBRARY DIST #1 | $2.31 | $2.31 | $0.00 | $0.00 | $4.62 | $0.00 |
| 2024 | 22535 | HD2 - HOSP DIST #2 | $0.44 | $0.43 | $0.00 | $0.00 | $0.87 | $0.00 |
| 2024 | 22535 | SD49 - SCHOOL DIST #49 | $7.75 | $7.74 | $0.00 | $0.00 | $15.49 | $0.00 |
| 2024 | 22535 | FD1 - FIRE DISTRICT #1 | $9.82 | $9.82 | $0.00 | $0.00 | $19.64 | $0.00 |
| 2024 | 22535 | EMS1 - FIRE DIST #1 EMS | $3.75 | $3.75 | $0.00 | $0.00 | $7.50 | $0.00 |
| 2024 | 22535 | FP - DNR Forest Fire Protection Assmt | $8.50 | $8.50 | $0.00 | $0.00 | $17.00 | $0.00 |
| 2024 | 22535 | FPLCA - DNR Landowner Contingency Assmt | $3.00 | $3.00 | $0.00 | $0.00 | $6.00 | $0.00 |
| 2024 | 22535 | JCCD - JC Conservation District | $2.53 | $2.53 | $0.00 | $0.00 | $5.06 | $0.00 |
| 2024 | 22535 | NWA - Noxious Weed Assessment | $2.15 | $2.15 | $0.00 | $0.00 | $4.30 | $0.00 |
| 2024 | 22535 | WAT - Clean Water District | $12.50 | $12.50 | $0.00 | $0.00 | $25.00 | $0.00 |
| 2024 | 22535 | FP ADMIN - FP ADMIN | $0.50 | $0.00 | $0.00 | $0.00 | $0.50 | $0.00 |
| 2024 | 22535 | TOTAL: | $87.80 | $87.24 | $0.00 | $0.00 | $175.04 | $0.00 |
|
| 2024 | 22535 | $87.80 | $87.24 | $0.00 | $0.00 | $175.04 | $0.00 |
Statement Details |
| 2023 | 22573 | STATE - STATE LEVY (SCHOOL) | $17.67 | $17.65 | $0.00 | $0.00 | $35.32 | $0.00 |
| 2023 | 22573 | COUNTY - COUNTY LEVIES (CE, DD, VET, MH) | $7.73 | $7.69 | $0.00 | $0.00 | $15.42 | $0.00 |
| 2023 | 22573 | CONSERVE - CONSERVATION FUTURES | $0.23 | $0.23 | $0.00 | $0.00 | $0.46 | $0.00 |
| 2023 | 22573 | COROADS - COUNTY ROADS (ROADS, DIV TO CE) | $6.24 | $6.23 | $0.00 | $0.00 | $12.47 | $0.00 |
| 2023 | 22573 | PORTPT - PORT DISTRICT | $3.25 | $3.24 | $0.00 | $0.00 | $6.49 | $0.00 |
| 2023 | 22573 | PUD1 - PUD #1 | $0.51 | $0.51 | $0.00 | $0.00 | $1.02 | $0.00 |
| 2023 | 22573 | LIB1 - LIBRARY DIST #1 | $2.41 | $2.41 | $0.00 | $0.00 | $4.82 | $0.00 |
| 2023 | 22573 | HD2 - HOSP DIST #2 | $0.46 | $0.44 | $0.00 | $0.00 | $0.90 | $0.00 |
| 2023 | 22573 | SD49 - SCHOOL DIST #49 | $8.25 | $8.25 | $0.00 | $0.00 | $16.50 | $0.00 |
| 2023 | 22573 | FD3 - FIRE DISTRICT #3 | $7.67 | $7.66 | $0.00 | $0.00 | $15.33 | $0.00 |
| 2023 | 22573 | EMS3 - FIRE DIST #3 EMS | $2.74 | $2.74 | $0.00 | $0.00 | $5.48 | $0.00 |
| 2023 | 22573 | FP - DNR Forest Fire Protection Assmt | $8.50 | $8.50 | $0.00 | $0.00 | $17.00 | $0.00 |
| 2023 | 22573 | FPLCA - DNR Landowner Contingency Assmt | $3.00 | $3.00 | $0.00 | $0.00 | $6.00 | $0.00 |
| 2023 | 22573 | JCCD - JC Conservation District | $2.53 | $2.53 | $0.00 | $0.00 | $5.06 | $0.00 |
| 2023 | 22573 | NWA - Noxious Weed Assessment | $2.15 | $2.15 | $0.00 | $0.00 | $4.30 | $0.00 |
| 2023 | 22573 | WAT - Clean Water District | $12.00 | $12.00 | $0.00 | $0.00 | $24.00 | $0.00 |
| 2023 | 22573 | FP ADMIN - FP ADMIN | $0.50 | $0.00 | $0.00 | $0.00 | $0.50 | $0.00 |
| 2023 | 22573 | TOTAL: | $85.84 | $85.23 | $0.00 | $0.00 | $171.07 | $0.00 |
|
| 2023 | 22573 | $85.84 | $85.23 | $0.00 | $0.00 | $171.07 | $0.00 |
Values
| (+) Improvement Homesite Value: | + | $0 | |
| (+) Improvement Non-Homesite Value: | + | $0 | |
| (+) Land Homesite Value: | + | $0 | |
| (+) Land Non-Homesite Value: | + | $15,750 | |
| (+) Curr Use (HS): | + | $0 | $0 |
| (+) Curr Use (NHS): | + | $0 | $0 |
| | | -------------------------- | |
| (=) Market Value: | = | $15,750 | |
| (–) Productivity Loss: | – | $0 | |
| | | -------------------------- | |
| (=) Subtotal: | = | $15,750 | |
| (+) Senior Appraised Value: | + | $0 | |
| (+) Non-Senior Appraised Value: | + | $15,750 | |
| | | -------------------------- | |
| (=) Total Appraised Value: | = | $15,750 | |
| (–) Senior Exemption Loss: | – | $0 | |
| (–) Exemption Loss: | – | $0 | |
| | | -------------------------- | |
| (=) Taxable Value: | = | $15,750 | |
Taxing Jurisdiction
| Owner: | ROBERT M CARSON | | |
| % Ownership: | 100.0000000000% | | |
| Total Value: | $15,750 | | |
| Tax Area: | 0213 - 1-49F1E1H2L1 |
| CE | COUNTY CURRENT EXPENSE | 0.9034619479 | $15,750 | $15,750 | $14.23 | | |
| CNTYDD | DEVELOPMENTAL DISABILITIES | 0.0052121823 | $15,750 | $15,750 | $0.08 | | |
| CNTYVET | VETERANS RELIEF | 0.0052777810 | $15,750 | $15,750 | $0.08 | | |
| MENTAL | MENTAL HEALTH | 0.0052121823 | $15,750 | $15,750 | $0.08 | | |
| ROADS | COUNTY ROADS | 0.7415066410 | $15,750 | $15,750 | $11.68 | | |
| ROADSCU | COUNTY ROADS TO CUR EXP | 0.0000000000 | $15,750 | $15,750 | $0.00 | | |
| HOSP2CASH | HOSP DIST #2 GENERAL | 0.0536075306 | $15,750 | $15,750 | $0.84 | | |
| SCH49CP | SCHOOL DIST #49 CAP PROJ | 0.6279093905 | $15,750 | $15,750 | $9.89 | | |
| SCH49MO | SCHOOL DIST #49 EP & O | 0.6376483602 | $15,750 | $15,750 | $10.04 | | |
| CONSERVE | CONSERVATION FUTURES | 0.0275621078 | $15,750 | $15,750 | $0.43 | | |
| EMS1 | FIRE DIST #1 EMS | 0.4679948282 | $15,750 | $15,750 | $7.37 | | |
| FD1 | FIRE DIST #1 GENERAL | 1.2171942929 | $15,750 | $15,750 | $19.17 | | |
| LIB1 | LIBRARY DIST #1 GENERAL | 0.2868827388 | $15,750 | $15,750 | $4.52 | | |
| PORTPT | PORT OF PT GENERAL | 0.1134941229 | $15,750 | $15,750 | $1.79 | | |
| PORTPTIDD | PORT OF PT IDD 2019 | 0.2577346692 | $15,750 | $15,750 | $4.06 | | |
| PUD1 | PUD #1 GENERAL | 0.0597888892 | $15,750 | $15,750 | $0.94 | | |
| STATE | STATE SCHOOL PART 1 | 1.4940692947 | $15,750 | $15,750 | $23.53 | | |
| STATE2 | STATE SCHOOL PART 2 | 0.8050170049 | $15,750 | $15,750 | $12.68 | | |
| | Total Tax Rate: | 7.7095739644 | | | | | |
| | | | | Taxes w/Current Exemptions: | $121.41 | | |
| | | | | Taxes w/o Exemptions: | $121.41 | | |
Improvement / Building
Sketch
| No sketches available for this property. |
Property Image
Land
| 1 | 3405-7125L | | 0.0000 | 0.00 | 0.00 | 0.00 | 1.00 | $15,750 | $0 |
Roll Value History
| 2026 | N/A | N/A | N/A | N/A | N/A |
| 2025 | $0 | $15,750 | $0 | $15,750 | $15,750 |
| 2024 | $0 | $15,000 | $0 | $15,000 | $15,000 |
| 2023 | $0 | $15,000 | $0 | $15,000 | $15,000 |
| 2022 | $0 | $15,000 | $0 | $15,000 | $15,000 |
Deed and Sales History
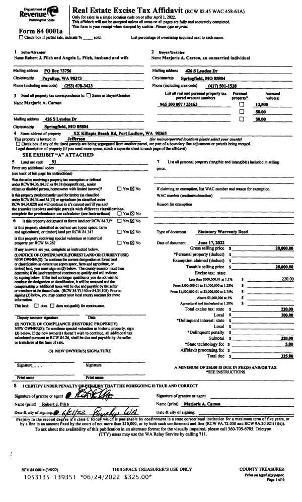
| 1 | 03/08/2023 | QCD | Quit Claim Deed | MARJORIE A CARSON | ROBERT M CARSON | | | | 140939 | |
| 2 | 06/17/2022 | SWD | Statutory Warranty Deed | ANGELA & ROBERT PILCH | MARJORIE A CARSON | | | $20,000.00 | 139351 | |
| 3 | 11/17/2014 | QCD | Quit Claim Deed | CSA EQUITIES LLC | ANGELA & ROBERT PILCH | | | | 122550 | |
| 4 | 12/22/2011 | QCD | Quit Claim Deed | PILCH, ROBERT J JR/ANGELA | CSA EQUITIES LLC | 0 | 0 | $0.00 | 116952 | 0 |
| 5 | 03/28/2008 | SWD | Statutory Warranty Deed | IGLOO INDUSTRIES LLC | PILCH, ROBERT/ANGELA | | | $8,600.00 | 111138 | 0 |
| 6 | 11/08/2005 | SWD | Statutory Warranty Deed | PERSON, STEPHEN | IGLOO INDUSTRIES LLC | 0 | 0 | $3,600.00 | 105502 | 0 |
|   | |
| 7 | 12/23/2004 | QCD | Quit Claim Deed | PERSON, ELMAN T ESTATE OF | PERSON, STEPHEN R | 0 | 0 | $0.00 | 102465 | 0 |
Payout Agreement
| No payout information available.. |