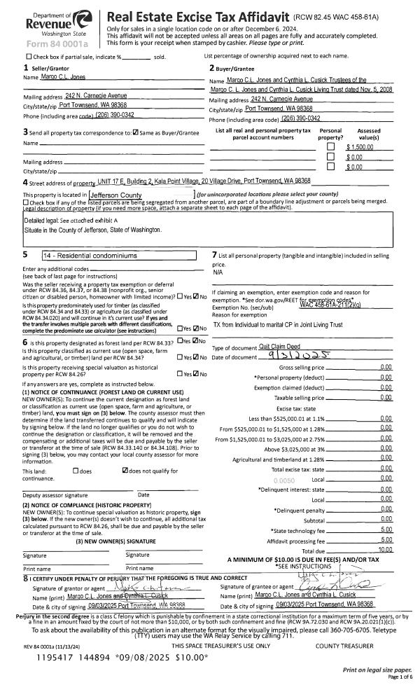
Property
Account |
| Property ID: | 33375 | Abbreviated Legal Description: | KALA POINT VILLAGE UNIT 17 E (UNDIV 1/12 INT) |
| Parcel # / Geo ID: | 965201706 | Agent Code: | |
| Type: | Real | | |
| Tax Area: | 0111 - 1-50F1E1H2L1 | Land Use Code | 13 |
| Open Space: | N | DFL | N |
| Historic Property: | N | Remodel Property: | N |
| Multi-Family Redevelopment: | N | | |
| Township: | 30N | Section: | 26 |
| Range: | 1W |
Location |
| Address: | | Mapsco: | 053/102 |
| Neighborhood: | CYCLE 5 CONDOMINIUMS - SD50 OUTSIDE CITY | Map ID: | |
| Neighborhood CD: | 5900 |
Owner |
| Name: | M JONES & C CUSICK LIVING TRUST | Owner ID: | 113286 |
| Mailing Address: | MARGO C L JONES TRUSTEE CYNTHIA L CUSICK TRUSTEE 242 N CARNEGIE AVE PORT TOWNSEND, WA 98368-2231 | % Ownership: | 100.0000000000% |
| | | Exemptions: | |
Pay Tax Due
There is currently No Amount Due on this property.
Taxes and Assessment Details
Property Tax Information as of
03/12/2026
Click on "Statement Details" to expand or collapse a tax statement.
* Please enter a valid date ** Please enter a valid date *
Statement Details |
| | TOTAL: | $0.00 | $0.00 | $0.00 | $0.00 | $0.00 | $0.00 |
|
| | $0.00 | $0.00 | $0.00 | $0.00 | $0.00 | $0.00 |
Values
| (+) Improvement Homesite Value: | + | $0 | |
| (+) Improvement Non-Homesite Value: | + | $1,000 | |
| (+) Land Homesite Value: | + | $0 | |
| (+) Land Non-Homesite Value: | + | $500 | |
| (+) Curr Use (HS): | + | $0 | $0 |
| (+) Curr Use (NHS): | + | $0 | $0 |
| | | -------------------------- | |
| (=) Market Value: | = | $1,500 | |
| (–) Productivity Loss: | – | $0 | |
| | | -------------------------- | |
| (=) Subtotal: | = | $1,500 | |
| (+) Senior Appraised Value: | + | $0 | |
| (+) Non-Senior Appraised Value: | + | $1,500 | |
| | | -------------------------- | |
| (=) Total Appraised Value: | = | $1,500 | |
| (–) Senior Exemption Loss: | – | $0 | |
| (–) Exemption Loss: | – | $0 | |
| | | -------------------------- | |
| (=) Taxable Value: | = | $1,500 | |
Taxing Jurisdiction
| Owner: | M JONES & C CUSICK LIVING TRUST | | |
| % Ownership: | 100.0000000000% | | |
| Total Value: | $1,500 | | |
| Tax Area: | 0111 - 1-50F1E1H2L1 |
| CE | COUNTY CURRENT EXPENSE | 0.9034619479 | $1,500 | $1,500 | $1.36 | | |
| CNTYDD | DEVELOPMENTAL DISABILITIES | 0.0052121823 | $1,500 | $1,500 | $0.01 | | |
| CNTYVET | VETERANS RELIEF | 0.0052777810 | $1,500 | $1,500 | $0.01 | | |
| MENTAL | MENTAL HEALTH | 0.0052121823 | $1,500 | $1,500 | $0.01 | | |
| ROADS | COUNTY ROADS | 0.7415066410 | $1,500 | $1,500 | $1.11 | | |
| ROADSCU | COUNTY ROADS TO CUR EXP | 0.0000000000 | $1,500 | $1,500 | $0.00 | | |
| HOSP2CASH | HOSP DIST #2 GENERAL | 0.0536075306 | $1,500 | $1,500 | $0.08 | | |
| SCH50BOND | SCHOOL DIST #50 BOND 2016 | 0.5377451389 | $1,500 | $1,500 | $0.81 | | |
| SCH50CP | SCHOOL DIST #50 CAP PROJ | 0.4573475088 | $1,500 | $1,500 | $0.69 | | |
| SCH50MO | SCHOOL DIST #50 EP & O | 0.8262822886 | $1,500 | $1,500 | $1.24 | | |
| CONSERVE | CONSERVATION FUTURES | 0.0275621078 | $1,500 | $1,500 | $0.04 | | |
| EMS1 | FIRE DIST #1 EMS | 0.4679948282 | $1,500 | $1,500 | $0.70 | | |
| FD1 | FIRE DIST #1 GENERAL | 1.2171942929 | $1,500 | $1,500 | $1.83 | | |
| LIB1 | LIBRARY DIST #1 GENERAL | 0.2868827388 | $1,500 | $1,500 | $0.43 | | |
| PORTPT | PORT OF PT GENERAL | 0.1134941229 | $1,500 | $1,500 | $0.17 | | |
| PORTPTIDD | PORT OF PT IDD 2019 | 0.2577346692 | $1,500 | $1,500 | $0.39 | | |
| PUD1 | PUD #1 GENERAL | 0.0597888892 | $1,500 | $1,500 | $0.09 | | |
| STATE | STATE SCHOOL PART 1 | 1.4940692947 | $1,500 | $1,500 | $2.24 | | |
| STATE2 | STATE SCHOOL PART 2 | 0.8050170049 | $1,500 | $1,500 | $1.21 | | |
| | Total Tax Rate: | 8.2653911500 | | | | | |
| | | | | Taxes w/Current Exemptions: | $12.42 | | |
| | | | | Taxes w/o Exemptions: | $12.42 | | |
Improvement / Building
| Improvement #1: | Residential Bldg | State Code: | 14 | 0.0 sqft | Value: | $1,000 |
Sketch
| No sketches available for this property. |
Property Image
Land
| 1 | 9652-4165S | Kala Point Village Timeshares 1/12 Int in Unit | 0.0000 | 0.00 | 0.00 | 0.00 | 1.00 | $500 | $0 |
Roll Value History
| 2026 | N/A | N/A | N/A | N/A | N/A |
| 2025 | $1,000 | $500 | $0 | $1,500 | $1,500 |
| 2024 | $1,000 | $500 | $0 | $1,500 | $1,500 |
| 2023 | $1,000 | $500 | $0 | $1,500 | $1,500 |
| 2022 | $1,000 | $500 | $0 | $1,500 | $1,500 |
Deed and Sales History
| 1 | 09/03/2025 | QCD | Quit Claim Deed | MARGO JONES | M JONES & C CUSICK LIVING TRUST | | | | 144894 | |
| 2 | 09/05/2023 | SWD | Statutory Warranty Deed | EDWARD SWITAJ III & ALLISON SWITAJ | MARGO JONES | | | $850.00 | 141518 | |
| 3 | 02/15/2013 | SWD | Statutory Warranty Deed | JOHN L BREWSTER | EDWARD SWITAJ III & ALLISON SWITAJ | | | $2,000.00 | 118827 | |
| 4 | 08/05/1996 | SWD | Statutory Warranty Deed | LEASURE, ROBERT I & SHERR | BREWSTER, JOHN & ROMA | 0 | 0 | $6,500.00 | 80128 | 0 |
| 5 | 04/28/1993 | SWD | Statutory Warranty Deed | WALKER, D MICHAEL/KAREN D | LEASURE, ROBERT I/SHERRY L | 0 | 0 | $4,000.00 | 71075 | 0 |
Payout Agreement
| No payout information available.. |