Property
Account |
| Property ID: | 33639 | Abbreviated Legal Description: | THE BLUFFS BLDG 3 UNIT 3006 |
| Parcel # / Geo ID: | 965300006 | Agent Code: | |
| Type: | Real | | |
| Tax Area: | 0111 - 1-50F1E1H2L1 | Land Use Code | 14 |
| Open Space: | N | DFL | N |
| Historic Property: | N | Remodel Property: | N |
| Multi-Family Redevelopment: | N | | |
| Township: | 30N | Section: | 26 |
| Range: | 1W |
Location |
| Address: | 50 BLUFFS DR #2 PORT TOWNSEND, WA 98368 | Mapsco: | 040/006 |
| Neighborhood: | CYCLE 5 CONDOMINIUMS - SD50 OUTSIDE CITY | Map ID: | |
| Neighborhood CD: | 5900 |
Owner |
| Name: | JOHN & DEBRA CONNOLLY | Owner ID: | 92944 |
| Mailing Address: | 50 BLUFFS DR #2 PORT TOWNSEND, WA 98368-9517 | % Ownership: | 100.0000000000% |
| | | Exemptions: | |
Pay Tax Due
Select the appropriate checkbox next to the year to be paid. Multiple years may be selected.
*Convenience Fee not included
Taxes and Assessment Details
Property Tax Information as of
03/10/2026
Click on "Statement Details" to expand or collapse a tax statement.
* Please enter a valid date ** Please enter a valid date *
Statement Details |
| 2026 | 22903 | STATE - STATE LEVY (SCHOOL) | $552.02 | $552.00 | $0.00 | $0.00 | $0.00 | $1104.02 |
| 2026 | 22903 | COUNTY - COUNTY LEVIES (CE, DD, VET, MH) | $220.69 | $220.68 | $0.00 | $0.00 | $0.00 | $441.37 |
| 2026 | 22903 | CONSERVE - CONSERVATION FUTURES | $6.62 | $6.62 | $0.00 | $0.00 | $0.00 | $13.24 |
| 2026 | 22903 | COROADS - COUNTY ROADS (ROADS, DIV TO CE) | $178.04 | $178.03 | $0.00 | $0.00 | $0.00 | $356.07 |
| 2026 | 22903 | PORTPT - PORT DISTRICT | $89.13 | $89.13 | $0.00 | $0.00 | $0.00 | $178.26 |
| 2026 | 22903 | PUD1 - PUD #1 | $14.36 | $14.35 | $0.00 | $0.00 | $0.00 | $28.71 |
| 2026 | 22903 | LIB1 - LIBRARY DIST #1 | $68.88 | $68.88 | $0.00 | $0.00 | $0.00 | $137.76 |
| 2026 | 22903 | HD2 - HOSP DIST #2 | $12.87 | $12.87 | $0.00 | $0.00 | $0.00 | $25.74 |
| 2026 | 22903 | SD50 - SCHOOL DIST #50 | $437.31 | $437.31 | $0.00 | $0.00 | $0.00 | $874.62 |
| 2026 | 22903 | FD1 - FIRE DISTRICT #1 | $292.25 | $292.24 | $0.00 | $0.00 | $0.00 | $584.49 |
| 2026 | 22903 | EMS1 - FIRE DIST #1 EMS | $112.37 | $112.36 | $0.00 | $0.00 | $0.00 | $224.73 |
| 2026 | 22903 | JCCD - JC Conservation District | $2.55 | $2.55 | $0.00 | $0.00 | $0.00 | $5.10 |
| 2026 | 22903 | NWA - Noxious Weed Assessment | $2.98 | $2.97 | $0.00 | $0.00 | $0.00 | $5.95 |
| 2026 | 22903 | WAT - Clean Water District | $13.00 | $13.00 | $0.00 | $0.00 | $0.00 | $26.00 |
| 2026 | 22903 | TOTAL: | $2003.07 | $2002.99 | $0.00 | $0.00 | $0.00 | $4006.06 |
|
| 2026 | 22903 | $2003.07 | $2002.99 | $0.00 | $0.00 | $0.00 | $4006.06 |
Statement Details |
| 2025 | 22965 | STATE - STATE LEVY (SCHOOL) | $575.77 | $575.76 | $0.00 | $0.00 | $1151.53 | $0.00 |
| 2025 | 22965 | COUNTY - COUNTY LEVIES (CE, DD, VET, MH) | $226.42 | $226.40 | $0.00 | $0.00 | $452.82 | $0.00 |
| 2025 | 22965 | CONSERVE - CONSERVATION FUTURES | $6.79 | $6.79 | $0.00 | $0.00 | $13.58 | $0.00 |
| 2025 | 22965 | COROADS - COUNTY ROADS (ROADS, DIV TO CE) | $181.39 | $181.39 | $0.00 | $0.00 | $362.78 | $0.00 |
| 2025 | 22965 | PORTPT - PORT DISTRICT | $92.40 | $92.38 | $0.00 | $0.00 | $184.78 | $0.00 |
| 2025 | 22965 | PUD1 - PUD #1 | $14.82 | $14.81 | $0.00 | $0.00 | $29.63 | $0.00 |
| 2025 | 22965 | LIB1 - LIBRARY DIST #1 | $70.18 | $70.18 | $0.00 | $0.00 | $140.36 | $0.00 |
| 2025 | 22965 | HD2 - HOSP DIST #2 | $13.21 | $13.21 | $0.00 | $0.00 | $26.42 | $0.00 |
| 2025 | 22965 | SD50 - SCHOOL DIST #50 | $420.79 | $420.78 | $0.00 | $0.00 | $841.57 | $0.00 |
| 2025 | 22965 | FD1 - FIRE DISTRICT #1 | $298.78 | $298.78 | $0.00 | $0.00 | $597.56 | $0.00 |
| 2025 | 22965 | EMS1 - FIRE DIST #1 EMS | $114.92 | $114.92 | $0.00 | $0.00 | $229.84 | $0.00 |
| 2025 | 22965 | JCCD - JC Conservation District | $2.55 | $2.55 | $0.00 | $0.00 | $5.10 | $0.00 |
| 2025 | 22965 | NWA - Noxious Weed Assessment | $2.15 | $2.15 | $0.00 | $0.00 | $4.30 | $0.00 |
| 2025 | 22965 | WAT - Clean Water District | $13.00 | $13.00 | $0.00 | $0.00 | $26.00 | $0.00 |
| 2025 | 22965 | TOTAL: | $2033.17 | $2033.10 | $0.00 | $0.00 | $4066.27 | $0.00 |
|
| 2025 | 22965 | $2033.17 | $2033.10 | $0.00 | $0.00 | $4066.27 | $0.00 |
Statement Details |
| 2024 | 23010 | STATE - STATE LEVY (SCHOOL) | $513.74 | $513.72 | $0.00 | $0.00 | $1027.46 | $0.00 |
| 2024 | 23010 | COUNTY - COUNTY LEVIES (CE, DD, VET, MH) | $219.83 | $219.82 | $0.00 | $0.00 | $439.65 | $0.00 |
| 2024 | 23010 | CONSERVE - CONSERVATION FUTURES | $6.59 | $6.59 | $0.00 | $0.00 | $13.18 | $0.00 |
| 2024 | 23010 | COROADS - COUNTY ROADS (ROADS, DIV TO CE) | $176.89 | $176.89 | $0.00 | $0.00 | $353.78 | $0.00 |
| 2024 | 23010 | PORTPT - PORT DISTRICT | $90.81 | $90.79 | $0.00 | $0.00 | $181.60 | $0.00 |
| 2024 | 23010 | PUD1 - PUD #1 | $14.44 | $14.44 | $0.00 | $0.00 | $28.88 | $0.00 |
| 2024 | 23010 | LIB1 - LIBRARY DIST #1 | $68.44 | $68.43 | $0.00 | $0.00 | $136.87 | $0.00 |
| 2024 | 23010 | HD2 - HOSP DIST #2 | $12.83 | $12.82 | $0.00 | $0.00 | $25.65 | $0.00 |
| 2024 | 23010 | SD50 - SCHOOL DIST #50 | $415.63 | $415.63 | $0.00 | $0.00 | $831.26 | $0.00 |
| 2024 | 23010 | FD1 - FIRE DISTRICT #1 | $290.67 | $290.66 | $0.00 | $0.00 | $581.33 | $0.00 |
| 2024 | 23010 | EMS1 - FIRE DIST #1 EMS | $111.03 | $111.02 | $0.00 | $0.00 | $222.05 | $0.00 |
| 2024 | 23010 | JCCD - JC Conservation District | $2.55 | $2.55 | $0.00 | $0.00 | $5.10 | $0.00 |
| 2024 | 23010 | NWA - Noxious Weed Assessment | $2.15 | $2.15 | $0.00 | $0.00 | $4.30 | $0.00 |
| 2024 | 23010 | WAT - Clean Water District | $12.50 | $12.50 | $0.00 | $0.00 | $25.00 | $0.00 |
| 2024 | 23010 | TOTAL: | $1938.10 | $1938.01 | $0.00 | $0.00 | $3876.11 | $0.00 |
|
| 2024 | 23010 | $1938.10 | $1938.01 | $0.00 | $0.00 | $3876.11 | $0.00 |
Statement Details |
| 2023 | 23048 | STATE - STATE LEVY (SCHOOL) | $454.11 | $454.09 | $0.00 | $0.00 | $908.20 | $0.00 |
| 2023 | 23048 | COUNTY - COUNTY LEVIES (CE, DD, VET, MH) | $198.17 | $198.14 | $0.00 | $0.00 | $396.31 | $0.00 |
| 2023 | 23048 | CONSERVE - CONSERVATION FUTURES | $5.94 | $5.94 | $0.00 | $0.00 | $11.88 | $0.00 |
| 2023 | 23048 | COROADS - COUNTY ROADS (ROADS, DIV TO CE) | $160.33 | $160.32 | $0.00 | $0.00 | $320.65 | $0.00 |
| 2023 | 23048 | PORTPT - PORT DISTRICT | $83.48 | $83.46 | $0.00 | $0.00 | $166.94 | $0.00 |
| 2023 | 23048 | PUD1 - PUD #1 | $13.14 | $13.13 | $0.00 | $0.00 | $26.27 | $0.00 |
| 2023 | 23048 | LIB1 - LIBRARY DIST #1 | $62.03 | $62.02 | $0.00 | $0.00 | $124.05 | $0.00 |
| 2023 | 23048 | HD2 - HOSP DIST #2 | $11.57 | $11.55 | $0.00 | $0.00 | $23.12 | $0.00 |
| 2023 | 23048 | SD50 - SCHOOL DIST #50 | $360.35 | $360.33 | $0.00 | $0.00 | $720.68 | $0.00 |
| 2023 | 23048 | FD1 - FIRE DISTRICT #1 | $163.24 | $163.24 | $0.00 | $0.00 | $326.48 | $0.00 |
| 2023 | 23048 | EMS1 - FIRE DIST #1 EMS | $69.44 | $69.44 | $0.00 | $0.00 | $138.88 | $0.00 |
| 2023 | 23048 | JCCD - JC Conservation District | $2.55 | $2.55 | $0.00 | $0.00 | $5.10 | $0.00 |
| 2023 | 23048 | NWA - Noxious Weed Assessment | $2.15 | $2.15 | $0.00 | $0.00 | $4.30 | $0.00 |
| 2023 | 23048 | WAT - Clean Water District | $12.00 | $12.00 | $0.00 | $0.00 | $24.00 | $0.00 |
| 2023 | 23048 | TOTAL: | $1598.50 | $1598.36 | $0.00 | $0.00 | $3196.86 | $0.00 |
|
| 2023 | 23048 | $1598.50 | $1598.36 | $0.00 | $0.00 | $3196.86 | $0.00 |
Values
| (+) Improvement Homesite Value: | + | $0 | |
| (+) Improvement Non-Homesite Value: | + | $340,198 | |
| (+) Land Homesite Value: | + | $0 | |
| (+) Land Non-Homesite Value: | + | $140,000 | |
| (+) Curr Use (HS): | + | $0 | $0 |
| (+) Curr Use (NHS): | + | $0 | $0 |
| | | -------------------------- | |
| (=) Market Value: | = | $480,198 | |
| (–) Productivity Loss: | – | $0 | |
| | | -------------------------- | |
| (=) Subtotal: | = | $480,198 | |
| (+) Senior Appraised Value: | + | $0 | |
| (+) Non-Senior Appraised Value: | + | $480,198 | |
| | | -------------------------- | |
| (=) Total Appraised Value: | = | $480,198 | |
| (–) Senior Exemption Loss: | – | $0 | |
| (–) Exemption Loss: | – | $0 | |
| | | -------------------------- | |
| (=) Taxable Value: | = | $480,198 | |
Taxing Jurisdiction
| Owner: | JOHN & DEBRA CONNOLLY | | |
| % Ownership: | 100.0000000000% | | |
| Total Value: | $480,198 | | |
| Tax Area: | 0111 - 1-50F1E1H2L1 |
| CE | COUNTY CURRENT EXPENSE | 0.9034619479 | $480,198 | $480,198 | $433.84 | | |
| CNTYDD | DEVELOPMENTAL DISABILITIES | 0.0052121823 | $480,198 | $480,198 | $2.50 | | |
| CNTYVET | VETERANS RELIEF | 0.0052777810 | $480,198 | $480,198 | $2.53 | | |
| MENTAL | MENTAL HEALTH | 0.0052121823 | $480,198 | $480,198 | $2.50 | | |
| ROADS | COUNTY ROADS | 0.7415066410 | $480,198 | $480,198 | $356.07 | | |
| ROADSCU | COUNTY ROADS TO CUR EXP | 0.0000000000 | $480,198 | $480,198 | $0.00 | | |
| HOSP2CASH | HOSP DIST #2 GENERAL | 0.0536075306 | $480,198 | $480,198 | $25.74 | | |
| SCH50BOND | SCHOOL DIST #50 BOND 2016 | 0.5377451389 | $480,198 | $480,198 | $258.22 | | |
| SCH50CP | SCHOOL DIST #50 CAP PROJ | 0.4573475088 | $480,198 | $480,198 | $219.62 | | |
| SCH50MO | SCHOOL DIST #50 EP & O | 0.8262822886 | $480,198 | $480,198 | $396.78 | | |
| CONSERVE | CONSERVATION FUTURES | 0.0275621078 | $480,198 | $480,198 | $13.24 | | |
| EMS1 | FIRE DIST #1 EMS | 0.4679948282 | $480,198 | $480,198 | $224.73 | | |
| FD1 | FIRE DIST #1 GENERAL | 1.2171942929 | $480,198 | $480,198 | $584.49 | | |
| LIB1 | LIBRARY DIST #1 GENERAL | 0.2868827388 | $480,198 | $480,198 | $137.76 | | |
| PORTPT | PORT OF PT GENERAL | 0.1134941229 | $480,198 | $480,198 | $54.50 | | |
| PORTPTIDD | PORT OF PT IDD 2019 | 0.2577346692 | $480,198 | $480,198 | $123.76 | | |
| PUD1 | PUD #1 GENERAL | 0.0597888892 | $480,198 | $480,198 | $28.71 | | |
| STATE | STATE SCHOOL PART 1 | 1.4940692947 | $480,198 | $480,198 | $717.45 | | |
| STATE2 | STATE SCHOOL PART 2 | 0.8050170049 | $480,198 | $480,198 | $386.57 | | |
| | Total Tax Rate: | 8.2653911500 | | | | | |
| | | | | Taxes w/Current Exemptions: | $3,969.01 | | |
| | | | | Taxes w/o Exemptions: | $3,969.01 | | |
Improvement / Building
| Improvement #1: | Residential Bldg | State Code: | 14 | 1336.0 sqft | Value: | $340,198 |
| Bathrooms (#): | 2 (FULL) | Bedrooms (#): | 2 | | Exterior Wall: | SI/ST | Fireplace: | SIN 1-GOOD | | Floor Construction: | FRAME | Foundation: | CONPR | | Heating/Cooling: | ELBB | Roof Cover: | METAL |
|
| | Type | Description | Class CD | Sub Class CD | Year Built | Area |
| | MA | Main Area | 5 | D1S | 1981 | 1336.0 |
| | HCPOR | House Concrete Porch | 5 | * | 1981 | 100.0 |
| | HDECK | House Deck | 5 | * | 1981 | 144.0 |
| | DATT | Duplex Attached Garage | 5 | D1S | 1981 | 334.0 |
| | ASPHD | Asphalt Drive | 5 | * | 1981 | 180.0 |
Sketch
| No sketches available for this property. |
Property Image
Land
| 1 | 9653-4165S | | 0.0000 | 0.00 | 0.00 | 0.00 | 1.00 | $140,000 | $0 |
Roll Value History
| 2026 | N/A | N/A | N/A | N/A | N/A |
| 2025 | $340,198 | $140,000 | $0 | $480,198 | $480,198 |
| 2024 | $340,198 | $140,000 | $0 | $480,198 | $480,198 |
| 2023 | $304,093 | $140,000 | $0 | $444,093 | $444,093 |
| 2022 | $265,786 | $120,000 | $0 | $385,786 | $385,786 |
Deed and Sales History
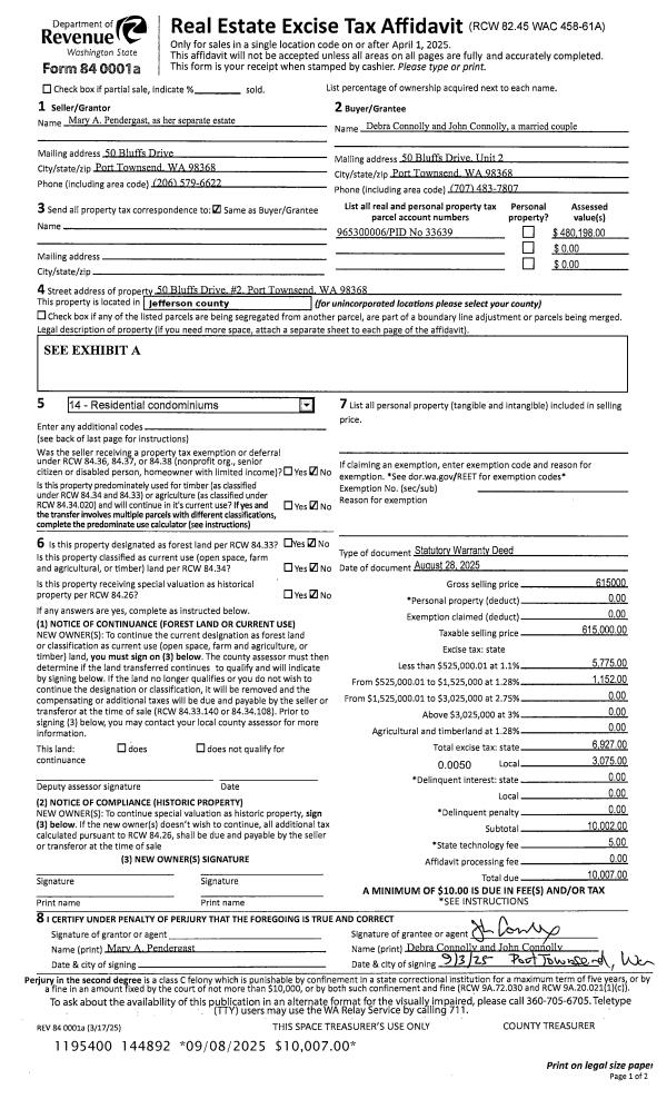
| 1 | 08/28/2025 | SWD | Statutory Warranty Deed | MARY A PENDERGAST | JOHN & DEBRA CONNOLLY | | | $615,000.00 | 144892 | |
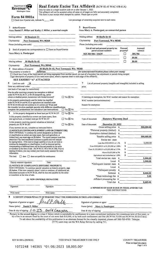
| 2 | 12/29/2022 | SWD | Statutory Warranty Deed | DANIEL P & KATHY J MILLER | MARY A PENDERGAST | | | $500,000.00 | 140365 | |
| 3 | 03/11/2020 | SWD | Statutory Warranty Deed | ELIZABETH S DAVIS | DANIEL P & KATHY J MILLER | | | $315,000.00 | 134124 | |
| 4 | 01/25/2018 | SWD | Statutory Warranty Deed | INGEBORG H WERNER | ELIZABETH S DAVIS | | | $270,000.00 | 129473 | |
| 5 | 10/13/2010 | SWD | Statutory Warranty Deed | WEBER, BETTY G | WERNER, INGEBORG H | 0 | 0 | $230,000.00 | 115053 | 0 |
| 6 | 02/26/2007 | SWD | Statutory Warranty Deed | LEE, JOHN C/MARY JO | WEBER, BETTY G | 0 | 0 | $312,000.00 | 108717 | 0 |
| 7 | 09/19/2005 | SWD | Statutory Warranty Deed | WATKINS, ROBERT I & LEANN | LEE, JOHN C & MARY JO | 0 | 0 | $285,000.00 | 104908 | 0 |
| 8 | 05/04/1999 | SWD | Statutory Warranty Deed | ANDREASEN, CLEO E | WATKINS, ROBERT I/LEANNA | 0 | 0 | $131,000.00 | 86856 | 0 |
Payout Agreement
| No payout information available.. |