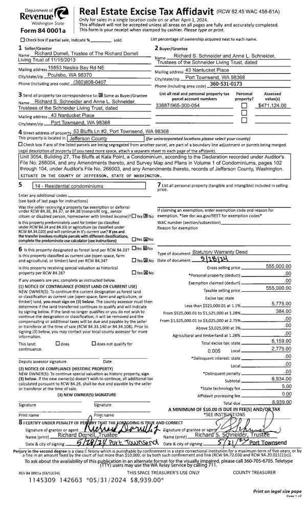
Property
Account |
| Property ID: | 33687 | Abbreviated Legal Description: | THE BLUFFS BLDG 27 UNIT 3054 |
| Parcel # / Geo ID: | 965300054 | Agent Code: | |
| Type: | Real | | |
| Tax Area: | 0111 - 1-50F1E1H2L1 | Land Use Code | 14 |
| Open Space: | N | DFL | N |
| Historic Property: | N | Remodel Property: | N |
| Multi-Family Redevelopment: | N | | |
| Township: | 30N | Section: | 26 |
| Range: | 1W |
Location |
| Address: | 53 BLUFF LN #2 PORT TOWNSEND, WA 98368 | Mapsco: | 040/055 |
| Neighborhood: | CYCLE 5 CONDOMINIUMS - SD50 OUTSIDE CITY | Map ID: | |
| Neighborhood CD: | 5900 |
Owner |
| Name: | SCHNEIDER LIVING TRUST | Owner ID: | 77153 |
| Mailing Address: | RICHARD S & ANNE L SCHNEIDER TRUSTEES 43 NANTUCKET PL PORT TOWNSEND, WA 98368-9533 | % Ownership: | 100.0000000000% |
| | | Exemptions: | |
Pay Tax Due
There is currently No Amount Due on this property.
Taxes and Assessment Details
Property Tax Information as of
03/11/2026
Click on "Statement Details" to expand or collapse a tax statement.
* Please enter a valid date ** Please enter a valid date *
Statement Details |
| | TOTAL: | $0.00 | $0.00 | $0.00 | $0.00 | $0.00 | $0.00 |
|
| | $0.00 | $0.00 | $0.00 | $0.00 | $0.00 | $0.00 |
Values
| (+) Improvement Homesite Value: | + | $0 | |
| (+) Improvement Non-Homesite Value: | + | $394,280 | |
| (+) Land Homesite Value: | + | $0 | |
| (+) Land Non-Homesite Value: | + | $119,000 | |
| (+) Curr Use (HS): | + | $0 | $0 |
| (+) Curr Use (NHS): | + | $0 | $0 |
| | | -------------------------- | |
| (=) Market Value: | = | $513,280 | |
| (–) Productivity Loss: | – | $0 | |
| | | -------------------------- | |
| (=) Subtotal: | = | $513,280 | |
| (+) Senior Appraised Value: | + | $0 | |
| (+) Non-Senior Appraised Value: | + | $513,280 | |
| | | -------------------------- | |
| (=) Total Appraised Value: | = | $513,280 | |
| (–) Senior Exemption Loss: | – | $0 | |
| (–) Exemption Loss: | – | $0 | |
| | | -------------------------- | |
| (=) Taxable Value: | = | $513,280 | |
Taxing Jurisdiction
| Owner: | SCHNEIDER LIVING TRUST | | |
| % Ownership: | 100.0000000000% | | |
| Total Value: | $513,280 | | |
| Tax Area: | 0111 - 1-50F1E1H2L1 |
| CE | COUNTY CURRENT EXPENSE | 0.9034619479 | $513,280 | $513,280 | $463.73 | | |
| CNTYDD | DEVELOPMENTAL DISABILITIES | 0.0052121823 | $513,280 | $513,280 | $2.68 | | |
| CNTYVET | VETERANS RELIEF | 0.0052777810 | $513,280 | $513,280 | $2.71 | | |
| MENTAL | MENTAL HEALTH | 0.0052121823 | $513,280 | $513,280 | $2.68 | | |
| ROADS | COUNTY ROADS | 0.7415066410 | $513,280 | $513,280 | $380.60 | | |
| ROADSCU | COUNTY ROADS TO CUR EXP | 0.0000000000 | $513,280 | $513,280 | $0.00 | | |
| HOSP2CASH | HOSP DIST #2 GENERAL | 0.0536075306 | $513,280 | $513,280 | $27.52 | | |
| SCH50BOND | SCHOOL DIST #50 BOND 2016 | 0.5377451389 | $513,280 | $513,280 | $276.01 | | |
| SCH50CP | SCHOOL DIST #50 CAP PROJ | 0.4573475088 | $513,280 | $513,280 | $234.75 | | |
| SCH50MO | SCHOOL DIST #50 EP & O | 0.8262822886 | $513,280 | $513,280 | $424.11 | | |
| CONSERVE | CONSERVATION FUTURES | 0.0275621078 | $513,280 | $513,280 | $14.15 | | |
| EMS1 | FIRE DIST #1 EMS | 0.4679948282 | $513,280 | $513,280 | $240.21 | | |
| FD1 | FIRE DIST #1 GENERAL | 1.2171942929 | $513,280 | $513,280 | $624.76 | | |
| LIB1 | LIBRARY DIST #1 GENERAL | 0.2868827388 | $513,280 | $513,280 | $147.25 | | |
| PORTPT | PORT OF PT GENERAL | 0.1134941229 | $513,280 | $513,280 | $58.25 | | |
| PORTPTIDD | PORT OF PT IDD 2019 | 0.2577346692 | $513,280 | $513,280 | $132.29 | | |
| PUD1 | PUD #1 GENERAL | 0.0597888892 | $513,280 | $513,280 | $30.69 | | |
| STATE | STATE SCHOOL PART 1 | 1.4940692947 | $513,280 | $513,280 | $766.88 | | |
| STATE2 | STATE SCHOOL PART 2 | 0.8050170049 | $513,280 | $513,280 | $413.20 | | |
| | Total Tax Rate: | 8.2653911500 | | | | | |
| | | | | Taxes w/Current Exemptions: | $4,242.47 | | |
| | | | | Taxes w/o Exemptions: | $4,242.47 | | |
Improvement / Building
| Improvement #1: | Residential Bldg | State Code: | 14 | 1398.0 sqft | Value: | $394,280 |
| Bathrooms (#): | 2 (FULL) | Bedrooms (#): | 1 | | Exterior Wall: | SI/ST | Fireplace: | SIN 1-GOOD | | Floor Construction: | FRAME | Foundation: | CONPR | | Heating/Cooling: | HPUMP | Roof Cover: | METAL |
|
| | Type | Description | Class CD | Sub Class CD | Year Built | Area |
| | MA | Main Area | 5 | D1S | 2008 | 1398.0 |
| | HCPOR | House Concrete Porch | 5 | * | 2008 | 49.0 |
| | HDECK | House Deck | 5 | * | 2008 | 156.0 |
| | DATT | Duplex Attached Garage | 5 | D1S | 2008 | 446.0 |
| | CONCD | Concrete Drive | 5 | * | 2008 | 280.0 |
Sketch
| No sketches available for this property. |
Property Image
Land
| 1 | 9653-4165S | Kala Point Bluffs No/Limited Wtr Views | 0.0000 | 0.00 | 0.00 | 0.00 | 1.00 | $119,000 | $0 |
Roll Value History
| 2026 | N/A | N/A | N/A | N/A | N/A |
| 2025 | $394,280 | $119,000 | $0 | $513,280 | $513,280 |
| 2024 | $394,280 | $119,000 | $0 | $513,280 | $513,280 |
| 2023 | $352,124 | $119,000 | $0 | $471,124 | $471,124 |
| 2022 | $330,138 | $102,000 | $0 | $432,138 | $432,138 |
Deed and Sales History
| 1 | 05/28/2024 | SWD | Statutory Warranty Deed | RICHARD DORRELL LIVING TRUST | SCHNEIDER LIVING TRUST | | | $555,000.00 | 142663 | |
| 2 | 08/17/2017 | PRD | Personal Representatives Deed | JANET ANDERSON | RICHARD DORRELL LIVING TRUST | | | $299,000.00 | 128339 | |
| 3 | 03/20/2010 | SWD | Statutory Warranty Deed | KALA BLUFFS LLC, A WASHIN | ANDERSON, JANET F | 0 | 0 | $240,000.00 | 114154 | 0 |
| 4 | 08/16/2007 | QCD | Quit Claim Deed | KELLEY SHIELDS INC | KALA BLUFFS LLC | 0 | 0 | $0.00 | 109922 | 0 |
| 5 | 05/10/2007 | QCD | Quit Claim Deed | REINA ALASKA LLC | KELLEY SHIELDS INC | | | $15,000.00 | 109231 | 0 |
| 6 | 04/19/2006 | QCD | Quit Claim Deed | KALA POINT DEVELOPMENT CO | REINA ALASKA LLC | | | $2,500.00 | 106428 | 0 |
Payout Agreement
| No payout information available.. |