Property
Account |
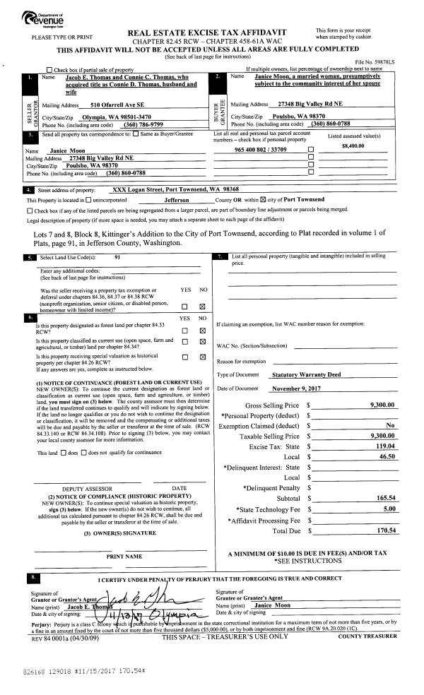
| Property ID: | 33709 | Abbreviated Legal Description: | KITTINGER'S ADDITION BLK 8 LOTS 7 & 8 |
| Parcel # / Geo ID: | 965400802 | Agent Code: | |
| Type: | Real | | |
| Tax Area: | 0110 - C-50F1E1H2 | Land Use Code | 91 |
| Open Space: | N | DFL | N |
| Historic Property: | N | Remodel Property: | N |
| Multi-Family Redevelopment: | N | | |
| Township: | 30N | Section: | 3 |
| Range: | 1W |
Location |
| Address: | | Mapsco: | 070/043 |
| Neighborhood: | CORRIGAN & KITTINGERS PLATS AND ACREAGE (TAX 37 - 39) | Map ID: | |
| Neighborhood CD: | 6070 |
Owner |
| Name: | JANICE M MOON | Owner ID: | 66531 |
| Mailing Address: | 27348 BIG VALLEY RD NE POULSBO, WA 98370-9139 | % Ownership: | 100.0000000000% |
| | | Exemptions: | |
Pay Tax Due
There is currently No Amount Due on this property.
Taxes and Assessment Details
Property Tax Information as of
03/10/2026
Click on "Statement Details" to expand or collapse a tax statement.
* Please enter a valid date ** Please enter a valid date *
Statement Details |
| | TOTAL: | $0.00 | $0.00 | $0.00 | $0.00 | $0.00 | $0.00 |
|
| | $0.00 | $0.00 | $0.00 | $0.00 | $0.00 | $0.00 |
Values
| (+) Improvement Homesite Value: | + | $0 | |
| (+) Improvement Non-Homesite Value: | + | $0 | |
| (+) Land Homesite Value: | + | $0 | |
| (+) Land Non-Homesite Value: | + | $10,500 | |
| (+) Curr Use (HS): | + | $0 | $0 |
| (+) Curr Use (NHS): | + | $0 | $0 |
| | | -------------------------- | |
| (=) Market Value: | = | $10,500 | |
| (–) Productivity Loss: | – | $0 | |
| | | -------------------------- | |
| (=) Subtotal: | = | $10,500 | |
| (+) Senior Appraised Value: | + | $0 | |
| (+) Non-Senior Appraised Value: | + | $10,500 | |
| | | -------------------------- | |
| (=) Total Appraised Value: | = | $10,500 | |
| (–) Senior Exemption Loss: | – | $0 | |
| (–) Exemption Loss: | – | $0 | |
| | | -------------------------- | |
| (=) Taxable Value: | = | $10,500 | |
Taxing Jurisdiction
| Owner: | JANICE M MOON | | |
| % Ownership: | 100.0000000000% | | |
| Total Value: | $10,500 | | |
| Tax Area: | 0110 - C-50F1E1H2 |
| CE | COUNTY CURRENT EXPENSE | 0.9034619479 | $10,500 | $10,500 | $9.49 | | |
| CNTYDD | DEVELOPMENTAL DISABILITIES | 0.0052121823 | $10,500 | $10,500 | $0.05 | | |
| CNTYVET | VETERANS RELIEF | 0.0052777810 | $10,500 | $10,500 | $0.06 | | |
| MENTAL | MENTAL HEALTH | 0.0052121823 | $10,500 | $10,500 | $0.05 | | |
| PTGEN | CITY OF PT GENERAL | 0.8551967795 | $10,500 | $10,500 | $8.98 | | |
| PTLLL | CITY OF PT - LIBRARY LID LIFT | 0.4010114288 | $10,500 | $10,500 | $4.21 | | |
| PTMVBOND | CITY OF PT MV BOND | 0.0484717981 | $10,500 | $10,500 | $0.51 | | |
| HOSP2CASH | HOSP DIST #2 GENERAL | 0.0536075306 | $10,500 | $10,500 | $0.56 | | |
| SCH50BOND | SCHOOL DIST #50 BOND 2016 | 0.5377451389 | $10,500 | $10,500 | $5.65 | | |
| SCH50CP | SCHOOL DIST #50 CAP PROJ | 0.4573475088 | $10,500 | $10,500 | $4.80 | | |
| SCH50MO | SCHOOL DIST #50 EP & O | 0.8262822886 | $10,500 | $10,500 | $8.68 | | |
| CONSERVE | CONSERVATION FUTURES | 0.0275621078 | $10,500 | $10,500 | $0.29 | | |
| EMS1 | FIRE DIST #1 EMS | 0.4679948282 | $10,500 | $10,500 | $4.91 | | |
| FD1 | FIRE DIST #1 GENERAL | 1.2171942929 | $10,500 | $10,500 | $12.78 | | |
| PORTPT | PORT OF PT GENERAL | 0.1134941229 | $10,500 | $10,500 | $1.19 | | |
| PORTPTIDD | PORT OF PT IDD 2019 | 0.2577346692 | $10,500 | $10,500 | $2.71 | | |
| PUD1 | PUD #1 GENERAL | 0.0597888892 | $10,500 | $10,500 | $0.63 | | |
| STATE | STATE SCHOOL PART 1 | 1.4940692947 | $10,500 | $10,500 | $15.69 | | |
| STATE2 | STATE SCHOOL PART 2 | 0.8050170049 | $10,500 | $10,500 | $8.45 | | |
| | Total Tax Rate: | 8.5416817766 | | | | | |
| | | | | Taxes w/Current Exemptions: | $89.69 | | |
| | | | | Taxes w/o Exemptions: | $89.69 | | |
Improvement / Building
Sketch
| No sketches available for this property. |
Property Image
Land
| 1 | 6070-1179L | Terr/No View Lots w/Limited Access | 0.0000 | 0.00 | 0.00 | 0.00 | 2.00 | $10,500 | $0 |
Roll Value History
| 2026 | N/A | N/A | N/A | N/A | N/A |
| 2025 | $0 | $10,500 | $0 | $10,500 | $10,500 |
| 2024 | $0 | $10,500 | $0 | $10,500 | $10,500 |
| 2023 | $0 | $10,000 | $0 | $10,000 | $10,000 |
| 2022 | $0 | $10,000 | $0 | $10,000 | $10,000 |
Deed and Sales History
| 1 | 11/09/2017 | SWD | Statutory Warranty Deed | JACOB E THOMAS | JANICE M MOON | | | $9,300.00 | 129018 | |
Payout Agreement
| No payout information available.. |