Property
Account |
| Property ID: | 33721 | Abbreviated Legal Description: | KALA HEIGHTS UNIT 4011 PHASE 1 BLDG 6 |
| Parcel # / Geo ID: | 965500011 | Agent Code: | |
| Type: | Real | | |
| Tax Area: | 0111 - 1-50F1E1H2L1 | Land Use Code | 14 |
| Open Space: | N | DFL | N |
| Historic Property: | N | Remodel Property: | N |
| Multi-Family Redevelopment: | N | | |
| Township: | 30N | Section: | 27 |
| Range: | 1W |
Location |
| Address: | 11 SEAVIEW CT #2 PORT TOWNSEND, WA 98368 | Mapsco: | 041/011 |
| Neighborhood: | CYCLE 5 CONDOMINIUMS - SD50 OUTSIDE CITY | Map ID: | |
| Neighborhood CD: | 5900 |
Owner |
| Name: | D RYMPH & L LITTLE LIVING TRUST | Owner ID: | 26393 |
| Mailing Address: | DAVID B RYMPH TRUSTEE LINDA F LITTLE TRUSTEE 11 SEAVIEW PORT #2 PORT TOWNSEND, WA 98368 | % Ownership: | 100.0000000000% |
| | | Exemptions: | |
Pay Tax Due
Select the appropriate checkbox next to the year to be paid. Multiple years may be selected.
*Convenience Fee not included
Taxes and Assessment Details
Property Tax Information as of
03/11/2026
Click on "Statement Details" to expand or collapse a tax statement.
* Please enter a valid date ** Please enter a valid date *
Statement Details |
| 2026 | 22984 | STATE - STATE LEVY (SCHOOL) | $712.67 | $712.67 | $0.00 | $0.00 | $0.00 | $1425.34 |
| 2026 | 22984 | COUNTY - COUNTY LEVIES (CE, DD, VET, MH) | $284.94 | $284.90 | $0.00 | $0.00 | $0.00 | $569.84 |
| 2026 | 22984 | CONSERVE - CONSERVATION FUTURES | $8.55 | $8.54 | $0.00 | $0.00 | $0.00 | $17.09 |
| 2026 | 22984 | COROADS - COUNTY ROADS (ROADS, DIV TO CE) | $229.85 | $229.85 | $0.00 | $0.00 | $0.00 | $459.70 |
| 2026 | 22984 | PORTPT - PORT DISTRICT | $115.07 | $115.07 | $0.00 | $0.00 | $0.00 | $230.14 |
| 2026 | 22984 | PUD1 - PUD #1 | $18.54 | $18.53 | $0.00 | $0.00 | $0.00 | $37.07 |
| 2026 | 22984 | LIB1 - LIBRARY DIST #1 | $88.93 | $88.92 | $0.00 | $0.00 | $0.00 | $177.85 |
| 2026 | 22984 | HD2 - HOSP DIST #2 | $16.62 | $16.61 | $0.00 | $0.00 | $0.00 | $33.23 |
| 2026 | 22984 | SD50 - SCHOOL DIST #50 | $564.59 | $564.59 | $0.00 | $0.00 | $0.00 | $1129.18 |
| 2026 | 22984 | FD1 - FIRE DISTRICT #1 | $377.31 | $377.30 | $0.00 | $0.00 | $0.00 | $754.61 |
| 2026 | 22984 | EMS1 - FIRE DIST #1 EMS | $145.07 | $145.07 | $0.00 | $0.00 | $0.00 | $290.14 |
| 2026 | 22984 | JCCD - JC Conservation District | $2.55 | $2.55 | $0.00 | $0.00 | $0.00 | $5.10 |
| 2026 | 22984 | NWA - Noxious Weed Assessment | $2.98 | $2.97 | $0.00 | $0.00 | $0.00 | $5.95 |
| 2026 | 22984 | WAT - Clean Water District | $13.00 | $13.00 | $0.00 | $0.00 | $0.00 | $26.00 |
| 2026 | 22984 | TOTAL: | $2580.67 | $2580.57 | $0.00 | $0.00 | $0.00 | $5161.24 |
|
| 2026 | 22984 | $2580.67 | $2580.57 | $0.00 | $0.00 | $0.00 | $5161.24 |
Statement Details |
| 2025 | 23046 | STATE - STATE LEVY (SCHOOL) | $729.56 | $729.54 | $0.00 | $0.00 | $1459.10 | $0.00 |
| 2025 | 23046 | COUNTY - COUNTY LEVIES (CE, DD, VET, MH) | $286.91 | $286.88 | $0.00 | $0.00 | $573.79 | $0.00 |
| 2025 | 23046 | CONSERVE - CONSERVATION FUTURES | $8.61 | $8.60 | $0.00 | $0.00 | $17.21 | $0.00 |
| 2025 | 23046 | COROADS - COUNTY ROADS (ROADS, DIV TO CE) | $229.85 | $229.84 | $0.00 | $0.00 | $459.69 | $0.00 |
| 2025 | 23046 | PORTPT - PORT DISTRICT | $117.08 | $117.06 | $0.00 | $0.00 | $234.14 | $0.00 |
| 2025 | 23046 | PUD1 - PUD #1 | $18.77 | $18.77 | $0.00 | $0.00 | $37.54 | $0.00 |
| 2025 | 23046 | LIB1 - LIBRARY DIST #1 | $88.93 | $88.92 | $0.00 | $0.00 | $177.85 | $0.00 |
| 2025 | 23046 | HD2 - HOSP DIST #2 | $16.74 | $16.74 | $0.00 | $0.00 | $33.48 | $0.00 |
| 2025 | 23046 | SD50 - SCHOOL DIST #50 | $533.19 | $533.16 | $0.00 | $0.00 | $1066.35 | $0.00 |
| 2025 | 23046 | FD1 - FIRE DISTRICT #1 | $378.59 | $378.58 | $0.00 | $0.00 | $757.17 | $0.00 |
| 2025 | 23046 | EMS1 - FIRE DIST #1 EMS | $145.62 | $145.61 | $0.00 | $0.00 | $291.23 | $0.00 |
| 2025 | 23046 | JCCD - JC Conservation District | $2.55 | $2.55 | $0.00 | $0.00 | $5.10 | $0.00 |
| 2025 | 23046 | NWA - Noxious Weed Assessment | $2.15 | $2.15 | $0.00 | $0.00 | $4.30 | $0.00 |
| 2025 | 23046 | WAT - Clean Water District | $13.00 | $13.00 | $0.00 | $0.00 | $26.00 | $0.00 |
| 2025 | 23046 | TOTAL: | $2571.55 | $2571.40 | $0.00 | $0.00 | $5142.95 | $0.00 |
|
| 2025 | 23046 | $2571.55 | $2571.40 | $0.00 | $0.00 | $5142.95 | $0.00 |
Statement Details |
| 2024 | 23091 | STATE - STATE LEVY (SCHOOL) | $641.48 | $641.47 | $0.00 | $0.00 | $1282.95 | $0.00 |
| 2024 | 23091 | COUNTY - COUNTY LEVIES (CE, DD, VET, MH) | $274.50 | $274.49 | $0.00 | $0.00 | $548.99 | $0.00 |
| 2024 | 23091 | CONSERVE - CONSERVATION FUTURES | $8.23 | $8.23 | $0.00 | $0.00 | $16.46 | $0.00 |
| 2024 | 23091 | COROADS - COUNTY ROADS (ROADS, DIV TO CE) | $220.89 | $220.87 | $0.00 | $0.00 | $441.76 | $0.00 |
| 2024 | 23091 | PORTPT - PORT DISTRICT | $113.39 | $113.37 | $0.00 | $0.00 | $226.76 | $0.00 |
| 2024 | 23091 | PUD1 - PUD #1 | $18.03 | $18.03 | $0.00 | $0.00 | $36.06 | $0.00 |
| 2024 | 23091 | LIB1 - LIBRARY DIST #1 | $85.46 | $85.45 | $0.00 | $0.00 | $170.91 | $0.00 |
| 2024 | 23091 | HD2 - HOSP DIST #2 | $16.02 | $16.01 | $0.00 | $0.00 | $32.03 | $0.00 |
| 2024 | 23091 | SD50 - SCHOOL DIST #50 | $519.00 | $518.97 | $0.00 | $0.00 | $1037.97 | $0.00 |
| 2024 | 23091 | FD1 - FIRE DISTRICT #1 | $362.95 | $362.94 | $0.00 | $0.00 | $725.89 | $0.00 |
| 2024 | 23091 | EMS1 - FIRE DIST #1 EMS | $138.63 | $138.63 | $0.00 | $0.00 | $277.26 | $0.00 |
| 2024 | 23091 | JCCD - JC Conservation District | $2.55 | $2.55 | $0.00 | $0.00 | $5.10 | $0.00 |
| 2024 | 23091 | NWA - Noxious Weed Assessment | $2.15 | $2.15 | $0.00 | $0.00 | $4.30 | $0.00 |
| 2024 | 23091 | WAT - Clean Water District | $12.50 | $12.50 | $0.00 | $0.00 | $25.00 | $0.00 |
| 2024 | 23091 | TOTAL: | $2415.78 | $2415.66 | $0.00 | $0.00 | $4831.44 | $0.00 |
|
| 2024 | 23091 | $2415.78 | $2415.66 | $0.00 | $0.00 | $4831.44 | $0.00 |
Statement Details |
| 2023 | 23129 | STATE - STATE LEVY (SCHOOL) | $609.39 | $609.38 | $0.00 | $0.00 | $1218.77 | $0.00 |
| 2023 | 23129 | COUNTY - COUNTY LEVIES (CE, DD, VET, MH) | $265.92 | $265.92 | $0.00 | $0.00 | $531.84 | $0.00 |
| 2023 | 23129 | CONSERVE - CONSERVATION FUTURES | $7.98 | $7.97 | $0.00 | $0.00 | $15.95 | $0.00 |
| 2023 | 23129 | COROADS - COUNTY ROADS (ROADS, DIV TO CE) | $215.15 | $215.14 | $0.00 | $0.00 | $430.29 | $0.00 |
| 2023 | 23129 | PORTPT - PORT DISTRICT | $112.03 | $112.01 | $0.00 | $0.00 | $224.04 | $0.00 |
| 2023 | 23129 | PUD1 - PUD #1 | $17.63 | $17.62 | $0.00 | $0.00 | $35.25 | $0.00 |
| 2023 | 23129 | LIB1 - LIBRARY DIST #1 | $83.24 | $83.24 | $0.00 | $0.00 | $166.48 | $0.00 |
| 2023 | 23129 | HD2 - HOSP DIST #2 | $15.53 | $15.51 | $0.00 | $0.00 | $31.04 | $0.00 |
| 2023 | 23129 | SD50 - SCHOOL DIST #50 | $483.56 | $483.55 | $0.00 | $0.00 | $967.11 | $0.00 |
| 2023 | 23129 | FD1 - FIRE DISTRICT #1 | $219.06 | $219.06 | $0.00 | $0.00 | $438.12 | $0.00 |
| 2023 | 23129 | EMS1 - FIRE DIST #1 EMS | $93.19 | $93.18 | $0.00 | $0.00 | $186.37 | $0.00 |
| 2023 | 23129 | JCCD - JC Conservation District | $2.55 | $2.55 | $0.00 | $0.00 | $5.10 | $0.00 |
| 2023 | 23129 | NWA - Noxious Weed Assessment | $2.15 | $2.15 | $0.00 | $0.00 | $4.30 | $0.00 |
| 2023 | 23129 | WAT - Clean Water District | $12.00 | $12.00 | $0.00 | $0.00 | $24.00 | $0.00 |
| 2023 | 23129 | TOTAL: | $2139.38 | $2139.28 | $0.00 | $0.00 | $4278.66 | $0.00 |
|
| 2023 | 23129 | $2139.38 | $2139.28 | $0.00 | $0.00 | $4278.66 | $0.00 |
Values
| (+) Improvement Homesite Value: | + | $0 | |
| (+) Improvement Non-Homesite Value: | + | $389,957 | |
| (+) Land Homesite Value: | + | $0 | |
| (+) Land Non-Homesite Value: | + | $230,000 | |
| (+) Curr Use (HS): | + | $0 | $0 |
| (+) Curr Use (NHS): | + | $0 | $0 |
| | | -------------------------- | |
| (=) Market Value: | = | $619,957 | |
| (–) Productivity Loss: | – | $0 | |
| | | -------------------------- | |
| (=) Subtotal: | = | $619,957 | |
| (+) Senior Appraised Value: | + | $0 | |
| (+) Non-Senior Appraised Value: | + | $619,957 | |
| | | -------------------------- | |
| (=) Total Appraised Value: | = | $619,957 | |
| (–) Senior Exemption Loss: | – | $0 | |
| (–) Exemption Loss: | – | $0 | |
| | | -------------------------- | |
| (=) Taxable Value: | = | $619,957 | |
Taxing Jurisdiction
| Owner: | D RYMPH & L LITTLE LIVING TRUST | | |
| % Ownership: | 100.0000000000% | | |
| Total Value: | $619,957 | | |
| Tax Area: | 0111 - 1-50F1E1H2L1 |
| CE | COUNTY CURRENT EXPENSE | 0.9034619479 | $619,957 | $619,957 | $560.11 | | |
| CNTYDD | DEVELOPMENTAL DISABILITIES | 0.0052121823 | $619,957 | $619,957 | $3.23 | | |
| CNTYVET | VETERANS RELIEF | 0.0052777810 | $619,957 | $619,957 | $3.27 | | |
| MENTAL | MENTAL HEALTH | 0.0052121823 | $619,957 | $619,957 | $3.23 | | |
| ROADS | COUNTY ROADS | 0.7415066410 | $619,957 | $619,957 | $459.70 | | |
| ROADSCU | COUNTY ROADS TO CUR EXP | 0.0000000000 | $619,957 | $619,957 | $0.00 | | |
| HOSP2CASH | HOSP DIST #2 GENERAL | 0.0536075306 | $619,957 | $619,957 | $33.23 | | |
| SCH50BOND | SCHOOL DIST #50 BOND 2016 | 0.5377451389 | $619,957 | $619,957 | $333.38 | | |
| SCH50CP | SCHOOL DIST #50 CAP PROJ | 0.4573475088 | $619,957 | $619,957 | $283.54 | | |
| SCH50MO | SCHOOL DIST #50 EP & O | 0.8262822886 | $619,957 | $619,957 | $512.26 | | |
| CONSERVE | CONSERVATION FUTURES | 0.0275621078 | $619,957 | $619,957 | $17.09 | | |
| EMS1 | FIRE DIST #1 EMS | 0.4679948282 | $619,957 | $619,957 | $290.14 | | |
| FD1 | FIRE DIST #1 GENERAL | 1.2171942929 | $619,957 | $619,957 | $754.61 | | |
| LIB1 | LIBRARY DIST #1 GENERAL | 0.2868827388 | $619,957 | $619,957 | $177.85 | | |
| PORTPT | PORT OF PT GENERAL | 0.1134941229 | $619,957 | $619,957 | $70.36 | | |
| PORTPTIDD | PORT OF PT IDD 2019 | 0.2577346692 | $619,957 | $619,957 | $159.78 | | |
| PUD1 | PUD #1 GENERAL | 0.0597888892 | $619,957 | $619,957 | $37.07 | | |
| STATE | STATE SCHOOL PART 1 | 1.4940692947 | $619,957 | $619,957 | $926.26 | | |
| STATE2 | STATE SCHOOL PART 2 | 0.8050170049 | $619,957 | $619,957 | $499.08 | | |
| | Total Tax Rate: | 8.2653911500 | | | | | |
| | | | | Taxes w/Current Exemptions: | $5,124.19 | | |
| | | | | Taxes w/o Exemptions: | $5,124.19 | | |
Improvement / Building
| Improvement #1: | Residential Bldg | State Code: | 14 | 1556.0 sqft | Value: | $389,957 |
| Bathrooms (#): | 2 (FULL) | Bedrooms (#): | 1 | | Exterior Wall: | SI/ST | Fireplace: | SIN 1-GOOD | | Floor Construction: | FRAME | Foundation: | CONPR | | Heating/Cooling: | HPUMP | Inside Verify: | YES-FIX | | Roof Cover: | METAL |   |   |
|
| | Type | Description | Class CD | Sub Class CD | Year Built | Area |
| | MA | Main Area | 5 | D1S | 1990 | 1556.0 |
| | PATIO | House Patio | 5 | * | 1990 | 40.0 |
| | HWPOR | House Wood Porch | 5 | * | 1990 | 95.0 |
| | HDECK | House Deck | 5 | * | 1990 | 324.0 |
| | DATT | Duplex Attached Garage | 5 | D1S | 1990 | 480.0 |
| | ASPHD | Asphalt Drive | 5 | * | 1990 | 800.0 |
Sketch
| No sketches available for this property. |
Property Image
Land
| 1 | 9655-4145S | | 0.0000 | 0.00 | 0.00 | 0.00 | 1.00 | $230,000 | $0 |
Roll Value History
| 2026 | N/A | N/A | N/A | N/A | N/A |
| 2025 | $389,957 | $230,000 | $0 | $619,957 | $619,957 |
| 2024 | $389,957 | $218,500 | $0 | $608,457 | $608,457 |
| 2023 | $347,529 | $207,000 | $0 | $554,529 | $554,529 |
| 2022 | $310,708 | $207,000 | $0 | $517,708 | $517,708 |
Deed and Sales History
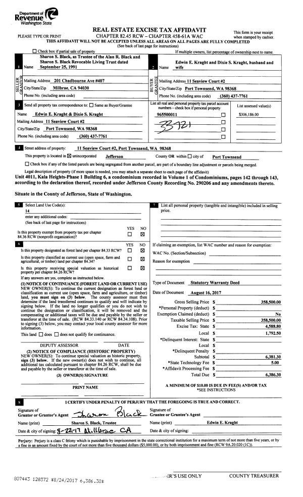
| 1 | 03/04/2019 | SWD | Statutory Warranty Deed | EDWIN E & DIXIE S KRAGHT | D RYMPH & L LITTLE LIVING TRUST | | | $440,000.00 | 131923 | |
| 2 | 08/16/2017 | SWD | Statutory Warranty Deed | ALAN & SHARON BLACK REVOCABLE LIVING TRUST | EDWIN E & DIXIE S KRAGHT | | | $358,500.00 | 128372 | |
Payout Agreement
| No payout information available.. |