Property
Account |
| Property ID: | 33758 | Abbreviated Legal Description: | KUHN'S RANCH BLK H 2 & 4(E1/2) |
| Parcel # / Geo ID: | 965700603 | Agent Code: | |
| Type: | Real | | |
| Tax Area: | 0110 - C-50F1E1H2 | Land Use Code | 11 |
| Open Space: | N | DFL | N |
| Historic Property: | N | Remodel Property: | N |
| Multi-Family Redevelopment: | N | | |
| Township: | 30N | Section: | 2 |
| Range: | 1W |
Location |
| Address: | 1526 BLAINE ST PORT TOWNSEND, WA 98368 | Mapsco: | 071/069 |
| Neighborhood: | KUHN'S RANCH AND HIGH SCHOOL | Map ID: | |
| Neighborhood CD: | 6350 |
Owner |
| Name: | LAURA MASON | Owner ID: | 109909 |
| Mailing Address: | KEITH FLYCKT 1022 57TH ST PORT TOWNSEND, WA 98368-1223 | % Ownership: | 100.0000000000% |
| | | Exemptions: | |
Pay Tax Due
Select the appropriate checkbox next to the year to be paid. Multiple years may be selected.
*Convenience Fee not included
Taxes and Assessment Details
Property Tax Information as of
03/11/2026
Click on "Statement Details" to expand or collapse a tax statement.
* Please enter a valid date ** Please enter a valid date *
Statement Details |
| 2026 | 23020 | STATE - STATE LEVY (SCHOOL) | $917.28 | $917.27 | $0.00 | $0.00 | $0.00 | $1834.55 |
| 2026 | 23020 | COUNTY - COUNTY LEVIES (CE, DD, VET, MH) | $366.73 | $366.72 | $0.00 | $0.00 | $0.00 | $733.45 |
| 2026 | 23020 | CONSERVE - CONSERVATION FUTURES | $11.00 | $10.99 | $0.00 | $0.00 | $0.00 | $21.99 |
| 2026 | 23020 | CITYPT - CITY OF PT | $520.54 | $520.53 | $0.00 | $0.00 | $0.00 | $1041.07 |
| 2026 | 23020 | PORTPT - PORT DISTRICT | $148.11 | $148.11 | $0.00 | $0.00 | $0.00 | $296.22 |
| 2026 | 23020 | PUD1 - PUD #1 | $23.86 | $23.85 | $0.00 | $0.00 | $0.00 | $47.71 |
| 2026 | 23020 | HD2 - HOSP DIST #2 | $21.39 | $21.39 | $0.00 | $0.00 | $0.00 | $42.78 |
| 2026 | 23020 | SD50 - SCHOOL DIST #50 | $726.69 | $726.67 | $0.00 | $0.00 | $0.00 | $1453.36 |
| 2026 | 23020 | FD1 - FIRE DISTRICT #1 | $485.63 | $485.63 | $0.00 | $0.00 | $0.00 | $971.26 |
| 2026 | 23020 | EMS1 - FIRE DIST #1 EMS | $186.72 | $186.72 | $0.00 | $0.00 | $0.00 | $373.44 |
| 2026 | 23020 | JCCD - JC Conservation District | $2.55 | $2.55 | $0.00 | $0.00 | $0.00 | $5.10 |
| 2026 | 23020 | NWA - Noxious Weed Assessment | $2.98 | $2.97 | $0.00 | $0.00 | $0.00 | $5.95 |
| 2026 | 23020 | TOTAL: | $3413.48 | $3413.40 | $0.00 | $0.00 | $0.00 | $6826.88 |
|
| 2026 | 23020 | $3413.48 | $3413.40 | $0.00 | $0.00 | $0.00 | $6826.88 |
Statement Details |
| 2025 | 23082 | STATE - STATE LEVY (SCHOOL) | $720.51 | $720.51 | $0.00 | $0.00 | $1441.02 | $0.00 |
| 2025 | 23082 | COUNTY - COUNTY LEVIES (CE, DD, VET, MH) | $283.36 | $283.32 | $0.00 | $0.00 | $566.68 | $0.00 |
| 2025 | 23082 | CONSERVE - CONSERVATION FUTURES | $8.50 | $8.49 | $0.00 | $0.00 | $16.99 | $0.00 |
| 2025 | 23082 | CITYPT - CITY OF PT | $408.61 | $408.60 | $0.00 | $0.00 | $817.21 | $0.00 |
| 2025 | 23082 | PORTPT - PORT DISTRICT | $115.62 | $115.61 | $0.00 | $0.00 | $231.23 | $0.00 |
| 2025 | 23082 | PUD1 - PUD #1 | $18.54 | $18.54 | $0.00 | $0.00 | $37.08 | $0.00 |
| 2025 | 23082 | HD2 - HOSP DIST #2 | $16.53 | $16.53 | $0.00 | $0.00 | $33.06 | $0.00 |
| 2025 | 23082 | SD50 - SCHOOL DIST #50 | $526.58 | $526.56 | $0.00 | $0.00 | $1053.14 | $0.00 |
| 2025 | 23082 | FD1 - FIRE DISTRICT #1 | $373.90 | $373.89 | $0.00 | $0.00 | $747.79 | $0.00 |
| 2025 | 23082 | EMS1 - FIRE DIST #1 EMS | $143.81 | $143.81 | $0.00 | $0.00 | $287.62 | $0.00 |
| 2025 | 23082 | JCCD - JC Conservation District | $2.55 | $2.55 | $0.00 | $0.00 | $5.10 | $0.00 |
| 2025 | 23082 | NWA - Noxious Weed Assessment | $2.15 | $2.15 | $0.00 | $0.00 | $4.30 | $0.00 |
| 2025 | 23082 | TOTAL: | $2620.66 | $2620.56 | $0.00 | $0.00 | $5241.22 | $0.00 |
|
| 2025 | 23082 | $2620.66 | $2620.56 | $0.00 | $0.00 | $5241.22 | $0.00 |
Statement Details |
| 2024 | 23127 | STATE - STATE LEVY (SCHOOL) | $659.67 | $659.66 | $0.00 | $0.00 | $1319.33 | $0.00 |
| 2024 | 23127 | COUNTY - COUNTY LEVIES (CE, DD, VET, MH) | $282.30 | $282.26 | $0.00 | $0.00 | $564.56 | $0.00 |
| 2024 | 23127 | CONSERVE - CONSERVATION FUTURES | $8.47 | $8.46 | $0.00 | $0.00 | $16.93 | $0.00 |
| 2024 | 23127 | CITYPT - CITY OF PT | $403.34 | $403.33 | $0.00 | $0.00 | $806.67 | $0.00 |
| 2024 | 23127 | PORTPT - PORT DISTRICT | $116.60 | $116.59 | $0.00 | $0.00 | $233.19 | $0.00 |
| 2024 | 23127 | PUD1 - PUD #1 | $18.54 | $18.54 | $0.00 | $0.00 | $37.08 | $0.00 |
| 2024 | 23127 | HD2 - HOSP DIST #2 | $16.47 | $16.47 | $0.00 | $0.00 | $32.94 | $0.00 |
| 2024 | 23127 | SD50 - SCHOOL DIST #50 | $533.71 | $533.69 | $0.00 | $0.00 | $1067.40 | $0.00 |
| 2024 | 23127 | FD1 - FIRE DISTRICT #1 | $373.24 | $373.24 | $0.00 | $0.00 | $746.48 | $0.00 |
| 2024 | 23127 | EMS1 - FIRE DIST #1 EMS | $142.57 | $142.56 | $0.00 | $0.00 | $285.13 | $0.00 |
| 2024 | 23127 | JCCD - JC Conservation District | $2.55 | $2.55 | $0.00 | $0.00 | $5.10 | $0.00 |
| 2024 | 23127 | NWA - Noxious Weed Assessment | $2.15 | $2.15 | $0.00 | $0.00 | $4.30 | $0.00 |
| 2024 | 23127 | TOTAL: | $2559.61 | $2559.50 | $0.00 | $0.00 | $5119.11 | $0.00 |
|
| 2024 | 23127 | $2559.61 | $2559.50 | $0.00 | $0.00 | $5119.11 | $0.00 |
Statement Details |
| 2023 | 23165 | STATE - STATE LEVY (SCHOOL) | $619.34 | $619.34 | $0.00 | $0.00 | $1238.68 | $0.00 |
| 2023 | 23165 | COUNTY - COUNTY LEVIES (CE, DD, VET, MH) | $270.28 | $270.25 | $0.00 | $0.00 | $540.53 | $0.00 |
| 2023 | 23165 | CONSERVE - CONSERVATION FUTURES | $8.11 | $8.10 | $0.00 | $0.00 | $16.21 | $0.00 |
| 2023 | 23165 | CITYPT - CITY OF PT | $381.98 | $381.96 | $0.00 | $0.00 | $763.94 | $0.00 |
| 2023 | 23165 | PORTPT - PORT DISTRICT | $113.85 | $113.85 | $0.00 | $0.00 | $227.70 | $0.00 |
| 2023 | 23165 | PUD1 - PUD #1 | $17.92 | $17.91 | $0.00 | $0.00 | $35.83 | $0.00 |
| 2023 | 23165 | HD2 - HOSP DIST #2 | $15.78 | $15.76 | $0.00 | $0.00 | $31.54 | $0.00 |
| 2023 | 23165 | SD50 - SCHOOL DIST #50 | $491.47 | $491.45 | $0.00 | $0.00 | $982.92 | $0.00 |
| 2023 | 23165 | FD1 - FIRE DISTRICT #1 | $222.64 | $222.64 | $0.00 | $0.00 | $445.28 | $0.00 |
| 2023 | 23165 | EMS1 - FIRE DIST #1 EMS | $94.71 | $94.71 | $0.00 | $0.00 | $189.42 | $0.00 |
| 2023 | 23165 | JCCD - JC Conservation District | $2.55 | $2.55 | $0.00 | $0.00 | $5.10 | $0.00 |
| 2023 | 23165 | NWA - Noxious Weed Assessment | $2.15 | $2.15 | $0.00 | $0.00 | $4.30 | $0.00 |
| 2023 | 23165 | TOTAL: | $2240.78 | $2240.67 | $0.00 | $0.00 | $4481.45 | $0.00 |
|
| 2023 | 23165 | $2240.78 | $2240.67 | $0.00 | $0.00 | $4481.45 | $0.00 |
Values
| (+) Improvement Homesite Value: | + | $0 | |
| (+) Improvement Non-Homesite Value: | + | $547,950 | |
| (+) Land Homesite Value: | + | $0 | |
| (+) Land Non-Homesite Value: | + | $250,000 | |
| (+) Curr Use (HS): | + | $0 | $0 |
| (+) Curr Use (NHS): | + | $0 | $0 |
| | | -------------------------- | |
| (=) Market Value: | = | $797,950 | |
| (–) Productivity Loss: | – | $0 | |
| | | -------------------------- | |
| (=) Subtotal: | = | $797,950 | |
| (+) Senior Appraised Value: | + | $0 | |
| (+) Non-Senior Appraised Value: | + | $797,950 | |
| | | -------------------------- | |
| (=) Total Appraised Value: | = | $797,950 | |
| (–) Senior Exemption Loss: | – | $0 | |
| (–) Exemption Loss: | – | $0 | |
| | | -------------------------- | |
| (=) Taxable Value: | = | $797,950 | |
Taxing Jurisdiction
| Owner: | LAURA MASON | | |
| % Ownership: | 100.0000000000% | | |
| Total Value: | $797,950 | | |
| Tax Area: | 0110 - C-50F1E1H2 |
| CE | COUNTY CURRENT EXPENSE | 0.9034619479 | $797,950 | $797,950 | $720.92 | | |
| CNTYDD | DEVELOPMENTAL DISABILITIES | 0.0052121823 | $797,950 | $797,950 | $4.16 | | |
| CNTYVET | VETERANS RELIEF | 0.0052777810 | $797,950 | $797,950 | $4.21 | | |
| MENTAL | MENTAL HEALTH | 0.0052121823 | $797,950 | $797,950 | $4.16 | | |
| PTGEN | CITY OF PT GENERAL | 0.8551967795 | $797,950 | $797,950 | $682.40 | | |
| PTLLL | CITY OF PT - LIBRARY LID LIFT | 0.4010114288 | $797,950 | $797,950 | $319.99 | | |
| PTMVBOND | CITY OF PT MV BOND | 0.0484717981 | $797,950 | $797,950 | $38.68 | | |
| HOSP2CASH | HOSP DIST #2 GENERAL | 0.0536075306 | $797,950 | $797,950 | $42.78 | | |
| SCH50BOND | SCHOOL DIST #50 BOND 2016 | 0.5377451389 | $797,950 | $797,950 | $429.09 | | |
| SCH50CP | SCHOOL DIST #50 CAP PROJ | 0.4573475088 | $797,950 | $797,950 | $364.94 | | |
| SCH50MO | SCHOOL DIST #50 EP & O | 0.8262822886 | $797,950 | $797,950 | $659.33 | | |
| CONSERVE | CONSERVATION FUTURES | 0.0275621078 | $797,950 | $797,950 | $21.99 | | |
| EMS1 | FIRE DIST #1 EMS | 0.4679948282 | $797,950 | $797,950 | $373.44 | | |
| FD1 | FIRE DIST #1 GENERAL | 1.2171942929 | $797,950 | $797,950 | $971.26 | | |
| PORTPT | PORT OF PT GENERAL | 0.1134941229 | $797,950 | $797,950 | $90.56 | | |
| PORTPTIDD | PORT OF PT IDD 2019 | 0.2577346692 | $797,950 | $797,950 | $205.66 | | |
| PUD1 | PUD #1 GENERAL | 0.0597888892 | $797,950 | $797,950 | $47.71 | | |
| STATE | STATE SCHOOL PART 1 | 1.4940692947 | $797,950 | $797,950 | $1,192.19 | | |
| STATE2 | STATE SCHOOL PART 2 | 0.8050170049 | $797,950 | $797,950 | $642.36 | | |
| | Total Tax Rate: | 8.5416817766 | | | | | |
| | | | | Taxes w/Current Exemptions: | $6,815.83 | | |
| | | | | Taxes w/o Exemptions: | $6,815.83 | | |
Improvement / Building
| Improvement #1: | Residential Bldg | State Code: | 11 | 2096.0 sqft | Value: | $547,950 |
| Bathrooms (#): | 3 (FULL) | Bedrooms (#): | 2 | | Exterior Wall: | SI/ST | Floor Construction: | FRAME | | Foundation: | PO&BL | Heating/Cooling: | ELBB | | Roof Cover: | COMP |   |   |
|
| | Type | Description | Class CD | Sub Class CD | Year Built | Area |
| | MA | Main Area | 5 | 2S | 1894 | 1376.0 |
| | MA2 | Second Floor Main Area | 5 | 2S | 1894 | 720.0 |
| | HWPOR | House Wood Porch | 5 | * | 1894 | 32.0 |
| | HDECK | House Deck | 5 | * | 1894 | 222.0 |
| | SHED | Shed (Table Not Dep) | 5 | * | 1894 | 100.0 |
| | HCPOR | House Concrete Porch | 3 | 15SF | 1894 | 52.0 |
Sketch
Property Image
Land
| 1 | 6350-1165L | | 0.0000 | 0.00 | 0.00 | 0.00 | 1.00 | $250,000 | $0 |
Roll Value History
| 2026 | N/A | N/A | N/A | N/A | N/A |
| 2025 | $547,950 | $250,000 | $0 | $797,950 | $797,950 |
| 2024 | $347,919 | $253,000 | $0 | $600,919 | $600,919 |
| 2023 | $334,002 | $236,250 | $0 | $570,252 | $570,252 |
| 2022 | $306,168 | $220,000 | $0 | $526,168 | $526,168 |
Deed and Sales History
| 1 | 06/18/2025 | SWD | Statutory Warranty Deed | VIBEKE DANBORG | LAURA MASON | | | $849,000.00 | 144475 | |
| 2 | 04/29/2014 | SWD | Statutory Warranty Deed | | | | | | 130132 | |
| 3 | 05/07/2018 | SWD | Statutory Warranty Deed | DAVID M HEFFELFINGER | DAVID M HEFFELFINGER LIVING TRUST | | | | 130095 | |
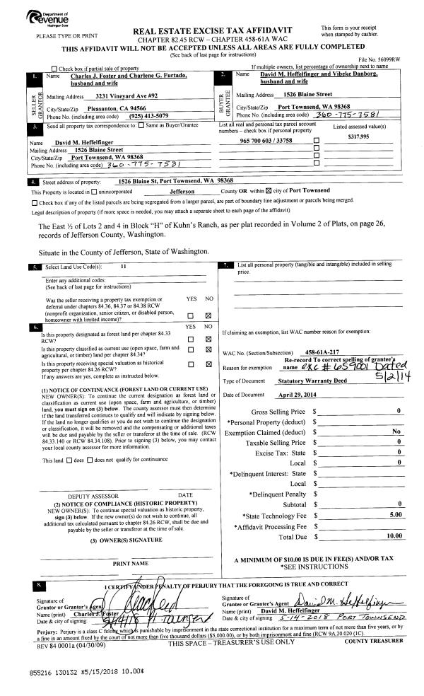
| 4 | 04/29/2014 | SWD | Statutory Warranty Deed | CHARLES J FOSTER | DAVID HEFFELFINGER & VIBEKE DANBORG | | | $289,000.00 | 121110 | |
| 5 | 08/31/2005 | SWD | Statutory Warranty Deed | WELCH, PEGGY ANNE | FOSTER, CHARLES/FURTADO, | 0 | 0 | $390,000.00 | 104670 | 0 |
| 6 | 08/08/2003 | SWD | Statutory Warranty Deed | PARCHER, THOMAS & KELLI/E | WELCH, PEGGY ANNE | 0 | 0 | $271,000.00 | 98004 | 0 |
| 7 | 09/09/2002 | SWD | Statutory Warranty Deed | ROBERT R WHEATLEY | THOMAS C & KELLI S PARCHER, & | 0 | 0 | $151,000.00 | 95496 | 0 |
Payout Agreement
| No payout information available.. |