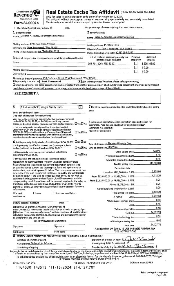
Property
Account |
| Property ID: | 33801 | Abbreviated Legal Description: | KUHN'S RANCH BLK M LOT 6 |
| Parcel # / Geo ID: | 965701806 | Agent Code: | |
| Type: | Real | | |
| Tax Area: | 0110 - C-50F1E1H2 | Land Use Code | 11 |
| Open Space: | N | DFL | N |
| Historic Property: | N | Remodel Property: | N |
| Multi-Family Redevelopment: | N | | |
| Township: | 30N | Section: | 2 |
| Range: | 1W |
Location |
| Address: | 930 CALHOUN ST PORT TOWNSEND, WA 98368 | Mapsco: | 072/006 |
| Neighborhood: | KUHN'S RANCH AND HIGH SCHOOL | Map ID: | |
| Neighborhood CD: | 6350 |
Owner |
| Name: | JULIE A ARNESTAD | Owner ID: | 111780 |
| Mailing Address: | 930 CALHOUN STREET PORT TOWNSEND, WA 98368-8016 | % Ownership: | 100.0000000000% |
| | | Exemptions: | |
Pay Tax Due
Select the appropriate checkbox next to the year to be paid. Multiple years may be selected.
*Convenience Fee not included
Taxes and Assessment Details
Property Tax Information as of
03/10/2026
Click on "Statement Details" to expand or collapse a tax statement.
* Please enter a valid date ** Please enter a valid date *
Statement Details |
| 2026 | 23063 | STATE - STATE LEVY (SCHOOL) | $891.07 | $891.06 | $0.00 | $0.00 | $0.00 | $1782.13 |
| 2026 | 23063 | COUNTY - COUNTY LEVIES (CE, DD, VET, MH) | $356.25 | $356.24 | $0.00 | $0.00 | $0.00 | $712.49 |
| 2026 | 23063 | CONSERVE - CONSERVATION FUTURES | $10.68 | $10.68 | $0.00 | $0.00 | $0.00 | $21.36 |
| 2026 | 23063 | CITYPT - CITY OF PT | $505.66 | $505.65 | $0.00 | $0.00 | $0.00 | $1011.31 |
| 2026 | 23063 | PORTPT - PORT DISTRICT | $143.88 | $143.87 | $0.00 | $0.00 | $0.00 | $287.75 |
| 2026 | 23063 | PUD1 - PUD #1 | $23.18 | $23.17 | $0.00 | $0.00 | $0.00 | $46.35 |
| 2026 | 23063 | HD2 - HOSP DIST #2 | $20.78 | $20.77 | $0.00 | $0.00 | $0.00 | $41.55 |
| 2026 | 23063 | SD50 - SCHOOL DIST #50 | $705.93 | $705.90 | $0.00 | $0.00 | $0.00 | $1411.83 |
| 2026 | 23063 | FD1 - FIRE DISTRICT #1 | $471.76 | $471.75 | $0.00 | $0.00 | $0.00 | $943.51 |
| 2026 | 23063 | EMS1 - FIRE DIST #1 EMS | $181.39 | $181.38 | $0.00 | $0.00 | $0.00 | $362.77 |
| 2026 | 23063 | JCCD - JC Conservation District | $2.55 | $2.55 | $0.00 | $0.00 | $0.00 | $5.10 |
| 2026 | 23063 | NWA - Noxious Weed Assessment | $2.98 | $2.97 | $0.00 | $0.00 | $0.00 | $5.95 |
| 2026 | 23063 | TOTAL: | $3316.11 | $3315.99 | $0.00 | $0.00 | $0.00 | $6632.10 |
|
| 2026 | 23063 | $3316.11 | $3315.99 | $0.00 | $0.00 | $0.00 | $6632.10 |
Statement Details |
| 2025 | 23125 | STATE - STATE LEVY (SCHOOL) | $801.58 | $801.56 | $0.00 | $0.00 | $1603.14 | $0.00 |
| 2025 | 23125 | COUNTY - COUNTY LEVIES (CE, DD, VET, MH) | $315.23 | $315.20 | $0.00 | $0.00 | $630.43 | $0.00 |
| 2025 | 23125 | CONSERVE - CONSERVATION FUTURES | $9.45 | $9.45 | $0.00 | $0.00 | $18.90 | $0.00 |
| 2025 | 23125 | CITYPT - CITY OF PT | $454.58 | $454.57 | $0.00 | $0.00 | $909.15 | $0.00 |
| 2025 | 23125 | PORTPT - PORT DISTRICT | $128.63 | $128.62 | $0.00 | $0.00 | $257.25 | $0.00 |
| 2025 | 23125 | PUD1 - PUD #1 | $20.63 | $20.62 | $0.00 | $0.00 | $41.25 | $0.00 |
| 2025 | 23125 | HD2 - HOSP DIST #2 | $18.39 | $18.39 | $0.00 | $0.00 | $36.78 | $0.00 |
| 2025 | 23125 | SD50 - SCHOOL DIST #50 | $585.82 | $585.81 | $0.00 | $0.00 | $1171.63 | $0.00 |
| 2025 | 23125 | FD1 - FIRE DISTRICT #1 | $415.96 | $415.96 | $0.00 | $0.00 | $831.92 | $0.00 |
| 2025 | 23125 | EMS1 - FIRE DIST #1 EMS | $159.99 | $159.99 | $0.00 | $0.00 | $319.98 | $0.00 |
| 2025 | 23125 | JCCD - JC Conservation District | $2.55 | $2.55 | $0.00 | $0.00 | $5.10 | $0.00 |
| 2025 | 23125 | NWA - Noxious Weed Assessment | $2.15 | $2.15 | $0.00 | $0.00 | $4.30 | $0.00 |
| 2025 | 23125 | TOTAL: | $2914.96 | $2914.87 | $0.00 | $0.00 | $5829.83 | $0.00 |
|
| 2025 | 23125 | $2914.96 | $2914.87 | $0.00 | $0.00 | $5829.83 | $0.00 |
Statement Details |
| 2024 | 23170 | STATE - STATE LEVY (SCHOOL) | $203.48 | $203.48 | $0.00 | $0.00 | $406.96 | $0.00 |
| 2024 | 23170 | COUNTY - COUNTY LEVIES (CE, DD, VET, MH) | $112.60 | $112.56 | $0.00 | $0.00 | $225.16 | $0.00 |
| 2024 | 23170 | CONSERVE - CONSERVATION FUTURES | $3.38 | $3.37 | $0.00 | $0.00 | $6.75 | $0.00 |
| 2024 | 23170 | CITYPT - CITY OF PT | $156.86 | $156.85 | $0.00 | $0.00 | $313.71 | $0.00 |
| 2024 | 23170 | PORTPT - PORT DISTRICT | $46.50 | $46.50 | $0.00 | $0.00 | $93.00 | $0.00 |
| 2024 | 23170 | PUD1 - PUD #1 | $7.40 | $7.39 | $0.00 | $0.00 | $14.79 | $0.00 |
| 2024 | 23170 | HD2 - HOSP DIST #2 | $6.57 | $6.57 | $0.00 | $0.00 | $13.14 | $0.00 |
| 2024 | 23170 | SD50 - SCHOOL DIST #50 | $74.73 | $74.70 | $0.00 | $0.00 | $149.43 | $0.00 |
| 2024 | 23170 | FD1 - FIRE DISTRICT #1 | $148.86 | $148.86 | $0.00 | $0.00 | $297.72 | $0.00 |
| 2024 | 23170 | EMS1 - FIRE DIST #1 EMS | $56.86 | $56.86 | $0.00 | $0.00 | $113.72 | $0.00 |
| 2024 | 23170 | TOTAL: | $817.24 | $817.14 | $0.00 | $0.00 | $1634.38 | $0.00 |
|
| 2024 | 23170 | $817.24 | $817.14 | $0.00 | $0.00 | $1634.38 | $0.00 |
Statement Details |
| 2023 | 23208 | STATE - STATE LEVY (SCHOOL) | $269.99 | $269.99 | $0.00 | $0.00 | $539.98 | $0.00 |
| 2023 | 23208 | COUNTY - COUNTY LEVIES (CE, DD, VET, MH) | $180.84 | $180.82 | $0.00 | $0.00 | $361.66 | $0.00 |
| 2023 | 23208 | CONSERVE - CONSERVATION FUTURES | $5.42 | $5.42 | $0.00 | $0.00 | $10.84 | $0.00 |
| 2023 | 23208 | CITYPT - CITY OF PT | $245.49 | $245.49 | $0.00 | $0.00 | $490.98 | $0.00 |
| 2023 | 23208 | PORTPT - PORT DISTRICT | $76.18 | $76.18 | $0.00 | $0.00 | $152.36 | $0.00 |
| 2023 | 23208 | PUD1 - PUD #1 | $11.99 | $11.98 | $0.00 | $0.00 | $23.97 | $0.00 |
| 2023 | 23208 | HD2 - HOSP DIST #2 | $10.56 | $10.55 | $0.00 | $0.00 | $21.11 | $0.00 |
| 2023 | 23208 | SD50 - SCHOOL DIST #50 | $0.00 | $0.00 | $0.00 | $0.00 | $0.00 | $0.00 |
| 2023 | 23208 | FD1 - FIRE DISTRICT #1 | $148.97 | $148.97 | $0.00 | $0.00 | $297.94 | $0.00 |
| 2023 | 23208 | EMS1 - FIRE DIST #1 EMS | $63.37 | $63.37 | $0.00 | $0.00 | $126.74 | $0.00 |
| 2023 | 23208 | TOTAL: | $1012.81 | $1012.77 | $0.00 | $0.00 | $2025.58 | $0.00 |
|
| 2023 | 23208 | $1012.81 | $1012.77 | $0.00 | $0.00 | $2025.58 | $0.00 |
Values
| (+) Improvement Homesite Value: | + | $525,148 | |
| (+) Improvement Non-Homesite Value: | + | $0 | |
| (+) Land Homesite Value: | + | $250,000 | |
| (+) Land Non-Homesite Value: | + | $0 | |
| (+) Curr Use (HS): | + | $0 | $0 |
| (+) Curr Use (NHS): | + | $0 | $0 |
| | | -------------------------- | |
| (=) Market Value: | = | $775,148 | |
| (–) Productivity Loss: | – | $0 | |
| | | -------------------------- | |
| (=) Subtotal: | = | $775,148 | |
| (+) Senior Appraised Value: | + | $0 | |
| (+) Non-Senior Appraised Value: | + | $775,148 | |
| | | -------------------------- | |
| (=) Total Appraised Value: | = | $775,148 | |
| (–) Senior Exemption Loss: | – | $0 | |
| (–) Exemption Loss: | – | $0 | |
| | | -------------------------- | |
| (=) Taxable Value: | = | $775,148 | |
Taxing Jurisdiction
| Owner: | JULIE A ARNESTAD | | |
| % Ownership: | 100.0000000000% | | |
| Total Value: | $775,148 | | |
| Tax Area: | 0110 - C-50F1E1H2 |
| CE | COUNTY CURRENT EXPENSE | 0.9034619479 | $775,148 | $775,148 | $700.32 | | |
| CNTYDD | DEVELOPMENTAL DISABILITIES | 0.0052121823 | $775,148 | $775,148 | $4.04 | | |
| CNTYVET | VETERANS RELIEF | 0.0052777810 | $775,148 | $775,148 | $4.09 | | |
| MENTAL | MENTAL HEALTH | 0.0052121823 | $775,148 | $775,148 | $4.04 | | |
| PTGEN | CITY OF PT GENERAL | 0.8551967795 | $775,148 | $775,148 | $662.90 | | |
| PTLLL | CITY OF PT - LIBRARY LID LIFT | 0.4010114288 | $775,148 | $775,148 | $310.84 | | |
| PTMVBOND | CITY OF PT MV BOND | 0.0484717981 | $775,148 | $775,148 | $37.57 | | |
| HOSP2CASH | HOSP DIST #2 GENERAL | 0.0536075306 | $775,148 | $775,148 | $41.55 | | |
| SCH50BOND | SCHOOL DIST #50 BOND 2016 | 0.5377451389 | $775,148 | $775,148 | $416.83 | | |
| SCH50CP | SCHOOL DIST #50 CAP PROJ | 0.4573475088 | $775,148 | $775,148 | $354.51 | | |
| SCH50MO | SCHOOL DIST #50 EP & O | 0.8262822886 | $775,148 | $775,148 | $640.49 | | |
| CONSERVE | CONSERVATION FUTURES | 0.0275621078 | $775,148 | $775,148 | $21.36 | | |
| EMS1 | FIRE DIST #1 EMS | 0.4679948282 | $775,148 | $775,148 | $362.77 | | |
| FD1 | FIRE DIST #1 GENERAL | 1.2171942929 | $775,148 | $775,148 | $943.51 | | |
| PORTPT | PORT OF PT GENERAL | 0.1134941229 | $775,148 | $775,148 | $87.97 | | |
| PORTPTIDD | PORT OF PT IDD 2019 | 0.2577346692 | $775,148 | $775,148 | $199.78 | | |
| PUD1 | PUD #1 GENERAL | 0.0597888892 | $775,148 | $775,148 | $46.35 | | |
| STATE | STATE SCHOOL PART 1 | 1.4940692947 | $775,148 | $775,148 | $1,158.12 | | |
| STATE2 | STATE SCHOOL PART 2 | 0.8050170049 | $775,148 | $775,148 | $624.01 | | |
| | Total Tax Rate: | 8.5416817766 | | | | | |
| | | | | Taxes w/Current Exemptions: | $6,621.05 | | |
| | | | | Taxes w/o Exemptions: | $6,621.05 | | |
Improvement / Building
| Improvement #1: | Residential Bldg | State Code: | 11 | 1474.4 sqft | Value: | $525,148 |
| Bathrooms (#): | 2 (FULL) | Bedrooms (#): | 2 | | Exterior Wall: | SI/ST | Floor Construction: | FRAME | | Foundation: | CONPR | Heating/Cooling: | HPUMP | | Roof Cover: | COMP |   |   |
|
| | Type | Description | Class CD | Sub Class CD | Year Built | Area |
| | MA | Main Area | 5 | 2S | 2011 | 539.2 |
| | MA2 | Second Floor Main Area | 5 | 2S | 2011 | 935.2 |
| | HBAL | House Balcony | 5 | * | 2011 | 370.2 |
| | GBLTIN | Builtin Garage | 5 | 2S | 2011 | 396.0 |
| | SHED | Shed (Table Not Dep) | 6 | * | 2011 | 320.0 |
| | CONCD | Concrete Drive | 5 | * | 2011 | 530.0 |
Sketch
Property Image
Land
| 1 | 6350-1165L | | 0.0000 | 0.00 | 0.00 | 0.00 | 1.00 | $250,000 | $0 |
Roll Value History
| 2026 | N/A | N/A | N/A | N/A | N/A |
| 2025 | $525,148 | $250,000 | $0 | $775,148 | $775,148 |
| 2024 | $415,528 | $253,000 | $0 | $668,528 | $668,528 |
| 2023 | $398,906 | $236,250 | $0 | $635,156 | $168,825 |
| 2022 | $365,664 | $220,000 | $0 | $585,664 | $352,062 |
Deed and Sales History
| 1 | 11/05/2024 | SWD | Statutory Warranty Deed | DEBORAH A MUNRO | JULIE A ARNESTAD | | | $846,500.00 | 143513 | |
| 2 | 08/23/2010 | SWD | Statutory Warranty Deed | ROBERTS, ROBERT/JULIA | MUNRO, DEBORAH A | 0 | 0 | $157,500.00 | 114810 | 0 |
| 3 | 01/31/2006 | SWD | Statutory Warranty Deed | CARTER, KENNITH | ROBERTS, ROBERT & JULIA | 0 | 0 | $175,000.00 | 105953 | 0 |
| 4 | 05/09/2005 | QCD | Quit Claim Deed | CARTER, SHARON A | CARTER, KENNITH R | | | $0.00 | 103605 | 0 |
| 5 | 05/03/1995 | REC | Real Estate Contract | STUART, GAEL R/ALYCE A | CARTER, KENNITH R/SHARON A | 0 | 0 | $25,670.00 | 76831 | 0 |
Payout Agreement
| No payout information available.. |