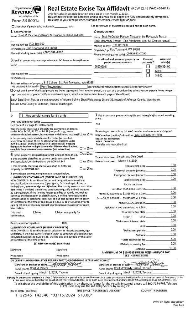
Property
Account |
| Property ID: | 33817 | Abbreviated Legal Description: | BAIRD SHORT PLAT LOT A |
| Parcel # / Geo ID: | 965702011 | Agent Code: | |
| Type: | Real | | |
| Tax Area: | 0110 - C-50F1E1H2 | Land Use Code | 11 |
| Open Space: | N | DFL | N |
| Historic Property: | N | Remodel Property: | N |
| Multi-Family Redevelopment: | N | | |
| Township: | 30N | Section: | 2 |
| Range: | 1W |
Location |
| Address: | 816 CALHOUN ST PORT TOWNSEND, WA 98368 | Mapsco: | 160/010 |
| Neighborhood: | KUHN'S RANCH AND HIGH SCHOOL | Map ID: | |
| Neighborhood CD: | 6350 |
Owner |
| Name: | SCOTT M PASCOE REVOCABLE TRUST | Owner ID: | 110521 |
| Mailing Address: | NANCY M PASCOE REVOCABLE TRUST SCOTT PASCOE/TTEE & NANCY PASCOE/TTEE PO BOX 990 PORT TOWNSEND, WA 98368-0007 | % Ownership: | 100.0000000000% |
| | | Exemptions: | |
Pay Tax Due
Select the appropriate checkbox next to the year to be paid. Multiple years may be selected.
*Convenience Fee not included
Taxes and Assessment Details
Property Tax Information as of
03/10/2026
Click on "Statement Details" to expand or collapse a tax statement.
* Please enter a valid date ** Please enter a valid date *
Statement Details |
| 2026 | 23079 | STATE - STATE LEVY (SCHOOL) | $1196.10 | $1196.09 | $0.00 | $0.00 | $0.00 | $2392.19 |
| 2026 | 23079 | COUNTY - COUNTY LEVIES (CE, DD, VET, MH) | $478.20 | $478.18 | $0.00 | $0.00 | $0.00 | $956.38 |
| 2026 | 23079 | CONSERVE - CONSERVATION FUTURES | $14.34 | $14.34 | $0.00 | $0.00 | $0.00 | $28.68 |
| 2026 | 23079 | CITYPT - CITY OF PT | $678.77 | $678.74 | $0.00 | $0.00 | $0.00 | $1357.51 |
| 2026 | 23079 | PORTPT - PORT DISTRICT | $193.14 | $193.12 | $0.00 | $0.00 | $0.00 | $386.26 |
| 2026 | 23079 | PUD1 - PUD #1 | $31.11 | $31.10 | $0.00 | $0.00 | $0.00 | $62.21 |
| 2026 | 23079 | HD2 - HOSP DIST #2 | $27.89 | $27.89 | $0.00 | $0.00 | $0.00 | $55.78 |
| 2026 | 23079 | SD50 - SCHOOL DIST #50 | $947.57 | $947.56 | $0.00 | $0.00 | $0.00 | $1895.13 |
| 2026 | 23079 | FD1 - FIRE DISTRICT #1 | $633.24 | $633.24 | $0.00 | $0.00 | $0.00 | $1266.48 |
| 2026 | 23079 | EMS1 - FIRE DIST #1 EMS | $243.48 | $243.47 | $0.00 | $0.00 | $0.00 | $486.95 |
| 2026 | 23079 | JCCD - JC Conservation District | $2.55 | $2.55 | $0.00 | $0.00 | $0.00 | $5.10 |
| 2026 | 23079 | NWA - Noxious Weed Assessment | $2.98 | $2.97 | $0.00 | $0.00 | $0.00 | $5.95 |
| 2026 | 23079 | TOTAL: | $4449.37 | $4449.25 | $0.00 | $0.00 | $0.00 | $8898.62 |
|
| 2026 | 23079 | $4449.37 | $4449.25 | $0.00 | $0.00 | $0.00 | $8898.62 |
Statement Details |
| 2025 | 23141 | STATE - STATE LEVY (SCHOOL) | $1207.86 | $1207.84 | $0.00 | $0.00 | $2415.70 | $0.00 |
| 2025 | 23141 | COUNTY - COUNTY LEVIES (CE, DD, VET, MH) | $474.99 | $474.96 | $0.00 | $0.00 | $949.95 | $0.00 |
| 2025 | 23141 | CONSERVE - CONSERVATION FUTURES | $14.25 | $14.24 | $0.00 | $0.00 | $28.49 | $0.00 |
| 2025 | 23141 | CITYPT - CITY OF PT | $684.98 | $684.96 | $0.00 | $0.00 | $1369.94 | $0.00 |
| 2025 | 23141 | PORTPT - PORT DISTRICT | $193.82 | $193.82 | $0.00 | $0.00 | $387.64 | $0.00 |
| 2025 | 23141 | PUD1 - PUD #1 | $31.08 | $31.08 | $0.00 | $0.00 | $62.16 | $0.00 |
| 2025 | 23141 | HD2 - HOSP DIST #2 | $27.71 | $27.71 | $0.00 | $0.00 | $55.42 | $0.00 |
| 2025 | 23141 | SD50 - SCHOOL DIST #50 | $882.74 | $882.73 | $0.00 | $0.00 | $1765.47 | $0.00 |
| 2025 | 23141 | FD1 - FIRE DISTRICT #1 | $626.79 | $626.78 | $0.00 | $0.00 | $1253.57 | $0.00 |
| 2025 | 23141 | EMS1 - FIRE DIST #1 EMS | $241.08 | $241.08 | $0.00 | $0.00 | $482.16 | $0.00 |
| 2025 | 23141 | JCCD - JC Conservation District | $2.55 | $2.55 | $0.00 | $0.00 | $5.10 | $0.00 |
| 2025 | 23141 | NWA - Noxious Weed Assessment | $2.15 | $2.15 | $0.00 | $0.00 | $4.30 | $0.00 |
| 2025 | 23141 | TOTAL: | $4390.00 | $4389.90 | $0.00 | $0.00 | $8779.90 | $0.00 |
|
| 2025 | 23141 | $4390.00 | $4389.90 | $0.00 | $0.00 | $8779.90 | $0.00 |
Statement Details |
| 2024 | 23186 | STATE - STATE LEVY (SCHOOL) | $1110.90 | $1110.90 | $0.00 | $0.00 | $2221.80 | $0.00 |
| 2024 | 23186 | COUNTY - COUNTY LEVIES (CE, DD, VET, MH) | $475.38 | $475.36 | $0.00 | $0.00 | $950.74 | $0.00 |
| 2024 | 23186 | CONSERVE - CONSERVATION FUTURES | $14.26 | $14.25 | $0.00 | $0.00 | $28.51 | $0.00 |
| 2024 | 23186 | CITYPT - CITY OF PT | $679.23 | $679.23 | $0.00 | $0.00 | $1358.46 | $0.00 |
| 2024 | 23186 | PORTPT - PORT DISTRICT | $196.35 | $196.34 | $0.00 | $0.00 | $392.69 | $0.00 |
| 2024 | 23186 | PUD1 - PUD #1 | $31.23 | $31.22 | $0.00 | $0.00 | $62.45 | $0.00 |
| 2024 | 23186 | HD2 - HOSP DIST #2 | $27.74 | $27.73 | $0.00 | $0.00 | $55.47 | $0.00 |
| 2024 | 23186 | SD50 - SCHOOL DIST #50 | $898.78 | $898.76 | $0.00 | $0.00 | $1797.54 | $0.00 |
| 2024 | 23186 | FD1 - FIRE DISTRICT #1 | $628.55 | $628.54 | $0.00 | $0.00 | $1257.09 | $0.00 |
| 2024 | 23186 | EMS1 - FIRE DIST #1 EMS | $240.08 | $240.08 | $0.00 | $0.00 | $480.16 | $0.00 |
| 2024 | 23186 | JCCD - JC Conservation District | $2.55 | $2.55 | $0.00 | $0.00 | $5.10 | $0.00 |
| 2024 | 23186 | NWA - Noxious Weed Assessment | $2.15 | $2.15 | $0.00 | $0.00 | $4.30 | $0.00 |
| 2024 | 23186 | TOTAL: | $4307.20 | $4307.11 | $0.00 | $0.00 | $8614.31 | $0.00 |
|
| 2024 | 23186 | $4307.20 | $4307.11 | $0.00 | $0.00 | $8614.31 | $0.00 |
Statement Details |
| 2023 | 23224 | STATE - STATE LEVY (SCHOOL) | $1041.11 | $1041.11 | $0.00 | $0.00 | $2082.22 | $0.00 |
| 2023 | 23224 | COUNTY - COUNTY LEVIES (CE, DD, VET, MH) | $454.31 | $454.30 | $0.00 | $0.00 | $908.61 | $0.00 |
| 2023 | 23224 | CONSERVE - CONSERVATION FUTURES | $13.63 | $13.62 | $0.00 | $0.00 | $27.25 | $0.00 |
| 2023 | 23224 | CITYPT - CITY OF PT | $642.10 | $642.08 | $0.00 | $0.00 | $1284.18 | $0.00 |
| 2023 | 23224 | PORTPT - PORT DISTRICT | $191.39 | $191.37 | $0.00 | $0.00 | $382.76 | $0.00 |
| 2023 | 23224 | PUD1 - PUD #1 | $30.12 | $30.11 | $0.00 | $0.00 | $60.23 | $0.00 |
| 2023 | 23224 | HD2 - HOSP DIST #2 | $26.52 | $26.50 | $0.00 | $0.00 | $53.02 | $0.00 |
| 2023 | 23224 | SD50 - SCHOOL DIST #50 | $826.14 | $826.13 | $0.00 | $0.00 | $1652.27 | $0.00 |
| 2023 | 23224 | FD1 - FIRE DISTRICT #1 | $374.26 | $374.26 | $0.00 | $0.00 | $748.52 | $0.00 |
| 2023 | 23224 | EMS1 - FIRE DIST #1 EMS | $159.21 | $159.20 | $0.00 | $0.00 | $318.41 | $0.00 |
| 2023 | 23224 | JCCD - JC Conservation District | $2.55 | $2.55 | $0.00 | $0.00 | $5.10 | $0.00 |
| 2023 | 23224 | NWA - Noxious Weed Assessment | $2.15 | $2.15 | $0.00 | $0.00 | $4.30 | $0.00 |
| 2023 | 23224 | TOTAL: | $3763.49 | $3763.38 | $0.00 | $0.00 | $7526.87 | $0.00 |
|
| 2023 | 23224 | $3763.49 | $3763.38 | $0.00 | $0.00 | $7526.87 | $0.00 |
Values
| (+) Improvement Homesite Value: | + | $0 | |
| (+) Improvement Non-Homesite Value: | + | $765,494 | |
| (+) Land Homesite Value: | + | $0 | |
| (+) Land Non-Homesite Value: | + | $275,000 | |
| (+) Curr Use (HS): | + | $0 | $0 |
| (+) Curr Use (NHS): | + | $0 | $0 |
| | | -------------------------- | |
| (=) Market Value: | = | $1,040,494 | |
| (–) Productivity Loss: | – | $0 | |
| | | -------------------------- | |
| (=) Subtotal: | = | $1,040,494 | |
| (+) Senior Appraised Value: | + | $0 | |
| (+) Non-Senior Appraised Value: | + | $1,040,494 | |
| | | -------------------------- | |
| (=) Total Appraised Value: | = | $1,040,494 | |
| (–) Senior Exemption Loss: | – | $0 | |
| (–) Exemption Loss: | – | $0 | |
| | | -------------------------- | |
| (=) Taxable Value: | = | $1,040,494 | |
Taxing Jurisdiction
| Owner: | SCOTT M PASCOE REVOCABLE TRUST | | |
| % Ownership: | 100.0000000000% | | |
| Total Value: | $1,040,494 | | |
| Tax Area: | 0110 - C-50F1E1H2 |
| CE | COUNTY CURRENT EXPENSE | 0.9034619479 | $1,040,494 | $1,040,494 | $940.05 | | |
| CNTYDD | DEVELOPMENTAL DISABILITIES | 0.0052121823 | $1,040,494 | $1,040,494 | $5.42 | | |
| CNTYVET | VETERANS RELIEF | 0.0052777810 | $1,040,494 | $1,040,494 | $5.49 | | |
| MENTAL | MENTAL HEALTH | 0.0052121823 | $1,040,494 | $1,040,494 | $5.42 | | |
| PTGEN | CITY OF PT GENERAL | 0.8551967795 | $1,040,494 | $1,040,494 | $889.83 | | |
| PTLLL | CITY OF PT - LIBRARY LID LIFT | 0.4010114288 | $1,040,494 | $1,040,494 | $417.25 | | |
| PTMVBOND | CITY OF PT MV BOND | 0.0484717981 | $1,040,494 | $1,040,494 | $50.43 | | |
| HOSP2CASH | HOSP DIST #2 GENERAL | 0.0536075306 | $1,040,494 | $1,040,494 | $55.78 | | |
| SCH50BOND | SCHOOL DIST #50 BOND 2016 | 0.5377451389 | $1,040,494 | $1,040,494 | $559.52 | | |
| SCH50CP | SCHOOL DIST #50 CAP PROJ | 0.4573475088 | $1,040,494 | $1,040,494 | $475.87 | | |
| SCH50MO | SCHOOL DIST #50 EP & O | 0.8262822886 | $1,040,494 | $1,040,494 | $859.74 | | |
| CONSERVE | CONSERVATION FUTURES | 0.0275621078 | $1,040,494 | $1,040,494 | $28.68 | | |
| EMS1 | FIRE DIST #1 EMS | 0.4679948282 | $1,040,494 | $1,040,494 | $486.95 | | |
| FD1 | FIRE DIST #1 GENERAL | 1.2171942929 | $1,040,494 | $1,040,494 | $1,266.48 | | |
| PORTPT | PORT OF PT GENERAL | 0.1134941229 | $1,040,494 | $1,040,494 | $118.09 | | |
| PORTPTIDD | PORT OF PT IDD 2019 | 0.2577346692 | $1,040,494 | $1,040,494 | $268.17 | | |
| PUD1 | PUD #1 GENERAL | 0.0597888892 | $1,040,494 | $1,040,494 | $62.21 | | |
| STATE | STATE SCHOOL PART 1 | 1.4940692947 | $1,040,494 | $1,040,494 | $1,554.57 | | |
| STATE2 | STATE SCHOOL PART 2 | 0.8050170049 | $1,040,494 | $1,040,494 | $837.62 | | |
| | Total Tax Rate: | 8.5416817766 | | | | | |
| | | | | Taxes w/Current Exemptions: | $8,887.57 | | |
| | | | | Taxes w/o Exemptions: | $8,887.57 | | |
Improvement / Building
| Improvement #1: | Residential Bldg | State Code: | 11 | 2380.0 sqft | Value: | $765,494 |
| Bathrooms (#): | 1 (FULL) | Bathrooms (#): | 1 (HALF) | | Bedrooms (#): | 4 | Exterior Wall: | SI/ST | | Floor Construction: | FRAME | Foundation: | CONPR | | Heating/Cooling: | HPUMP | Roof Cover: | COMP |
|
| | Type | Description | Class CD | Sub Class CD | Year Built | Area |
| | MA | Main Area | 5+ | 2S | 1900 | 1278.0 |
| | MA2 | Second Floor Main Area | 5+ | 2S | 1900 | 1102.0 |
| | HWPOR | House Wood Porch | 5 | * | 1900 | 132.0 |
| | SHED | Shed (Table Not Dep) | 5 | * | 1900 | 192.0 |
Sketch
Property Image
Land
| 1 | 6350-1155L | | 0.0000 | 0.00 | 0.00 | 0.00 | 1.00 | $275,000 | $0 |
Roll Value History
| 2026 | N/A | N/A | N/A | N/A | N/A |
| 2025 | $765,494 | $275,000 | $0 | $1,040,494 | $1,040,494 |
| 2024 | $732,369 | $275,000 | $0 | $1,007,369 | $1,007,369 |
| 2023 | $703,074 | $257,250 | $0 | $960,324 | $960,324 |
| 2022 | $644,484 | $240,000 | $0 | $884,484 | $884,484 |
Deed and Sales History
| 1 | 03/13/2024 | BSD | Bargain and Sale Deed | SCOTT M PASCOE | SCOTT M PASCOE REVOCABLE TRUST | | | | 142340 | |
| 2 | 10/01/2009 | SWD | Statutory Warranty Deed | LYNCH TRUSTEE, JANET L | PASCOE, SCOTT M/NANCY M | 0 | 0 | $735,000.00 | 113508 | 0 |
| 3 | 06/30/2006 | SWD | Statutory Warranty Deed | BAIRD, GARY & SALLY ANNE | LYNCH, JANET L TRUSTEE | | | $595,000.00 | 107009 | 0 |
Payout Agreement
| No payout information available.. |