Property
Account |
| Property ID: | 33841 | Abbreviated Legal Description: | KUHN'S RANCH BLK T LOT 5 |
| Parcel # / Geo ID: | 965702405 | Agent Code: | |
| Type: | Real | | |
| Tax Area: | 0110 - C-50F1E1H2 | Land Use Code | 11 |
| Open Space: | N | DFL | N |
| Historic Property: | N | Remodel Property: | N |
| Multi-Family Redevelopment: | N | | |
| Township: | 30N | Section: | 2 |
| Range: | 1W |
Location |
| Address: | 825 VAN BUREN ST PORT TOWNSEND, WA 98368 | Mapsco: | 072/046 |
| Neighborhood: | KUHN'S RANCH AND HIGH SCHOOL | Map ID: | |
| Neighborhood CD: | 6350 |
Owner |
| Name: | JAMES MYERS | Owner ID: | 22470 |
| Mailing Address: | 825 VAN BUREN ST PORT TOWNSEND, WA 98368-8052 | % Ownership: | 100.0000000000% |
| | | Exemptions: | |
Pay Tax Due
Select the appropriate checkbox next to the year to be paid. Multiple years may be selected.
*Convenience Fee not included
Taxes and Assessment Details
Property Tax Information as of
03/12/2026
Click on "Statement Details" to expand or collapse a tax statement.
* Please enter a valid date ** Please enter a valid date *
Statement Details |
| 2026 | 23103 | STATE - STATE LEVY (SCHOOL) | $713.78 | $713.78 | $0.00 | $0.00 | $0.00 | $1427.56 |
| 2026 | 23103 | COUNTY - COUNTY LEVIES (CE, DD, VET, MH) | $285.37 | $285.37 | $0.00 | $0.00 | $0.00 | $570.74 |
| 2026 | 23103 | CONSERVE - CONSERVATION FUTURES | $8.56 | $8.55 | $0.00 | $0.00 | $0.00 | $17.11 |
| 2026 | 23103 | CITYPT - CITY OF PT | $405.06 | $405.05 | $0.00 | $0.00 | $0.00 | $810.11 |
| 2026 | 23103 | PORTPT - PORT DISTRICT | $115.26 | $115.24 | $0.00 | $0.00 | $0.00 | $230.50 |
| 2026 | 23103 | PUD1 - PUD #1 | $18.56 | $18.56 | $0.00 | $0.00 | $0.00 | $37.12 |
| 2026 | 23103 | HD2 - HOSP DIST #2 | $16.65 | $16.64 | $0.00 | $0.00 | $0.00 | $33.29 |
| 2026 | 23103 | SD50 - SCHOOL DIST #50 | $565.47 | $565.47 | $0.00 | $0.00 | $0.00 | $1130.94 |
| 2026 | 23103 | FD1 - FIRE DISTRICT #1 | $377.90 | $377.89 | $0.00 | $0.00 | $0.00 | $755.79 |
| 2026 | 23103 | EMS1 - FIRE DIST #1 EMS | $145.30 | $145.29 | $0.00 | $0.00 | $0.00 | $290.59 |
| 2026 | 23103 | JCCD - JC Conservation District | $2.55 | $2.55 | $0.00 | $0.00 | $0.00 | $5.10 |
| 2026 | 23103 | NWA - Noxious Weed Assessment | $2.98 | $2.97 | $0.00 | $0.00 | $0.00 | $5.95 |
| 2026 | 23103 | TOTAL: | $2657.44 | $2657.36 | $0.00 | $0.00 | $0.00 | $5314.80 |
|
| 2026 | 23103 | $2657.44 | $2657.36 | $0.00 | $0.00 | $0.00 | $5314.80 |
Statement Details |
| 2025 | 23165 | STATE - STATE LEVY (SCHOOL) | $721.61 | $721.60 | $0.00 | $0.00 | $1443.21 | $0.00 |
| 2025 | 23165 | COUNTY - COUNTY LEVIES (CE, DD, VET, MH) | $283.78 | $283.75 | $0.00 | $0.00 | $567.53 | $0.00 |
| 2025 | 23165 | CONSERVE - CONSERVATION FUTURES | $8.51 | $8.51 | $0.00 | $0.00 | $17.02 | $0.00 |
| 2025 | 23165 | CITYPT - CITY OF PT | $409.23 | $409.22 | $0.00 | $0.00 | $818.45 | $0.00 |
| 2025 | 23165 | PORTPT - PORT DISTRICT | $115.80 | $115.79 | $0.00 | $0.00 | $231.59 | $0.00 |
| 2025 | 23165 | PUD1 - PUD #1 | $18.57 | $18.57 | $0.00 | $0.00 | $37.14 | $0.00 |
| 2025 | 23165 | HD2 - HOSP DIST #2 | $16.56 | $16.55 | $0.00 | $0.00 | $33.11 | $0.00 |
| 2025 | 23165 | SD50 - SCHOOL DIST #50 | $527.38 | $527.36 | $0.00 | $0.00 | $1054.74 | $0.00 |
| 2025 | 23165 | FD1 - FIRE DISTRICT #1 | $374.46 | $374.46 | $0.00 | $0.00 | $748.92 | $0.00 |
| 2025 | 23165 | EMS1 - FIRE DIST #1 EMS | $144.03 | $144.02 | $0.00 | $0.00 | $288.05 | $0.00 |
| 2025 | 23165 | JCCD - JC Conservation District | $2.55 | $2.55 | $0.00 | $0.00 | $5.10 | $0.00 |
| 2025 | 23165 | NWA - Noxious Weed Assessment | $2.15 | $2.15 | $0.00 | $0.00 | $4.30 | $0.00 |
| 2025 | 23165 | TOTAL: | $2624.63 | $2624.53 | $0.00 | $0.00 | $5249.16 | $0.00 |
|
| 2025 | 23165 | $2624.63 | $2624.53 | $0.00 | $0.00 | $5249.16 | $0.00 |
Statement Details |
| 2024 | 23210 | STATE - STATE LEVY (SCHOOL) | $660.68 | $660.68 | $0.00 | $0.00 | $1321.36 | $0.00 |
| 2024 | 23210 | COUNTY - COUNTY LEVIES (CE, DD, VET, MH) | $282.73 | $282.69 | $0.00 | $0.00 | $565.42 | $0.00 |
| 2024 | 23210 | CONSERVE - CONSERVATION FUTURES | $8.48 | $8.47 | $0.00 | $0.00 | $16.95 | $0.00 |
| 2024 | 23210 | CITYPT - CITY OF PT | $403.96 | $403.95 | $0.00 | $0.00 | $807.91 | $0.00 |
| 2024 | 23210 | PORTPT - PORT DISTRICT | $116.78 | $116.77 | $0.00 | $0.00 | $233.55 | $0.00 |
| 2024 | 23210 | PUD1 - PUD #1 | $18.57 | $18.57 | $0.00 | $0.00 | $37.14 | $0.00 |
| 2024 | 23210 | HD2 - HOSP DIST #2 | $16.50 | $16.49 | $0.00 | $0.00 | $32.99 | $0.00 |
| 2024 | 23210 | SD50 - SCHOOL DIST #50 | $534.52 | $534.52 | $0.00 | $0.00 | $1069.04 | $0.00 |
| 2024 | 23210 | FD1 - FIRE DISTRICT #1 | $373.81 | $373.81 | $0.00 | $0.00 | $747.62 | $0.00 |
| 2024 | 23210 | EMS1 - FIRE DIST #1 EMS | $142.78 | $142.78 | $0.00 | $0.00 | $285.56 | $0.00 |
| 2024 | 23210 | JCCD - JC Conservation District | $2.55 | $2.55 | $0.00 | $0.00 | $5.10 | $0.00 |
| 2024 | 23210 | NWA - Noxious Weed Assessment | $2.15 | $2.15 | $0.00 | $0.00 | $4.30 | $0.00 |
| 2024 | 23210 | TOTAL: | $2563.51 | $2563.43 | $0.00 | $0.00 | $5126.94 | $0.00 |
|
| 2024 | 23210 | $2563.51 | $2563.43 | $0.00 | $0.00 | $5126.94 | $0.00 |
Statement Details |
| 2023 | 23248 | STATE - STATE LEVY (SCHOOL) | $620.29 | $620.29 | $0.00 | $0.00 | $1240.58 | $0.00 |
| 2023 | 23248 | COUNTY - COUNTY LEVIES (CE, DD, VET, MH) | $270.69 | $270.65 | $0.00 | $0.00 | $541.34 | $0.00 |
| 2023 | 23248 | CONSERVE - CONSERVATION FUTURES | $8.12 | $8.11 | $0.00 | $0.00 | $16.23 | $0.00 |
| 2023 | 23248 | CITYPT - CITY OF PT | $382.56 | $382.55 | $0.00 | $0.00 | $765.11 | $0.00 |
| 2023 | 23248 | PORTPT - PORT DISTRICT | $114.02 | $114.02 | $0.00 | $0.00 | $228.04 | $0.00 |
| 2023 | 23248 | PUD1 - PUD #1 | $17.94 | $17.94 | $0.00 | $0.00 | $35.88 | $0.00 |
| 2023 | 23248 | HD2 - HOSP DIST #2 | $15.80 | $15.79 | $0.00 | $0.00 | $31.59 | $0.00 |
| 2023 | 23248 | SD50 - SCHOOL DIST #50 | $492.22 | $492.20 | $0.00 | $0.00 | $984.42 | $0.00 |
| 2023 | 23248 | FD1 - FIRE DISTRICT #1 | $222.98 | $222.98 | $0.00 | $0.00 | $445.96 | $0.00 |
| 2023 | 23248 | EMS1 - FIRE DIST #1 EMS | $94.85 | $94.85 | $0.00 | $0.00 | $189.70 | $0.00 |
| 2023 | 23248 | JCCD - JC Conservation District | $2.55 | $2.55 | $0.00 | $0.00 | $5.10 | $0.00 |
| 2023 | 23248 | NWA - Noxious Weed Assessment | $2.15 | $2.15 | $0.00 | $0.00 | $4.30 | $0.00 |
| 2023 | 23248 | TOTAL: | $2244.17 | $2244.08 | $0.00 | $0.00 | $4488.25 | $0.00 |
|
| 2023 | 23248 | $2244.17 | $2244.08 | $0.00 | $0.00 | $4488.25 | $0.00 |
Values
| (+) Improvement Homesite Value: | + | $0 | |
| (+) Improvement Non-Homesite Value: | + | $370,925 | |
| (+) Land Homesite Value: | + | $0 | |
| (+) Land Non-Homesite Value: | + | $250,000 | |
| (+) Curr Use (HS): | + | $0 | $0 |
| (+) Curr Use (NHS): | + | $0 | $0 |
| | | -------------------------- | |
| (=) Market Value: | = | $620,925 | |
| (–) Productivity Loss: | – | $0 | |
| | | -------------------------- | |
| (=) Subtotal: | = | $620,925 | |
| (+) Senior Appraised Value: | + | $0 | |
| (+) Non-Senior Appraised Value: | + | $620,925 | |
| | | -------------------------- | |
| (=) Total Appraised Value: | = | $620,925 | |
| (–) Senior Exemption Loss: | – | $0 | |
| (–) Exemption Loss: | – | $0 | |
| | | -------------------------- | |
| (=) Taxable Value: | = | $620,925 | |
Taxing Jurisdiction
| Owner: | JAMES MYERS | | |
| % Ownership: | 100.0000000000% | | |
| Total Value: | $620,925 | | |
| Tax Area: | 0110 - C-50F1E1H2 |
| CE | COUNTY CURRENT EXPENSE | 0.9034619479 | $620,925 | $620,925 | $560.98 | | |
| CNTYDD | DEVELOPMENTAL DISABILITIES | 0.0052121823 | $620,925 | $620,925 | $3.24 | | |
| CNTYVET | VETERANS RELIEF | 0.0052777810 | $620,925 | $620,925 | $3.28 | | |
| MENTAL | MENTAL HEALTH | 0.0052121823 | $620,925 | $620,925 | $3.24 | | |
| PTGEN | CITY OF PT GENERAL | 0.8551967795 | $620,925 | $620,925 | $531.01 | | |
| PTLLL | CITY OF PT - LIBRARY LID LIFT | 0.4010114288 | $620,925 | $620,925 | $249.00 | | |
| PTMVBOND | CITY OF PT MV BOND | 0.0484717981 | $620,925 | $620,925 | $30.10 | | |
| HOSP2CASH | HOSP DIST #2 GENERAL | 0.0536075306 | $620,925 | $620,925 | $33.29 | | |
| SCH50BOND | SCHOOL DIST #50 BOND 2016 | 0.5377451389 | $620,925 | $620,925 | $333.90 | | |
| SCH50CP | SCHOOL DIST #50 CAP PROJ | 0.4573475088 | $620,925 | $620,925 | $283.98 | | |
| SCH50MO | SCHOOL DIST #50 EP & O | 0.8262822886 | $620,925 | $620,925 | $513.06 | | |
| CONSERVE | CONSERVATION FUTURES | 0.0275621078 | $620,925 | $620,925 | $17.11 | | |
| EMS1 | FIRE DIST #1 EMS | 0.4679948282 | $620,925 | $620,925 | $290.59 | | |
| FD1 | FIRE DIST #1 GENERAL | 1.2171942929 | $620,925 | $620,925 | $755.79 | | |
| PORTPT | PORT OF PT GENERAL | 0.1134941229 | $620,925 | $620,925 | $70.47 | | |
| PORTPTIDD | PORT OF PT IDD 2019 | 0.2577346692 | $620,925 | $620,925 | $160.03 | | |
| PUD1 | PUD #1 GENERAL | 0.0597888892 | $620,925 | $620,925 | $37.12 | | |
| STATE | STATE SCHOOL PART 1 | 1.4940692947 | $620,925 | $620,925 | $927.70 | | |
| STATE2 | STATE SCHOOL PART 2 | 0.8050170049 | $620,925 | $620,925 | $499.86 | | |
| | Total Tax Rate: | 8.5416817766 | | | | | |
| | | | | Taxes w/Current Exemptions: | $5,303.75 | | |
| | | | | Taxes w/o Exemptions: | $5,303.75 | | |
Improvement / Building
| Improvement #1: | Residential Bldg | State Code: | 11 | 1393.0 sqft | Value: | $370,925 |
| Bathrooms (#): | 2 (FULL) | Bedrooms (#): | 2 | | Exterior Wall: | SI/ST | Fireplace: | SIN 1-AVG | | Floor Construction: | FRAME | Foundation: | CONPR | | Heating/Cooling: | ELBB | Inside Verify: | YES-FIX | | Roof Cover: | COMP |   |   |
|
| | Type | Description | Class CD | Sub Class CD | Year Built | Area |
| | MA | Main Area | 4 | 1S | 1940 | 1393.0 |
| | HWPOR | House Wood Porch | 4 | * | 1940 | 190.0 |
| | HCPOR | House Concrete Porch | 4 | * | 1940 | 63.0 |
| | HDECK | House Deck | 4 | * | 1940 | 92.0 |
| | GATT | House Attached Garage | 3 | 1S | 1940 | 207.0 |
| | HRPO | House Roof Patio | 4 | * | 1940 | 170.0 |
| | PATIO | House Patio | 3 | 1S | 1940 | 214.5 |
| | CONCD | Concrete Drive | 3 | 1S | 1940 | 342.0 |
Sketch
Property Image
Land
| 1 | 6350-1165L | | 0.0000 | 0.00 | 0.00 | 0.00 | 1.00 | $250,000 | $0 |
Roll Value History
| 2026 | N/A | N/A | N/A | N/A | N/A |
| 2025 | $370,925 | $250,000 | $0 | $620,925 | $620,925 |
| 2024 | $348,831 | $253,000 | $0 | $601,831 | $601,831 |
| 2023 | $334,878 | $236,250 | $0 | $571,128 | $571,128 |
| 2022 | $306,972 | $220,000 | $0 | $526,972 | $526,972 |
Deed and Sales History
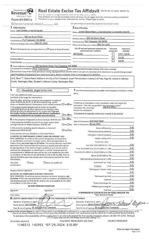
| 1 | 07/26/2024 | QCD | Quit Claim Deed | LYNN CARLENE | JAMES MYERS | | | | 0 | |
| 2 | 04/23/2009 | SWD | Statutory Warranty Deed | CAVANAGH, EUGENE J/jo | MYERS, JAMES | | | $350,000.00 | 112826 | 0 |
| 3 | 06/04/2007 | SWD | Statutory Warranty Deed | ROSENBLOOM, EVE ESTATE OF | CAVANAGH, EUGENE/JO | | | $390,000.00 | 109392 | 0 |
| 4 | 07/29/2005 | SWD | Statutory Warranty Deed | PLACZ, MONICA M | ROSENBLOOM, EVE | 0 | 0 | $354,950.00 | 104379 | 0 |
| 5 | 06/26/2001 | SWD | Statutory Warranty Deed | BUSCH, RUSSELL W CO-TRUST | PLACZ, MONICA | 0 | 0 | $207,500.00 | 92526 | 0 |
| 6 | 07/14/1994 | SWD | Statutory Warranty Deed | KASTEN, MICHAEL/LENA | BUSCH, NORBERT J/EST | 0 | 0 | $120,000.00 | 74671 | 0 |
Payout Agreement
| No payout information available.. |