| 1 | 06/03/2021 | SWD | Statutory Warranty Deed | LAWSON HAMILTON FAMILY TRUST | GREGG & SHARON MAGNUSON | | | $1,194,000.00 | 136899 | |
|   | |
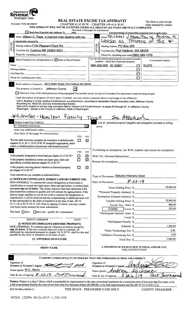
| 2 | 08/22/2019 | SWD | Statutory Warranty Deed | WILLIAM C PAGE | LAWSON HAMILTON FAMILY TRUST | | | $75,000.00 | 132996 | |
| 3 | 01/22/2018 | QCD | Quit Claim Deed | | | | | | 129577 | |
| 4 | 03/03/2009 | QCD | Quit Claim Deed | NISBET, ROGER C | NISBET, ROGER C/WILLIAM C PAGE | 0 | 0 | $17,500.00 | 112568 | 0 |
| 5 | 09/23/2002 | QCD | Quit Claim Deed | LEE M GREELEY/ROGER C NIS | LEE M GREELEY | 0 | 0 | $0.00 | 95583 | 0 |
| 6 | 10/08/1999 | QCD | Quit Claim Deed | DIGNAN, DENIS/CAROL/JANE | GREELEY, LEE/NISBET, ROGER | 0 | 0 | $15,000.00 | 88076 | 0 |
| 7 | 08/06/1997 | QCD | Quit Claim Deed | HAMILTON, M J/A K | DIGNAN, DENIS R/CAROL JANE B | 0 | 0 | $0.00 | 82485 | 0 |