Property
Account |
| Property ID: | 33972 | Abbreviated Legal Description: | LAUREL SHADE BLK 1 LOTS 5 & 6 |
| Parcel # / Geo ID: | 966600101 | Agent Code: | |
| Type: | Real | | |
| Tax Area: | 0110 - C-50F1E1H2 | Land Use Code | 11 |
| Open Space: | N | DFL | N |
| Historic Property: | N | Remodel Property: | N |
| Multi-Family Redevelopment: | N | | |
| Township: | 30N | Section: | 3 |
| Range: | 1W |
Location |
| Address: | 2404 ROSECRANS ST PORT TOWNSEND, WA 98368 | Mapsco: | 074/064 |
| Neighborhood: | LAUREL SHADE, HASTINGS HEIGHTS & ACREAGE PROXIMITY | Map ID: | |
| Neighborhood CD: | 6115 |
Owner |
| Name: | ELIZABETH & LLOYD TAYLOR | Owner ID: | 96198 |
| Mailing Address: | 2404 ROSECRANS ST PORT TOWNSEND, WA 98368-6810 | % Ownership: | 100.0000000000% |
| | | Exemptions: | |
Pay Tax Due
Select the appropriate checkbox next to the year to be paid. Multiple years may be selected.
*Convenience Fee not included
Taxes and Assessment Details
Property Tax Information as of
03/13/2026
Click on "Statement Details" to expand or collapse a tax statement.
* Please enter a valid date ** Please enter a valid date *
Statement Details |
| 2026 | 23231 | STATE - STATE LEVY (SCHOOL) | $675.39 | $675.38 | $0.00 | $0.00 | $0.00 | $1350.77 |
| 2026 | 23231 | COUNTY - COUNTY LEVIES (CE, DD, VET, MH) | $270.01 | $270.01 | $0.00 | $0.00 | $0.00 | $540.02 |
| 2026 | 23231 | CONSERVE - CONSERVATION FUTURES | $8.10 | $8.09 | $0.00 | $0.00 | $0.00 | $16.19 |
| 2026 | 23231 | CITYPT - CITY OF PT | $383.27 | $383.26 | $0.00 | $0.00 | $0.00 | $766.53 |
| 2026 | 23231 | PORTPT - PORT DISTRICT | $109.05 | $109.05 | $0.00 | $0.00 | $0.00 | $218.10 |
| 2026 | 23231 | PUD1 - PUD #1 | $17.57 | $17.56 | $0.00 | $0.00 | $0.00 | $35.13 |
| 2026 | 23231 | HD2 - HOSP DIST #2 | $15.75 | $15.75 | $0.00 | $0.00 | $0.00 | $31.50 |
| 2026 | 23231 | SD50 - SCHOOL DIST #50 | $535.05 | $535.05 | $0.00 | $0.00 | $0.00 | $1070.10 |
| 2026 | 23231 | FD1 - FIRE DISTRICT #1 | $357.57 | $357.56 | $0.00 | $0.00 | $0.00 | $715.13 |
| 2026 | 23231 | EMS1 - FIRE DIST #1 EMS | $137.48 | $137.48 | $0.00 | $0.00 | $0.00 | $274.96 |
| 2026 | 23231 | JCCD - JC Conservation District | $2.55 | $2.55 | $0.00 | $0.00 | $0.00 | $5.10 |
| 2026 | 23231 | NWA - Noxious Weed Assessment | $2.98 | $2.97 | $0.00 | $0.00 | $0.00 | $5.95 |
| 2026 | 23231 | TOTAL: | $2514.77 | $2514.71 | $0.00 | $0.00 | $0.00 | $5029.48 |
|
| 2026 | 23231 | $2514.77 | $2514.71 | $0.00 | $0.00 | $0.00 | $5029.48 |
Statement Details |
| 2025 | 23293 | STATE - STATE LEVY (SCHOOL) | $685.70 | $685.70 | $0.00 | $0.00 | $1371.40 | $0.00 |
| 2025 | 23293 | COUNTY - COUNTY LEVIES (CE, DD, VET, MH) | $269.66 | $269.63 | $0.00 | $0.00 | $539.29 | $0.00 |
| 2025 | 23293 | CONSERVE - CONSERVATION FUTURES | $8.09 | $8.08 | $0.00 | $0.00 | $16.17 | $0.00 |
| 2025 | 23293 | CITYPT - CITY OF PT | $388.87 | $388.86 | $0.00 | $0.00 | $777.73 | $0.00 |
| 2025 | 23293 | PORTPT - PORT DISTRICT | $110.04 | $110.02 | $0.00 | $0.00 | $220.06 | $0.00 |
| 2025 | 23293 | PUD1 - PUD #1 | $17.65 | $17.64 | $0.00 | $0.00 | $35.29 | $0.00 |
| 2025 | 23293 | HD2 - HOSP DIST #2 | $15.73 | $15.73 | $0.00 | $0.00 | $31.46 | $0.00 |
| 2025 | 23293 | SD50 - SCHOOL DIST #50 | $501.14 | $501.13 | $0.00 | $0.00 | $1002.27 | $0.00 |
| 2025 | 23293 | FD1 - FIRE DISTRICT #1 | $355.83 | $355.83 | $0.00 | $0.00 | $711.66 | $0.00 |
| 2025 | 23293 | EMS1 - FIRE DIST #1 EMS | $136.86 | $136.86 | $0.00 | $0.00 | $273.72 | $0.00 |
| 2025 | 23293 | JCCD - JC Conservation District | $2.55 | $2.55 | $0.00 | $0.00 | $5.10 | $0.00 |
| 2025 | 23293 | NWA - Noxious Weed Assessment | $2.15 | $2.15 | $0.00 | $0.00 | $4.30 | $0.00 |
| 2025 | 23293 | TOTAL: | $2494.27 | $2494.18 | $0.00 | $0.00 | $4988.45 | $0.00 |
|
| 2025 | 23293 | $2494.27 | $2494.18 | $0.00 | $0.00 | $4988.45 | $0.00 |
Statement Details |
| 2024 | 23338 | STATE - STATE LEVY (SCHOOL) | $655.49 | $655.48 | $0.00 | $0.00 | $1310.97 | $0.00 |
| 2024 | 23338 | COUNTY - COUNTY LEVIES (CE, DD, VET, MH) | $280.51 | $280.48 | $0.00 | $0.00 | $560.99 | $0.00 |
| 2024 | 23338 | CONSERVE - CONSERVATION FUTURES | $8.41 | $8.41 | $0.00 | $0.00 | $16.82 | $0.00 |
| 2024 | 23338 | CITYPT - CITY OF PT | $400.79 | $400.76 | $0.00 | $0.00 | $801.55 | $0.00 |
| 2024 | 23338 | PORTPT - PORT DISTRICT | $115.86 | $115.85 | $0.00 | $0.00 | $231.71 | $0.00 |
| 2024 | 23338 | PUD1 - PUD #1 | $18.43 | $18.42 | $0.00 | $0.00 | $36.85 | $0.00 |
| 2024 | 23338 | HD2 - HOSP DIST #2 | $16.37 | $16.36 | $0.00 | $0.00 | $32.73 | $0.00 |
| 2024 | 23338 | SD50 - SCHOOL DIST #50 | $530.33 | $530.31 | $0.00 | $0.00 | $1060.64 | $0.00 |
| 2024 | 23338 | FD1 - FIRE DISTRICT #1 | $370.88 | $370.87 | $0.00 | $0.00 | $741.75 | $0.00 |
| 2024 | 23338 | EMS1 - FIRE DIST #1 EMS | $141.66 | $141.66 | $0.00 | $0.00 | $283.32 | $0.00 |
| 2024 | 23338 | JCCD - JC Conservation District | $2.55 | $2.55 | $0.00 | $0.00 | $5.10 | $0.00 |
| 2024 | 23338 | NWA - Noxious Weed Assessment | $2.15 | $2.15 | $0.00 | $0.00 | $4.30 | $0.00 |
| 2024 | 23338 | TOTAL: | $2543.43 | $2543.30 | $0.00 | $0.00 | $5086.73 | $0.00 |
|
| 2024 | 23338 | $2543.43 | $2543.30 | $0.00 | $0.00 | $5086.73 | $0.00 |
Statement Details |
| 2023 | 23376 | STATE - STATE LEVY (SCHOOL) | $590.14 | $590.13 | $0.00 | $0.00 | $1180.27 | $0.00 |
| 2023 | 23376 | COUNTY - COUNTY LEVIES (CE, DD, VET, MH) | $257.51 | $257.51 | $0.00 | $0.00 | $515.02 | $0.00 |
| 2023 | 23376 | CONSERVE - CONSERVATION FUTURES | $7.72 | $7.72 | $0.00 | $0.00 | $15.44 | $0.00 |
| 2023 | 23376 | CITYPT - CITY OF PT | $363.96 | $363.95 | $0.00 | $0.00 | $727.91 | $0.00 |
| 2023 | 23376 | PORTPT - PORT DISTRICT | $108.49 | $108.47 | $0.00 | $0.00 | $216.96 | $0.00 |
| 2023 | 23376 | PUD1 - PUD #1 | $17.07 | $17.07 | $0.00 | $0.00 | $34.14 | $0.00 |
| 2023 | 23376 | HD2 - HOSP DIST #2 | $15.04 | $15.02 | $0.00 | $0.00 | $30.06 | $0.00 |
| 2023 | 23376 | SD50 - SCHOOL DIST #50 | $468.29 | $468.27 | $0.00 | $0.00 | $936.56 | $0.00 |
| 2023 | 23376 | FD1 - FIRE DISTRICT #1 | $212.14 | $212.14 | $0.00 | $0.00 | $424.28 | $0.00 |
| 2023 | 23376 | EMS1 - FIRE DIST #1 EMS | $90.24 | $90.24 | $0.00 | $0.00 | $180.48 | $0.00 |
| 2023 | 23376 | JCCD - JC Conservation District | $2.55 | $2.55 | $0.00 | $0.00 | $5.10 | $0.00 |
| 2023 | 23376 | NWA - Noxious Weed Assessment | $2.15 | $2.15 | $0.00 | $0.00 | $4.30 | $0.00 |
| 2023 | 23376 | TOTAL: | $2135.30 | $2135.22 | $0.00 | $0.00 | $4270.52 | $0.00 |
|
| 2023 | 23376 | $2135.30 | $2135.22 | $0.00 | $0.00 | $4270.52 | $0.00 |
Values
| (+) Improvement Homesite Value: | + | $387,522 | |
| (+) Improvement Non-Homesite Value: | + | $0 | |
| (+) Land Homesite Value: | + | $200,000 | |
| (+) Land Non-Homesite Value: | + | $0 | |
| (+) Curr Use (HS): | + | $0 | $0 |
| (+) Curr Use (NHS): | + | $0 | $0 |
| | | -------------------------- | |
| (=) Market Value: | = | $587,522 | |
| (–) Productivity Loss: | – | $0 | |
| | | -------------------------- | |
| (=) Subtotal: | = | $587,522 | |
| (+) Senior Appraised Value: | + | $0 | |
| (+) Non-Senior Appraised Value: | + | $587,522 | |
| | | -------------------------- | |
| (=) Total Appraised Value: | = | $587,522 | |
| (–) Senior Exemption Loss: | – | $0 | |
| (–) Exemption Loss: | – | $0 | |
| | | -------------------------- | |
| (=) Taxable Value: | = | $587,522 | |
Taxing Jurisdiction
| Owner: | ELIZABETH & LLOYD TAYLOR | | |
| % Ownership: | 100.0000000000% | | |
| Total Value: | $587,522 | | |
| Tax Area: | 0110 - C-50F1E1H2 |
| CE | COUNTY CURRENT EXPENSE | 0.9034619479 | $587,522 | $587,522 | $530.80 | | |
| CNTYDD | DEVELOPMENTAL DISABILITIES | 0.0052121823 | $587,522 | $587,522 | $3.06 | | |
| CNTYVET | VETERANS RELIEF | 0.0052777810 | $587,522 | $587,522 | $3.10 | | |
| MENTAL | MENTAL HEALTH | 0.0052121823 | $587,522 | $587,522 | $3.06 | | |
| PTGEN | CITY OF PT GENERAL | 0.8551967795 | $587,522 | $587,522 | $502.45 | | |
| PTLLL | CITY OF PT - LIBRARY LID LIFT | 0.4010114288 | $587,522 | $587,522 | $235.60 | | |
| PTMVBOND | CITY OF PT MV BOND | 0.0484717981 | $587,522 | $587,522 | $28.48 | | |
| HOSP2CASH | HOSP DIST #2 GENERAL | 0.0536075306 | $587,522 | $587,522 | $31.50 | | |
| SCH50BOND | SCHOOL DIST #50 BOND 2016 | 0.5377451389 | $587,522 | $587,522 | $315.94 | | |
| SCH50CP | SCHOOL DIST #50 CAP PROJ | 0.4573475088 | $587,522 | $587,522 | $268.70 | | |
| SCH50MO | SCHOOL DIST #50 EP & O | 0.8262822886 | $587,522 | $587,522 | $485.46 | | |
| CONSERVE | CONSERVATION FUTURES | 0.0275621078 | $587,522 | $587,522 | $16.19 | | |
| EMS1 | FIRE DIST #1 EMS | 0.4679948282 | $587,522 | $587,522 | $274.96 | | |
| FD1 | FIRE DIST #1 GENERAL | 1.2171942929 | $587,522 | $587,522 | $715.13 | | |
| PORTPT | PORT OF PT GENERAL | 0.1134941229 | $587,522 | $587,522 | $66.68 | | |
| PORTPTIDD | PORT OF PT IDD 2019 | 0.2577346692 | $587,522 | $587,522 | $151.42 | | |
| PUD1 | PUD #1 GENERAL | 0.0597888892 | $587,522 | $587,522 | $35.13 | | |
| STATE | STATE SCHOOL PART 1 | 1.4940692947 | $587,522 | $587,522 | $877.80 | | |
| STATE2 | STATE SCHOOL PART 2 | 0.8050170049 | $587,522 | $587,522 | $472.97 | | |
| | Total Tax Rate: | 8.5416817766 | | | | | |
| | | | | Taxes w/Current Exemptions: | $5,018.43 | | |
| | | | | Taxes w/o Exemptions: | $5,018.43 | | |
Improvement / Building
| Improvement #1: | Residential Bldg | State Code: | 11 | 1390.0 sqft | Value: | $387,522 |
| Bathrooms (#): | 2 (FULL) | Bedrooms (#): | 3 | | Exterior Wall: | SI/ST | Fireplace: | WD ST-GOOD | | Floor Construction: | FRAME | Foundation: | CONPR | | Heating/Cooling: | ELBB | Roof Cover: | COMP |
|
| | Type | Description | Class CD | Sub Class CD | Year Built | Area |
| | MA | Main Area | 4 | 1S | 1990 | 1390.0 |
| | HDECK | House Deck | 4 | * | 1990 | 270.0 |
| | GATT | House Attached Garage | 4 | 1S | 1990 | 440.0 |
| | CONCD | Concrete Drive | 3 | * | 1990 | 480.0 |
Sketch
Property Image
Land
| 1 | 6115-1175L | | 0.0000 | 0.00 | 0.00 | 0.00 | 2.00 | $200,000 | $0 |
Roll Value History
| 2026 | N/A | N/A | N/A | N/A | N/A |
| 2025 | $387,522 | $200,000 | $0 | $587,522 | $587,522 |
| 2024 | $372,388 | $199,500 | $0 | $571,888 | $571,888 |
| 2023 | $372,388 | $194,250 | $0 | $566,638 | $566,638 |
| 2022 | $341,355 | $160,000 | $0 | $501,355 | $501,355 |
Deed and Sales History
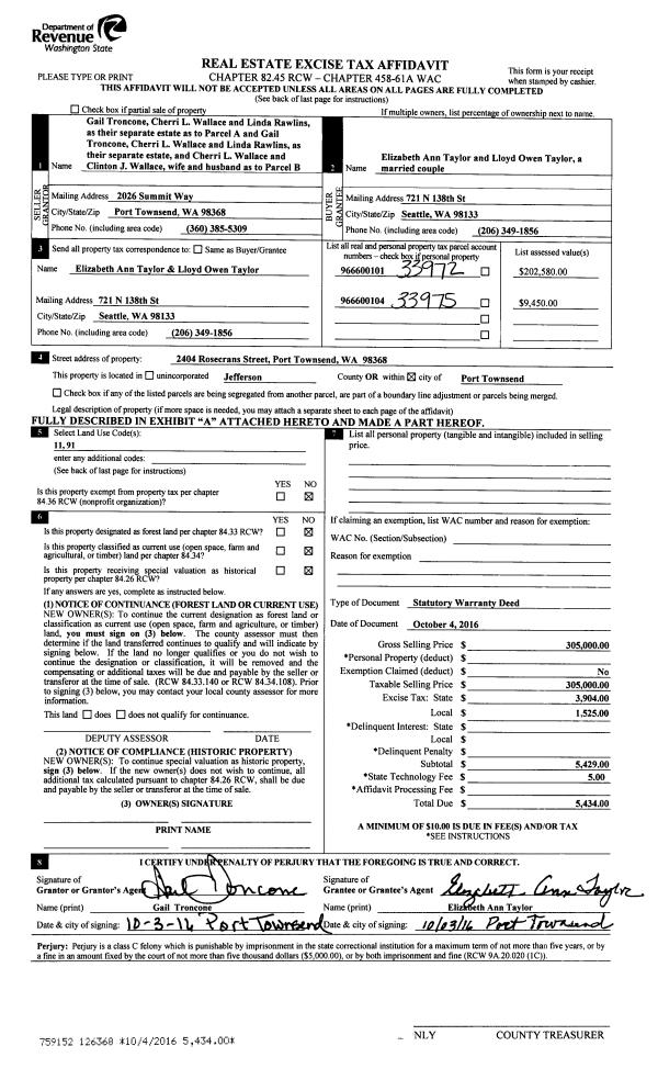
| 1 | 10/04/2016 | SWD | Statutory Warranty Deed | CHERRI WALLACE | ELIZABETH & LLOYD TAYLOR | | | $305,000.00 | 126368 | |
|   | |
| 2 | 10/03/2016 | LOP | Lack of Probate | | | | | | 126367 | |
Payout Agreement
| No payout information available.. |