| 1 | 03/06/2025 | SWD | Statutory Warranty Deed | DENIS J LANGLOIS | JONATHAN GARRISON & STEPHANIE C PARE | | | $45,445.00 | 143987 | |
|   | |
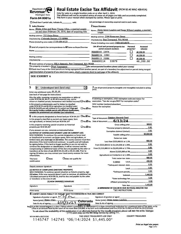
| 2 | 06/13/2024 | SWD | Statutory Warranty Deed | BLAKE ALLEN | DENIS J LANGLOIS | | | $90,000.00 | 142745 | |
|   | |
| 3 | 02/08/2018 | QCD | Quit Claim Deed | STONEHAVEN PROPERTIES LLC | BLAKE ALLEN | | | $67,200.00 | 129643 | |
|   | |
| 4 | 12/09/2009 | SWD | Statutory Warranty Deed | HAWKEYE REAL ESTATE HOLDI | STONEHAVEN PROPERTIES LLC | 0 | 0 | $0.00 | 113803 | 0 |
| 5 | 05/29/2006 | QCD | Quit Claim Deed | REAL ESTATE INV SOLUTIONS | HAWKEYE REAL ESTATE HOLDINGS, | | | $0.00 | 106759 | 0 |
| 6 | 12/05/2005 | QCD | Quit Claim Deed | STRIDER INVESTMENTS, LLC | REAL ESTATE INVESTMNT SOLUTION | 0 | 0 | $0.00 | 105524 | 0 |
| 7 | 12/05/2005 | QCD | Quit Claim Deed | STRIDER INVESTMENTS LLC | REAL ESTATE INVEST SOLUTIONS | 0 | 0 | $0.00 | 105715 | 0 |
| 8 | 11/22/2005 | SWD | Statutory Warranty Deed | HAUGEN, RICHARD A | STRIDER INVESTMENTS LLC | 0 | 0 | $50,000.00 | 105510 | 0 |
| 9 | 11/22/2005 | SWD | Statutory Warranty Deed | HAUGEN, RICHARD A | STRIDER INVESTMENTS LLC | 0 | 0 | $0.00 | 105714 | 0 |
| 10 | 05/27/2005 | QCD | Quit Claim Deed | HAUGEN, JUDITH | HAUGEN, RICHARD A | | | $0.00 | 103660 | 0 |
| 11 | 04/14/2005 | QCD | Quit Claim Deed | HAUGEN, JUDITH | HAUGEN, RICHARD A | | | $0.00 | 103393 | 0 |