Property
Account |
| Property ID: | 33979 | Abbreviated Legal Description: | LAUREL SHADE BLK 1 LOT 14 CERT/LTS OF REC #518025 |
| Parcel # / Geo ID: | 966600114 | Agent Code: | |
| Type: | Real | | |
| Tax Area: | 0110 - C-50F1E1H2 | Land Use Code | 91 |
| Open Space: | N | DFL | N |
| Historic Property: | N | Remodel Property: | N |
| Multi-Family Redevelopment: | N | | |
| Township: | 30N | Section: | 3 |
| Range: | 1W |
Location |
| Address: | | Mapsco: | 074/073 |
| Neighborhood: | LAUREL SHADE, HASTINGS HEIGHTS & ACREAGE PROXIMITY | Map ID: | |
| Neighborhood CD: | 6115 |
Owner |
| Name: | JONATHAN GARRISON & STEPHANIE C PARE | Owner ID: | 95827 |
| Mailing Address: | 2330 ROSECRANS ST PORT TOWNSEND, WA 98368-6808 | % Ownership: | 100.0000000000% |
| | | Exemptions: | |
Pay Tax Due
Select the appropriate checkbox next to the year to be paid. Multiple years may be selected.
*Convenience Fee not included
Taxes and Assessment Details
Property Tax Information as of
03/11/2026
Click on "Statement Details" to expand or collapse a tax statement.
* Please enter a valid date ** Please enter a valid date *
Statement Details |
| 2026 | 23238 | STATE - STATE LEVY (SCHOOL) | $24.44 | $24.42 | $0.00 | $0.00 | $0.00 | $48.86 |
| 2026 | 23238 | COUNTY - COUNTY LEVIES (CE, DD, VET, MH) | $9.78 | $9.75 | $0.00 | $0.00 | $0.00 | $19.53 |
| 2026 | 23238 | CONSERVE - CONSERVATION FUTURES | $0.30 | $0.29 | $0.00 | $0.00 | $0.00 | $0.59 |
| 2026 | 23238 | CITYPT - CITY OF PT | $13.87 | $13.85 | $0.00 | $0.00 | $0.00 | $27.72 |
| 2026 | 23238 | PORTPT - PORT DISTRICT | $3.95 | $3.94 | $0.00 | $0.00 | $0.00 | $7.89 |
| 2026 | 23238 | PUD1 - PUD #1 | $0.64 | $0.63 | $0.00 | $0.00 | $0.00 | $1.27 |
| 2026 | 23238 | HD2 - HOSP DIST #2 | $0.57 | $0.57 | $0.00 | $0.00 | $0.00 | $1.14 |
| 2026 | 23238 | SD50 - SCHOOL DIST #50 | $19.36 | $19.35 | $0.00 | $0.00 | $0.00 | $38.71 |
| 2026 | 23238 | FD1 - FIRE DISTRICT #1 | $12.94 | $12.93 | $0.00 | $0.00 | $0.00 | $25.87 |
| 2026 | 23238 | EMS1 - FIRE DIST #1 EMS | $4.97 | $4.97 | $0.00 | $0.00 | $0.00 | $9.94 |
| 2026 | 23238 | FPLCA - DNR Landowner Contingency Assmt | $3.00 | $3.00 | $0.00 | $0.00 | $0.00 | $6.00 |
| 2026 | 23238 | JCCD - JC Conservation District | $2.53 | $2.53 | $0.00 | $0.00 | $0.00 | $5.06 |
| 2026 | 23238 | NWA - Noxious Weed Assessment | $2.98 | $2.97 | $0.00 | $0.00 | $0.00 | $5.95 |
| 2026 | 23238 | WAT - Clean Water District | $13.00 | $13.00 | $0.00 | $0.00 | $0.00 | $26.00 |
| 2026 | 23238 | TOTAL: | $112.33 | $112.20 | $0.00 | $0.00 | $0.00 | $224.53 |
|
| 2026 | 23238 | $112.33 | $112.20 | $0.00 | $0.00 | $0.00 | $224.53 |
Statement Details |
| 2025 | 23300 | STATE - STATE LEVY (SCHOOL) | $25.18 | $25.18 | $0.00 | $0.00 | $50.36 | $0.00 |
| 2025 | 23300 | COUNTY - COUNTY LEVIES (CE, DD, VET, MH) | $9.92 | $9.88 | $0.00 | $0.00 | $19.80 | $0.00 |
| 2025 | 23300 | CONSERVE - CONSERVATION FUTURES | $0.30 | $0.29 | $0.00 | $0.00 | $0.59 | $0.00 |
| 2025 | 23300 | CITYPT - CITY OF PT | $14.29 | $14.26 | $0.00 | $0.00 | $28.55 | $0.00 |
| 2025 | 23300 | PORTPT - PORT DISTRICT | $4.05 | $4.04 | $0.00 | $0.00 | $8.09 | $0.00 |
| 2025 | 23300 | PUD1 - PUD #1 | $0.65 | $0.65 | $0.00 | $0.00 | $1.30 | $0.00 |
| 2025 | 23300 | HD2 - HOSP DIST #2 | $0.58 | $0.58 | $0.00 | $0.00 | $1.16 | $0.00 |
| 2025 | 23300 | SD50 - SCHOOL DIST #50 | $18.40 | $18.40 | $0.00 | $0.00 | $36.80 | $0.00 |
| 2025 | 23300 | FD1 - FIRE DISTRICT #1 | $13.07 | $13.06 | $0.00 | $0.00 | $26.13 | $0.00 |
| 2025 | 23300 | EMS1 - FIRE DIST #1 EMS | $5.03 | $5.02 | $0.00 | $0.00 | $10.05 | $0.00 |
| 2025 | 23300 | FPLCA - DNR Landowner Contingency Assmt | $3.00 | $3.00 | $0.00 | $0.00 | $6.00 | $0.00 |
| 2025 | 23300 | JCCD - JC Conservation District | $2.53 | $2.53 | $0.00 | $0.00 | $5.06 | $0.00 |
| 2025 | 23300 | NWA - Noxious Weed Assessment | $2.15 | $2.15 | $0.00 | $0.00 | $4.30 | $0.00 |
| 2025 | 23300 | WAT - Clean Water District | $13.00 | $13.00 | $0.00 | $0.00 | $26.00 | $0.00 |
| 2025 | 23300 | TOTAL: | $112.15 | $112.04 | $0.00 | $0.00 | $224.19 | $0.00 |
|
| 2025 | 23300 | $112.15 | $112.04 | $0.00 | $0.00 | $224.19 | $0.00 |
Statement Details |
| 2024 | 23345 | STATE - STATE LEVY (SCHOOL) | $53.45 | $53.44 | $0.00 | $0.00 | $106.89 | $0.00 |
| 2024 | 23345 | COUNTY - COUNTY LEVIES (CE, DD, VET, MH) | $22.87 | $22.87 | $0.00 | $0.00 | $45.74 | $0.00 |
| 2024 | 23345 | CONSERVE - CONSERVATION FUTURES | $0.69 | $0.68 | $0.00 | $0.00 | $1.37 | $0.00 |
| 2024 | 23345 | CITYPT - CITY OF PT | $32.69 | $32.67 | $0.00 | $0.00 | $65.36 | $0.00 |
| 2024 | 23345 | PORTPT - PORT DISTRICT | $9.45 | $9.44 | $0.00 | $0.00 | $18.89 | $0.00 |
| 2024 | 23345 | PUD1 - PUD #1 | $1.50 | $1.50 | $0.00 | $0.00 | $3.00 | $0.00 |
| 2024 | 23345 | HD2 - HOSP DIST #2 | $1.34 | $1.33 | $0.00 | $0.00 | $2.67 | $0.00 |
| 2024 | 23345 | SD50 - SCHOOL DIST #50 | $43.25 | $43.23 | $0.00 | $0.00 | $86.48 | $0.00 |
| 2024 | 23345 | FD1 - FIRE DISTRICT #1 | $30.24 | $30.24 | $0.00 | $0.00 | $60.48 | $0.00 |
| 2024 | 23345 | EMS1 - FIRE DIST #1 EMS | $11.55 | $11.55 | $0.00 | $0.00 | $23.10 | $0.00 |
| 2024 | 23345 | FPLCA - DNR Landowner Contingency Assmt | $3.00 | $3.00 | $0.00 | $0.00 | $6.00 | $0.00 |
| 2024 | 23345 | JCCD - JC Conservation District | $2.53 | $2.53 | $0.00 | $0.00 | $5.06 | $0.00 |
| 2024 | 23345 | NWA - Noxious Weed Assessment | $2.15 | $2.15 | $0.00 | $0.00 | $4.30 | $0.00 |
| 2024 | 23345 | WAT - Clean Water District | $12.50 | $12.50 | $0.00 | $0.00 | $25.00 | $0.00 |
| 2024 | 23345 | TOTAL: | $227.21 | $227.13 | $0.00 | $0.00 | $454.34 | $0.00 |
|
| 2024 | 23345 | $227.21 | $227.13 | $0.00 | $0.00 | $454.34 | $0.00 |
Statement Details |
| 2023 | 23383 | STATE - STATE LEVY (SCHOOL) | $45.32 | $45.31 | $0.00 | $0.00 | $90.63 | $0.00 |
| 2023 | 23383 | COUNTY - COUNTY LEVIES (CE, DD, VET, MH) | $19.78 | $19.76 | $0.00 | $0.00 | $39.54 | $0.00 |
| 2023 | 23383 | CONSERVE - CONSERVATION FUTURES | $0.60 | $0.59 | $0.00 | $0.00 | $1.19 | $0.00 |
| 2023 | 23383 | CITYPT - CITY OF PT | $27.96 | $27.94 | $0.00 | $0.00 | $55.90 | $0.00 |
| 2023 | 23383 | PORTPT - PORT DISTRICT | $8.33 | $8.33 | $0.00 | $0.00 | $16.66 | $0.00 |
| 2023 | 23383 | PUD1 - PUD #1 | $1.31 | $1.31 | $0.00 | $0.00 | $2.62 | $0.00 |
| 2023 | 23383 | HD2 - HOSP DIST #2 | $1.16 | $1.15 | $0.00 | $0.00 | $2.31 | $0.00 |
| 2023 | 23383 | SD50 - SCHOOL DIST #50 | $35.97 | $35.95 | $0.00 | $0.00 | $71.92 | $0.00 |
| 2023 | 23383 | FD1 - FIRE DISTRICT #1 | $16.29 | $16.29 | $0.00 | $0.00 | $32.58 | $0.00 |
| 2023 | 23383 | EMS1 - FIRE DIST #1 EMS | $6.93 | $6.93 | $0.00 | $0.00 | $13.86 | $0.00 |
| 2023 | 23383 | FPLCA - DNR Landowner Contingency Assmt | $3.00 | $3.00 | $0.00 | $0.00 | $6.00 | $0.00 |
| 2023 | 23383 | JCCD - JC Conservation District | $2.53 | $2.53 | $0.00 | $0.00 | $5.06 | $0.00 |
| 2023 | 23383 | NWA - Noxious Weed Assessment | $2.15 | $2.15 | $0.00 | $0.00 | $4.30 | $0.00 |
| 2023 | 23383 | WAT - Clean Water District | $12.00 | $12.00 | $0.00 | $0.00 | $24.00 | $0.00 |
| 2023 | 23383 | TOTAL: | $183.33 | $183.24 | $0.00 | $0.00 | $366.57 | $0.00 |
|
| 2023 | 23383 | $183.33 | $183.24 | $0.00 | $0.00 | $366.57 | $0.00 |
Values
| (+) Improvement Homesite Value: | + | $0 | |
| (+) Improvement Non-Homesite Value: | + | $0 | |
| (+) Land Homesite Value: | + | $0 | |
| (+) Land Non-Homesite Value: | + | $21,250 | |
| (+) Curr Use (HS): | + | $0 | $0 |
| (+) Curr Use (NHS): | + | $0 | $0 |
| | | -------------------------- | |
| (=) Market Value: | = | $21,250 | |
| (–) Productivity Loss: | – | $0 | |
| | | -------------------------- | |
| (=) Subtotal: | = | $21,250 | |
| (+) Senior Appraised Value: | + | $0 | |
| (+) Non-Senior Appraised Value: | + | $21,250 | |
| | | -------------------------- | |
| (=) Total Appraised Value: | = | $21,250 | |
| (–) Senior Exemption Loss: | – | $0 | |
| (–) Exemption Loss: | – | $0 | |
| | | -------------------------- | |
| (=) Taxable Value: | = | $21,250 | |
Taxing Jurisdiction
| Owner: | JONATHAN GARRISON & STEPHANIE C PARE | | |
| % Ownership: | 100.0000000000% | | |
| Total Value: | $21,250 | | |
| Tax Area: | 0110 - C-50F1E1H2 |
| CE | COUNTY CURRENT EXPENSE | 0.9034619479 | $21,250 | $21,250 | $19.20 | | |
| CNTYDD | DEVELOPMENTAL DISABILITIES | 0.0052121823 | $21,250 | $21,250 | $0.11 | | |
| CNTYVET | VETERANS RELIEF | 0.0052777810 | $21,250 | $21,250 | $0.11 | | |
| MENTAL | MENTAL HEALTH | 0.0052121823 | $21,250 | $21,250 | $0.11 | | |
| PTGEN | CITY OF PT GENERAL | 0.8551967795 | $21,250 | $21,250 | $18.17 | | |
| PTLLL | CITY OF PT - LIBRARY LID LIFT | 0.4010114288 | $21,250 | $21,250 | $8.52 | | |
| PTMVBOND | CITY OF PT MV BOND | 0.0484717981 | $21,250 | $21,250 | $1.03 | | |
| HOSP2CASH | HOSP DIST #2 GENERAL | 0.0536075306 | $21,250 | $21,250 | $1.14 | | |
| SCH50BOND | SCHOOL DIST #50 BOND 2016 | 0.5377451389 | $21,250 | $21,250 | $11.43 | | |
| SCH50CP | SCHOOL DIST #50 CAP PROJ | 0.4573475088 | $21,250 | $21,250 | $9.72 | | |
| SCH50MO | SCHOOL DIST #50 EP & O | 0.8262822886 | $21,250 | $21,250 | $17.56 | | |
| CONSERVE | CONSERVATION FUTURES | 0.0275621078 | $21,250 | $21,250 | $0.59 | | |
| EMS1 | FIRE DIST #1 EMS | 0.4679948282 | $21,250 | $21,250 | $9.94 | | |
| FD1 | FIRE DIST #1 GENERAL | 1.2171942929 | $21,250 | $21,250 | $25.87 | | |
| PORTPT | PORT OF PT GENERAL | 0.1134941229 | $21,250 | $21,250 | $2.41 | | |
| PORTPTIDD | PORT OF PT IDD 2019 | 0.2577346692 | $21,250 | $21,250 | $5.48 | | |
| PUD1 | PUD #1 GENERAL | 0.0597888892 | $21,250 | $21,250 | $1.27 | | |
| STATE | STATE SCHOOL PART 1 | 1.4940692947 | $21,250 | $21,250 | $31.75 | | |
| STATE2 | STATE SCHOOL PART 2 | 0.8050170049 | $21,250 | $21,250 | $17.11 | | |
| | Total Tax Rate: | 8.5416817766 | | | | | |
| | | | | Taxes w/Current Exemptions: | $181.52 | | |
| | | | | Taxes w/o Exemptions: | $181.52 | | |
Improvement / Building
Sketch
| No sketches available for this property. |
Property Image
Land
| 1 | 6115-1175L | | 0.0000 | 0.00 | 0.00 | 0.00 | 1.00 | $21,250 | $0 |
Roll Value History
| 2026 | N/A | N/A | N/A | N/A | N/A |
| 2025 | $0 | $21,250 | $0 | $21,250 | $21,250 |
| 2024 | $0 | $21,000 | $0 | $21,000 | $21,000 |
| 2023 | $0 | $46,200 | $0 | $46,200 | $46,200 |
| 2022 | $0 | $38,500 | $0 | $38,500 | $38,500 |
Deed and Sales History
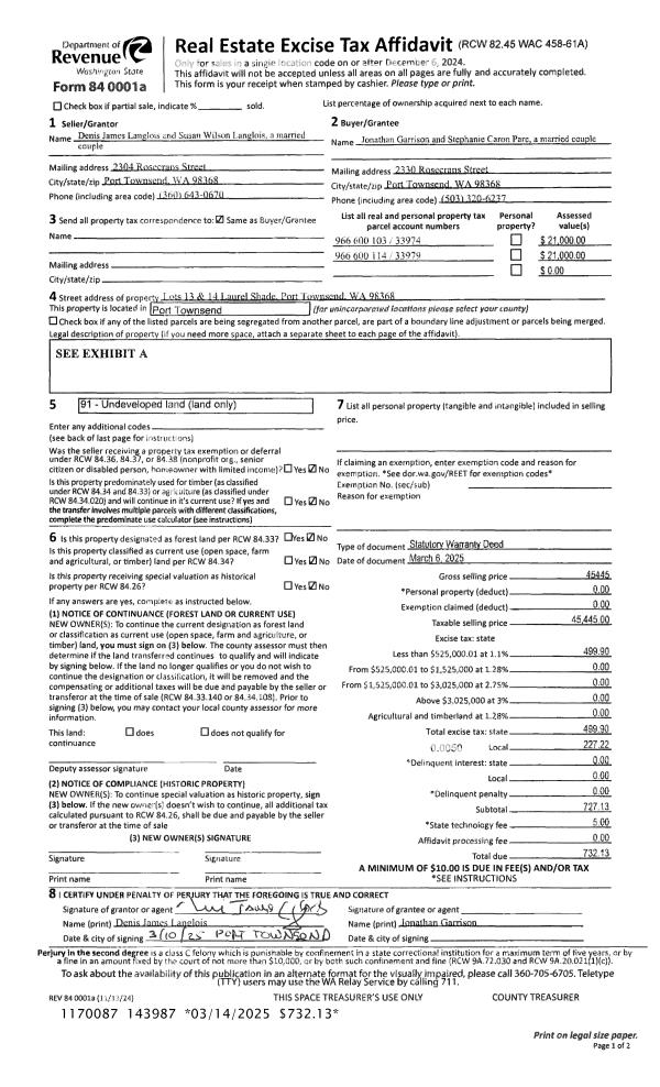
| 1 | 03/06/2025 | SWD | Statutory Warranty Deed | DENIS J LANGLOIS | JONATHAN GARRISON & STEPHANIE C PARE | | | $45,445.00 | 143987 | |
|   | |
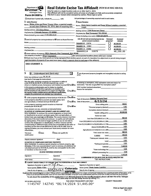
| 2 | 06/13/2024 | SWD | Statutory Warranty Deed | BLAKE ALLEN | DENIS J LANGLOIS | | | $90,000.00 | 142745 | |
|   | |
| 3 | 02/08/2018 | QCD | Quit Claim Deed | STONEHAVEN PROPERTIES LLC | BLAKE ALLEN | | | $67,200.00 | 129643 | |
|   | |
| 4 | 12/09/2009 | SWD | Statutory Warranty Deed | HAWKEYE REAL ESTATE HOLDI | STONEHAVEN PROPERTIES LLC | 0 | 0 | $0.00 | 113803 | 0 |
Payout Agreement
| No payout information available.. |