Property
Account |
| Property ID: | 33990 | Abbreviated Legal Description: | LAUREL SHADE BLK 3 LOTS 9 & 10 |
| Parcel # / Geo ID: | 966600301 | Agent Code: | |
| Type: | Real | | |
| Tax Area: | 0110 - C-50F1E1H2 | Land Use Code | 11 |
| Open Space: | N | DFL | N |
| Historic Property: | N | Remodel Property: | N |
| Multi-Family Redevelopment: | N | | |
| Township: | 30N | Section: | 3 |
| Range: | 1W |
Location |
| Address: | 1909 25TH ST PORT TOWNSEND, WA 98368 | Mapsco: | 074/100 |
| Neighborhood: | LAUREL SHADE, HASTINGS HEIGHTS & ACREAGE PROXIMITY | Map ID: | |
| Neighborhood CD: | 6115 |
Owner |
| Name: | COLLEEN M MYERS | Owner ID: | 23233 |
| Mailing Address: | 1909 25TH ST PORT TOWNSEND, WA 98368-7015 | % Ownership: | 100.0000000000% |
| | | Exemptions: | |
Pay Tax Due
Select the appropriate checkbox next to the year to be paid. Multiple years may be selected.
*Convenience Fee not included
Taxes and Assessment Details
Property Tax Information as of
03/10/2026
Click on "Statement Details" to expand or collapse a tax statement.
* Please enter a valid date ** Please enter a valid date *
Statement Details |
| 2026 | 23249 | STATE - STATE LEVY (SCHOOL) | $540.78 | $540.78 | $0.00 | $0.00 | $0.00 | $1081.56 |
| 2026 | 23249 | COUNTY - COUNTY LEVIES (CE, DD, VET, MH) | $216.21 | $216.19 | $0.00 | $0.00 | $0.00 | $432.40 |
| 2026 | 23249 | CONSERVE - CONSERVATION FUTURES | $6.49 | $6.48 | $0.00 | $0.00 | $0.00 | $12.97 |
| 2026 | 23249 | CITYPT - CITY OF PT | $306.89 | $306.87 | $0.00 | $0.00 | $0.00 | $613.76 |
| 2026 | 23249 | PORTPT - PORT DISTRICT | $87.33 | $87.31 | $0.00 | $0.00 | $0.00 | $174.64 |
| 2026 | 23249 | PUD1 - PUD #1 | $14.07 | $14.06 | $0.00 | $0.00 | $0.00 | $28.13 |
| 2026 | 23249 | HD2 - HOSP DIST #2 | $12.61 | $12.61 | $0.00 | $0.00 | $0.00 | $25.22 |
| 2026 | 23249 | SD50 - SCHOOL DIST #50 | $428.43 | $428.40 | $0.00 | $0.00 | $0.00 | $856.83 |
| 2026 | 23249 | FD1 - FIRE DISTRICT #1 | $286.30 | $286.30 | $0.00 | $0.00 | $0.00 | $572.60 |
| 2026 | 23249 | EMS1 - FIRE DIST #1 EMS | $110.08 | $110.08 | $0.00 | $0.00 | $0.00 | $220.16 |
| 2026 | 23249 | JCCD - JC Conservation District | $2.55 | $2.55 | $0.00 | $0.00 | $0.00 | $5.10 |
| 2026 | 23249 | NWA - Noxious Weed Assessment | $2.98 | $2.97 | $0.00 | $0.00 | $0.00 | $5.95 |
| 2026 | 23249 | TOTAL: | $2014.72 | $2014.60 | $0.00 | $0.00 | $0.00 | $4029.32 |
|
| 2026 | 23249 | $2014.72 | $2014.60 | $0.00 | $0.00 | $0.00 | $4029.32 |
Statement Details |
| 2025 | 23311 | STATE - STATE LEVY (SCHOOL) | $566.76 | $566.75 | $0.00 | $0.00 | $1133.51 | $0.00 |
| 2025 | 23311 | COUNTY - COUNTY LEVIES (CE, DD, VET, MH) | $222.88 | $222.86 | $0.00 | $0.00 | $445.74 | $0.00 |
| 2025 | 23311 | CONSERVE - CONSERVATION FUTURES | $6.69 | $6.68 | $0.00 | $0.00 | $13.37 | $0.00 |
| 2025 | 23311 | CITYPT - CITY OF PT | $321.41 | $321.40 | $0.00 | $0.00 | $642.81 | $0.00 |
| 2025 | 23311 | PORTPT - PORT DISTRICT | $90.95 | $90.94 | $0.00 | $0.00 | $181.89 | $0.00 |
| 2025 | 23311 | PUD1 - PUD #1 | $14.59 | $14.58 | $0.00 | $0.00 | $29.17 | $0.00 |
| 2025 | 23311 | HD2 - HOSP DIST #2 | $13.01 | $13.00 | $0.00 | $0.00 | $26.01 | $0.00 |
| 2025 | 23311 | SD50 - SCHOOL DIST #50 | $414.21 | $414.20 | $0.00 | $0.00 | $828.41 | $0.00 |
| 2025 | 23311 | FD1 - FIRE DISTRICT #1 | $294.11 | $294.10 | $0.00 | $0.00 | $588.21 | $0.00 |
| 2025 | 23311 | EMS1 - FIRE DIST #1 EMS | $113.12 | $113.12 | $0.00 | $0.00 | $226.24 | $0.00 |
| 2025 | 23311 | JCCD - JC Conservation District | $2.55 | $2.55 | $0.00 | $0.00 | $5.10 | $0.00 |
| 2025 | 23311 | NWA - Noxious Weed Assessment | $2.15 | $2.15 | $0.00 | $0.00 | $4.30 | $0.00 |
| 2025 | 23311 | TOTAL: | $2062.43 | $2062.33 | $0.00 | $0.00 | $4124.76 | $0.00 |
|
| 2025 | 23311 | $2062.43 | $2062.33 | $0.00 | $0.00 | $4124.76 | $0.00 |
Statement Details |
| 2024 | 23356 | STATE - STATE LEVY (SCHOOL) | $540.73 | $540.73 | $0.00 | $0.00 | $1081.46 | $0.00 |
| 2024 | 23356 | COUNTY - COUNTY LEVIES (CE, DD, VET, MH) | $231.40 | $231.36 | $0.00 | $0.00 | $462.76 | $0.00 |
| 2024 | 23356 | CONSERVE - CONSERVATION FUTURES | $6.94 | $6.94 | $0.00 | $0.00 | $13.88 | $0.00 |
| 2024 | 23356 | CITYPT - CITY OF PT | $330.62 | $330.60 | $0.00 | $0.00 | $661.22 | $0.00 |
| 2024 | 23356 | PORTPT - PORT DISTRICT | $95.57 | $95.57 | $0.00 | $0.00 | $191.14 | $0.00 |
| 2024 | 23356 | PUD1 - PUD #1 | $15.20 | $15.20 | $0.00 | $0.00 | $30.40 | $0.00 |
| 2024 | 23356 | HD2 - HOSP DIST #2 | $13.50 | $13.50 | $0.00 | $0.00 | $27.00 | $0.00 |
| 2024 | 23356 | SD50 - SCHOOL DIST #50 | $437.49 | $437.46 | $0.00 | $0.00 | $874.95 | $0.00 |
| 2024 | 23356 | FD1 - FIRE DISTRICT #1 | $305.95 | $305.94 | $0.00 | $0.00 | $611.89 | $0.00 |
| 2024 | 23356 | EMS1 - FIRE DIST #1 EMS | $116.86 | $116.86 | $0.00 | $0.00 | $233.72 | $0.00 |
| 2024 | 23356 | JCCD - JC Conservation District | $2.55 | $2.55 | $0.00 | $0.00 | $5.10 | $0.00 |
| 2024 | 23356 | NWA - Noxious Weed Assessment | $2.15 | $2.15 | $0.00 | $0.00 | $4.30 | $0.00 |
| 2024 | 23356 | TOTAL: | $2098.96 | $2098.86 | $0.00 | $0.00 | $4197.82 | $0.00 |
|
| 2024 | 23356 | $2098.96 | $2098.86 | $0.00 | $0.00 | $4197.82 | $0.00 |
Statement Details |
| 2023 | 23394 | STATE - STATE LEVY (SCHOOL) | $483.10 | $483.09 | $0.00 | $0.00 | $966.19 | $0.00 |
| 2023 | 23394 | COUNTY - COUNTY LEVIES (CE, DD, VET, MH) | $210.82 | $210.79 | $0.00 | $0.00 | $421.61 | $0.00 |
| 2023 | 23394 | CONSERVE - CONSERVATION FUTURES | $6.32 | $6.32 | $0.00 | $0.00 | $12.64 | $0.00 |
| 2023 | 23394 | CITYPT - CITY OF PT | $297.95 | $297.94 | $0.00 | $0.00 | $595.89 | $0.00 |
| 2023 | 23394 | PORTPT - PORT DISTRICT | $88.81 | $88.80 | $0.00 | $0.00 | $177.61 | $0.00 |
| 2023 | 23394 | PUD1 - PUD #1 | $13.98 | $13.97 | $0.00 | $0.00 | $27.95 | $0.00 |
| 2023 | 23394 | HD2 - HOSP DIST #2 | $12.31 | $12.29 | $0.00 | $0.00 | $24.60 | $0.00 |
| 2023 | 23394 | SD50 - SCHOOL DIST #50 | $383.35 | $383.34 | $0.00 | $0.00 | $766.69 | $0.00 |
| 2023 | 23394 | FD1 - FIRE DISTRICT #1 | $173.67 | $173.66 | $0.00 | $0.00 | $347.33 | $0.00 |
| 2023 | 23394 | EMS1 - FIRE DIST #1 EMS | $73.88 | $73.87 | $0.00 | $0.00 | $147.75 | $0.00 |
| 2023 | 23394 | JCCD - JC Conservation District | $2.55 | $2.55 | $0.00 | $0.00 | $5.10 | $0.00 |
| 2023 | 23394 | NWA - Noxious Weed Assessment | $2.15 | $2.15 | $0.00 | $0.00 | $4.30 | $0.00 |
| 2023 | 23394 | TOTAL: | $1748.89 | $1748.77 | $0.00 | $0.00 | $3497.66 | $0.00 |
|
| 2023 | 23394 | $1748.89 | $1748.77 | $0.00 | $0.00 | $3497.66 | $0.00 |
Values
| (+) Improvement Homesite Value: | + | $0 | |
| (+) Improvement Non-Homesite Value: | + | $270,430 | |
| (+) Land Homesite Value: | + | $0 | |
| (+) Land Non-Homesite Value: | + | $200,000 | |
| (+) Curr Use (HS): | + | $0 | $0 |
| (+) Curr Use (NHS): | + | $0 | $0 |
| | | -------------------------- | |
| (=) Market Value: | = | $470,430 | |
| (–) Productivity Loss: | – | $0 | |
| | | -------------------------- | |
| (=) Subtotal: | = | $470,430 | |
| (+) Senior Appraised Value: | + | $0 | |
| (+) Non-Senior Appraised Value: | + | $470,430 | |
| | | -------------------------- | |
| (=) Total Appraised Value: | = | $470,430 | |
| (–) Senior Exemption Loss: | – | $0 | |
| (–) Exemption Loss: | – | $0 | |
| | | -------------------------- | |
| (=) Taxable Value: | = | $470,430 | |
Taxing Jurisdiction
| Owner: | COLLEEN M MYERS | | |
| % Ownership: | 100.0000000000% | | |
| Total Value: | $470,430 | | |
| Tax Area: | 0110 - C-50F1E1H2 |
| CE | COUNTY CURRENT EXPENSE | 0.9034619479 | $470,430 | $470,430 | $425.02 | | |
| CNTYDD | DEVELOPMENTAL DISABILITIES | 0.0052121823 | $470,430 | $470,430 | $2.45 | | |
| CNTYVET | VETERANS RELIEF | 0.0052777810 | $470,430 | $470,430 | $2.48 | | |
| MENTAL | MENTAL HEALTH | 0.0052121823 | $470,430 | $470,430 | $2.45 | | |
| PTGEN | CITY OF PT GENERAL | 0.8551967795 | $470,430 | $470,430 | $402.31 | | |
| PTLLL | CITY OF PT - LIBRARY LID LIFT | 0.4010114288 | $470,430 | $470,430 | $188.65 | | |
| PTMVBOND | CITY OF PT MV BOND | 0.0484717981 | $470,430 | $470,430 | $22.80 | | |
| HOSP2CASH | HOSP DIST #2 GENERAL | 0.0536075306 | $470,430 | $470,430 | $25.22 | | |
| SCH50BOND | SCHOOL DIST #50 BOND 2016 | 0.5377451389 | $470,430 | $470,430 | $252.97 | | |
| SCH50CP | SCHOOL DIST #50 CAP PROJ | 0.4573475088 | $470,430 | $470,430 | $215.15 | | |
| SCH50MO | SCHOOL DIST #50 EP & O | 0.8262822886 | $470,430 | $470,430 | $388.71 | | |
| CONSERVE | CONSERVATION FUTURES | 0.0275621078 | $470,430 | $470,430 | $12.97 | | |
| EMS1 | FIRE DIST #1 EMS | 0.4679948282 | $470,430 | $470,430 | $220.16 | | |
| FD1 | FIRE DIST #1 GENERAL | 1.2171942929 | $470,430 | $470,430 | $572.60 | | |
| PORTPT | PORT OF PT GENERAL | 0.1134941229 | $470,430 | $470,430 | $53.39 | | |
| PORTPTIDD | PORT OF PT IDD 2019 | 0.2577346692 | $470,430 | $470,430 | $121.25 | | |
| PUD1 | PUD #1 GENERAL | 0.0597888892 | $470,430 | $470,430 | $28.13 | | |
| STATE | STATE SCHOOL PART 1 | 1.4940692947 | $470,430 | $470,430 | $702.86 | | |
| STATE2 | STATE SCHOOL PART 2 | 0.8050170049 | $470,430 | $470,430 | $378.70 | | |
| | Total Tax Rate: | 8.5416817766 | | | | | |
| | | | | Taxes w/Current Exemptions: | $4,018.27 | | |
| | | | | Taxes w/o Exemptions: | $4,018.27 | | |
Improvement / Building
| Improvement #1: | Residential Bldg | State Code: | 11 | 1368.0 sqft | Value: | $270,430 |
| Bathrooms (#): | 1 (FULL) | Bathrooms (#): | 1 (HALF) | | Bedrooms (#): | 3 | Exterior Wall: | SI/ST | | Fireplace: | WD ST-GOOD | Floor Construction: | FRAME | | Foundation: | CONPR | Heating/Cooling: | ELBB | | Roof Cover: | COMP |   |   |
|
| | Type | Description | Class CD | Sub Class CD | Year Built | Area |
| | MA | Main Area | 3+ | 1S | 1987 | 1368.0 |
| | HWPOR | House Wood Porch | 3 | * | 1987 | 96.0 |
| | GATT | House Attached Garage | 4 | 1S | 1987 | 440.0 |
| | CONCD | Concrete Drive | 3 | * | 1987 | 400.0 |
Sketch
Property Image
Land
| 1 | 6115-1175L | | 0.0000 | 0.00 | 0.00 | 0.00 | 2.00 | $200,000 | $0 |
Roll Value History
| 2026 | N/A | N/A | N/A | N/A | N/A |
| 2025 | $270,430 | $200,000 | $0 | $470,430 | $470,430 |
| 2024 | $273,185 | $199,500 | $0 | $472,685 | $472,685 |
| 2023 | $273,185 | $194,250 | $0 | $467,435 | $467,435 |
| 2022 | $250,419 | $160,000 | $0 | $410,419 | $410,419 |
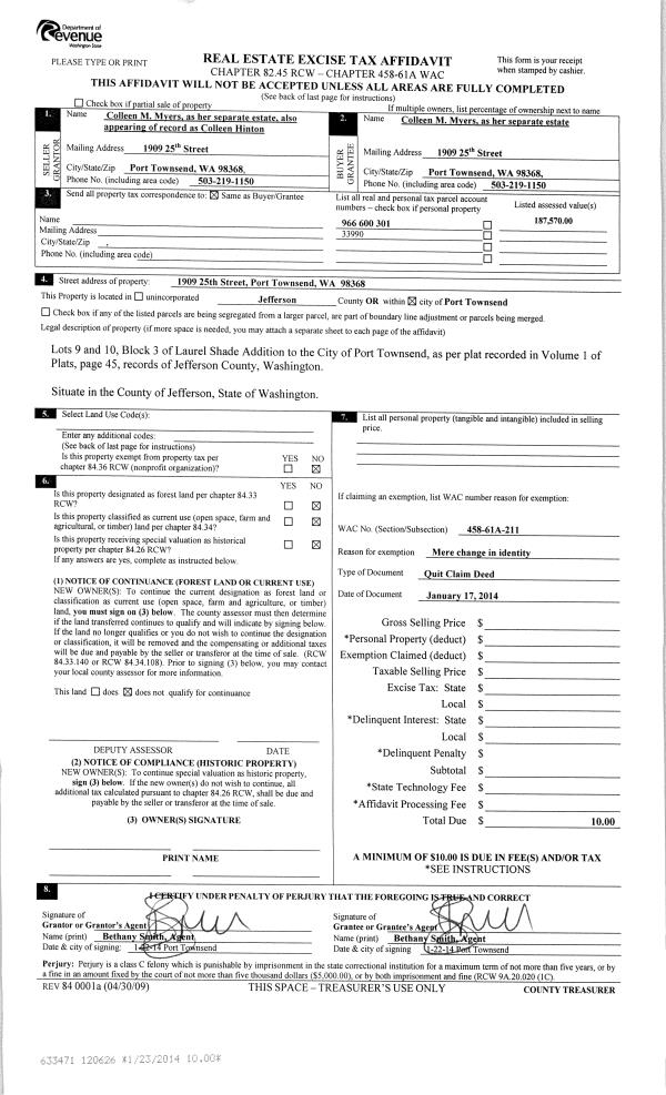
Deed and Sales History
| 1 | 01/17/2014 | QCD | Quit Claim Deed | | | | | | 120626 | |
| 2 | 11/22/1995 | SWD | Statutory Warranty Deed | TANIGUCHI FAMILY TRUST | MYERS, RICK L/COLLEEN M | 0 | 0 | $117,000.00 | 78379 | 0 |
| 3 | 04/01/1993 | QCD | Quit Claim Deed | TANIGUCHI, HARRY/ELSIE | TANIGUCHI FAMILY TRUST | 0 | 0 | $0.00 | 70920 | 0 |
Payout Agreement
| No payout information available.. |