Property
Account |
| Property ID: | 34094 | Abbreviated Legal Description: | LAZY C RANCH DIV 1 LOT 91 |
| Parcel # / Geo ID: | 966900084 | Agent Code: | |
| Type: | Real | | |
| Tax Area: | 0440 - 1-46F4E4H2C1L1Z1P2 | Land Use Code | 11 |
| Open Space: | N | DFL | N |
| Historic Property: | N | Remodel Property: | N |
| Multi-Family Redevelopment: | N | | |
| Township: | 26N | Section: | 34 |
| Range: | 2W |
Location |
| Address: | 160 PINTO LN BRINNON, WA 98320 | Mapsco: | 007/021 |
| Neighborhood: | LAZY C RANCH DIV 1 / LAZY C RANCH DIV 3 | Map ID: | |
| Neighborhood CD: | 1375 |
Owner |
| Name: | THOMAS S & MEGAN R FIELDS | Owner ID: | 92423 |
| Mailing Address: | PO BOX 482 BRINNON, WA 98320-0482 | % Ownership: | 100.0000000000% |
| | | Exemptions: | SNR/DSBL |
Pay Tax Due
Select the appropriate checkbox next to the year to be paid. Multiple years may be selected.
*Convenience Fee not included
Taxes and Assessment Details
Property Tax Information as of
03/11/2026
Click on "Statement Details" to expand or collapse a tax statement.
* Please enter a valid date ** Please enter a valid date *
Statement Details |
| 2026 | 23350 | STATE - STATE LEVY (SCHOOL) | $118.57 | $118.56 | $0.00 | $0.00 | $0.00 | $237.13 |
| 2026 | 23350 | COUNTY - COUNTY LEVIES (CE, DD, VET, MH) | $50.33 | $50.30 | $0.00 | $0.00 | $0.00 | $100.63 |
| 2026 | 23350 | CONSERVE - CONSERVATION FUTURES | $1.51 | $1.51 | $0.00 | $0.00 | $0.00 | $3.02 |
| 2026 | 23350 | COROADS - COUNTY ROADS (ROADS, DIV TO CE) | $40.59 | $40.59 | $0.00 | $0.00 | $0.00 | $81.18 |
| 2026 | 23350 | PORTPT - PORT DISTRICT | $20.32 | $20.32 | $0.00 | $0.00 | $0.00 | $40.64 |
| 2026 | 23350 | PUD1 - PUD #1 | $3.28 | $3.27 | $0.00 | $0.00 | $0.00 | $6.55 |
| 2026 | 23350 | LIB1 - LIBRARY DIST #1 | $15.71 | $15.70 | $0.00 | $0.00 | $0.00 | $31.41 |
| 2026 | 23350 | HD2 - HOSP DIST #2 | $2.94 | $2.93 | $0.00 | $0.00 | $0.00 | $5.87 |
| 2026 | 23350 | SD46 - SCHOOL DIST #46 | $31.49 | $31.48 | $0.00 | $0.00 | $0.00 | $62.97 |
| 2026 | 23350 | FD4 - FIRE DISTRICT #4 | $88.86 | $88.86 | $0.00 | $0.00 | $0.00 | $177.72 |
| 2026 | 23350 | EMS4 - FIRE DIST #4 EMS | $25.42 | $25.42 | $0.00 | $0.00 | $0.00 | $50.84 |
| 2026 | 23350 | CEM1 - CEMETERY DIST #1 | $0.59 | $0.58 | $0.00 | $0.00 | $0.00 | $1.17 |
| 2026 | 23350 | JCCD - JC Conservation District | $2.55 | $2.55 | $0.00 | $0.00 | $0.00 | $5.10 |
| 2026 | 23350 | NWA - Noxious Weed Assessment | $2.98 | $2.97 | $0.00 | $0.00 | $0.00 | $5.95 |
| 2026 | 23350 | OSS - On Site Septic | $23.10 | $23.10 | $0.00 | $0.00 | $0.00 | $46.20 |
| 2026 | 23350 | WAT - Clean Water District | $13.00 | $13.00 | $0.00 | $0.00 | $0.00 | $26.00 |
| 2026 | 23350 | TOTAL: | $441.24 | $441.14 | $0.00 | $0.00 | $0.00 | $882.38 |
|
| 2026 | 23350 | $441.24 | $441.14 | $0.00 | $0.00 | $0.00 | $882.38 |
Statement Details |
| 2025 | 23412 | STATE - STATE LEVY (SCHOOL) | $113.72 | $113.70 | $0.00 | $0.00 | $227.42 | $0.00 |
| 2025 | 23412 | COUNTY - COUNTY LEVIES (CE, DD, VET, MH) | $47.71 | $47.69 | $0.00 | $0.00 | $95.40 | $0.00 |
| 2025 | 23412 | CONSERVE - CONSERVATION FUTURES | $1.43 | $1.43 | $0.00 | $0.00 | $2.86 | $0.00 |
| 2025 | 23412 | COROADS - COUNTY ROADS (ROADS, DIV TO CE) | $38.22 | $38.21 | $0.00 | $0.00 | $76.43 | $0.00 |
| 2025 | 23412 | PORTPT - PORT DISTRICT | $19.47 | $19.46 | $0.00 | $0.00 | $38.93 | $0.00 |
| 2025 | 23412 | PUD1 - PUD #1 | $3.12 | $3.12 | $0.00 | $0.00 | $6.24 | $0.00 |
| 2025 | 23412 | LIB1 - LIBRARY DIST #1 | $14.79 | $14.78 | $0.00 | $0.00 | $29.57 | $0.00 |
| 2025 | 23412 | HD2 - HOSP DIST #2 | $2.79 | $2.78 | $0.00 | $0.00 | $5.57 | $0.00 |
| 2025 | 23412 | SD46 - SCHOOL DIST #46 | $26.33 | $26.33 | $0.00 | $0.00 | $52.66 | $0.00 |
| 2025 | 23412 | FD4 - FIRE DISTRICT #4 | $86.23 | $86.21 | $0.00 | $0.00 | $172.44 | $0.00 |
| 2025 | 23412 | EMS4 - FIRE DIST #4 EMS | $24.65 | $24.65 | $0.00 | $0.00 | $49.30 | $0.00 |
| 2025 | 23412 | CEM1 - CEMETERY DIST #1 | $0.57 | $0.57 | $0.00 | $0.00 | $1.14 | $0.00 |
| 2025 | 23412 | JCCD - JC Conservation District | $2.55 | $2.55 | $0.00 | $0.00 | $5.10 | $0.00 |
| 2025 | 23412 | NWA - Noxious Weed Assessment | $2.15 | $2.15 | $0.00 | $0.00 | $4.30 | $0.00 |
| 2025 | 23412 | OSS - On Site Septic | $21.50 | $21.50 | $0.00 | $0.00 | $43.00 | $0.00 |
| 2025 | 23412 | WAT - Clean Water District | $13.00 | $13.00 | $0.00 | $0.00 | $26.00 | $0.00 |
| 2025 | 23412 | TOTAL: | $418.23 | $418.13 | $0.00 | $0.00 | $836.36 | $0.00 |
|
| 2025 | 23412 | $418.23 | $418.13 | $0.00 | $0.00 | $836.36 | $0.00 |
Statement Details |
| 2024 | 23457 | STATE - STATE LEVY (SCHOOL) | $108.72 | $108.71 | $0.00 | $0.00 | $217.43 | $0.00 |
| 2024 | 23457 | COUNTY - COUNTY LEVIES (CE, DD, VET, MH) | $50.10 | $50.06 | $0.00 | $0.00 | $100.16 | $0.00 |
| 2024 | 23457 | CONSERVE - CONSERVATION FUTURES | $1.50 | $1.50 | $0.00 | $0.00 | $3.00 | $0.00 |
| 2024 | 23457 | COROADS - COUNTY ROADS (ROADS, DIV TO CE) | $40.30 | $40.29 | $0.00 | $0.00 | $80.59 | $0.00 |
| 2024 | 23457 | PORTPT - PORT DISTRICT | $20.69 | $20.68 | $0.00 | $0.00 | $41.37 | $0.00 |
| 2024 | 23457 | PUD1 - PUD #1 | $3.29 | $3.29 | $0.00 | $0.00 | $6.58 | $0.00 |
| 2024 | 23457 | LIB1 - LIBRARY DIST #1 | $15.59 | $15.59 | $0.00 | $0.00 | $31.18 | $0.00 |
| 2024 | 23457 | HD2 - HOSP DIST #2 | $2.92 | $2.92 | $0.00 | $0.00 | $5.84 | $0.00 |
| 2024 | 23457 | SD46 - SCHOOL DIST #46 | $27.99 | $27.98 | $0.00 | $0.00 | $55.97 | $0.00 |
| 2024 | 23457 | FD4 - FIRE DISTRICT #4 | $87.74 | $87.72 | $0.00 | $0.00 | $175.46 | $0.00 |
| 2024 | 23457 | EMS4 - FIRE DIST #4 EMS | $25.29 | $25.29 | $0.00 | $0.00 | $50.58 | $0.00 |
| 2024 | 23457 | CEM1 - CEMETERY DIST #1 | $0.59 | $0.59 | $0.00 | $0.00 | $1.18 | $0.00 |
| 2024 | 23457 | JCCD - JC Conservation District | $2.55 | $2.55 | $0.00 | $0.00 | $5.10 | $0.00 |
| 2024 | 23457 | NWA - Noxious Weed Assessment | $2.15 | $2.15 | $0.00 | $0.00 | $4.30 | $0.00 |
| 2024 | 23457 | OSS - On Site Septic | $21.00 | $21.00 | $0.00 | $0.00 | $42.00 | $0.00 |
| 2024 | 23457 | WAT - Clean Water District | $12.50 | $12.50 | $0.00 | $0.00 | $25.00 | $0.00 |
| 2024 | 23457 | TOTAL: | $422.92 | $422.82 | $0.00 | $0.00 | $845.74 | $0.00 |
|
| 2024 | 23457 | $422.92 | $422.82 | $0.00 | $0.00 | $845.74 | $0.00 |
Statement Details |
| 2023 | 23495 | STATE - STATE LEVY (SCHOOL) | $211.56 | $0.00 | $0.00 | $0.00 | $211.56 | $0.00 |
| 2023 | 23495 | COUNTY - COUNTY LEVIES (CE, DD, VET, MH) | $98.79 | $0.00 | $0.00 | $0.00 | $98.79 | $0.00 |
| 2023 | 23495 | CONSERVE - CONSERVATION FUTURES | $2.96 | $0.00 | $0.00 | $0.00 | $2.96 | $0.00 |
| 2023 | 23495 | COROADS - COUNTY ROADS (ROADS, DIV TO CE) | $79.93 | $0.00 | $0.00 | $0.00 | $79.93 | $0.00 |
| 2023 | 23495 | PORTPT - PORT DISTRICT | $41.62 | $0.00 | $0.00 | $0.00 | $41.62 | $0.00 |
| 2023 | 23495 | PUD1 - PUD #1 | $6.55 | $0.00 | $0.00 | $0.00 | $6.55 | $0.00 |
| 2023 | 23495 | LIB1 - LIBRARY DIST #1 | $30.92 | $0.00 | $0.00 | $0.00 | $30.92 | $0.00 |
| 2023 | 23495 | HD2 - HOSP DIST #2 | $5.76 | $0.00 | $0.00 | $0.00 | $5.76 | $0.00 |
| 2023 | 23495 | SD46 - SCHOOL DIST #46 | $60.00 | $0.00 | $0.00 | $0.00 | $60.00 | $0.00 |
| 2023 | 23495 | FD4 - FIRE DISTRICT #4 | $116.75 | $0.00 | $0.00 | $0.00 | $116.75 | $0.00 |
| 2023 | 23495 | EMS4 - FIRE DIST #4 EMS | $34.94 | $0.00 | $0.00 | $0.00 | $34.94 | $0.00 |
| 2023 | 23495 | CEM1 - CEMETERY DIST #1 | $1.24 | $0.00 | $0.00 | $0.00 | $1.24 | $0.00 |
| 2023 | 23495 | JCCD - JC Conservation District | $5.10 | $0.00 | $0.00 | $0.00 | $5.10 | $0.00 |
| 2023 | 23495 | NWA - Noxious Weed Assessment | $4.30 | $0.00 | $0.00 | $0.00 | $4.30 | $0.00 |
| 2023 | 23495 | OSS - On Site Septic | $41.00 | $0.00 | $0.00 | $0.00 | $41.00 | $0.00 |
| 2023 | 23495 | WAT - Clean Water District | $24.00 | $0.00 | $0.00 | $0.00 | $24.00 | $0.00 |
| 2023 | 23495 | TOTAL: | $765.42 | $0.00 | $0.00 | $0.00 | $765.42 | $0.00 |
|
| 2023 | 23495 | $765.42 | $0.00 | $0.00 | $0.00 | $765.42 | $0.00 |
Values
| (+) Improvement Homesite Value: | + | $66,642 | |
| (+) Improvement Non-Homesite Value: | + | $66,641 | |
| (+) Land Homesite Value: | + | $24,750 | |
| (+) Land Non-Homesite Value: | + | $24,750 | |
| (+) Curr Use (HS): | + | $0 | $0 |
| (+) Curr Use (NHS): | + | $0 | $0 |
| | | -------------------------- | |
| (=) Market Value: | = | $182,783 | |
| (–) Productivity Loss: | – | $0 | |
| | | -------------------------- | |
| (=) Subtotal: | = | $182,783 | |
| (+) Senior Appraised Value: | + | $78,083 | |
| (+) Non-Senior Appraised Value: | + | $91,391 | |
| | | -------------------------- | |
| (=) Total Appraised Value: | = | $169,474 | |
| (–) Senior Exemption Loss: | – | $60,000 | |
| (–) Exemption Loss: | – | $0 | |
| | | -------------------------- | |
| (=) Taxable Value: | = | $109,474 | |
Taxing Jurisdiction
| Owner: | THOMAS S & MEGAN R FIELDS | | |
| % Ownership: | 100.0000000000% | | |
| Total Value: | $182,783 | | |
| Tax Area: | 0440 - 1-46F4E4H2C1L1Z1P2 |
| CE | COUNTY CURRENT EXPENSE | 0.9034619479 | $182,783 | $109,474 | $98.91 | | |
| CNTYDD | DEVELOPMENTAL DISABILITIES | 0.0052121823 | $182,783 | $109,474 | $0.57 | | |
| CNTYVET | VETERANS RELIEF | 0.0052777810 | $182,783 | $109,474 | $0.58 | | |
| MENTAL | MENTAL HEALTH | 0.0052121823 | $182,783 | $109,474 | $0.57 | | |
| ROADS | COUNTY ROADS | 0.7415066410 | $182,783 | $109,474 | $81.18 | | |
| ROADSCU | COUNTY ROADS TO CUR EXP | 0.0000000000 | $182,783 | $109,474 | $0.00 | | |
| HOSP2CASH | HOSP DIST #2 GENERAL | 0.0536075306 | $182,783 | $109,474 | $5.87 | | |
| SCH46MO | SCHOOL DIST #46 EP & O | 0.0000000000 | $182,783 | $91,391 | $62.97 | | |
| CEM1 | CEMETERY DIST #1 GENERAL | 0.0107168292 | $182,783 | $109,474 | $1.17 | | |
| CONSERVE | CONSERVATION FUTURES | 0.0275621078 | $182,783 | $109,474 | $3.02 | | |
| EMS4 | FIRE DIST #4 EMS | 0.4644216158 | $182,783 | $109,474 | $50.84 | | |
| FD4 | FIRE DIST #4 GENERAL | 1.3939598390 | $182,783 | $109,474 | $152.60 | | |
| FD4BOND | FIRE DIST #4 BOND 2019 | 0.0000000000 | $182,783 | $91,391 | $25.12 | | |
| LIB1 | LIBRARY DIST #1 GENERAL | 0.2868827388 | $182,783 | $109,474 | $31.41 | | |
| PORTPT | PORT OF PT GENERAL | 0.1134941229 | $182,783 | $109,474 | $12.42 | | |
| PORTPTIDD | PORT OF PT IDD 2019 | 0.2577346692 | $182,783 | $109,474 | $28.22 | | |
| PUD1 | PUD #1 GENERAL | 0.0597888892 | $182,783 | $109,474 | $6.55 | | |
| STATE | STATE SCHOOL PART 1 | 1.4940692947 | $182,783 | $109,474 | $163.56 | | |
| STATE2 | STATE SCHOOL PART 2 | 0.0000000000 | $182,783 | $91,391 | $73.57 | | |
| | Total Tax Rate: | 5.8229083717 | | | | | |
| | | | | Taxes w/Current Exemptions: | $799.13 | | |
| | | | | Taxes w/o Exemptions: | $1,387.64 | | |
Improvement / Building
| Improvement #1: | Manufactured Home | State Code: | 11 | 1320.0 sqft | Value: | $133,283 |
| Bathrooms (#): | 2 (FULL) | Bedrooms (#): | 3 | | Exterior Wall: | PL/T1 | Fireplace: | WD ST-AVG | | Floor Construction: | FRAME | Foundation: | PO&BL | | Heating/Cooling: | F/A | Roof Cover: | COMP |
|
| | Type | Description | Class CD | Sub Class CD | Year Built | Area |
| | MA | Main Area | 4- | MDBL | 1987 | 1320.0 |
| | MWPOR | MH Wood Porch | 3 | * | 1987 | 248.0 |
| | MDET | MH Detached Garage | 3 | MDBL | 1987 | 768.0 |
| | SHED | Shed (Table Not Dep) | 3 | * | 1987 | 204.0 |
| | MSKIRT_MTL | MH Skirting - Metal/Vinyl | 3 | * | 1987 | 148.0 |
Sketch
Property Image
Land
| 1 | 1375-1175L | | 0.0000 | 0.00 | 0.00 | 0.00 | 1.00 | $49,500 | $0 |
Roll Value History
| 2026 | N/A | N/A | N/A | N/A | N/A |
| 2025 | $133,283 | $49,500 | $0 | $182,783 | $109,474 |
| 2024 | $121,166 | $45,000 | $0 | $166,166 | $101,166 |
| 2023 | $121,166 | $40,000 | $0 | $161,166 | $101,166 |
| 2022 | $121,166 | $35,000 | $0 | $156,166 | $96,166 |
Deed and Sales History
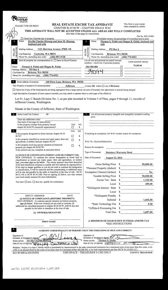
| 1 | 08/22/2014 | SWD | Statutory Warranty Deed | ORVILLE C HISSONG | THOMAS S & MEGAN R FIELDS | | | $90,000.00 | 121793 | |
| 2 | 09/15/1998 | SWD | Statutory Warranty Deed | CALKINS, HELEN DJ | HISSONG, ORVILLE/JEAN | 0 | 0 | $80,000.00 | 85321 | 0 |
Payout Agreement
| No payout information available.. |