Property
Account |
| Property ID: | 34141 | Abbreviated Legal Description: | LAZY C RANCH DIV 1 LOT 140 |
| Parcel # / Geo ID: | 966900133 | Agent Code: | |
| Type: | Real | | |
| Tax Area: | 0440 - 1-46F4E4H2C1L1Z1P2 | Land Use Code | 11 |
| Open Space: | N | DFL | N |
| Historic Property: | N | Remodel Property: | N |
| Multi-Family Redevelopment: | N | | |
| Township: | 26N | Section: | 34 |
| Range: | 2W |
Location |
| Address: | 343 APPALOOSA DR BRINNON, WA 98320 | Mapsco: | 008/020 |
| Neighborhood: | LAZY C RANCH DIV 1 / LAZY C RANCH DIV 3 | Map ID: | |
| Neighborhood CD: | 1375 |
Owner |
| Name: | JOSPEH & HANNA LEE | Owner ID: | 113317 |
| Mailing Address: | 343 APPALOOSA DR BRINNON, WA 98320-9678 | % Ownership: | 100.0000000000% |
| | | Exemptions: | |
Pay Tax Due
Select the appropriate checkbox next to the year to be paid. Multiple years may be selected.
*Convenience Fee not included
Taxes and Assessment Details
Property Tax Information as of
03/09/2026
Click on "Statement Details" to expand or collapse a tax statement.
* Please enter a valid date ** Please enter a valid date *
Statement Details |
| 2026 | 23397 | STATE - STATE LEVY (SCHOOL) | $168.35 | $168.34 | $0.00 | $0.00 | $0.00 | $336.69 |
| 2026 | 23397 | COUNTY - COUNTY LEVIES (CE, DD, VET, MH) | $67.31 | $67.29 | $0.00 | $0.00 | $0.00 | $134.60 |
| 2026 | 23397 | CONSERVE - CONSERVATION FUTURES | $2.02 | $2.02 | $0.00 | $0.00 | $0.00 | $4.04 |
| 2026 | 23397 | COROADS - COUNTY ROADS (ROADS, DIV TO CE) | $54.30 | $54.29 | $0.00 | $0.00 | $0.00 | $108.59 |
| 2026 | 23397 | PORTPT - PORT DISTRICT | $27.18 | $27.18 | $0.00 | $0.00 | $0.00 | $54.36 |
| 2026 | 23397 | PUD1 - PUD #1 | $4.38 | $4.38 | $0.00 | $0.00 | $0.00 | $8.76 |
| 2026 | 23397 | LIB1 - LIBRARY DIST #1 | $21.01 | $21.00 | $0.00 | $0.00 | $0.00 | $42.01 |
| 2026 | 23397 | HD2 - HOSP DIST #2 | $3.93 | $3.92 | $0.00 | $0.00 | $0.00 | $7.85 |
| 2026 | 23397 | SD46 - SCHOOL DIST #46 | $50.45 | $50.45 | $0.00 | $0.00 | $0.00 | $100.90 |
| 2026 | 23397 | FD4 - FIRE DISTRICT #4 | $122.20 | $122.19 | $0.00 | $0.00 | $0.00 | $244.39 |
| 2026 | 23397 | EMS4 - FIRE DIST #4 EMS | $34.01 | $34.00 | $0.00 | $0.00 | $0.00 | $68.01 |
| 2026 | 23397 | CEM1 - CEMETERY DIST #1 | $0.79 | $0.78 | $0.00 | $0.00 | $0.00 | $1.57 |
| 2026 | 23397 | JCCD - JC Conservation District | $2.55 | $2.55 | $0.00 | $0.00 | $0.00 | $5.10 |
| 2026 | 23397 | NWA - Noxious Weed Assessment | $2.98 | $2.97 | $0.00 | $0.00 | $0.00 | $5.95 |
| 2026 | 23397 | OSS - On Site Septic | $23.10 | $23.10 | $0.00 | $0.00 | $0.00 | $46.20 |
| 2026 | 23397 | WAT - Clean Water District | $13.00 | $13.00 | $0.00 | $0.00 | $0.00 | $26.00 |
| 2026 | 23397 | TOTAL: | $597.56 | $597.46 | $0.00 | $0.00 | $0.00 | $1195.02 |
|
| 2026 | 23397 | $597.56 | $597.46 | $0.00 | $0.00 | $0.00 | $1195.02 |
Statement Details |
| 2025 | 23459 | STATE - STATE LEVY (SCHOOL) | $159.63 | $159.62 | $0.00 | $0.00 | $319.25 | $0.00 |
| 2025 | 23459 | COUNTY - COUNTY LEVIES (CE, DD, VET, MH) | $62.78 | $62.76 | $0.00 | $0.00 | $125.54 | $0.00 |
| 2025 | 23459 | CONSERVE - CONSERVATION FUTURES | $1.88 | $1.88 | $0.00 | $0.00 | $3.76 | $0.00 |
| 2025 | 23459 | COROADS - COUNTY ROADS (ROADS, DIV TO CE) | $50.29 | $50.29 | $0.00 | $0.00 | $100.58 | $0.00 |
| 2025 | 23459 | PORTPT - PORT DISTRICT | $25.62 | $25.61 | $0.00 | $0.00 | $51.23 | $0.00 |
| 2025 | 23459 | PUD1 - PUD #1 | $4.11 | $4.10 | $0.00 | $0.00 | $8.21 | $0.00 |
| 2025 | 23459 | LIB1 - LIBRARY DIST #1 | $19.46 | $19.45 | $0.00 | $0.00 | $38.91 | $0.00 |
| 2025 | 23459 | HD2 - HOSP DIST #2 | $3.66 | $3.66 | $0.00 | $0.00 | $7.32 | $0.00 |
| 2025 | 23459 | SD46 - SCHOOL DIST #46 | $42.19 | $42.19 | $0.00 | $0.00 | $84.38 | $0.00 |
| 2025 | 23459 | FD4 - FIRE DISTRICT #4 | $116.93 | $116.92 | $0.00 | $0.00 | $233.85 | $0.00 |
| 2025 | 23459 | EMS4 - FIRE DIST #4 EMS | $32.44 | $32.44 | $0.00 | $0.00 | $64.88 | $0.00 |
| 2025 | 23459 | CEM1 - CEMETERY DIST #1 | $0.75 | $0.75 | $0.00 | $0.00 | $1.50 | $0.00 |
| 2025 | 23459 | JCCD - JC Conservation District | $2.55 | $2.55 | $0.00 | $0.00 | $5.10 | $0.00 |
| 2025 | 23459 | NWA - Noxious Weed Assessment | $2.15 | $2.15 | $0.00 | $0.00 | $4.30 | $0.00 |
| 2025 | 23459 | OSS - On Site Septic | $21.50 | $21.50 | $0.00 | $0.00 | $43.00 | $0.00 |
| 2025 | 23459 | WAT - Clean Water District | $13.00 | $13.00 | $0.00 | $0.00 | $26.00 | $0.00 |
| 2025 | 23459 | TOTAL: | $558.94 | $558.87 | $0.00 | $0.00 | $1117.81 | $0.00 |
|
| 2025 | 23459 | $558.94 | $558.87 | $0.00 | $0.00 | $1117.81 | $0.00 |
Statement Details |
| 2024 | 23504 | STATE - STATE LEVY (SCHOOL) | $80.59 | $80.57 | $0.00 | $0.00 | $161.16 | $0.00 |
| 2024 | 23504 | COUNTY - COUNTY LEVIES (CE, DD, VET, MH) | $34.50 | $34.46 | $0.00 | $0.00 | $68.96 | $0.00 |
| 2024 | 23504 | CONSERVE - CONSERVATION FUTURES | $1.04 | $1.03 | $0.00 | $0.00 | $2.07 | $0.00 |
| 2024 | 23504 | COROADS - COUNTY ROADS (ROADS, DIV TO CE) | $27.75 | $27.74 | $0.00 | $0.00 | $55.49 | $0.00 |
| 2024 | 23504 | PORTPT - PORT DISTRICT | $14.25 | $14.23 | $0.00 | $0.00 | $28.48 | $0.00 |
| 2024 | 23504 | PUD1 - PUD #1 | $2.27 | $2.26 | $0.00 | $0.00 | $4.53 | $0.00 |
| 2024 | 23504 | LIB1 - LIBRARY DIST #1 | $10.74 | $10.73 | $0.00 | $0.00 | $21.47 | $0.00 |
| 2024 | 23504 | HD2 - HOSP DIST #2 | $2.01 | $2.01 | $0.00 | $0.00 | $4.02 | $0.00 |
| 2024 | 23504 | SD46 - SCHOOL DIST #46 | $24.19 | $24.19 | $0.00 | $0.00 | $48.38 | $0.00 |
| 2024 | 23504 | FD4 - FIRE DISTRICT #4 | $62.49 | $62.48 | $0.00 | $0.00 | $124.97 | $0.00 |
| 2024 | 23504 | EMS4 - FIRE DIST #4 EMS | $17.42 | $17.41 | $0.00 | $0.00 | $34.83 | $0.00 |
| 2024 | 23504 | CEM1 - CEMETERY DIST #1 | $0.41 | $0.40 | $0.00 | $0.00 | $0.81 | $0.00 |
| 2024 | 23504 | JCCD - JC Conservation District | $2.55 | $2.55 | $0.00 | $0.00 | $5.10 | $0.00 |
| 2024 | 23504 | NWA - Noxious Weed Assessment | $2.15 | $2.15 | $0.00 | $0.00 | $4.30 | $0.00 |
| 2024 | 23504 | OSS - On Site Septic | $21.00 | $21.00 | $0.00 | $0.00 | $42.00 | $0.00 |
| 2024 | 23504 | WAT - Clean Water District | $12.50 | $12.50 | $0.00 | $0.00 | $25.00 | $0.00 |
| 2024 | 23504 | TOTAL: | $315.86 | $315.71 | $0.00 | $0.00 | $631.57 | $0.00 |
|
| 2024 | 23504 | $315.86 | $315.71 | $0.00 | $0.00 | $631.57 | $0.00 |
Statement Details |
| 2023 | 23542 | STATE - STATE LEVY (SCHOOL) | $76.11 | $76.10 | $0.00 | $0.00 | $152.21 | $0.00 |
| 2023 | 23542 | COUNTY - COUNTY LEVIES (CE, DD, VET, MH) | $33.21 | $33.21 | $0.00 | $0.00 | $66.42 | $0.00 |
| 2023 | 23542 | CONSERVE - CONSERVATION FUTURES | $1.00 | $0.99 | $0.00 | $0.00 | $1.99 | $0.00 |
| 2023 | 23542 | COROADS - COUNTY ROADS (ROADS, DIV TO CE) | $26.88 | $26.86 | $0.00 | $0.00 | $53.74 | $0.00 |
| 2023 | 23542 | PORTPT - PORT DISTRICT | $13.99 | $13.99 | $0.00 | $0.00 | $27.98 | $0.00 |
| 2023 | 23542 | PUD1 - PUD #1 | $2.20 | $2.20 | $0.00 | $0.00 | $4.40 | $0.00 |
| 2023 | 23542 | LIB1 - LIBRARY DIST #1 | $10.40 | $10.39 | $0.00 | $0.00 | $20.79 | $0.00 |
| 2023 | 23542 | HD2 - HOSP DIST #2 | $1.94 | $1.93 | $0.00 | $0.00 | $3.87 | $0.00 |
| 2023 | 23542 | SD46 - SCHOOL DIST #46 | $24.84 | $24.84 | $0.00 | $0.00 | $49.68 | $0.00 |
| 2023 | 23542 | FD4 - FIRE DISTRICT #4 | $41.30 | $41.30 | $0.00 | $0.00 | $82.60 | $0.00 |
| 2023 | 23542 | EMS4 - FIRE DIST #4 EMS | $11.75 | $11.74 | $0.00 | $0.00 | $23.49 | $0.00 |
| 2023 | 23542 | CEM1 - CEMETERY DIST #1 | $0.42 | $0.41 | $0.00 | $0.00 | $0.83 | $0.00 |
| 2023 | 23542 | JCCD - JC Conservation District | $2.55 | $2.55 | $0.00 | $0.00 | $5.10 | $0.00 |
| 2023 | 23542 | NWA - Noxious Weed Assessment | $2.15 | $2.15 | $0.00 | $0.00 | $4.30 | $0.00 |
| 2023 | 23542 | OSS - On Site Septic | $20.50 | $20.50 | $0.00 | $0.00 | $41.00 | $0.00 |
| 2023 | 23542 | WAT - Clean Water District | $12.00 | $12.00 | $0.00 | $0.00 | $24.00 | $0.00 |
| 2023 | 23542 | TOTAL: | $281.24 | $281.16 | $0.00 | $0.00 | $562.40 | $0.00 |
|
| 2023 | 23542 | $281.24 | $281.16 | $0.00 | $0.00 | $562.40 | $0.00 |
Values
| (+) Improvement Homesite Value: | + | $0 | |
| (+) Improvement Non-Homesite Value: | + | $80,443 | |
| (+) Land Homesite Value: | + | $0 | |
| (+) Land Non-Homesite Value: | + | $66,000 | |
| (+) Curr Use (HS): | + | $0 | $0 |
| (+) Curr Use (NHS): | + | $0 | $0 |
| | | -------------------------- | |
| (=) Market Value: | = | $146,443 | |
| (–) Productivity Loss: | – | $0 | |
| | | -------------------------- | |
| (=) Subtotal: | = | $146,443 | |
| (+) Senior Appraised Value: | + | $0 | |
| (+) Non-Senior Appraised Value: | + | $146,443 | |
| | | -------------------------- | |
| (=) Total Appraised Value: | = | $146,443 | |
| (–) Senior Exemption Loss: | – | $0 | |
| (–) Exemption Loss: | – | $0 | |
| | | -------------------------- | |
| (=) Taxable Value: | = | $146,443 | |
Taxing Jurisdiction
| Owner: | JOSPEH & HANNA LEE | | |
| % Ownership: | 100.0000000000% | | |
| Total Value: | $146,443 | | |
| Tax Area: | 0440 - 1-46F4E4H2C1L1Z1P2 |
| CE | COUNTY CURRENT EXPENSE | 0.9034619479 | $146,443 | $146,443 | $132.31 | | |
| CNTYDD | DEVELOPMENTAL DISABILITIES | 0.0052121823 | $146,443 | $146,443 | $0.76 | | |
| CNTYVET | VETERANS RELIEF | 0.0052777810 | $146,443 | $146,443 | $0.77 | | |
| MENTAL | MENTAL HEALTH | 0.0052121823 | $146,443 | $146,443 | $0.76 | | |
| ROADS | COUNTY ROADS | 0.7415066410 | $146,443 | $146,443 | $108.59 | | |
| ROADSCU | COUNTY ROADS TO CUR EXP | 0.0000000000 | $146,443 | $146,443 | $0.00 | | |
| HOSP2CASH | HOSP DIST #2 GENERAL | 0.0536075306 | $146,443 | $146,443 | $7.85 | | |
| SCH46MO | SCHOOL DIST #46 EP & O | 0.6890207067 | $146,443 | $146,443 | $100.90 | | |
| CEM1 | CEMETERY DIST #1 GENERAL | 0.0107168292 | $146,443 | $146,443 | $1.57 | | |
| CONSERVE | CONSERVATION FUTURES | 0.0275621078 | $146,443 | $146,443 | $4.04 | | |
| EMS4 | FIRE DIST #4 EMS | 0.4644216158 | $146,443 | $146,443 | $68.01 | | |
| FD4 | FIRE DIST #4 GENERAL | 1.3939598390 | $146,443 | $146,443 | $204.14 | | |
| FD4BOND | FIRE DIST #4 BOND 2019 | 0.2748466981 | $146,443 | $146,443 | $40.25 | | |
| LIB1 | LIBRARY DIST #1 GENERAL | 0.2868827388 | $146,443 | $146,443 | $42.01 | | |
| PORTPT | PORT OF PT GENERAL | 0.1134941229 | $146,443 | $146,443 | $16.62 | | |
| PORTPTIDD | PORT OF PT IDD 2019 | 0.2577346692 | $146,443 | $146,443 | $37.74 | | |
| PUD1 | PUD #1 GENERAL | 0.0597888892 | $146,443 | $146,443 | $8.76 | | |
| STATE | STATE SCHOOL PART 1 | 1.4940692947 | $146,443 | $146,443 | $218.80 | | |
| STATE2 | STATE SCHOOL PART 2 | 0.8050170049 | $146,443 | $146,443 | $117.89 | | |
| | Total Tax Rate: | 7.5917927814 | | | | | |
| | | | | Taxes w/Current Exemptions: | $1,111.77 | | |
| | | | | Taxes w/o Exemptions: | $1,111.77 | | |
Improvement / Building
| Improvement #1: | Manufactured Home | State Code: | 11 | 960.0 sqft | Value: | $80,443 |
| Bathrooms (#): | 1 (FULL) | Bathrooms (#): | 1 (HALF) | | Bedrooms (#): | 2 | Exterior Wall: | METAL | | Fireplace: | WD ST-AVG | Floor Construction: | FRAME | | Foundation: | PO&BL | Heating/Cooling: | F/A | | Roof Cover: | METAL |   |   |
|
| | Type | Description | Class CD | Sub Class CD | Year Built | Area |
| | MA | Main Area | 3 | MFH | 1965 | 960.0 |
| | CARPTF | Carport W/Floor | 3 | * | 1965 | 972.0 |
| | SHED | Shed (Table Not Dep) | 3 | * | 1965 | 288.0 |
| | MSKIRT_MTL | MH Skirting - Metal/Vinyl | 3 | * | 1965 | 136.0 |
| | CONCD | Concrete Drive | 3 | * | 1965 | 360.0 |
Sketch
Property Image
Land
| 1 | 1375-1373S | | 0.0000 | 0.00 | 0.00 | 0.00 | 1.00 | $66,000 | $0 |
Roll Value History
| 2026 | N/A | N/A | N/A | N/A | N/A |
| 2025 | $80,443 | $66,000 | $0 | $146,443 | $146,443 |
| 2024 | $73,130 | $60,000 | $0 | $133,130 | $133,130 |
| 2023 | $29,656 | $40,000 | $0 | $69,656 | $69,656 |
| 2022 | $29,656 | $35,000 | $0 | $64,656 | $64,656 |
Deed and Sales History
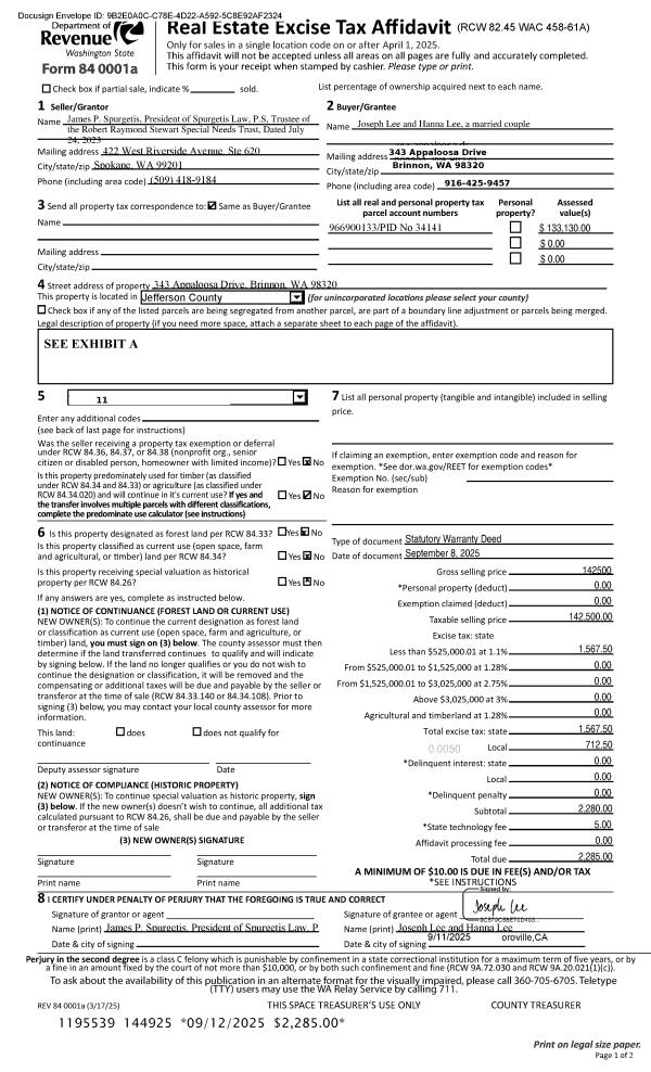
| 1 | 09/08/2025 | SWD | Statutory Warranty Deed | ROBERT R STEWART SPECIAL NEEDS TRUST | JOSPEH & HANNA LEE | | | $142,500.00 | 144925 | |
| 2 | 09/13/2023 | SWD | Statutory Warranty Deed | DENNIS F SPLETT | ROBERT R STEWART SPECIAL NEEDS TRUST | | | $215,000.00 | 141598 | |
| 3 | 10/03/2003 | SWD | Statutory Warranty Deed | FOURMONT, EUGENE E/MARY | SPLETT, DENNIS F/MARY LOU | 0 | 0 | $55,000.00 | 98451 | 0 |
| 4 | 11/13/1998 | SWD | Statutory Warranty Deed | ALTMAN, EDWARD C | FOURMONT, GENE E/MARY J | 0 | 0 | $40,000.00 | 85729 | 0 |
| 5 | 10/26/1994 | SWD | Statutory Warranty Deed | MCDONALD, E/SANCHEZ-MCDON | ALTMAN, E C/SYLVIA | 0 | 0 | $54,000.00 | 75605 | 0 |
Payout Agreement
| No payout information available.. |