Property
Account |
| Property ID: | 34176 | Abbreviated Legal Description: | LAZY C RANCH DIV 3 LOT 217 |
| Parcel # / Geo ID: | 966900175 | Agent Code: | |
| Type: | Real | | |
| Tax Area: | 0440 - 1-46F4E4H2C1L1Z1P2 | Land Use Code | 19 |
| Open Space: | N | DFL | N |
| Historic Property: | N | Remodel Property: | N |
| Multi-Family Redevelopment: | N | | |
| Township: | 26N | Section: | 34 |
| Range: | 2W |
Location |
| Address: | 51 SHETLAND LN BRINNON, WA 98320 | Mapsco: | 009/016 |
| Neighborhood: | LAZY C RANCH DIV 1 / LAZY C RANCH DIV 3 | Map ID: | |
| Neighborhood CD: | 1375 |
Owner |
| Name: | SCOTT J REYNOLDS | Owner ID: | 107382 |
| Mailing Address: | 931 N 101ST ST SEATTLE, WA 98133-9324 | % Ownership: | 100.0000000000% |
| | | Exemptions: | |
Pay Tax Due
Select the appropriate checkbox next to the year to be paid. Multiple years may be selected.
*Convenience Fee not included
Taxes and Assessment Details
Property Tax Information as of
03/10/2026
Click on "Statement Details" to expand or collapse a tax statement.
* Please enter a valid date ** Please enter a valid date *
Statement Details |
| 2026 | 23432 | STATE - STATE LEVY (SCHOOL) | $82.42 | $82.40 | $0.00 | $0.00 | $0.00 | $164.82 |
| 2026 | 23432 | COUNTY - COUNTY LEVIES (CE, DD, VET, MH) | $32.96 | $32.93 | $0.00 | $0.00 | $0.00 | $65.89 |
| 2026 | 23432 | CONSERVE - CONSERVATION FUTURES | $0.99 | $0.99 | $0.00 | $0.00 | $0.00 | $1.98 |
| 2026 | 23432 | COROADS - COUNTY ROADS (ROADS, DIV TO CE) | $26.58 | $26.58 | $0.00 | $0.00 | $0.00 | $53.16 |
| 2026 | 23432 | PORTPT - PORT DISTRICT | $13.31 | $13.31 | $0.00 | $0.00 | $0.00 | $26.62 |
| 2026 | 23432 | PUD1 - PUD #1 | $2.15 | $2.14 | $0.00 | $0.00 | $0.00 | $4.29 |
| 2026 | 23432 | LIB1 - LIBRARY DIST #1 | $10.29 | $10.28 | $0.00 | $0.00 | $0.00 | $20.57 |
| 2026 | 23432 | HD2 - HOSP DIST #2 | $1.92 | $1.92 | $0.00 | $0.00 | $0.00 | $3.84 |
| 2026 | 23432 | SD46 - SCHOOL DIST #46 | $24.70 | $24.70 | $0.00 | $0.00 | $0.00 | $49.40 |
| 2026 | 23432 | FD4 - FIRE DISTRICT #4 | $59.82 | $59.81 | $0.00 | $0.00 | $0.00 | $119.63 |
| 2026 | 23432 | EMS4 - FIRE DIST #4 EMS | $16.65 | $16.64 | $0.00 | $0.00 | $0.00 | $33.29 |
| 2026 | 23432 | CEM1 - CEMETERY DIST #1 | $0.39 | $0.38 | $0.00 | $0.00 | $0.00 | $0.77 |
| 2026 | 23432 | FP - DNR Forest Fire Protection Assmt | $8.50 | $8.50 | $0.00 | $0.00 | $0.00 | $17.00 |
| 2026 | 23432 | FPLCA - DNR Landowner Contingency Assmt | $3.00 | $3.00 | $0.00 | $0.00 | $0.00 | $6.00 |
| 2026 | 23432 | JCCD - JC Conservation District | $2.55 | $2.55 | $0.00 | $0.00 | $0.00 | $5.10 |
| 2026 | 23432 | NWA - Noxious Weed Assessment | $2.98 | $2.97 | $0.00 | $0.00 | $0.00 | $5.95 |
| 2026 | 23432 | OSS - On Site Septic | $23.10 | $23.10 | $0.00 | $0.00 | $0.00 | $46.20 |
| 2026 | 23432 | WAT - Clean Water District | $13.00 | $13.00 | $0.00 | $0.00 | $0.00 | $26.00 |
| 2026 | 23432 | FP ADMIN - FP ADMIN | $0.50 | $0.00 | $0.00 | $0.00 | $0.00 | $0.50 |
| 2026 | 23432 | TOTAL: | $325.81 | $325.20 | $0.00 | $0.00 | $0.00 | $651.01 |
|
| 2026 | 23432 | $325.81 | $325.20 | $0.00 | $0.00 | $0.00 | $651.01 |
Statement Details |
| 2025 | 23494 | STATE - STATE LEVY (SCHOOL) | $78.15 | $78.14 | $0.00 | $0.00 | $156.29 | $0.00 |
| 2025 | 23494 | COUNTY - COUNTY LEVIES (CE, DD, VET, MH) | $30.75 | $30.71 | $0.00 | $0.00 | $61.46 | $0.00 |
| 2025 | 23494 | CONSERVE - CONSERVATION FUTURES | $0.92 | $0.92 | $0.00 | $0.00 | $1.84 | $0.00 |
| 2025 | 23494 | COROADS - COUNTY ROADS (ROADS, DIV TO CE) | $24.63 | $24.61 | $0.00 | $0.00 | $49.24 | $0.00 |
| 2025 | 23494 | PORTPT - PORT DISTRICT | $12.55 | $12.53 | $0.00 | $0.00 | $25.08 | $0.00 |
| 2025 | 23494 | PUD1 - PUD #1 | $2.01 | $2.01 | $0.00 | $0.00 | $4.02 | $0.00 |
| 2025 | 23494 | LIB1 - LIBRARY DIST #1 | $9.53 | $9.52 | $0.00 | $0.00 | $19.05 | $0.00 |
| 2025 | 23494 | HD2 - HOSP DIST #2 | $1.80 | $1.79 | $0.00 | $0.00 | $3.59 | $0.00 |
| 2025 | 23494 | SD46 - SCHOOL DIST #46 | $20.66 | $20.65 | $0.00 | $0.00 | $41.31 | $0.00 |
| 2025 | 23494 | FD4 - FIRE DISTRICT #4 | $57.24 | $57.24 | $0.00 | $0.00 | $114.48 | $0.00 |
| 2025 | 23494 | EMS4 - FIRE DIST #4 EMS | $15.88 | $15.88 | $0.00 | $0.00 | $31.76 | $0.00 |
| 2025 | 23494 | CEM1 - CEMETERY DIST #1 | $0.37 | $0.37 | $0.00 | $0.00 | $0.74 | $0.00 |
| 2025 | 23494 | FP - DNR Forest Fire Protection Assmt | $8.50 | $8.50 | $0.00 | $0.00 | $17.00 | $0.00 |
| 2025 | 23494 | FPLCA - DNR Landowner Contingency Assmt | $3.00 | $3.00 | $0.00 | $0.00 | $6.00 | $0.00 |
| 2025 | 23494 | JCCD - JC Conservation District | $2.55 | $2.55 | $0.00 | $0.00 | $5.10 | $0.00 |
| 2025 | 23494 | NWA - Noxious Weed Assessment | $2.15 | $2.15 | $0.00 | $0.00 | $4.30 | $0.00 |
| 2025 | 23494 | OSS - On Site Septic | $21.50 | $21.50 | $0.00 | $0.00 | $43.00 | $0.00 |
| 2025 | 23494 | WAT - Clean Water District | $13.00 | $13.00 | $0.00 | $0.00 | $26.00 | $0.00 |
| 2025 | 23494 | FP ADMIN - FP ADMIN | $0.50 | $0.00 | $0.00 | $0.00 | $0.50 | $0.00 |
| 2025 | 23494 | TOTAL: | $305.69 | $305.07 | $0.00 | $0.00 | $610.76 | $0.00 |
|
| 2025 | 23494 | $305.69 | $305.07 | $0.00 | $0.00 | $610.76 | $0.00 |
Statement Details |
| 2024 | 23539 | STATE - STATE LEVY (SCHOOL) | $69.62 | $69.60 | $0.00 | $0.00 | $139.22 | $0.00 |
| 2024 | 23539 | COUNTY - COUNTY LEVIES (CE, DD, VET, MH) | $29.79 | $29.79 | $0.00 | $0.00 | $59.58 | $0.00 |
| 2024 | 23539 | CONSERVE - CONSERVATION FUTURES | $0.90 | $0.89 | $0.00 | $0.00 | $1.79 | $0.00 |
| 2024 | 23539 | COROADS - COUNTY ROADS (ROADS, DIV TO CE) | $23.98 | $23.96 | $0.00 | $0.00 | $47.94 | $0.00 |
| 2024 | 23539 | PORTPT - PORT DISTRICT | $12.31 | $12.30 | $0.00 | $0.00 | $24.61 | $0.00 |
| 2024 | 23539 | PUD1 - PUD #1 | $1.96 | $1.95 | $0.00 | $0.00 | $3.91 | $0.00 |
| 2024 | 23539 | LIB1 - LIBRARY DIST #1 | $9.28 | $9.27 | $0.00 | $0.00 | $18.55 | $0.00 |
| 2024 | 23539 | HD2 - HOSP DIST #2 | $1.74 | $1.74 | $0.00 | $0.00 | $3.48 | $0.00 |
| 2024 | 23539 | SD46 - SCHOOL DIST #46 | $20.90 | $20.89 | $0.00 | $0.00 | $41.79 | $0.00 |
| 2024 | 23539 | FD4 - FIRE DISTRICT #4 | $53.98 | $53.98 | $0.00 | $0.00 | $107.96 | $0.00 |
| 2024 | 23539 | EMS4 - FIRE DIST #4 EMS | $15.05 | $15.04 | $0.00 | $0.00 | $30.09 | $0.00 |
| 2024 | 23539 | CEM1 - CEMETERY DIST #1 | $0.35 | $0.35 | $0.00 | $0.00 | $0.70 | $0.00 |
| 2024 | 23539 | FP - DNR Forest Fire Protection Assmt | $8.50 | $8.50 | $0.00 | $0.00 | $17.00 | $0.00 |
| 2024 | 23539 | FPLCA - DNR Landowner Contingency Assmt | $3.00 | $3.00 | $0.00 | $0.00 | $6.00 | $0.00 |
| 2024 | 23539 | JCCD - JC Conservation District | $2.55 | $2.55 | $0.00 | $0.00 | $5.10 | $0.00 |
| 2024 | 23539 | NWA - Noxious Weed Assessment | $2.15 | $2.15 | $0.00 | $0.00 | $4.30 | $0.00 |
| 2024 | 23539 | OSS - On Site Septic | $21.00 | $21.00 | $0.00 | $0.00 | $42.00 | $0.00 |
| 2024 | 23539 | WAT - Clean Water District | $12.50 | $12.50 | $0.00 | $0.00 | $25.00 | $0.00 |
| 2024 | 23539 | FP ADMIN - FP ADMIN | $0.50 | $0.00 | $0.00 | $0.00 | $0.50 | $0.00 |
| 2024 | 23539 | TOTAL: | $290.06 | $289.46 | $0.00 | $0.00 | $579.52 | $0.00 |
|
| 2024 | 23539 | $290.06 | $289.46 | $0.00 | $0.00 | $579.52 | $0.00 |
Statement Details |
| 2023 | 23577 | STATE - STATE LEVY (SCHOOL) | $64.94 | $64.94 | $0.00 | $0.00 | $129.88 | $0.00 |
| 2023 | 23577 | COUNTY - COUNTY LEVIES (CE, DD, VET, MH) | $28.35 | $28.33 | $0.00 | $0.00 | $56.68 | $0.00 |
| 2023 | 23577 | CONSERVE - CONSERVATION FUTURES | $0.85 | $0.85 | $0.00 | $0.00 | $1.70 | $0.00 |
| 2023 | 23577 | COROADS - COUNTY ROADS (ROADS, DIV TO CE) | $22.93 | $22.92 | $0.00 | $0.00 | $45.85 | $0.00 |
| 2023 | 23577 | PORTPT - PORT DISTRICT | $11.94 | $11.94 | $0.00 | $0.00 | $23.88 | $0.00 |
| 2023 | 23577 | PUD1 - PUD #1 | $1.88 | $1.88 | $0.00 | $0.00 | $3.76 | $0.00 |
| 2023 | 23577 | LIB1 - LIBRARY DIST #1 | $8.87 | $8.87 | $0.00 | $0.00 | $17.74 | $0.00 |
| 2023 | 23577 | HD2 - HOSP DIST #2 | $1.66 | $1.65 | $0.00 | $0.00 | $3.31 | $0.00 |
| 2023 | 23577 | SD46 - SCHOOL DIST #46 | $21.20 | $21.19 | $0.00 | $0.00 | $42.39 | $0.00 |
| 2023 | 23577 | FD4 - FIRE DISTRICT #4 | $35.25 | $35.24 | $0.00 | $0.00 | $70.49 | $0.00 |
| 2023 | 23577 | EMS4 - FIRE DIST #4 EMS | $10.03 | $10.02 | $0.00 | $0.00 | $20.05 | $0.00 |
| 2023 | 23577 | CEM1 - CEMETERY DIST #1 | $0.36 | $0.35 | $0.00 | $0.00 | $0.71 | $0.00 |
| 2023 | 23577 | FP - DNR Forest Fire Protection Assmt | $8.50 | $8.50 | $0.00 | $0.00 | $17.00 | $0.00 |
| 2023 | 23577 | FPLCA - DNR Landowner Contingency Assmt | $3.00 | $3.00 | $0.00 | $0.00 | $6.00 | $0.00 |
| 2023 | 23577 | JCCD - JC Conservation District | $2.55 | $2.55 | $0.00 | $0.00 | $5.10 | $0.00 |
| 2023 | 23577 | NWA - Noxious Weed Assessment | $2.15 | $2.15 | $0.00 | $0.00 | $4.30 | $0.00 |
| 2023 | 23577 | OSS - On Site Septic | $20.50 | $20.50 | $0.00 | $0.00 | $41.00 | $0.00 |
| 2023 | 23577 | WAT - Clean Water District | $12.00 | $12.00 | $0.00 | $0.00 | $24.00 | $0.00 |
| 2023 | 23577 | FP ADMIN - FP ADMIN | $0.50 | $0.00 | $0.00 | $0.00 | $0.50 | $0.00 |
| 2023 | 23577 | TOTAL: | $257.46 | $256.88 | $0.00 | $0.00 | $514.34 | $0.00 |
|
| 2023 | 23577 | $257.46 | $256.88 | $0.00 | $0.00 | $514.34 | $0.00 |
Values
| (+) Improvement Homesite Value: | + | $0 | |
| (+) Improvement Non-Homesite Value: | + | $25,490 | |
| (+) Land Homesite Value: | + | $0 | |
| (+) Land Non-Homesite Value: | + | $46,200 | |
| (+) Curr Use (HS): | + | $0 | $0 |
| (+) Curr Use (NHS): | + | $0 | $0 |
| | | -------------------------- | |
| (=) Market Value: | = | $71,690 | |
| (–) Productivity Loss: | – | $0 | |
| | | -------------------------- | |
| (=) Subtotal: | = | $71,690 | |
| (+) Senior Appraised Value: | + | $0 | |
| (+) Non-Senior Appraised Value: | + | $71,690 | |
| | | -------------------------- | |
| (=) Total Appraised Value: | = | $71,690 | |
| (–) Senior Exemption Loss: | – | $0 | |
| (–) Exemption Loss: | – | $0 | |
| | | -------------------------- | |
| (=) Taxable Value: | = | $71,690 | |
Taxing Jurisdiction
| Owner: | SCOTT J REYNOLDS | | |
| % Ownership: | 100.0000000000% | | |
| Total Value: | $71,690 | | |
| Tax Area: | 0440 - 1-46F4E4H2C1L1Z1P2 |
| CE | COUNTY CURRENT EXPENSE | 0.9034619479 | $71,690 | $71,690 | $64.77 | | |
| CNTYDD | DEVELOPMENTAL DISABILITIES | 0.0052121823 | $71,690 | $71,690 | $0.37 | | |
| CNTYVET | VETERANS RELIEF | 0.0052777810 | $71,690 | $71,690 | $0.38 | | |
| MENTAL | MENTAL HEALTH | 0.0052121823 | $71,690 | $71,690 | $0.37 | | |
| ROADS | COUNTY ROADS | 0.7415066410 | $71,690 | $71,690 | $53.16 | | |
| ROADSCU | COUNTY ROADS TO CUR EXP | 0.0000000000 | $71,690 | $71,690 | $0.00 | | |
| HOSP2CASH | HOSP DIST #2 GENERAL | 0.0536075306 | $71,690 | $71,690 | $3.84 | | |
| SCH46MO | SCHOOL DIST #46 EP & O | 0.6890207067 | $71,690 | $71,690 | $49.40 | | |
| CEM1 | CEMETERY DIST #1 GENERAL | 0.0107168292 | $71,690 | $71,690 | $0.77 | | |
| CONSERVE | CONSERVATION FUTURES | 0.0275621078 | $71,690 | $71,690 | $1.98 | | |
| EMS4 | FIRE DIST #4 EMS | 0.4644216158 | $71,690 | $71,690 | $33.29 | | |
| FD4 | FIRE DIST #4 GENERAL | 1.3939598390 | $71,690 | $71,690 | $99.93 | | |
| FD4BOND | FIRE DIST #4 BOND 2019 | 0.2748466981 | $71,690 | $71,690 | $19.70 | | |
| LIB1 | LIBRARY DIST #1 GENERAL | 0.2868827388 | $71,690 | $71,690 | $20.57 | | |
| PORTPT | PORT OF PT GENERAL | 0.1134941229 | $71,690 | $71,690 | $8.14 | | |
| PORTPTIDD | PORT OF PT IDD 2019 | 0.2577346692 | $71,690 | $71,690 | $18.48 | | |
| PUD1 | PUD #1 GENERAL | 0.0597888892 | $71,690 | $71,690 | $4.29 | | |
| STATE | STATE SCHOOL PART 1 | 1.4940692947 | $71,690 | $71,690 | $107.11 | | |
| STATE2 | STATE SCHOOL PART 2 | 0.8050170049 | $71,690 | $71,690 | $57.71 | | |
| | Total Tax Rate: | 7.5917927814 | | | | | |
| | | | | Taxes w/Current Exemptions: | $544.26 | | |
| | | | | Taxes w/o Exemptions: | $544.26 | | |
Improvement / Building
| Improvement #1: | Residential Bldg | State Code: | 19 | 228.0 sqft | Value: | $25,490 |
| Exterior Wall: | SI/ST | Fireplace: | WD ST-AVG | | Floor Construction: | FRAME | Foundation: | PO&BL | | Heating/Cooling: | WD/NO | Interior Finish: | FIN | | Roof Cover: | METAL |   |   |
|
| | Type | Description | Class CD | Sub Class CD | Year Built | Area |
| | CARPT | Carport (Table Not Dep) | 3 | * | 1973 | 256.0 |
| | CLOFT | Cabin Loft | 3 | * | 1973 | 60.0 |
| | CDECK | Cabin Deck | 3 | * | 1973 | 132.0 |
| | SHED | Shed (Table Not Dep) | 4 | * | 1973 | 120.0 |
| | CWPOR | Cabin Wood Porch | 3 | * | 1973 | 140.0 |
| | MA | Main Area | 3+ | C1S | 1973 | 228.0 |
| | CADDN | Cabin Addition | 3 | C1S | 1973 | 228.0 |
Sketch
Property Image
Land
| 1 | 1375-1185L | | 0.0000 | 0.00 | 0.00 | 0.00 | 1.00 | $46,200 | $0 |
Roll Value History
| 2026 | N/A | N/A | N/A | N/A | N/A |
| 2025 | $25,490 | $46,200 | $0 | $71,690 | $71,690 |
| 2024 | $23,173 | $42,000 | $0 | $65,173 | $65,173 |
| 2023 | $23,173 | $37,000 | $0 | $60,173 | $60,173 |
| 2022 | $23,173 | $32,000 | $0 | $55,173 | $55,173 |
Deed and Sales History
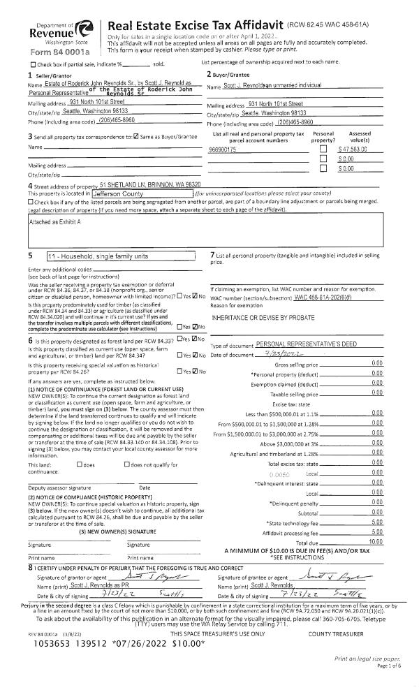
| 1 | 07/23/2022 | PRD | Personal Representatives Deed | RODRICK J REYNOLDS | SCOTT J REYNOLDS | | | | 139512 | |
| 2 | 02/16/2000 | SWD | Statutory Warranty Deed | DYER, WALLACE E/SONDRA L | REYNOLDS, RODRICK J/SR | 0 | 0 | $32,000.00 | 89012 | 0 |
Payout Agreement
| No payout information available.. |