Property
Account |
| Property ID: | 34186 | Abbreviated Legal Description: | LAZY C RANCH DIV 3 LOT 231 |
| Parcel # / Geo ID: | 966900190 | Agent Code: | |
| Type: | Real | | |
| Tax Area: | 0440 - 1-46F4E4H2C1L1Z1P2 | Land Use Code | 91 |
| Open Space: | N | DFL | N |
| Historic Property: | N | Remodel Property: | N |
| Multi-Family Redevelopment: | N | | |
| Township: | 26N | Section: | 34 |
| Range: | 2W |
Location |
| Address: | | Mapsco: | 009/026 |
| Neighborhood: | LAZY C RANCH DIV 1 / LAZY C RANCH DIV 3 | Map ID: | |
| Neighborhood CD: | 1375 |
Owner |
| Name: | DEREK P & MURPHIE F WALTER | Owner ID: | 106184 |
| Mailing Address: | 4215 MARKHAM ST LYONS FALLS, NY 13368 | % Ownership: | 100.0000000000% |
| | | Exemptions: | |
Pay Tax Due
Select the appropriate checkbox next to the year to be paid. Multiple years may be selected.
*Convenience Fee not included
Taxes and Assessment Details
Property Tax Information as of
03/10/2026
Click on "Statement Details" to expand or collapse a tax statement.
* Please enter a valid date ** Please enter a valid date *
Statement Details |
| 2026 | 23442 | STATE - STATE LEVY (SCHOOL) | $22.76 | $22.76 | $0.00 | $0.00 | $0.00 | $45.52 |
| 2026 | 23442 | COUNTY - COUNTY LEVIES (CE, DD, VET, MH) | $9.10 | $9.09 | $0.00 | $0.00 | $0.00 | $18.19 |
| 2026 | 23442 | CONSERVE - CONSERVATION FUTURES | $0.28 | $0.27 | $0.00 | $0.00 | $0.00 | $0.55 |
| 2026 | 23442 | COROADS - COUNTY ROADS (ROADS, DIV TO CE) | $7.34 | $7.34 | $0.00 | $0.00 | $0.00 | $14.68 |
| 2026 | 23442 | PORTPT - PORT DISTRICT | $3.68 | $3.67 | $0.00 | $0.00 | $0.00 | $7.35 |
| 2026 | 23442 | PUD1 - PUD #1 | $0.59 | $0.59 | $0.00 | $0.00 | $0.00 | $1.18 |
| 2026 | 23442 | LIB1 - LIBRARY DIST #1 | $2.84 | $2.84 | $0.00 | $0.00 | $0.00 | $5.68 |
| 2026 | 23442 | HD2 - HOSP DIST #2 | $0.53 | $0.53 | $0.00 | $0.00 | $0.00 | $1.06 |
| 2026 | 23442 | SD46 - SCHOOL DIST #46 | $6.82 | $6.82 | $0.00 | $0.00 | $0.00 | $13.64 |
| 2026 | 23442 | FD4 - FIRE DISTRICT #4 | $16.52 | $16.52 | $0.00 | $0.00 | $0.00 | $33.04 |
| 2026 | 23442 | EMS4 - FIRE DIST #4 EMS | $4.60 | $4.60 | $0.00 | $0.00 | $0.00 | $9.20 |
| 2026 | 23442 | CEM1 - CEMETERY DIST #1 | $0.11 | $0.10 | $0.00 | $0.00 | $0.00 | $0.21 |
| 2026 | 23442 | FP - DNR Forest Fire Protection Assmt | $8.50 | $8.50 | $0.00 | $0.00 | $0.00 | $17.00 |
| 2026 | 23442 | FPLCA - DNR Landowner Contingency Assmt | $3.00 | $3.00 | $0.00 | $0.00 | $0.00 | $6.00 |
| 2026 | 23442 | JCCD - JC Conservation District | $2.53 | $2.53 | $0.00 | $0.00 | $0.00 | $5.06 |
| 2026 | 23442 | NWA - Noxious Weed Assessment | $2.98 | $2.97 | $0.00 | $0.00 | $0.00 | $5.95 |
| 2026 | 23442 | WAT - Clean Water District | $13.00 | $13.00 | $0.00 | $0.00 | $0.00 | $26.00 |
| 2026 | 23442 | FP ADMIN - FP ADMIN | $0.50 | $0.00 | $0.00 | $0.00 | $0.00 | $0.50 |
| 2026 | 23442 | TOTAL: | $105.68 | $105.13 | $0.00 | $0.00 | $0.00 | $210.81 |
|
| 2026 | 23442 | $105.68 | $105.13 | $0.00 | $0.00 | $0.00 | $210.81 |
Statement Details |
| 2025 | 23504 | STATE - STATE LEVY (SCHOOL) | $21.58 | $21.58 | $0.00 | $0.00 | $43.16 | $0.00 |
| 2025 | 23504 | COUNTY - COUNTY LEVIES (CE, DD, VET, MH) | $8.49 | $8.49 | $0.00 | $0.00 | $16.98 | $0.00 |
| 2025 | 23504 | CONSERVE - CONSERVATION FUTURES | $0.26 | $0.25 | $0.00 | $0.00 | $0.51 | $0.00 |
| 2025 | 23504 | COROADS - COUNTY ROADS (ROADS, DIV TO CE) | $6.81 | $6.79 | $0.00 | $0.00 | $13.60 | $0.00 |
| 2025 | 23504 | PORTPT - PORT DISTRICT | $3.47 | $3.46 | $0.00 | $0.00 | $6.93 | $0.00 |
| 2025 | 23504 | PUD1 - PUD #1 | $0.56 | $0.55 | $0.00 | $0.00 | $1.11 | $0.00 |
| 2025 | 23504 | LIB1 - LIBRARY DIST #1 | $2.63 | $2.63 | $0.00 | $0.00 | $5.26 | $0.00 |
| 2025 | 23504 | HD2 - HOSP DIST #2 | $0.50 | $0.49 | $0.00 | $0.00 | $0.99 | $0.00 |
| 2025 | 23504 | SD46 - SCHOOL DIST #46 | $5.71 | $5.70 | $0.00 | $0.00 | $11.41 | $0.00 |
| 2025 | 23504 | FD4 - FIRE DISTRICT #4 | $15.81 | $15.81 | $0.00 | $0.00 | $31.62 | $0.00 |
| 2025 | 23504 | EMS4 - FIRE DIST #4 EMS | $4.39 | $4.38 | $0.00 | $0.00 | $8.77 | $0.00 |
| 2025 | 23504 | CEM1 - CEMETERY DIST #1 | $0.10 | $0.10 | $0.00 | $0.00 | $0.20 | $0.00 |
| 2025 | 23504 | FP - DNR Forest Fire Protection Assmt | $8.50 | $8.50 | $0.00 | $0.00 | $17.00 | $0.00 |
| 2025 | 23504 | FPLCA - DNR Landowner Contingency Assmt | $3.00 | $3.00 | $0.00 | $0.00 | $6.00 | $0.00 |
| 2025 | 23504 | JCCD - JC Conservation District | $2.53 | $2.53 | $0.00 | $0.00 | $5.06 | $0.00 |
| 2025 | 23504 | NWA - Noxious Weed Assessment | $2.15 | $2.15 | $0.00 | $0.00 | $4.30 | $0.00 |
| 2025 | 23504 | WAT - Clean Water District | $13.00 | $13.00 | $0.00 | $0.00 | $26.00 | $0.00 |
| 2025 | 23504 | FP ADMIN - FP ADMIN | $0.50 | $0.00 | $0.00 | $0.00 | $0.50 | $0.00 |
| 2025 | 23504 | TOTAL: | $99.99 | $99.41 | $0.00 | $0.00 | $199.40 | $0.00 |
|
| 2025 | 23504 | $99.99 | $99.41 | $0.00 | $0.00 | $199.40 | $0.00 |
Statement Details |
| 2024 | 23549 | STATE - STATE LEVY (SCHOOL) | $20.82 | $20.82 | $0.00 | $0.00 | $41.64 | $0.00 |
| 2024 | 23549 | COUNTY - COUNTY LEVIES (CE, DD, VET, MH) | $8.91 | $8.91 | $0.00 | $0.00 | $17.82 | $0.00 |
| 2024 | 23549 | CONSERVE - CONSERVATION FUTURES | $0.27 | $0.26 | $0.00 | $0.00 | $0.53 | $0.00 |
| 2024 | 23549 | COROADS - COUNTY ROADS (ROADS, DIV TO CE) | $7.18 | $7.16 | $0.00 | $0.00 | $14.34 | $0.00 |
| 2024 | 23549 | PORTPT - PORT DISTRICT | $3.68 | $3.68 | $0.00 | $0.00 | $7.36 | $0.00 |
| 2024 | 23549 | PUD1 - PUD #1 | $0.59 | $0.58 | $0.00 | $0.00 | $1.17 | $0.00 |
| 2024 | 23549 | LIB1 - LIBRARY DIST #1 | $2.78 | $2.77 | $0.00 | $0.00 | $5.55 | $0.00 |
| 2024 | 23549 | HD2 - HOSP DIST #2 | $0.52 | $0.52 | $0.00 | $0.00 | $1.04 | $0.00 |
| 2024 | 23549 | SD46 - SCHOOL DIST #46 | $6.25 | $6.25 | $0.00 | $0.00 | $12.50 | $0.00 |
| 2024 | 23549 | FD4 - FIRE DISTRICT #4 | $16.15 | $16.15 | $0.00 | $0.00 | $32.30 | $0.00 |
| 2024 | 23549 | EMS4 - FIRE DIST #4 EMS | $4.50 | $4.50 | $0.00 | $0.00 | $9.00 | $0.00 |
| 2024 | 23549 | CEM1 - CEMETERY DIST #1 | $0.11 | $0.10 | $0.00 | $0.00 | $0.21 | $0.00 |
| 2024 | 23549 | FP - DNR Forest Fire Protection Assmt | $8.50 | $8.50 | $0.00 | $0.00 | $17.00 | $0.00 |
| 2024 | 23549 | FPLCA - DNR Landowner Contingency Assmt | $3.00 | $3.00 | $0.00 | $0.00 | $6.00 | $0.00 |
| 2024 | 23549 | JCCD - JC Conservation District | $2.53 | $2.53 | $0.00 | $0.00 | $5.06 | $0.00 |
| 2024 | 23549 | NWA - Noxious Weed Assessment | $2.15 | $2.15 | $0.00 | $0.00 | $4.30 | $0.00 |
| 2024 | 23549 | WAT - Clean Water District | $12.50 | $12.50 | $0.00 | $0.00 | $25.00 | $0.00 |
| 2024 | 23549 | FP ADMIN - FP ADMIN | $0.50 | $0.00 | $0.00 | $0.00 | $0.50 | $0.00 |
| 2024 | 23549 | TOTAL: | $100.94 | $100.38 | $0.00 | $0.00 | $201.32 | $0.00 |
|
| 2024 | 23549 | $100.94 | $100.38 | $0.00 | $0.00 | $201.32 | $0.00 |
Statement Details |
| 2023 | 23587 | STATE - STATE LEVY (SCHOOL) | $21.20 | $21.18 | $0.00 | $0.00 | $42.38 | $0.00 |
| 2023 | 23587 | COUNTY - COUNTY LEVIES (CE, DD, VET, MH) | $9.25 | $9.23 | $0.00 | $0.00 | $18.48 | $0.00 |
| 2023 | 23587 | CONSERVE - CONSERVATION FUTURES | $0.28 | $0.27 | $0.00 | $0.00 | $0.55 | $0.00 |
| 2023 | 23587 | COROADS - COUNTY ROADS (ROADS, DIV TO CE) | $7.49 | $7.47 | $0.00 | $0.00 | $14.96 | $0.00 |
| 2023 | 23587 | PORTPT - PORT DISTRICT | $3.90 | $3.89 | $0.00 | $0.00 | $7.79 | $0.00 |
| 2023 | 23587 | PUD1 - PUD #1 | $0.62 | $0.61 | $0.00 | $0.00 | $1.23 | $0.00 |
| 2023 | 23587 | LIB1 - LIBRARY DIST #1 | $2.90 | $2.89 | $0.00 | $0.00 | $5.79 | $0.00 |
| 2023 | 23587 | HD2 - HOSP DIST #2 | $0.55 | $0.53 | $0.00 | $0.00 | $1.08 | $0.00 |
| 2023 | 23587 | SD46 - SCHOOL DIST #46 | $6.92 | $6.91 | $0.00 | $0.00 | $13.83 | $0.00 |
| 2023 | 23587 | FD4 - FIRE DISTRICT #4 | $11.51 | $11.49 | $0.00 | $0.00 | $23.00 | $0.00 |
| 2023 | 23587 | EMS4 - FIRE DIST #4 EMS | $3.27 | $3.27 | $0.00 | $0.00 | $6.54 | $0.00 |
| 2023 | 23587 | CEM1 - CEMETERY DIST #1 | $0.12 | $0.11 | $0.00 | $0.00 | $0.23 | $0.00 |
| 2023 | 23587 | FP - DNR Forest Fire Protection Assmt | $8.50 | $8.50 | $0.00 | $0.00 | $17.00 | $0.00 |
| 2023 | 23587 | FPLCA - DNR Landowner Contingency Assmt | $3.00 | $3.00 | $0.00 | $0.00 | $6.00 | $0.00 |
| 2023 | 23587 | JCCD - JC Conservation District | $2.53 | $2.53 | $0.00 | $0.00 | $5.06 | $0.00 |
| 2023 | 23587 | NWA - Noxious Weed Assessment | $2.15 | $2.15 | $0.00 | $0.00 | $4.30 | $0.00 |
| 2023 | 23587 | WAT - Clean Water District | $12.00 | $12.00 | $0.00 | $0.00 | $24.00 | $0.00 |
| 2023 | 23587 | FP ADMIN - FP ADMIN | $0.50 | $0.00 | $0.00 | $0.00 | $0.50 | $0.00 |
| 2023 | 23587 | TOTAL: | $96.69 | $96.03 | $0.00 | $0.00 | $192.72 | $0.00 |
|
| 2023 | 23587 | $96.69 | $96.03 | $0.00 | $0.00 | $192.72 | $0.00 |
Values
| (+) Improvement Homesite Value: | + | $0 | |
| (+) Improvement Non-Homesite Value: | + | $0 | |
| (+) Land Homesite Value: | + | $0 | |
| (+) Land Non-Homesite Value: | + | $19,800 | |
| (+) Curr Use (HS): | + | $0 | $0 |
| (+) Curr Use (NHS): | + | $0 | $0 |
| | | -------------------------- | |
| (=) Market Value: | = | $19,800 | |
| (–) Productivity Loss: | – | $0 | |
| | | -------------------------- | |
| (=) Subtotal: | = | $19,800 | |
| (+) Senior Appraised Value: | + | $0 | |
| (+) Non-Senior Appraised Value: | + | $19,800 | |
| | | -------------------------- | |
| (=) Total Appraised Value: | = | $19,800 | |
| (–) Senior Exemption Loss: | – | $0 | |
| (–) Exemption Loss: | – | $0 | |
| | | -------------------------- | |
| (=) Taxable Value: | = | $19,800 | |
Taxing Jurisdiction
| Owner: | DEREK P & MURPHIE F WALTER | | |
| % Ownership: | 100.0000000000% | | |
| Total Value: | $19,800 | | |
| Tax Area: | 0440 - 1-46F4E4H2C1L1Z1P2 |
| CE | COUNTY CURRENT EXPENSE | 0.9034619479 | $19,800 | $19,800 | $17.89 | | |
| CNTYDD | DEVELOPMENTAL DISABILITIES | 0.0052121823 | $19,800 | $19,800 | $0.10 | | |
| CNTYVET | VETERANS RELIEF | 0.0052777810 | $19,800 | $19,800 | $0.10 | | |
| MENTAL | MENTAL HEALTH | 0.0052121823 | $19,800 | $19,800 | $0.10 | | |
| ROADS | COUNTY ROADS | 0.7415066410 | $19,800 | $19,800 | $14.68 | | |
| ROADSCU | COUNTY ROADS TO CUR EXP | 0.0000000000 | $19,800 | $19,800 | $0.00 | | |
| HOSP2CASH | HOSP DIST #2 GENERAL | 0.0536075306 | $19,800 | $19,800 | $1.06 | | |
| SCH46MO | SCHOOL DIST #46 EP & O | 0.6890207067 | $19,800 | $19,800 | $13.64 | | |
| CEM1 | CEMETERY DIST #1 GENERAL | 0.0107168292 | $19,800 | $19,800 | $0.21 | | |
| CONSERVE | CONSERVATION FUTURES | 0.0275621078 | $19,800 | $19,800 | $0.55 | | |
| EMS4 | FIRE DIST #4 EMS | 0.4644216158 | $19,800 | $19,800 | $9.20 | | |
| FD4 | FIRE DIST #4 GENERAL | 1.3939598390 | $19,800 | $19,800 | $27.60 | | |
| FD4BOND | FIRE DIST #4 BOND 2019 | 0.2748466981 | $19,800 | $19,800 | $5.44 | | |
| LIB1 | LIBRARY DIST #1 GENERAL | 0.2868827388 | $19,800 | $19,800 | $5.68 | | |
| PORTPT | PORT OF PT GENERAL | 0.1134941229 | $19,800 | $19,800 | $2.25 | | |
| PORTPTIDD | PORT OF PT IDD 2019 | 0.2577346692 | $19,800 | $19,800 | $5.10 | | |
| PUD1 | PUD #1 GENERAL | 0.0597888892 | $19,800 | $19,800 | $1.18 | | |
| STATE | STATE SCHOOL PART 1 | 1.4940692947 | $19,800 | $19,800 | $29.58 | | |
| STATE2 | STATE SCHOOL PART 2 | 0.8050170049 | $19,800 | $19,800 | $15.94 | | |
| | Total Tax Rate: | 7.5917927814 | | | | | |
| | | | | Taxes w/Current Exemptions: | $150.30 | | |
| | | | | Taxes w/o Exemptions: | $150.30 | | |
Improvement / Building
Sketch
| No sketches available for this property. |
Property Image
Land
| 1 | 1375-1185L | | 0.0000 | 0.00 | 0.00 | 0.00 | 1.00 | $19,800 | $0 |
Roll Value History
| 2026 | N/A | N/A | N/A | N/A | N/A |
| 2025 | $0 | $19,800 | $0 | $19,800 | $19,800 |
| 2024 | $0 | $18,000 | $0 | $18,000 | $18,000 |
| 2023 | $0 | $18,000 | $0 | $18,000 | $18,000 |
| 2022 | $0 | $18,000 | $0 | $18,000 | $18,000 |
Deed and Sales History
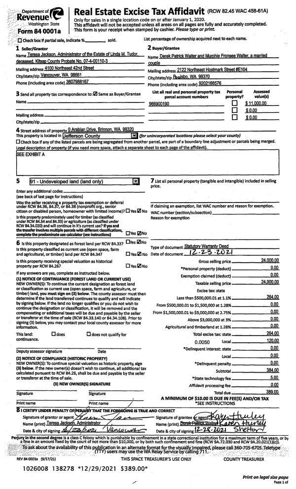
| 1 | 12/23/2021 | SWD | Statutory Warranty Deed | LINDA TUDOR | DEREK P & MURPHIE F WALTER | | | $24,000.00 | 138278 | |
| 2 | 03/23/2006 | SWD | Statutory Warranty Deed | SWIFT, STEVEN D/ELIZABETH | TUDOR, LINDA | 0 | 0 | $10,000.00 | 106282 | 0 |
| 3 | 03/05/2001 | QCD | Quit Claim Deed | SWIFT, MARY K | SWIFT, STEVEN D | 0 | 0 | $0.00 | 91759 | 0 |
Payout Agreement
| No payout information available.. |