Property
Account |
| Property ID: | 34194 | Abbreviated Legal Description: | LAZY C RANCH DIV 3 LOT 242 |
| Parcel # / Geo ID: | 966900201 | Agent Code: | |
| Type: | Real | | |
| Tax Area: | 0440 - 1-46F4E4H2C1L1Z1P2 | Land Use Code | 91 |
| Open Space: | N | DFL | N |
| Historic Property: | N | Remodel Property: | N |
| Multi-Family Redevelopment: | N | | |
| Township: | 26N | Section: | 34 |
| Range: | 2W |
Location |
| Address: | | Mapsco: | 009/036 |
| Neighborhood: | LAZY C RANCH DIV 1 / LAZY C RANCH DIV 3 | Map ID: | |
| Neighborhood CD: | 1375 |
Owner |
| Name: | PATRICIA J WILLIAMS | Owner ID: | 111282 |
| Mailing Address: | PO BOX 172 QUILCENE, WA 98376-0172 | % Ownership: | 100.0000000000% |
| | | Exemptions: | |
Pay Tax Due
Select the appropriate checkbox next to the year to be paid. Multiple years may be selected.
*Convenience Fee not included
Taxes and Assessment Details
Property Tax Information as of
03/11/2026
Click on "Statement Details" to expand or collapse a tax statement.
* Please enter a valid date ** Please enter a valid date *
Statement Details |
| 2026 | 23450 | STATE - STATE LEVY (SCHOOL) | $12.90 | $12.89 | $0.00 | $0.00 | $0.00 | $25.79 |
| 2026 | 23450 | COUNTY - COUNTY LEVIES (CE, DD, VET, MH) | $5.16 | $5.16 | $0.00 | $0.00 | $0.00 | $10.32 |
| 2026 | 23450 | CONSERVE - CONSERVATION FUTURES | $0.16 | $0.15 | $0.00 | $0.00 | $0.00 | $0.31 |
| 2026 | 23450 | COROADS - COUNTY ROADS (ROADS, DIV TO CE) | $4.16 | $4.16 | $0.00 | $0.00 | $0.00 | $8.32 |
| 2026 | 23450 | PORTPT - PORT DISTRICT | $2.09 | $2.07 | $0.00 | $0.00 | $0.00 | $4.16 |
| 2026 | 23450 | PUD1 - PUD #1 | $0.34 | $0.33 | $0.00 | $0.00 | $0.00 | $0.67 |
| 2026 | 23450 | LIB1 - LIBRARY DIST #1 | $1.61 | $1.61 | $0.00 | $0.00 | $0.00 | $3.22 |
| 2026 | 23450 | HD2 - HOSP DIST #2 | $0.30 | $0.30 | $0.00 | $0.00 | $0.00 | $0.60 |
| 2026 | 23450 | SD46 - SCHOOL DIST #46 | $3.87 | $3.86 | $0.00 | $0.00 | $0.00 | $7.73 |
| 2026 | 23450 | FD4 - FIRE DISTRICT #4 | $9.36 | $9.36 | $0.00 | $0.00 | $0.00 | $18.72 |
| 2026 | 23450 | EMS4 - FIRE DIST #4 EMS | $2.61 | $2.60 | $0.00 | $0.00 | $0.00 | $5.21 |
| 2026 | 23450 | CEM1 - CEMETERY DIST #1 | $0.06 | $0.06 | $0.00 | $0.00 | $0.00 | $0.12 |
| 2026 | 23450 | FPLCA - DNR Landowner Contingency Assmt | $3.00 | $3.00 | $0.00 | $0.00 | $0.00 | $6.00 |
| 2026 | 23450 | JCCD - JC Conservation District | $2.53 | $2.53 | $0.00 | $0.00 | $0.00 | $5.06 |
| 2026 | 23450 | NWA - Noxious Weed Assessment | $2.98 | $2.97 | $0.00 | $0.00 | $0.00 | $5.95 |
| 2026 | 23450 | WAT - Clean Water District | $13.00 | $13.00 | $0.00 | $0.00 | $0.00 | $26.00 |
| 2026 | 23450 | TOTAL: | $64.13 | $64.05 | $0.00 | $0.00 | $0.00 | $128.18 |
|
| 2026 | 23450 | $64.13 | $64.05 | $0.00 | $0.00 | $0.00 | $128.18 |
Statement Details |
| 2025 | 23512 | STATE - STATE LEVY (SCHOOL) | $12.23 | $12.23 | $0.00 | $0.00 | $24.46 | $0.00 |
| 2025 | 23512 | COUNTY - COUNTY LEVIES (CE, DD, VET, MH) | $4.82 | $4.79 | $0.00 | $0.00 | $9.61 | $0.00 |
| 2025 | 23512 | CONSERVE - CONSERVATION FUTURES | $0.15 | $0.14 | $0.00 | $0.00 | $0.29 | $0.00 |
| 2025 | 23512 | COROADS - COUNTY ROADS (ROADS, DIV TO CE) | $3.86 | $3.85 | $0.00 | $0.00 | $7.71 | $0.00 |
| 2025 | 23512 | PORTPT - PORT DISTRICT | $1.97 | $1.96 | $0.00 | $0.00 | $3.93 | $0.00 |
| 2025 | 23512 | PUD1 - PUD #1 | $0.32 | $0.31 | $0.00 | $0.00 | $0.63 | $0.00 |
| 2025 | 23512 | LIB1 - LIBRARY DIST #1 | $1.49 | $1.49 | $0.00 | $0.00 | $2.98 | $0.00 |
| 2025 | 23512 | HD2 - HOSP DIST #2 | $0.28 | $0.28 | $0.00 | $0.00 | $0.56 | $0.00 |
| 2025 | 23512 | SD46 - SCHOOL DIST #46 | $3.23 | $3.23 | $0.00 | $0.00 | $6.46 | $0.00 |
| 2025 | 23512 | FD4 - FIRE DISTRICT #4 | $8.97 | $8.95 | $0.00 | $0.00 | $17.92 | $0.00 |
| 2025 | 23512 | EMS4 - FIRE DIST #4 EMS | $2.49 | $2.48 | $0.00 | $0.00 | $4.97 | $0.00 |
| 2025 | 23512 | CEM1 - CEMETERY DIST #1 | $0.06 | $0.06 | $0.00 | $0.00 | $0.12 | $0.00 |
| 2025 | 23512 | FPLCA - DNR Landowner Contingency Assmt | $3.00 | $3.00 | $0.00 | $0.00 | $6.00 | $0.00 |
| 2025 | 23512 | JCCD - JC Conservation District | $2.53 | $2.53 | $0.00 | $0.00 | $5.06 | $0.00 |
| 2025 | 23512 | NWA - Noxious Weed Assessment | $2.15 | $2.15 | $0.00 | $0.00 | $4.30 | $0.00 |
| 2025 | 23512 | WAT - Clean Water District | $13.00 | $13.00 | $0.00 | $0.00 | $26.00 | $0.00 |
| 2025 | 23512 | TOTAL: | $60.55 | $60.45 | $0.00 | $0.00 | $121.00 | $0.00 |
|
| 2025 | 23512 | $60.55 | $60.45 | $0.00 | $0.00 | $121.00 | $0.00 |
Statement Details |
| 2024 | 23557 | STATE - STATE LEVY (SCHOOL) | $11.80 | $11.80 | $0.00 | $0.00 | $23.60 | $0.00 |
| 2024 | 23557 | COUNTY - COUNTY LEVIES (CE, DD, VET, MH) | $5.06 | $5.05 | $0.00 | $0.00 | $10.11 | $0.00 |
| 2024 | 23557 | CONSERVE - CONSERVATION FUTURES | $0.15 | $0.15 | $0.00 | $0.00 | $0.30 | $0.00 |
| 2024 | 23557 | COROADS - COUNTY ROADS (ROADS, DIV TO CE) | $4.07 | $4.05 | $0.00 | $0.00 | $8.12 | $0.00 |
| 2024 | 23557 | PORTPT - PORT DISTRICT | $2.09 | $2.08 | $0.00 | $0.00 | $4.17 | $0.00 |
| 2024 | 23557 | PUD1 - PUD #1 | $0.33 | $0.33 | $0.00 | $0.00 | $0.66 | $0.00 |
| 2024 | 23557 | LIB1 - LIBRARY DIST #1 | $1.57 | $1.57 | $0.00 | $0.00 | $3.14 | $0.00 |
| 2024 | 23557 | HD2 - HOSP DIST #2 | $0.30 | $0.29 | $0.00 | $0.00 | $0.59 | $0.00 |
| 2024 | 23557 | SD46 - SCHOOL DIST #46 | $3.54 | $3.54 | $0.00 | $0.00 | $7.08 | $0.00 |
| 2024 | 23557 | FD4 - FIRE DISTRICT #4 | $9.15 | $9.15 | $0.00 | $0.00 | $18.30 | $0.00 |
| 2024 | 23557 | EMS4 - FIRE DIST #4 EMS | $2.55 | $2.55 | $0.00 | $0.00 | $5.10 | $0.00 |
| 2024 | 23557 | CEM1 - CEMETERY DIST #1 | $0.06 | $0.06 | $0.00 | $0.00 | $0.12 | $0.00 |
| 2024 | 23557 | FP - DNR Forest Fire Protection Assmt | $8.50 | $8.50 | $0.00 | $0.00 | $17.00 | $0.00 |
| 2024 | 23557 | FPLCA - DNR Landowner Contingency Assmt | $3.00 | $3.00 | $0.00 | $0.00 | $6.00 | $0.00 |
| 2024 | 23557 | JCCD - JC Conservation District | $2.53 | $2.53 | $0.00 | $0.00 | $5.06 | $0.00 |
| 2024 | 23557 | NWA - Noxious Weed Assessment | $2.15 | $2.15 | $0.00 | $0.00 | $4.30 | $0.00 |
| 2024 | 23557 | WAT - Clean Water District | $12.50 | $12.50 | $0.00 | $0.00 | $25.00 | $0.00 |
| 2024 | 23557 | FP ADMIN - FP ADMIN | $0.50 | $0.00 | $0.00 | $0.00 | $0.50 | $0.00 |
| 2024 | 23557 | TOTAL: | $69.85 | $69.30 | $0.00 | $0.00 | $139.15 | $0.00 |
|
| 2024 | 23557 | $69.85 | $69.30 | $0.00 | $0.00 | $139.15 | $0.00 |
Statement Details |
| 2023 | 23595 | STATE - STATE LEVY (SCHOOL) | $12.01 | $12.00 | $0.00 | $0.00 | $24.01 | $0.00 |
| 2023 | 23595 | COUNTY - COUNTY LEVIES (CE, DD, VET, MH) | $5.24 | $5.24 | $0.00 | $0.00 | $10.48 | $0.00 |
| 2023 | 23595 | CONSERVE - CONSERVATION FUTURES | $0.16 | $0.15 | $0.00 | $0.00 | $0.31 | $0.00 |
| 2023 | 23595 | COROADS - COUNTY ROADS (ROADS, DIV TO CE) | $4.24 | $4.24 | $0.00 | $0.00 | $8.48 | $0.00 |
| 2023 | 23595 | PORTPT - PORT DISTRICT | $2.21 | $2.20 | $0.00 | $0.00 | $4.41 | $0.00 |
| 2023 | 23595 | PUD1 - PUD #1 | $0.35 | $0.34 | $0.00 | $0.00 | $0.69 | $0.00 |
| 2023 | 23595 | LIB1 - LIBRARY DIST #1 | $1.64 | $1.64 | $0.00 | $0.00 | $3.28 | $0.00 |
| 2023 | 23595 | HD2 - HOSP DIST #2 | $0.31 | $0.30 | $0.00 | $0.00 | $0.61 | $0.00 |
| 2023 | 23595 | SD46 - SCHOOL DIST #46 | $3.92 | $3.92 | $0.00 | $0.00 | $7.84 | $0.00 |
| 2023 | 23595 | FD4 - FIRE DISTRICT #4 | $6.52 | $6.51 | $0.00 | $0.00 | $13.03 | $0.00 |
| 2023 | 23595 | EMS4 - FIRE DIST #4 EMS | $1.86 | $1.85 | $0.00 | $0.00 | $3.71 | $0.00 |
| 2023 | 23595 | CEM1 - CEMETERY DIST #1 | $0.07 | $0.06 | $0.00 | $0.00 | $0.13 | $0.00 |
| 2023 | 23595 | FP - DNR Forest Fire Protection Assmt | $8.50 | $8.50 | $0.00 | $0.00 | $17.00 | $0.00 |
| 2023 | 23595 | FPLCA - DNR Landowner Contingency Assmt | $3.00 | $3.00 | $0.00 | $0.00 | $6.00 | $0.00 |
| 2023 | 23595 | JCCD - JC Conservation District | $2.53 | $2.53 | $0.00 | $0.00 | $5.06 | $0.00 |
| 2023 | 23595 | NWA - Noxious Weed Assessment | $2.15 | $2.15 | $0.00 | $0.00 | $4.30 | $0.00 |
| 2023 | 23595 | WAT - Clean Water District | $12.00 | $12.00 | $0.00 | $0.00 | $24.00 | $0.00 |
| 2023 | 23595 | FP ADMIN - FP ADMIN | $0.50 | $0.00 | $0.00 | $0.00 | $0.50 | $0.00 |
| 2023 | 23595 | TOTAL: | $67.21 | $66.63 | $0.00 | $0.00 | $133.84 | $0.00 |
|
| 2023 | 23595 | $67.21 | $66.63 | $0.00 | $0.00 | $133.84 | $0.00 |
Values
| (+) Improvement Homesite Value: | + | $0 | |
| (+) Improvement Non-Homesite Value: | + | $0 | |
| (+) Land Homesite Value: | + | $0 | |
| (+) Land Non-Homesite Value: | + | $14,025 | |
| (+) Curr Use (HS): | + | $0 | $0 |
| (+) Curr Use (NHS): | + | $0 | $0 |
| | | -------------------------- | |
| (=) Market Value: | = | $14,025 | |
| (–) Productivity Loss: | – | $0 | |
| | | -------------------------- | |
| (=) Subtotal: | = | $14,025 | |
| (+) Senior Appraised Value: | + | $0 | |
| (+) Non-Senior Appraised Value: | + | $14,025 | |
| | | -------------------------- | |
| (=) Total Appraised Value: | = | $14,025 | |
| (–) Senior Exemption Loss: | – | $0 | |
| (–) Exemption Loss: | – | $0 | |
| | | -------------------------- | |
| (=) Taxable Value: | = | $14,025 | |
Taxing Jurisdiction
| Owner: | PATRICIA J WILLIAMS | | |
| % Ownership: | 100.0000000000% | | |
| Total Value: | N/A | | |
| Tax Area: | 0440 - 1-46F4E4H2C1L1Z1P2 |
| CE | COUNTY CURRENT EXPENSE | N/A | N/A | N/A | N/A | | |
| CNTYDD | DEVELOPMENTAL DISABILITIES | N/A | N/A | N/A | N/A | | |
| CNTYVET | VETERANS RELIEF | N/A | N/A | N/A | N/A | | |
| MENTAL | MENTAL HEALTH | N/A | N/A | N/A | N/A | | |
| ROADS | COUNTY ROADS | N/A | N/A | N/A | N/A | | |
| HOSP2CASH | HOSP DIST #2 GENERAL | N/A | N/A | N/A | N/A | | |
| SCH46MO | SCHOOL DIST #46 EP & O | N/A | N/A | N/A | N/A | | |
| CEM1 | CEMETERY DIST #1 GENERAL | N/A | N/A | N/A | N/A | | |
| CONSERVE | CONSERVATION FUTURES | N/A | N/A | N/A | N/A | | |
| EMS4 | FIRE DIST #4 EMS | N/A | N/A | N/A | N/A | | |
| FD4 | FIRE DIST #4 GENERAL | N/A | N/A | N/A | N/A | | |
| FD4BOND | FIRE DIST #4 BOND 2019 | N/A | N/A | N/A | N/A | | |
| LIB1 | LIBRARY DIST #1 GENERAL | N/A | N/A | N/A | N/A | | |
| PORTPT | PORT OF PT GENERAL | N/A | N/A | N/A | N/A | | |
| PORTPTIDD | PORT OF PT IDD 2019 | N/A | N/A | N/A | N/A | | |
| PUD1 | PUD #1 GENERAL | N/A | N/A | N/A | N/A | | |
| STATE | STATE SCHOOL PART 1 | N/A | N/A | N/A | N/A | | |
| STATE2 | STATE SCHOOL PART 2 | N/A | N/A | N/A | N/A | | |
| | Total Tax Rate: | N/A | | | | | |
| | | | | Taxes w/Current Exemptions: | N/A | | |
| | | | | Taxes w/o Exemptions: | N/A | | |
Improvement / Building
Sketch
| No sketches available for this property. |
Property Image
Land
| 1 | 1375-1185L | | 0.0000 | 0.00 | 0.00 | 0.00 | 1.00 | $14,025 | $0 |
Roll Value History
| 2026 | N/A | N/A | N/A | N/A | N/A |
| 2025 | $0 | $11,220 | $0 | $11,220 | $11,220 |
| 2024 | $0 | $10,200 | $0 | $10,200 | $10,200 |
| 2023 | $0 | $10,200 | $0 | $10,200 | $10,200 |
| 2022 | $0 | $10,200 | $0 | $10,200 | $10,200 |
Deed and Sales History
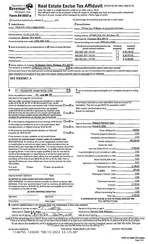
| 1 | 08/08/2024 | SWD | Statutory Warranty Deed | TARRIN E S AVEY | PATRICIA J WILLIAMS | | | $195,000.00 | 143049 | |
|   | |
| 2 | 04/10/2022 | PRD | Personal Representatives Deed | JEFFREY J AVEY | TARRIN E S AVEY | | | | 138879 | |
| 3 | 03/01/2005 | SWD | Statutory Warranty Deed | KLINK, CATHERINE | AVEY, JEFFREY J | 0 | 0 | $10,000.00 | 102828 | 0 |
| 4 | 11/20/1995 | SWD | Statutory Warranty Deed | JOHNSTON, WADE/REID | KLINK, CATHERINE | 0 | 0 | $8,000.00 | 78301 | 0 |
Payout Agreement
| No payout information available.. |