Property
Account |
| Property ID: | 34266 | Abbreviated Legal Description: | LITTLEFIELD'S ADDITION BLK 1 LOTS 5 TO 7 |
| Parcel # / Geo ID: | 968100102 | Agent Code: | |
| Type: | Real | | |
| Tax Area: | 0110 - C-50F1E1H2 | Land Use Code | 11 |
| Open Space: | N | DFL | N |
| Historic Property: | N | Remodel Property: | N |
| Multi-Family Redevelopment: | N | | |
| Township: | 30N | Section: | 3 |
| Range: | 1W |
Location |
| Address: | 136 WOODLAND AVE PORT TOWNSEND, WA 98368 | Mapsco: | 077/003 |
| Neighborhood: | LITTLEFIELD,MOORES,PT ECO,ROSEWIND,TIBBALS 2ND,WAYSONS+SP AC | Map ID: | |
| Neighborhood CD: | 6090 |
Owner |
| Name: | KEITH HITCHCOCK | Owner ID: | 111435 |
| Mailing Address: | MARY PURDY 136 WOODLAND AVE PORT TOWNSEND, WA 98368-5049 | % Ownership: | 100.0000000000% |
| | | Exemptions: | |
Pay Tax Due
Select the appropriate checkbox next to the year to be paid. Multiple years may be selected.
*Convenience Fee not included
Taxes and Assessment Details
Property Tax Information as of
03/10/2026
Click on "Statement Details" to expand or collapse a tax statement.
* Please enter a valid date ** Please enter a valid date *
Statement Details |
| 2026 | 23522 | STATE - STATE LEVY (SCHOOL) | $820.31 | $820.31 | $0.00 | $0.00 | $0.00 | $1640.62 |
| 2026 | 23522 | COUNTY - COUNTY LEVIES (CE, DD, VET, MH) | $327.97 | $327.95 | $0.00 | $0.00 | $0.00 | $655.92 |
| 2026 | 23522 | CONSERVE - CONSERVATION FUTURES | $9.84 | $9.83 | $0.00 | $0.00 | $0.00 | $19.67 |
| 2026 | 23522 | CITYPT - CITY OF PT | $465.52 | $465.50 | $0.00 | $0.00 | $0.00 | $931.02 |
| 2026 | 23522 | PORTPT - PORT DISTRICT | $132.46 | $132.45 | $0.00 | $0.00 | $0.00 | $264.91 |
| 2026 | 23522 | PUD1 - PUD #1 | $21.34 | $21.33 | $0.00 | $0.00 | $0.00 | $42.67 |
| 2026 | 23522 | HD2 - HOSP DIST #2 | $19.13 | $19.12 | $0.00 | $0.00 | $0.00 | $38.25 |
| 2026 | 23522 | SD50 - SCHOOL DIST #50 | $649.87 | $649.85 | $0.00 | $0.00 | $0.00 | $1299.72 |
| 2026 | 23522 | FD1 - FIRE DISTRICT #1 | $434.30 | $434.29 | $0.00 | $0.00 | $0.00 | $868.59 |
| 2026 | 23522 | EMS1 - FIRE DIST #1 EMS | $166.98 | $166.98 | $0.00 | $0.00 | $0.00 | $333.96 |
| 2026 | 23522 | JCCD - JC Conservation District | $2.55 | $2.55 | $0.00 | $0.00 | $0.00 | $5.10 |
| 2026 | 23522 | NWA - Noxious Weed Assessment | $2.98 | $2.97 | $0.00 | $0.00 | $0.00 | $5.95 |
| 2026 | 23522 | TOTAL: | $3053.25 | $3053.13 | $0.00 | $0.00 | $0.00 | $6106.38 |
|
| 2026 | 23522 | $3053.25 | $3053.13 | $0.00 | $0.00 | $0.00 | $6106.38 |
Statement Details |
| 2025 | 23584 | STATE - STATE LEVY (SCHOOL) | $754.42 | $754.41 | $0.00 | $0.00 | $1508.83 | $0.00 |
| 2025 | 23584 | COUNTY - COUNTY LEVIES (CE, DD, VET, MH) | $296.68 | $296.67 | $0.00 | $0.00 | $593.35 | $0.00 |
| 2025 | 23584 | CONSERVE - CONSERVATION FUTURES | $8.90 | $8.89 | $0.00 | $0.00 | $17.79 | $0.00 |
| 2025 | 23584 | CITYPT - CITY OF PT | $427.84 | $427.82 | $0.00 | $0.00 | $855.66 | $0.00 |
| 2025 | 23584 | PORTPT - PORT DISTRICT | $121.06 | $121.05 | $0.00 | $0.00 | $242.11 | $0.00 |
| 2025 | 23584 | PUD1 - PUD #1 | $19.41 | $19.41 | $0.00 | $0.00 | $38.82 | $0.00 |
| 2025 | 23584 | HD2 - HOSP DIST #2 | $17.31 | $17.31 | $0.00 | $0.00 | $34.62 | $0.00 |
| 2025 | 23584 | SD50 - SCHOOL DIST #50 | $551.37 | $551.34 | $0.00 | $0.00 | $1102.71 | $0.00 |
| 2025 | 23584 | FD1 - FIRE DISTRICT #1 | $391.49 | $391.49 | $0.00 | $0.00 | $782.98 | $0.00 |
| 2025 | 23584 | EMS1 - FIRE DIST #1 EMS | $150.58 | $150.57 | $0.00 | $0.00 | $301.15 | $0.00 |
| 2025 | 23584 | JCCD - JC Conservation District | $2.55 | $2.55 | $0.00 | $0.00 | $5.10 | $0.00 |
| 2025 | 23584 | NWA - Noxious Weed Assessment | $2.15 | $2.15 | $0.00 | $0.00 | $4.30 | $0.00 |
| 2025 | 23584 | TOTAL: | $2743.76 | $2743.66 | $0.00 | $0.00 | $5487.42 | $0.00 |
|
| 2025 | 23584 | $2743.76 | $2743.66 | $0.00 | $0.00 | $5487.42 | $0.00 |
Statement Details |
| 2024 | 23629 | STATE - STATE LEVY (SCHOOL) | $671.51 | $671.50 | $0.00 | $0.00 | $1343.01 | $0.00 |
| 2024 | 23629 | COUNTY - COUNTY LEVIES (CE, DD, VET, MH) | $287.35 | $287.33 | $0.00 | $0.00 | $574.68 | $0.00 |
| 2024 | 23629 | CONSERVE - CONSERVATION FUTURES | $8.62 | $8.61 | $0.00 | $0.00 | $17.23 | $0.00 |
| 2024 | 23629 | CITYPT - CITY OF PT | $410.57 | $410.57 | $0.00 | $0.00 | $821.14 | $0.00 |
| 2024 | 23629 | PORTPT - PORT DISTRICT | $118.69 | $118.68 | $0.00 | $0.00 | $237.37 | $0.00 |
| 2024 | 23629 | PUD1 - PUD #1 | $18.88 | $18.87 | $0.00 | $0.00 | $37.75 | $0.00 |
| 2024 | 23629 | HD2 - HOSP DIST #2 | $16.77 | $16.76 | $0.00 | $0.00 | $33.53 | $0.00 |
| 2024 | 23629 | SD50 - SCHOOL DIST #50 | $543.29 | $543.27 | $0.00 | $0.00 | $1086.56 | $0.00 |
| 2024 | 23629 | FD1 - FIRE DISTRICT #1 | $379.94 | $379.93 | $0.00 | $0.00 | $759.87 | $0.00 |
| 2024 | 23629 | EMS1 - FIRE DIST #1 EMS | $145.12 | $145.12 | $0.00 | $0.00 | $290.24 | $0.00 |
| 2024 | 23629 | JCCD - JC Conservation District | $2.55 | $2.55 | $0.00 | $0.00 | $5.10 | $0.00 |
| 2024 | 23629 | NWA - Noxious Weed Assessment | $2.15 | $2.15 | $0.00 | $0.00 | $4.30 | $0.00 |
| 2024 | 23629 | TOTAL: | $2605.44 | $2605.34 | $0.00 | $0.00 | $5210.78 | $0.00 |
|
| 2024 | 23629 | $2605.44 | $2605.34 | $0.00 | $0.00 | $5210.78 | $0.00 |
Statement Details |
| 2023 | 23667 | STATE - STATE LEVY (SCHOOL) | $677.39 | $677.39 | $0.00 | $0.00 | $1354.78 | $0.00 |
| 2023 | 23667 | COUNTY - COUNTY LEVIES (CE, DD, VET, MH) | $295.60 | $295.59 | $0.00 | $0.00 | $591.19 | $0.00 |
| 2023 | 23667 | CONSERVE - CONSERVATION FUTURES | $8.87 | $8.86 | $0.00 | $0.00 | $17.73 | $0.00 |
| 2023 | 23667 | CITYPT - CITY OF PT | $417.78 | $417.76 | $0.00 | $0.00 | $835.54 | $0.00 |
| 2023 | 23667 | PORTPT - PORT DISTRICT | $124.52 | $124.52 | $0.00 | $0.00 | $249.04 | $0.00 |
| 2023 | 23667 | PUD1 - PUD #1 | $19.60 | $19.59 | $0.00 | $0.00 | $39.19 | $0.00 |
| 2023 | 23667 | HD2 - HOSP DIST #2 | $17.26 | $17.24 | $0.00 | $0.00 | $34.50 | $0.00 |
| 2023 | 23667 | SD50 - SCHOOL DIST #50 | $537.53 | $537.51 | $0.00 | $0.00 | $1075.04 | $0.00 |
| 2023 | 23667 | FD1 - FIRE DISTRICT #1 | $243.51 | $243.51 | $0.00 | $0.00 | $487.02 | $0.00 |
| 2023 | 23667 | EMS1 - FIRE DIST #1 EMS | $103.59 | $103.58 | $0.00 | $0.00 | $207.17 | $0.00 |
| 2023 | 23667 | JCCD - JC Conservation District | $2.55 | $2.55 | $0.00 | $0.00 | $5.10 | $0.00 |
| 2023 | 23667 | NWA - Noxious Weed Assessment | $2.15 | $2.15 | $0.00 | $0.00 | $4.30 | $0.00 |
| 2023 | 23667 | TOTAL: | $2450.35 | $2450.25 | $0.00 | $0.00 | $4900.60 | $0.00 |
|
| 2023 | 23667 | $2450.35 | $2450.25 | $0.00 | $0.00 | $4900.60 | $0.00 |
Values
| (+) Improvement Homesite Value: | + | $0 | |
| (+) Improvement Non-Homesite Value: | + | $467,598 | |
| (+) Land Homesite Value: | + | $0 | |
| (+) Land Non-Homesite Value: | + | $246,000 | |
| (+) Curr Use (HS): | + | $0 | $0 |
| (+) Curr Use (NHS): | + | $0 | $0 |
| | | -------------------------- | |
| (=) Market Value: | = | $713,598 | |
| (–) Productivity Loss: | – | $0 | |
| | | -------------------------- | |
| (=) Subtotal: | = | $713,598 | |
| (+) Senior Appraised Value: | + | $0 | |
| (+) Non-Senior Appraised Value: | + | $713,598 | |
| | | -------------------------- | |
| (=) Total Appraised Value: | = | $713,598 | |
| (–) Senior Exemption Loss: | – | $0 | |
| (–) Exemption Loss: | – | $0 | |
| | | -------------------------- | |
| (=) Taxable Value: | = | $713,598 | |
Taxing Jurisdiction
| Owner: | KEITH HITCHCOCK | | |
| % Ownership: | 100.0000000000% | | |
| Total Value: | $713,598 | | |
| Tax Area: | 0110 - C-50F1E1H2 |
| CE | COUNTY CURRENT EXPENSE | 0.9034619479 | $713,598 | $713,598 | $644.71 | | |
| CNTYDD | DEVELOPMENTAL DISABILITIES | 0.0052121823 | $713,598 | $713,598 | $3.72 | | |
| CNTYVET | VETERANS RELIEF | 0.0052777810 | $713,598 | $713,598 | $3.77 | | |
| MENTAL | MENTAL HEALTH | 0.0052121823 | $713,598 | $713,598 | $3.72 | | |
| PTGEN | CITY OF PT GENERAL | 0.8551967795 | $713,598 | $713,598 | $610.27 | | |
| PTLLL | CITY OF PT - LIBRARY LID LIFT | 0.4010114288 | $713,598 | $713,598 | $286.16 | | |
| PTMVBOND | CITY OF PT MV BOND | 0.0484717981 | $713,598 | $713,598 | $34.59 | | |
| HOSP2CASH | HOSP DIST #2 GENERAL | 0.0536075306 | $713,598 | $713,598 | $38.25 | | |
| SCH50BOND | SCHOOL DIST #50 BOND 2016 | 0.5377451389 | $713,598 | $713,598 | $383.73 | | |
| SCH50CP | SCHOOL DIST #50 CAP PROJ | 0.4573475088 | $713,598 | $713,598 | $326.36 | | |
| SCH50MO | SCHOOL DIST #50 EP & O | 0.8262822886 | $713,598 | $713,598 | $589.63 | | |
| CONSERVE | CONSERVATION FUTURES | 0.0275621078 | $713,598 | $713,598 | $19.67 | | |
| EMS1 | FIRE DIST #1 EMS | 0.4679948282 | $713,598 | $713,598 | $333.96 | | |
| FD1 | FIRE DIST #1 GENERAL | 1.2171942929 | $713,598 | $713,598 | $868.59 | | |
| PORTPT | PORT OF PT GENERAL | 0.1134941229 | $713,598 | $713,598 | $80.99 | | |
| PORTPTIDD | PORT OF PT IDD 2019 | 0.2577346692 | $713,598 | $713,598 | $183.92 | | |
| PUD1 | PUD #1 GENERAL | 0.0597888892 | $713,598 | $713,598 | $42.67 | | |
| STATE | STATE SCHOOL PART 1 | 1.4940692947 | $713,598 | $713,598 | $1,066.16 | | |
| STATE2 | STATE SCHOOL PART 2 | 0.8050170049 | $713,598 | $713,598 | $574.46 | | |
| | Total Tax Rate: | 8.5416817766 | | | | | |
| | | | | Taxes w/Current Exemptions: | $6,095.33 | | |
| | | | | Taxes w/o Exemptions: | $6,095.33 | | |
Improvement / Building
| Improvement #1: | Residential Bldg | State Code: | 11 | 1285.5 sqft | Value: | $467,598 |
| Bathrooms (#): | 2 (FULL) | Bathrooms (#): | 1 (HALF) | | Bedrooms (#): | 3 | Exterior Wall: | SI/ST | | Floor Construction: | FRAME | Foundation: | CONPR | | Heating/Cooling: | HPUMP | Roof Cover: | COMP |
|
| | Type | Description | Class CD | Sub Class CD | Year Built | Area |
| | MA | Main Area | 4+ | 15SF | 1989 | 1285.5 |
| | HWPOR | House Wood Porch | 5 | * | 1989 | 55.0 |
| | HDECK | House Deck | 5 | * | 1989 | 400.5 |
| | GBLTIN | Builtin Garage | 5 | 15SF | 1989 | 812.0 |
| | BSMTF | House basement finished | 5 | * | 1989 | 448.0 |
Sketch
Property Image
Land
| 1 | 6090-1176L | | 0.0000 | 0.00 | 0.00 | 0.00 | 1.00 | $246,000 | $0 |
Roll Value History
| 2026 | N/A | N/A | N/A | N/A | N/A |
| 2025 | $467,598 | $246,000 | $0 | $713,598 | $713,598 |
| 2024 | $385,074 | $244,125 | $0 | $629,199 | $629,199 |
| 2023 | $352,985 | $227,500 | $0 | $580,485 | $580,485 |
| 2022 | $352,984 | $222,500 | $0 | $575,484 | $575,484 |
Deed and Sales History
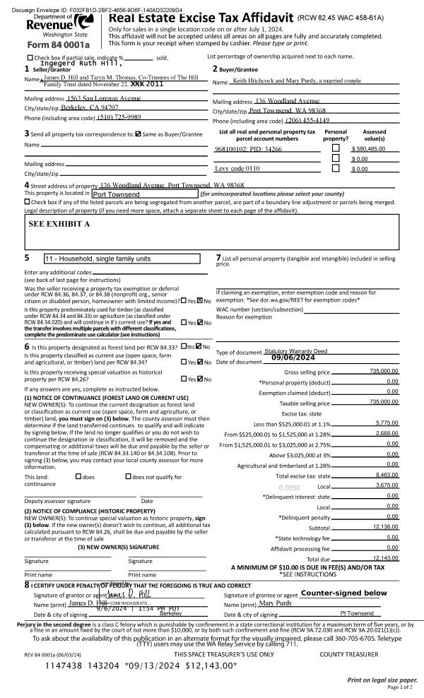
| 1 | 09/06/2024 | SWD | Statutory Warranty Deed | SAM HILL TRUSTEE | KEITH HITCHCOCK | | | $735,000.00 | 143204 | |
| 2 | 07/20/2011 | QCD | Quit Claim Deed | HILL, SAM/INGEGERD R | HILL, SAM/INGEGERD R TRUSTEES | | | $0.00 | 116286 | 0 |
Payout Agreement
| No payout information available.. |