Property
Account |
| Property ID: | 34293 | Abbreviated Legal Description: | LITTLEFIELD'S ADDITION BLK 8 LOTS 2(ALL), 3(E10') |
| Parcel # / Geo ID: | 968100802 | Agent Code: | |
| Type: | Real | | |
| Tax Area: | 0110 - C-50F1E1H2 | Land Use Code | 11 |
| Open Space: | N | DFL | N |
| Historic Property: | N | Remodel Property: | N |
| Multi-Family Redevelopment: | N | | |
| Township: | 30N | Section: | 3 |
| Range: | 1W |
Location |
| Address: | 221 30TH ST PORT TOWNSEND, WA 98368 | Mapsco: | 077/041 |
| Neighborhood: | LITTLEFIELD,MOORES,PT ECO,ROSEWIND,TIBBALS 2ND,WAYSONS+SP AC | Map ID: | |
| Neighborhood CD: | 6090 |
Owner |
| Name: | LAURA M NATHAN | Owner ID: | 106637 |
| Mailing Address: | 221 30TH ST PORT TOWNSEND, WA 98368-9629 | % Ownership: | 100.0000000000% |
| | | Exemptions: | |
Pay Tax Due
Select the appropriate checkbox next to the year to be paid. Multiple years may be selected.
*Convenience Fee not included
Taxes and Assessment Details
Property Tax Information as of
03/10/2026
Click on "Statement Details" to expand or collapse a tax statement.
* Please enter a valid date ** Please enter a valid date *
Statement Details |
| 2026 | 23548 | STATE - STATE LEVY (SCHOOL) | $329.26 | $329.24 | $0.00 | $0.00 | $0.00 | $658.50 |
| 2026 | 23548 | COUNTY - COUNTY LEVIES (CE, DD, VET, MH) | $131.65 | $131.61 | $0.00 | $0.00 | $0.00 | $263.26 |
| 2026 | 23548 | CONSERVE - CONSERVATION FUTURES | $3.95 | $3.94 | $0.00 | $0.00 | $0.00 | $7.89 |
| 2026 | 23548 | CITYPT - CITY OF PT | $186.85 | $186.84 | $0.00 | $0.00 | $0.00 | $373.69 |
| 2026 | 23548 | PORTPT - PORT DISTRICT | $53.17 | $53.16 | $0.00 | $0.00 | $0.00 | $106.33 |
| 2026 | 23548 | PUD1 - PUD #1 | $8.56 | $8.56 | $0.00 | $0.00 | $0.00 | $17.12 |
| 2026 | 23548 | HD2 - HOSP DIST #2 | $7.68 | $7.67 | $0.00 | $0.00 | $0.00 | $15.35 |
| 2026 | 23548 | SD50 - SCHOOL DIST #50 | $260.84 | $260.83 | $0.00 | $0.00 | $0.00 | $521.67 |
| 2026 | 23548 | FD1 - FIRE DISTRICT #1 | $174.32 | $174.31 | $0.00 | $0.00 | $0.00 | $348.63 |
| 2026 | 23548 | EMS1 - FIRE DIST #1 EMS | $67.02 | $67.02 | $0.00 | $0.00 | $0.00 | $134.04 |
| 2026 | 23548 | JCCD - JC Conservation District | $2.55 | $2.55 | $0.00 | $0.00 | $0.00 | $5.10 |
| 2026 | 23548 | NWA - Noxious Weed Assessment | $2.98 | $2.97 | $0.00 | $0.00 | $0.00 | $5.95 |
| 2026 | 23548 | TOTAL: | $1228.83 | $1228.70 | $0.00 | $0.00 | $0.00 | $2457.53 |
|
| 2026 | 23548 | $1228.83 | $1228.70 | $0.00 | $0.00 | $0.00 | $2457.53 |
Statement Details |
| 2025 | 23610 | STATE - STATE LEVY (SCHOOL) | $330.92 | $330.91 | $0.00 | $0.00 | $661.83 | $0.00 |
| 2025 | 23610 | COUNTY - COUNTY LEVIES (CE, DD, VET, MH) | $130.14 | $130.11 | $0.00 | $0.00 | $260.25 | $0.00 |
| 2025 | 23610 | CONSERVE - CONSERVATION FUTURES | $3.90 | $3.90 | $0.00 | $0.00 | $7.80 | $0.00 |
| 2025 | 23610 | CITYPT - CITY OF PT | $187.66 | $187.66 | $0.00 | $0.00 | $375.32 | $0.00 |
| 2025 | 23610 | PORTPT - PORT DISTRICT | $53.10 | $53.10 | $0.00 | $0.00 | $106.20 | $0.00 |
| 2025 | 23610 | PUD1 - PUD #1 | $8.52 | $8.51 | $0.00 | $0.00 | $17.03 | $0.00 |
| 2025 | 23610 | HD2 - HOSP DIST #2 | $7.59 | $7.59 | $0.00 | $0.00 | $15.18 | $0.00 |
| 2025 | 23610 | SD50 - SCHOOL DIST #50 | $241.85 | $241.84 | $0.00 | $0.00 | $483.69 | $0.00 |
| 2025 | 23610 | FD1 - FIRE DISTRICT #1 | $171.72 | $171.72 | $0.00 | $0.00 | $343.44 | $0.00 |
| 2025 | 23610 | EMS1 - FIRE DIST #1 EMS | $66.05 | $66.05 | $0.00 | $0.00 | $132.10 | $0.00 |
| 2025 | 23610 | JCCD - JC Conservation District | $2.55 | $2.55 | $0.00 | $0.00 | $5.10 | $0.00 |
| 2025 | 23610 | NWA - Noxious Weed Assessment | $2.15 | $2.15 | $0.00 | $0.00 | $4.30 | $0.00 |
| 2025 | 23610 | TOTAL: | $1206.15 | $1206.09 | $0.00 | $0.00 | $2412.24 | $0.00 |
|
| 2025 | 23610 | $1206.15 | $1206.09 | $0.00 | $0.00 | $2412.24 | $0.00 |
Statement Details |
| 2024 | 23655 | STATE - STATE LEVY (SCHOOL) | $292.69 | $292.68 | $0.00 | $0.00 | $585.37 | $0.00 |
| 2024 | 23655 | COUNTY - COUNTY LEVIES (CE, DD, VET, MH) | $125.25 | $125.22 | $0.00 | $0.00 | $250.47 | $0.00 |
| 2024 | 23655 | CONSERVE - CONSERVATION FUTURES | $3.76 | $3.75 | $0.00 | $0.00 | $7.51 | $0.00 |
| 2024 | 23655 | CITYPT - CITY OF PT | $178.96 | $178.94 | $0.00 | $0.00 | $357.90 | $0.00 |
| 2024 | 23655 | PORTPT - PORT DISTRICT | $51.74 | $51.72 | $0.00 | $0.00 | $103.46 | $0.00 |
| 2024 | 23655 | PUD1 - PUD #1 | $8.23 | $8.22 | $0.00 | $0.00 | $16.45 | $0.00 |
| 2024 | 23655 | HD2 - HOSP DIST #2 | $7.31 | $7.31 | $0.00 | $0.00 | $14.62 | $0.00 |
| 2024 | 23655 | SD50 - SCHOOL DIST #50 | $236.80 | $236.79 | $0.00 | $0.00 | $473.59 | $0.00 |
| 2024 | 23655 | FD1 - FIRE DISTRICT #1 | $165.60 | $165.60 | $0.00 | $0.00 | $331.20 | $0.00 |
| 2024 | 23655 | EMS1 - FIRE DIST #1 EMS | $63.26 | $63.25 | $0.00 | $0.00 | $126.51 | $0.00 |
| 2024 | 23655 | JCCD - JC Conservation District | $2.55 | $2.55 | $0.00 | $0.00 | $5.10 | $0.00 |
| 2024 | 23655 | NWA - Noxious Weed Assessment | $2.15 | $2.15 | $0.00 | $0.00 | $4.30 | $0.00 |
| 2024 | 23655 | TOTAL: | $1138.30 | $1138.18 | $0.00 | $0.00 | $2276.48 | $0.00 |
|
| 2024 | 23655 | $1138.30 | $1138.18 | $0.00 | $0.00 | $2276.48 | $0.00 |
Statement Details |
| 2023 | 23693 | STATE - STATE LEVY (SCHOOL) | $291.94 | $291.92 | $0.00 | $0.00 | $583.86 | $0.00 |
| 2023 | 23693 | COUNTY - COUNTY LEVIES (CE, DD, VET, MH) | $127.40 | $127.38 | $0.00 | $0.00 | $254.78 | $0.00 |
| 2023 | 23693 | CONSERVE - CONSERVATION FUTURES | $3.82 | $3.82 | $0.00 | $0.00 | $7.64 | $0.00 |
| 2023 | 23693 | CITYPT - CITY OF PT | $180.05 | $180.03 | $0.00 | $0.00 | $360.08 | $0.00 |
| 2023 | 23693 | PORTPT - PORT DISTRICT | $53.67 | $53.66 | $0.00 | $0.00 | $107.33 | $0.00 |
| 2023 | 23693 | PUD1 - PUD #1 | $8.45 | $8.44 | $0.00 | $0.00 | $16.89 | $0.00 |
| 2023 | 23693 | HD2 - HOSP DIST #2 | $7.43 | $7.43 | $0.00 | $0.00 | $14.86 | $0.00 |
| 2023 | 23693 | SD50 - SCHOOL DIST #50 | $231.67 | $231.64 | $0.00 | $0.00 | $463.31 | $0.00 |
| 2023 | 23693 | FD1 - FIRE DISTRICT #1 | $104.95 | $104.94 | $0.00 | $0.00 | $209.89 | $0.00 |
| 2023 | 23693 | EMS1 - FIRE DIST #1 EMS | $44.64 | $44.64 | $0.00 | $0.00 | $89.28 | $0.00 |
| 2023 | 23693 | JCCD - JC Conservation District | $2.55 | $2.55 | $0.00 | $0.00 | $5.10 | $0.00 |
| 2023 | 23693 | NWA - Noxious Weed Assessment | $2.15 | $2.15 | $0.00 | $0.00 | $4.30 | $0.00 |
| 2023 | 23693 | TOTAL: | $1058.72 | $1058.60 | $0.00 | $0.00 | $2117.32 | $0.00 |
|
| 2023 | 23693 | $1058.72 | $1058.60 | $0.00 | $0.00 | $2117.32 | $0.00 |
Values
| (+) Improvement Homesite Value: | + | $0 | |
| (+) Improvement Non-Homesite Value: | + | $145,920 | |
| (+) Land Homesite Value: | + | $0 | |
| (+) Land Non-Homesite Value: | + | $140,500 | |
| (+) Curr Use (HS): | + | $0 | $0 |
| (+) Curr Use (NHS): | + | $0 | $0 |
| | | -------------------------- | |
| (=) Market Value: | = | $286,420 | |
| (–) Productivity Loss: | – | $0 | |
| | | -------------------------- | |
| (=) Subtotal: | = | $286,420 | |
| (+) Senior Appraised Value: | + | $0 | |
| (+) Non-Senior Appraised Value: | + | $286,420 | |
| | | -------------------------- | |
| (=) Total Appraised Value: | = | $286,420 | |
| (–) Senior Exemption Loss: | – | $0 | |
| (–) Exemption Loss: | – | $0 | |
| | | -------------------------- | |
| (=) Taxable Value: | = | $286,420 | |
Taxing Jurisdiction
| Owner: | LAURA M NATHAN | | |
| % Ownership: | 100.0000000000% | | |
| Total Value: | $286,420 | | |
| Tax Area: | 0110 - C-50F1E1H2 |
| CE | COUNTY CURRENT EXPENSE | 0.9034619479 | $286,420 | $286,420 | $258.77 | | |
| CNTYDD | DEVELOPMENTAL DISABILITIES | 0.0052121823 | $286,420 | $286,420 | $1.49 | | |
| CNTYVET | VETERANS RELIEF | 0.0052777810 | $286,420 | $286,420 | $1.51 | | |
| MENTAL | MENTAL HEALTH | 0.0052121823 | $286,420 | $286,420 | $1.49 | | |
| PTGEN | CITY OF PT GENERAL | 0.8551967795 | $286,420 | $286,420 | $244.95 | | |
| PTLLL | CITY OF PT - LIBRARY LID LIFT | 0.4010114288 | $286,420 | $286,420 | $114.86 | | |
| PTMVBOND | CITY OF PT MV BOND | 0.0484717981 | $286,420 | $286,420 | $13.88 | | |
| HOSP2CASH | HOSP DIST #2 GENERAL | 0.0536075306 | $286,420 | $286,420 | $15.35 | | |
| SCH50BOND | SCHOOL DIST #50 BOND 2016 | 0.5377451389 | $286,420 | $286,420 | $154.02 | | |
| SCH50CP | SCHOOL DIST #50 CAP PROJ | 0.4573475088 | $286,420 | $286,420 | $130.99 | | |
| SCH50MO | SCHOOL DIST #50 EP & O | 0.8262822886 | $286,420 | $286,420 | $236.66 | | |
| CONSERVE | CONSERVATION FUTURES | 0.0275621078 | $286,420 | $286,420 | $7.89 | | |
| EMS1 | FIRE DIST #1 EMS | 0.4679948282 | $286,420 | $286,420 | $134.04 | | |
| FD1 | FIRE DIST #1 GENERAL | 1.2171942929 | $286,420 | $286,420 | $348.63 | | |
| PORTPT | PORT OF PT GENERAL | 0.1134941229 | $286,420 | $286,420 | $32.51 | | |
| PORTPTIDD | PORT OF PT IDD 2019 | 0.2577346692 | $286,420 | $286,420 | $73.82 | | |
| PUD1 | PUD #1 GENERAL | 0.0597888892 | $286,420 | $286,420 | $17.12 | | |
| STATE | STATE SCHOOL PART 1 | 1.4940692947 | $286,420 | $286,420 | $427.93 | | |
| STATE2 | STATE SCHOOL PART 2 | 0.8050170049 | $286,420 | $286,420 | $230.57 | | |
| | Total Tax Rate: | 8.5416817766 | | | | | |
| | | | | Taxes w/Current Exemptions: | $2,446.48 | | |
| | | | | Taxes w/o Exemptions: | $2,446.48 | | |
Improvement / Building
| Improvement #1: | Residential Bldg | State Code: | 11 | 1005.0 sqft | Value: | $145,920 |
| Bathrooms (#): | 1 (FULL) | Bedrooms (#): | 3 | | Exterior Wall: | SI/ST | Floor Construction: | FRAME | | Foundation: | CONPR | Heating/Cooling: | ELBB | | Roof Cover: | COMP |   |   |
|
| | Type | Description | Class CD | Sub Class CD | Year Built | Area |
| | MA | Main Area | 3 | 1S | 1971 | 1005.0 |
| | GATT | House Attached Garage | 3 | 1S | 1971 | 375.0 |
| | CONCD | Concrete Drive | 3 | * | 1971 | 300.0 |
| | HDECK | House Deck | 3 | 1S | 1971 | 128.0 |
Sketch
Property Image
Land
| 1 | 6090-1175L | | 0.0000 | 0.00 | 0.00 | 0.00 | 1.00 | $140,500 | $0 |
Roll Value History
| 2026 | N/A | N/A | N/A | N/A | N/A |
| 2025 | $145,920 | $140,500 | $0 | $286,420 | $286,420 |
| 2024 | $135,286 | $140,700 | $0 | $275,986 | $275,986 |
| 2023 | $124,012 | $129,000 | $0 | $253,012 | $253,012 |
| 2022 | $124,012 | $124,000 | $0 | $248,012 | $248,012 |
Deed and Sales History
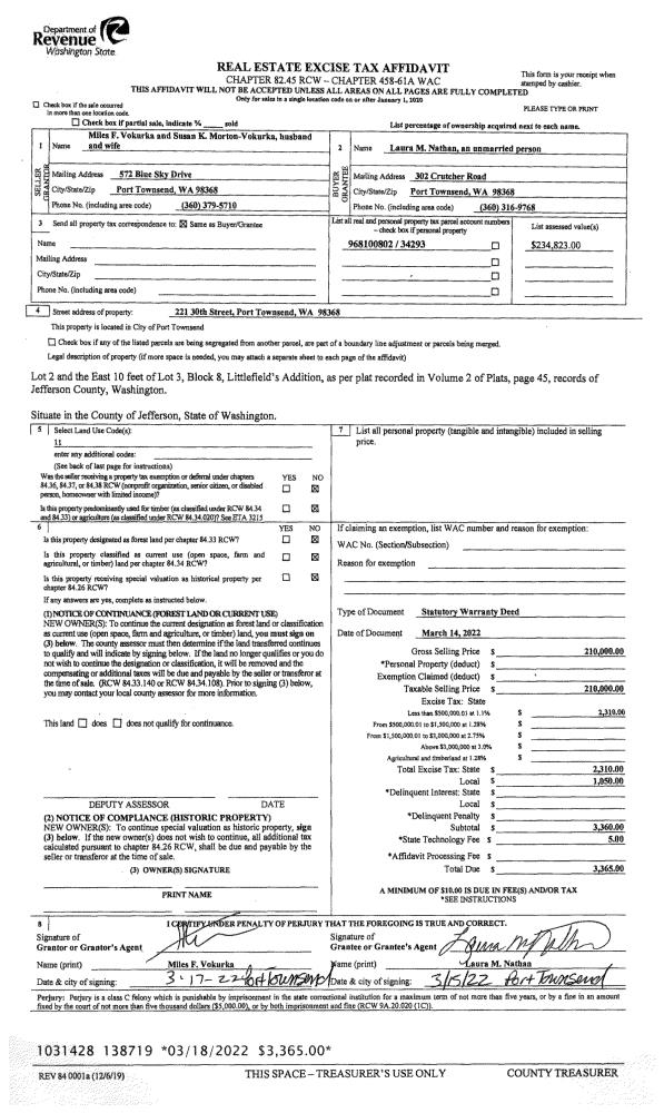
| 1 | 03/14/2022 | SWD | Statutory Warranty Deed | MILES F VOKURKA | LAURA M NATHAN | | | $210,000.00 | 138719 | |
| 2 | 04/07/2003 | SWD | Statutory Warranty Deed | REDD, JOHN T/JOAN I | VOKURKA, MILES/SUSAN | 0 | 0 | $123,500.00 | 97029 | 0 |
Payout Agreement
| No payout information available.. |