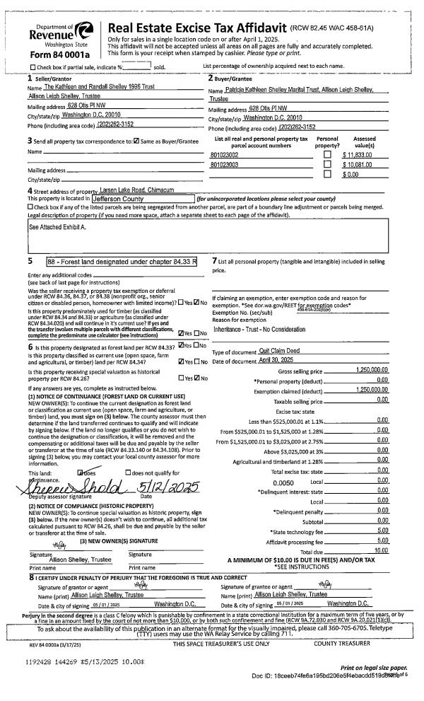
Property
Account |
| Property ID: | 34319 | Abbreviated Legal Description: | LYNNESFIELD PUD #2 LOT 14 SUBJ/EASE #533195 |
| Parcel # / Geo ID: | 968500014 | Agent Code: | |
| Type: | Real | | |
| Tax Area: | 0110 - C-50F1E1H2 | Land Use Code | 11 |
| Open Space: | N | DFL | N |
| Historic Property: | N | Remodel Property: | N |
| Multi-Family Redevelopment: | N | | |
| Township: | 31N | Section: | 34 |
| Range: | 1W |
Location |
| Address: | 3912 HOLCOMB ST PORT TOWNSEND, WA 98368 | Mapsco: | 078/047 |
| Neighborhood: | LYNNSFIELD & ACREAGE ADJ/WEST OF SAN JUAN AVE & NORTH OF UMATILLA | Map ID: | |
| Neighborhood CD: | 6080 |
Owner |
| Name: | LEONA M MADDOCK | Owner ID: | 92036 |
| Mailing Address: | 3301 12TH AVE CT NW GIG HARBOR, WA 98335-1591 | % Ownership: | 100.0000000000% |
| | | Exemptions: | |
Pay Tax Due
Select the appropriate checkbox next to the year to be paid. Multiple years may be selected.
*Convenience Fee not included
Taxes and Assessment Details
Property Tax Information as of
03/11/2026
Click on "Statement Details" to expand or collapse a tax statement.
* Please enter a valid date ** Please enter a valid date *
Statement Details |
| 2026 | 23574 | STATE - STATE LEVY (SCHOOL) | $754.26 | $754.25 | $0.00 | $0.00 | $754.26 | $754.25 |
| 2026 | 23574 | COUNTY - COUNTY LEVIES (CE, DD, VET, MH) | $301.55 | $301.54 | $0.00 | $0.00 | $301.55 | $301.54 |
| 2026 | 23574 | CONSERVE - CONSERVATION FUTURES | $9.04 | $9.04 | $0.00 | $0.00 | $9.04 | $9.04 |
| 2026 | 23574 | CITYPT - CITY OF PT | $428.03 | $428.02 | $0.00 | $0.00 | $428.03 | $428.02 |
| 2026 | 23574 | PORTPT - PORT DISTRICT | $121.80 | $121.78 | $0.00 | $0.00 | $121.80 | $121.78 |
| 2026 | 23574 | PUD1 - PUD #1 | $19.62 | $19.61 | $0.00 | $0.00 | $19.62 | $19.61 |
| 2026 | 23574 | HD2 - HOSP DIST #2 | $17.59 | $17.58 | $0.00 | $0.00 | $17.59 | $17.58 |
| 2026 | 23574 | SD50 - SCHOOL DIST #50 | $597.54 | $597.52 | $0.00 | $0.00 | $597.54 | $597.52 |
| 2026 | 23574 | FD1 - FIRE DISTRICT #1 | $399.33 | $399.32 | $0.00 | $0.00 | $399.33 | $399.32 |
| 2026 | 23574 | EMS1 - FIRE DIST #1 EMS | $153.54 | $153.53 | $0.00 | $0.00 | $153.54 | $153.53 |
| 2026 | 23574 | JCCD - JC Conservation District | $2.55 | $2.55 | $0.00 | $0.00 | $2.55 | $2.55 |
| 2026 | 23574 | NWA - Noxious Weed Assessment | $2.98 | $2.97 | $0.00 | $0.00 | $2.98 | $2.97 |
| 2026 | 23574 | TOTAL: | $2807.83 | $2807.71 | $0.00 | $0.00 | $2807.83 | $2807.71 |
|
| 2026 | 23574 | $2807.83 | $2807.71 | $0.00 | $0.00 | $2807.83 | $2807.71 |
Statement Details |
| 2025 | 23636 | STATE - STATE LEVY (SCHOOL) | $744.99 | $744.98 | $0.00 | $0.00 | $1489.97 | $0.00 |
| 2025 | 23636 | COUNTY - COUNTY LEVIES (CE, DD, VET, MH) | $292.97 | $292.94 | $0.00 | $0.00 | $585.91 | $0.00 |
| 2025 | 23636 | CONSERVE - CONSERVATION FUTURES | $8.79 | $8.78 | $0.00 | $0.00 | $17.57 | $0.00 |
| 2025 | 23636 | CITYPT - CITY OF PT | $422.48 | $422.47 | $0.00 | $0.00 | $844.95 | $0.00 |
| 2025 | 23636 | PORTPT - PORT DISTRICT | $119.55 | $119.54 | $0.00 | $0.00 | $239.09 | $0.00 |
| 2025 | 23636 | PUD1 - PUD #1 | $19.17 | $19.17 | $0.00 | $0.00 | $38.34 | $0.00 |
| 2025 | 23636 | HD2 - HOSP DIST #2 | $17.09 | $17.09 | $0.00 | $0.00 | $34.18 | $0.00 |
| 2025 | 23636 | SD50 - SCHOOL DIST #50 | $544.47 | $544.45 | $0.00 | $0.00 | $1088.92 | $0.00 |
| 2025 | 23636 | FD1 - FIRE DISTRICT #1 | $386.60 | $386.59 | $0.00 | $0.00 | $773.19 | $0.00 |
| 2025 | 23636 | EMS1 - FIRE DIST #1 EMS | $148.70 | $148.69 | $0.00 | $0.00 | $297.39 | $0.00 |
| 2025 | 23636 | JCCD - JC Conservation District | $2.55 | $2.55 | $0.00 | $0.00 | $5.10 | $0.00 |
| 2025 | 23636 | NWA - Noxious Weed Assessment | $2.15 | $2.15 | $0.00 | $0.00 | $4.30 | $0.00 |
| 2025 | 23636 | TOTAL: | $2709.51 | $2709.40 | $0.00 | $0.00 | $5418.91 | $0.00 |
|
| 2025 | 23636 | $2709.51 | $2709.40 | $0.00 | $0.00 | $5418.91 | $0.00 |
Statement Details |
| 2024 | 23681 | STATE - STATE LEVY (SCHOOL) | $680.95 | $680.93 | $0.00 | $0.00 | $1361.88 | $0.00 |
| 2024 | 23681 | COUNTY - COUNTY LEVIES (CE, DD, VET, MH) | $291.40 | $291.36 | $0.00 | $0.00 | $582.76 | $0.00 |
| 2024 | 23681 | CONSERVE - CONSERVATION FUTURES | $8.74 | $8.73 | $0.00 | $0.00 | $17.47 | $0.00 |
| 2024 | 23681 | CITYPT - CITY OF PT | $416.36 | $416.33 | $0.00 | $0.00 | $832.69 | $0.00 |
| 2024 | 23681 | PORTPT - PORT DISTRICT | $120.36 | $120.35 | $0.00 | $0.00 | $240.71 | $0.00 |
| 2024 | 23681 | PUD1 - PUD #1 | $19.14 | $19.14 | $0.00 | $0.00 | $38.28 | $0.00 |
| 2024 | 23681 | HD2 - HOSP DIST #2 | $17.00 | $17.00 | $0.00 | $0.00 | $34.00 | $0.00 |
| 2024 | 23681 | SD50 - SCHOOL DIST #50 | $550.92 | $550.91 | $0.00 | $0.00 | $1101.83 | $0.00 |
| 2024 | 23681 | FD1 - FIRE DISTRICT #1 | $385.28 | $385.27 | $0.00 | $0.00 | $770.55 | $0.00 |
| 2024 | 23681 | EMS1 - FIRE DIST #1 EMS | $147.16 | $147.16 | $0.00 | $0.00 | $294.32 | $0.00 |
| 2024 | 23681 | JCCD - JC Conservation District | $2.55 | $2.55 | $0.00 | $0.00 | $5.10 | $0.00 |
| 2024 | 23681 | NWA - Noxious Weed Assessment | $2.15 | $2.15 | $0.00 | $0.00 | $4.30 | $0.00 |
| 2024 | 23681 | TOTAL: | $2642.01 | $2641.88 | $0.00 | $0.00 | $5283.89 | $0.00 |
|
| 2024 | 23681 | $2642.01 | $2641.88 | $0.00 | $0.00 | $5283.89 | $0.00 |
Statement Details |
| 2023 | 23719 | STATE - STATE LEVY (SCHOOL) | $687.00 | $686.98 | $0.00 | $0.00 | $1373.98 | $0.00 |
| 2023 | 23719 | COUNTY - COUNTY LEVIES (CE, DD, VET, MH) | $299.79 | $299.77 | $0.00 | $0.00 | $599.56 | $0.00 |
| 2023 | 23719 | CONSERVE - CONSERVATION FUTURES | $8.99 | $8.99 | $0.00 | $0.00 | $17.98 | $0.00 |
| 2023 | 23719 | CITYPT - CITY OF PT | $423.70 | $423.68 | $0.00 | $0.00 | $847.38 | $0.00 |
| 2023 | 23719 | PORTPT - PORT DISTRICT | $126.29 | $126.28 | $0.00 | $0.00 | $252.57 | $0.00 |
| 2023 | 23719 | PUD1 - PUD #1 | $19.87 | $19.87 | $0.00 | $0.00 | $39.74 | $0.00 |
| 2023 | 23719 | HD2 - HOSP DIST #2 | $17.50 | $17.49 | $0.00 | $0.00 | $34.99 | $0.00 |
| 2023 | 23719 | SD50 - SCHOOL DIST #50 | $545.14 | $545.13 | $0.00 | $0.00 | $1090.27 | $0.00 |
| 2023 | 23719 | FD1 - FIRE DISTRICT #1 | $246.96 | $246.96 | $0.00 | $0.00 | $493.92 | $0.00 |
| 2023 | 23719 | EMS1 - FIRE DIST #1 EMS | $105.05 | $105.05 | $0.00 | $0.00 | $210.10 | $0.00 |
| 2023 | 23719 | JCCD - JC Conservation District | $2.55 | $2.55 | $0.00 | $0.00 | $5.10 | $0.00 |
| 2023 | 23719 | NWA - Noxious Weed Assessment | $2.15 | $2.15 | $0.00 | $0.00 | $4.30 | $0.00 |
| 2023 | 23719 | TOTAL: | $2484.99 | $2484.90 | $0.00 | $0.00 | $4969.89 | $0.00 |
|
| 2023 | 23719 | $2484.99 | $2484.90 | $0.00 | $0.00 | $4969.89 | $0.00 |
Values
| (+) Improvement Homesite Value: | + | $0 | |
| (+) Improvement Non-Homesite Value: | + | $493,137 | |
| (+) Land Homesite Value: | + | $0 | |
| (+) Land Non-Homesite Value: | + | $163,000 | |
| (+) Curr Use (HS): | + | $0 | $0 |
| (+) Curr Use (NHS): | + | $0 | $0 |
| | | -------------------------- | |
| (=) Market Value: | = | $656,137 | |
| (–) Productivity Loss: | – | $0 | |
| | | -------------------------- | |
| (=) Subtotal: | = | $656,137 | |
| (+) Senior Appraised Value: | + | $0 | |
| (+) Non-Senior Appraised Value: | + | $656,137 | |
| | | -------------------------- | |
| (=) Total Appraised Value: | = | $656,137 | |
| (–) Senior Exemption Loss: | – | $0 | |
| (–) Exemption Loss: | – | $0 | |
| | | -------------------------- | |
| (=) Taxable Value: | = | $656,137 | |
Taxing Jurisdiction
| Owner: | LEONA M MADDOCK | | |
| % Ownership: | 100.0000000000% | | |
| Total Value: | $656,137 | | |
| Tax Area: | 0110 - C-50F1E1H2 |
| CE | COUNTY CURRENT EXPENSE | 0.9034619479 | $656,137 | $656,137 | $592.79 | | |
| CNTYDD | DEVELOPMENTAL DISABILITIES | 0.0052121823 | $656,137 | $656,137 | $3.42 | | |
| CNTYVET | VETERANS RELIEF | 0.0052777810 | $656,137 | $656,137 | $3.46 | | |
| MENTAL | MENTAL HEALTH | 0.0052121823 | $656,137 | $656,137 | $3.42 | | |
| PTGEN | CITY OF PT GENERAL | 0.8551967795 | $656,137 | $656,137 | $561.13 | | |
| PTLLL | CITY OF PT - LIBRARY LID LIFT | 0.4010114288 | $656,137 | $656,137 | $263.12 | | |
| PTMVBOND | CITY OF PT MV BOND | 0.0484717981 | $656,137 | $656,137 | $31.80 | | |
| HOSP2CASH | HOSP DIST #2 GENERAL | 0.0536075306 | $656,137 | $656,137 | $35.17 | | |
| SCH50BOND | SCHOOL DIST #50 BOND 2016 | 0.5377451389 | $656,137 | $656,137 | $352.83 | | |
| SCH50CP | SCHOOL DIST #50 CAP PROJ | 0.4573475088 | $656,137 | $656,137 | $300.08 | | |
| SCH50MO | SCHOOL DIST #50 EP & O | 0.8262822886 | $656,137 | $656,137 | $542.15 | | |
| CONSERVE | CONSERVATION FUTURES | 0.0275621078 | $656,137 | $656,137 | $18.08 | | |
| EMS1 | FIRE DIST #1 EMS | 0.4679948282 | $656,137 | $656,137 | $307.07 | | |
| FD1 | FIRE DIST #1 GENERAL | 1.2171942929 | $656,137 | $656,137 | $798.65 | | |
| PORTPT | PORT OF PT GENERAL | 0.1134941229 | $656,137 | $656,137 | $74.47 | | |
| PORTPTIDD | PORT OF PT IDD 2019 | 0.2577346692 | $656,137 | $656,137 | $169.11 | | |
| PUD1 | PUD #1 GENERAL | 0.0597888892 | $656,137 | $656,137 | $39.23 | | |
| STATE | STATE SCHOOL PART 1 | 1.4940692947 | $656,137 | $656,137 | $980.31 | | |
| STATE2 | STATE SCHOOL PART 2 | 0.8050170049 | $656,137 | $656,137 | $528.20 | | |
| | Total Tax Rate: | 8.5416817766 | | | | | |
| | | | | Taxes w/Current Exemptions: | $5,604.49 | | |
| | | | | Taxes w/o Exemptions: | $5,604.49 | | |
Improvement / Building
| Improvement #1: | Residential Bldg | State Code: | 11 | 2110.0 sqft | Value: | $493,137 |
| Bathrooms (#): | 2 (FULL) | Bedrooms (#): | 3 | | Exterior Wall: | SI/ST | Floor Construction: | FRAME | | Foundation: | CONPR | Heating/Cooling: | HPUMP | | Roof Cover: | COMP |   |   |
|
| | Type | Description | Class CD | Sub Class CD | Year Built | Area |
| | MA | Main Area | 4- | 1S | 2004 | 2110.0 |
| | HCPOR | House Concrete Porch | 4 | * | 2004 | 36.0 |
| | HDECK | House Deck | 4 | * | 2004 | 260.0 |
| | GATT | House Attached Garage | 4 | 1S | 2004 | 506.0 |
| | ASPHD | Asphalt Drive | 4 | * | 2004 | 1000.0 |
| | PATIO | House Patio | 4 | * | 2004 | 162.0 |
Sketch
Property Image
Land
| 1 | 6080-1275S | | 0.0000 | 0.00 | 0.00 | 0.00 | 1.00 | $163,000 | $0 |
Roll Value History
| 2026 | N/A | N/A | N/A | N/A | N/A |
| 2025 | $493,137 | $163,000 | $0 | $656,137 | $656,137 |
| 2024 | $457,532 | $163,800 | $0 | $621,332 | $621,332 |
| 2023 | $437,639 | $151,000 | $0 | $588,639 | $588,639 |
| 2022 | $437,639 | $146,000 | $0 | $583,639 | $583,639 |
Deed and Sales History
| 1 | 06/04/2014 | QCD | Quit Claim Deed | | | | | | 121312 | |
| 2 | 12/02/2003 | SWD | Statutory Warranty Deed | CAMPBELL, LYNNETTE/LLOYD | MADDOCK, LEONA/SCHMITT,WILLIAM | 0 | 0 | $37,000.00 | 98941 | 0 |
Payout Agreement
| No payout information available.. |