Property
Account |
| Property ID: | 34343 | Abbreviated Legal Description: | LYNNSFIELD PUD #3 LOT 38 |
| Parcel # / Geo ID: | 968500038 | Agent Code: | |
| Type: | Real | | |
| Tax Area: | 0110 - C-50F1E1H2 | Land Use Code | 11 |
| Open Space: | N | DFL | N |
| Historic Property: | N | Remodel Property: | N |
| Multi-Family Redevelopment: | N | | |
| Township: | 31N | Section: | 34 |
| Range: | 1W |
Location |
| Address: | 3922 HILL ST PORT TOWNSEND, WA 98368 | Mapsco: | 079/006 |
| Neighborhood: | LYNNSFIELD & ACREAGE ADJ/WEST OF SAN JUAN AVE & NORTH OF UMATILLA | Map ID: | |
| Neighborhood CD: | 6080 |
Owner |
| Name: | WENDE & MICHAEL LONG | Owner ID: | 110742 |
| Mailing Address: | THOMAS F & ULRIKE U LONG LIVING TRUST THOMAS F & ULRIKE U LONG TRUSTEES 3928 N MULLEN ST TACOMA, WA 98407-4212 | % Ownership: | 100.0000000000% |
| | | Exemptions: | |
Pay Tax Due
Select the appropriate checkbox next to the year to be paid. Multiple years may be selected.
*Convenience Fee not included
Taxes and Assessment Details
Property Tax Information as of
03/10/2026
Click on "Statement Details" to expand or collapse a tax statement.
* Please enter a valid date ** Please enter a valid date *
Statement Details |
| 2026 | 23598 | STATE - STATE LEVY (SCHOOL) | $621.56 | $621.55 | $0.00 | $0.00 | $0.00 | $1243.11 |
| 2026 | 23598 | COUNTY - COUNTY LEVIES (CE, DD, VET, MH) | $248.50 | $248.49 | $0.00 | $0.00 | $0.00 | $496.99 |
| 2026 | 23598 | CONSERVE - CONSERVATION FUTURES | $7.45 | $7.45 | $0.00 | $0.00 | $0.00 | $14.90 |
| 2026 | 23598 | CITYPT - CITY OF PT | $352.73 | $352.71 | $0.00 | $0.00 | $0.00 | $705.44 |
| 2026 | 23598 | PORTPT - PORT DISTRICT | $100.37 | $100.36 | $0.00 | $0.00 | $0.00 | $200.73 |
| 2026 | 23598 | PUD1 - PUD #1 | $16.17 | $16.16 | $0.00 | $0.00 | $0.00 | $32.33 |
| 2026 | 23598 | HD2 - HOSP DIST #2 | $14.50 | $14.49 | $0.00 | $0.00 | $0.00 | $28.99 |
| 2026 | 23598 | SD50 - SCHOOL DIST #50 | $492.42 | $492.40 | $0.00 | $0.00 | $0.00 | $984.82 |
| 2026 | 23598 | FD1 - FIRE DISTRICT #1 | $329.07 | $329.07 | $0.00 | $0.00 | $0.00 | $658.14 |
| 2026 | 23598 | EMS1 - FIRE DIST #1 EMS | $126.52 | $126.52 | $0.00 | $0.00 | $0.00 | $253.04 |
| 2026 | 23598 | JCCD - JC Conservation District | $2.55 | $2.55 | $0.00 | $0.00 | $0.00 | $5.10 |
| 2026 | 23598 | NWA - Noxious Weed Assessment | $2.98 | $2.97 | $0.00 | $0.00 | $0.00 | $5.95 |
| 2026 | 23598 | TOTAL: | $2314.82 | $2314.72 | $0.00 | $0.00 | $0.00 | $4629.54 |
|
| 2026 | 23598 | $2314.82 | $2314.72 | $0.00 | $0.00 | $0.00 | $4629.54 |
Statement Details |
| 2025 | 23660 | STATE - STATE LEVY (SCHOOL) | $609.33 | $609.31 | $0.00 | $0.00 | $1218.64 | $0.00 |
| 2025 | 23660 | COUNTY - COUNTY LEVIES (CE, DD, VET, MH) | $239.63 | $239.59 | $0.00 | $0.00 | $479.22 | $0.00 |
| 2025 | 23660 | CONSERVE - CONSERVATION FUTURES | $7.19 | $7.18 | $0.00 | $0.00 | $14.37 | $0.00 |
| 2025 | 23660 | CITYPT - CITY OF PT | $345.55 | $345.53 | $0.00 | $0.00 | $691.08 | $0.00 |
| 2025 | 23660 | PORTPT - PORT DISTRICT | $97.78 | $97.77 | $0.00 | $0.00 | $195.55 | $0.00 |
| 2025 | 23660 | PUD1 - PUD #1 | $15.68 | $15.68 | $0.00 | $0.00 | $31.36 | $0.00 |
| 2025 | 23660 | HD2 - HOSP DIST #2 | $13.98 | $13.98 | $0.00 | $0.00 | $27.96 | $0.00 |
| 2025 | 23660 | SD50 - SCHOOL DIST #50 | $445.32 | $445.30 | $0.00 | $0.00 | $890.62 | $0.00 |
| 2025 | 23660 | FD1 - FIRE DISTRICT #1 | $316.20 | $316.19 | $0.00 | $0.00 | $632.39 | $0.00 |
| 2025 | 23660 | EMS1 - FIRE DIST #1 EMS | $121.62 | $121.61 | $0.00 | $0.00 | $243.23 | $0.00 |
| 2025 | 23660 | JCCD - JC Conservation District | $2.55 | $2.55 | $0.00 | $0.00 | $5.10 | $0.00 |
| 2025 | 23660 | NWA - Noxious Weed Assessment | $2.15 | $2.15 | $0.00 | $0.00 | $4.30 | $0.00 |
| 2025 | 23660 | TOTAL: | $2216.98 | $2216.84 | $0.00 | $0.00 | $4433.82 | $0.00 |
|
| 2025 | 23660 | $2216.98 | $2216.84 | $0.00 | $0.00 | $4433.82 | $0.00 |
Statement Details |
| 2024 | 23705 | STATE - STATE LEVY (SCHOOL) | $555.93 | $555.91 | $0.00 | $0.00 | $1111.84 | $0.00 |
| 2024 | 23705 | COUNTY - COUNTY LEVIES (CE, DD, VET, MH) | $237.90 | $237.87 | $0.00 | $0.00 | $475.77 | $0.00 |
| 2024 | 23705 | CONSERVE - CONSERVATION FUTURES | $7.14 | $7.13 | $0.00 | $0.00 | $14.27 | $0.00 |
| 2024 | 23705 | CITYPT - CITY OF PT | $339.91 | $339.89 | $0.00 | $0.00 | $679.80 | $0.00 |
| 2024 | 23705 | PORTPT - PORT DISTRICT | $98.27 | $98.25 | $0.00 | $0.00 | $196.52 | $0.00 |
| 2024 | 23705 | PUD1 - PUD #1 | $15.63 | $15.62 | $0.00 | $0.00 | $31.25 | $0.00 |
| 2024 | 23705 | HD2 - HOSP DIST #2 | $13.88 | $13.88 | $0.00 | $0.00 | $27.76 | $0.00 |
| 2024 | 23705 | SD50 - SCHOOL DIST #50 | $449.78 | $449.76 | $0.00 | $0.00 | $899.54 | $0.00 |
| 2024 | 23705 | FD1 - FIRE DISTRICT #1 | $314.54 | $314.54 | $0.00 | $0.00 | $629.08 | $0.00 |
| 2024 | 23705 | EMS1 - FIRE DIST #1 EMS | $120.14 | $120.14 | $0.00 | $0.00 | $240.28 | $0.00 |
| 2024 | 23705 | JCCD - JC Conservation District | $2.55 | $2.55 | $0.00 | $0.00 | $5.10 | $0.00 |
| 2024 | 23705 | NWA - Noxious Weed Assessment | $2.15 | $2.15 | $0.00 | $0.00 | $4.30 | $0.00 |
| 2024 | 23705 | TOTAL: | $2157.82 | $2157.69 | $0.00 | $0.00 | $4315.51 | $0.00 |
|
| 2024 | 23705 | $2157.82 | $2157.69 | $0.00 | $0.00 | $4315.51 | $0.00 |
Statement Details |
| 2023 | 23743 | STATE - STATE LEVY (SCHOOL) | $236.87 | $236.86 | $0.00 | $0.00 | $473.73 | $0.00 |
| 2023 | 23743 | COUNTY - COUNTY LEVIES (CE, DD, VET, MH) | $103.37 | $103.34 | $0.00 | $0.00 | $206.71 | $0.00 |
| 2023 | 23743 | CONSERVE - CONSERVATION FUTURES | $3.10 | $3.10 | $0.00 | $0.00 | $6.20 | $0.00 |
| 2023 | 23743 | CITYPT - CITY OF PT | $146.09 | $146.07 | $0.00 | $0.00 | $292.16 | $0.00 |
| 2023 | 23743 | PORTPT - PORT DISTRICT | $43.54 | $43.54 | $0.00 | $0.00 | $87.08 | $0.00 |
| 2023 | 23743 | PUD1 - PUD #1 | $6.85 | $6.85 | $0.00 | $0.00 | $13.70 | $0.00 |
| 2023 | 23743 | HD2 - HOSP DIST #2 | $6.04 | $6.02 | $0.00 | $0.00 | $12.06 | $0.00 |
| 2023 | 23743 | SD50 - SCHOOL DIST #50 | $187.95 | $187.95 | $0.00 | $0.00 | $375.90 | $0.00 |
| 2023 | 23743 | FD1 - FIRE DISTRICT #1 | $85.15 | $85.15 | $0.00 | $0.00 | $170.30 | $0.00 |
| 2023 | 23743 | EMS1 - FIRE DIST #1 EMS | $36.22 | $36.22 | $0.00 | $0.00 | $72.44 | $0.00 |
| 2023 | 23743 | JCCD - JC Conservation District | $2.55 | $2.55 | $0.00 | $0.00 | $5.10 | $0.00 |
| 2023 | 23743 | NWA - Noxious Weed Assessment | $2.15 | $2.15 | $0.00 | $0.00 | $4.30 | $0.00 |
| 2023 | 23743 | WAT - Clean Water District | $12.00 | $12.00 | $0.00 | $0.00 | $24.00 | $0.00 |
| 2023 | 23743 | TOTAL: | $871.88 | $871.80 | $0.00 | $0.00 | $1743.68 | $0.00 |
|
| 2023 | 23743 | $871.88 | $871.80 | $0.00 | $0.00 | $1743.68 | $0.00 |
Values
| (+) Improvement Homesite Value: | + | $0 | |
| (+) Improvement Non-Homesite Value: | + | $415,700 | |
| (+) Land Homesite Value: | + | $0 | |
| (+) Land Non-Homesite Value: | + | $125,000 | |
| (+) Curr Use (HS): | + | $0 | $0 |
| (+) Curr Use (NHS): | + | $0 | $0 |
| | | -------------------------- | |
| (=) Market Value: | = | $540,700 | |
| (–) Productivity Loss: | – | $0 | |
| | | -------------------------- | |
| (=) Subtotal: | = | $540,700 | |
| (+) Senior Appraised Value: | + | $0 | |
| (+) Non-Senior Appraised Value: | + | $540,700 | |
| | | -------------------------- | |
| (=) Total Appraised Value: | = | $540,700 | |
| (–) Senior Exemption Loss: | – | $0 | |
| (–) Exemption Loss: | – | $0 | |
| | | -------------------------- | |
| (=) Taxable Value: | = | $540,700 | |
Taxing Jurisdiction
| Owner: | WENDE & MICHAEL LONG | | |
| % Ownership: | 100.0000000000% | | |
| Total Value: | $540,700 | | |
| Tax Area: | 0110 - C-50F1E1H2 |
| CE | COUNTY CURRENT EXPENSE | 0.9034619479 | $540,700 | $540,700 | $488.50 | | |
| CNTYDD | DEVELOPMENTAL DISABILITIES | 0.0052121823 | $540,700 | $540,700 | $2.82 | | |
| CNTYVET | VETERANS RELIEF | 0.0052777810 | $540,700 | $540,700 | $2.85 | | |
| MENTAL | MENTAL HEALTH | 0.0052121823 | $540,700 | $540,700 | $2.82 | | |
| PTGEN | CITY OF PT GENERAL | 0.8551967795 | $540,700 | $540,700 | $462.40 | | |
| PTLLL | CITY OF PT - LIBRARY LID LIFT | 0.4010114288 | $540,700 | $540,700 | $216.83 | | |
| PTMVBOND | CITY OF PT MV BOND | 0.0484717981 | $540,700 | $540,700 | $26.21 | | |
| HOSP2CASH | HOSP DIST #2 GENERAL | 0.0536075306 | $540,700 | $540,700 | $28.99 | | |
| SCH50BOND | SCHOOL DIST #50 BOND 2016 | 0.5377451389 | $540,700 | $540,700 | $290.76 | | |
| SCH50CP | SCHOOL DIST #50 CAP PROJ | 0.4573475088 | $540,700 | $540,700 | $247.29 | | |
| SCH50MO | SCHOOL DIST #50 EP & O | 0.8262822886 | $540,700 | $540,700 | $446.77 | | |
| CONSERVE | CONSERVATION FUTURES | 0.0275621078 | $540,700 | $540,700 | $14.90 | | |
| EMS1 | FIRE DIST #1 EMS | 0.4679948282 | $540,700 | $540,700 | $253.04 | | |
| FD1 | FIRE DIST #1 GENERAL | 1.2171942929 | $540,700 | $540,700 | $658.14 | | |
| PORTPT | PORT OF PT GENERAL | 0.1134941229 | $540,700 | $540,700 | $61.37 | | |
| PORTPTIDD | PORT OF PT IDD 2019 | 0.2577346692 | $540,700 | $540,700 | $139.36 | | |
| PUD1 | PUD #1 GENERAL | 0.0597888892 | $540,700 | $540,700 | $32.33 | | |
| STATE | STATE SCHOOL PART 1 | 1.4940692947 | $540,700 | $540,700 | $807.84 | | |
| STATE2 | STATE SCHOOL PART 2 | 0.8050170049 | $540,700 | $540,700 | $435.27 | | |
| | Total Tax Rate: | 8.5416817766 | | | | | |
| | | | | Taxes w/Current Exemptions: | $4,618.49 | | |
| | | | | Taxes w/o Exemptions: | $4,618.49 | | |
Improvement / Building
| Improvement #1: | Residential Bldg | State Code: | 11 | 1558.0 sqft | Value: | $415,700 |
| Exterior Wall: | SI/ST | Foundation: | CONPR | | Heating/Cooling: | HPUMP | Roof Cover: | COMP |
|
| | Type | Description | Class CD | Sub Class CD | Year Built | Area |
| | MA | Main Area | 4+ | 2S | 2022 | 895.0 |
| | MA2 | Second Floor Main Area | 4+ | * | 2022 | 663.0 |
| | GATT | House Attached Garage | 4 | * | 2022 | 348.0 |
| | HWPOR | House Wood Porch | 4 | * | 2022 | 117.0 |
| | CONCD | Concrete Drive | 4 | 15SF | 2022 | 546.9 |
| | SHED | Shed (Table Not Dep) | 4 | * | 2022 | 96.0 |
Sketch
Property Image
Land
| 1 | 6080-1275S | | 0.0000 | 0.00 | 0.00 | 0.00 | 1.00 | $125,000 | $0 |
Roll Value History
| 2026 | N/A | N/A | N/A | N/A | N/A |
| 2025 | $415,700 | $125,000 | $0 | $540,700 | $540,700 |
| 2024 | $382,184 | $126,000 | $0 | $508,184 | $508,184 |
| 2023 | $365,567 | $115,000 | $0 | $480,567 | $480,567 |
| 2022 | $91,229 | $110,000 | $0 | $201,229 | $201,229 |
Deed and Sales History
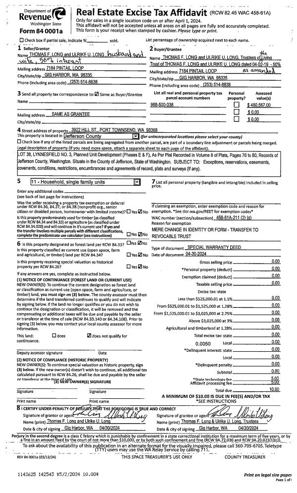
| 1 | 04/30/2024 | SPWD | Special Warranty Deed | THOMAS & ULRIKE LONG | THOMAS F & ULRIKE U LONG LIVING TRUST | | | | 142543 | |
| 2 | 06/14/2022 | SWD | Statutory Warranty Deed | LLOYD R CAMPBELL | WENDE & MICHAEL LONG | | | $100,000.00 | 139369 | |
Payout Agreement
| No payout information available.. |