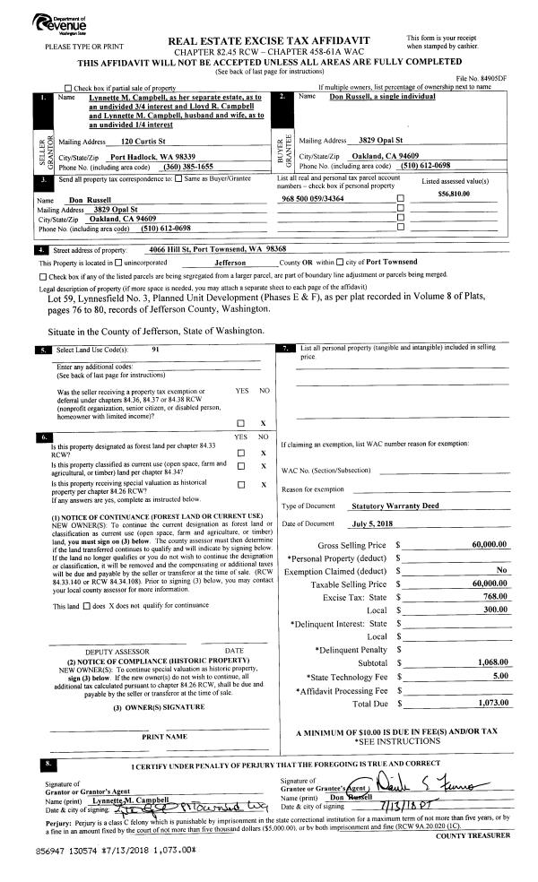
Property
Account |
| Property ID: | 34364 | Abbreviated Legal Description: | LYNNSFIELD PUD #3 LOT 59 |
| Parcel # / Geo ID: | 968500059 | Agent Code: | |
| Type: | Real | | |
| Tax Area: | 0110 - C-50F1E1H2 | Land Use Code | 11 |
| Open Space: | N | DFL | N |
| Historic Property: | N | Remodel Property: | N |
| Multi-Family Redevelopment: | N | | |
| Township: | 31N | Section: | 34 |
| Range: | 1W |
Location |
| Address: | 4066 HILL ST PORT TOWNSEND, WA 98368 | Mapsco: | 079/025 |
| Neighborhood: | LYNNSFIELD & ACREAGE ADJ/WEST OF SAN JUAN AVE & NORTH OF UMATILLA | Map ID: | |
| Neighborhood CD: | 6080 |
Owner |
| Name: | DON RUSSELL | Owner ID: | 99569 |
| Mailing Address: | 420 PARKSIDE DR ASHLAND, OR 97520-1163 | % Ownership: | 100.0000000000% |
| | | Exemptions: | |
Pay Tax Due
There is currently No Amount Due on this property.
Taxes and Assessment Details
Property Tax Information as of
03/11/2026
Click on "Statement Details" to expand or collapse a tax statement.
* Please enter a valid date ** Please enter a valid date *
Statement Details |
| | TOTAL: | $0.00 | $0.00 | $0.00 | $0.00 | $0.00 | $0.00 |
|
| | $0.00 | $0.00 | $0.00 | $0.00 | $0.00 | $0.00 |
Values
| (+) Improvement Homesite Value: | + | $0 | |
| (+) Improvement Non-Homesite Value: | + | $392,354 | |
| (+) Land Homesite Value: | + | $0 | |
| (+) Land Non-Homesite Value: | + | $125,000 | |
| (+) Curr Use (HS): | + | $0 | $0 |
| (+) Curr Use (NHS): | + | $0 | $0 |
| | | -------------------------- | |
| (=) Market Value: | = | $517,354 | |
| (–) Productivity Loss: | – | $0 | |
| | | -------------------------- | |
| (=) Subtotal: | = | $517,354 | |
| (+) Senior Appraised Value: | + | $0 | |
| (+) Non-Senior Appraised Value: | + | $517,354 | |
| | | -------------------------- | |
| (=) Total Appraised Value: | = | $517,354 | |
| (–) Senior Exemption Loss: | – | $0 | |
| (–) Exemption Loss: | – | $0 | |
| | | -------------------------- | |
| (=) Taxable Value: | = | $517,354 | |
Taxing Jurisdiction
| Owner: | DON RUSSELL | | |
| % Ownership: | 100.0000000000% | | |
| Total Value: | $517,354 | | |
| Tax Area: | 0110 - C-50F1E1H2 |
| CE | COUNTY CURRENT EXPENSE | 0.9034619479 | $517,354 | $517,354 | $467.41 | | |
| CNTYDD | DEVELOPMENTAL DISABILITIES | 0.0052121823 | $517,354 | $517,354 | $2.70 | | |
| CNTYVET | VETERANS RELIEF | 0.0052777810 | $517,354 | $517,354 | $2.73 | | |
| MENTAL | MENTAL HEALTH | 0.0052121823 | $517,354 | $517,354 | $2.70 | | |
| PTGEN | CITY OF PT GENERAL | 0.8551967795 | $517,354 | $517,354 | $442.44 | | |
| PTLLL | CITY OF PT - LIBRARY LID LIFT | 0.4010114288 | $517,354 | $517,354 | $207.46 | | |
| PTMVBOND | CITY OF PT MV BOND | 0.0484717981 | $517,354 | $517,354 | $25.08 | | |
| HOSP2CASH | HOSP DIST #2 GENERAL | 0.0536075306 | $517,354 | $517,354 | $27.73 | | |
| SCH50BOND | SCHOOL DIST #50 BOND 2016 | 0.5377451389 | $517,354 | $517,354 | $278.20 | | |
| SCH50CP | SCHOOL DIST #50 CAP PROJ | 0.4573475088 | $517,354 | $517,354 | $236.61 | | |
| SCH50MO | SCHOOL DIST #50 EP & O | 0.8262822886 | $517,354 | $517,354 | $427.48 | | |
| CONSERVE | CONSERVATION FUTURES | 0.0275621078 | $517,354 | $517,354 | $14.26 | | |
| EMS1 | FIRE DIST #1 EMS | 0.4679948282 | $517,354 | $517,354 | $242.12 | | |
| FD1 | FIRE DIST #1 GENERAL | 1.2171942929 | $517,354 | $517,354 | $629.72 | | |
| PORTPT | PORT OF PT GENERAL | 0.1134941229 | $517,354 | $517,354 | $58.72 | | |
| PORTPTIDD | PORT OF PT IDD 2019 | 0.2577346692 | $517,354 | $517,354 | $133.34 | | |
| PUD1 | PUD #1 GENERAL | 0.0597888892 | $517,354 | $517,354 | $30.93 | | |
| STATE | STATE SCHOOL PART 1 | 1.4940692947 | $517,354 | $517,354 | $772.96 | | |
| STATE2 | STATE SCHOOL PART 2 | 0.8050170049 | $517,354 | $517,354 | $416.48 | | |
| | Total Tax Rate: | 8.5416817766 | | | | | |
| | | | | Taxes w/Current Exemptions: | $4,419.07 | | |
| | | | | Taxes w/o Exemptions: | $4,419.07 | | |
Improvement / Building
| Improvement #1: | Residential Bldg | State Code: | 11 | 1538.0 sqft | Value: | $392,354 |
| Bathrooms (#): | 2 (FULL) | Bedrooms (#): | 3 | | Exterior Wall: | SI/ST | Floor Construction: | FRAME | | Foundation: | CONPR | Heating/Cooling: | HPUMP | | Roof Cover: | COMP |   |   |
|
| | Type | Description | Class CD | Sub Class CD | Year Built | Area |
| | MA | Main Area | 4+ | 15SF | 2018 | 898.0 |
| | MA2 | Second Floor Main Area | 4+ | 15SF | 2018 | 640.0 |
| | GATT | House Attached Garage | 4 | 15SF | 2018 | 308.0 |
| | HDECK | House Deck | 4 | * | 2018 | 144.0 |
| | HWPOR | House Wood Porch | 4 | * | 2018 | 60.0 |
| | CONCD | Concrete Drive | 4 | * | 2018 | 500.0 |
Sketch
Property Image
Land
| 1 | 6080-1275S | Lynnsfield Single Family Sites | 0.0000 | 0.00 | 0.00 | 0.00 | 1.00 | $125,000 | $0 |
Roll Value History
| 2026 | N/A | N/A | N/A | N/A | N/A |
| 2025 | $392,354 | $125,000 | $0 | $517,354 | $517,354 |
| 2024 | $372,939 | $126,000 | $0 | $498,939 | $498,939 |
| 2023 | $356,725 | $115,000 | $0 | $471,725 | $471,725 |
| 2022 | $356,725 | $110,000 | $0 | $466,725 | $466,725 |
Deed and Sales History
| 1 | 07/05/2018 | SWD | Statutory Warranty Deed | LLOYD R CAMPBELL | DON RUSSELL | | | $60,000.00 | 130574 | |
Payout Agreement
| No payout information available.. |