Property
Account |
| Property ID: | 34406 | Abbreviated Legal Description: | LUDLOW BAY VILLAGE LOT TH-11 |
| Parcel # / Geo ID: | 968600024 | Agent Code: | |
| Type: | Real | | |
| Tax Area: | 0213 - 1-49F1E1H2L1 | Land Use Code | 11 |
| Open Space: | N | DFL | N |
| Historic Property: | N | Remodel Property: | N |
| Multi-Family Redevelopment: | N | | |
| Township: | 28N | Section: | 16 |
| Range: | 1E |
Location |
| Address: | 22 HERON RD PORT LUDLOW, WA 98365 | Mapsco: | 059/024 |
| Neighborhood: | LUDLOW BAY VILLAGE TOWNHOUSES AND SF-5 HOUSE | Map ID: | |
| Neighborhood CD: | 3339 |
Owner |
| Name: | RICHARD L & JANICE L BLEEK | Owner ID: | 97672 |
| Mailing Address: | PO BOX 65308 PORT LUDLOW, WA 98365-0308 | % Ownership: | 100.0000000000% |
| | | Exemptions: | |
Pay Tax Due
There is currently No Amount Due on this property.
Taxes and Assessment Details
Property Tax Information as of
03/12/2026
Click on "Statement Details" to expand or collapse a tax statement.
* Please enter a valid date ** Please enter a valid date *
Statement Details |
| | TOTAL: | $0.00 | $0.00 | $0.00 | $0.00 | $0.00 | $0.00 |
|
| | $0.00 | $0.00 | $0.00 | $0.00 | $0.00 | $0.00 |
Values
| (+) Improvement Homesite Value: | + | $0 | |
| (+) Improvement Non-Homesite Value: | + | $567,631 | |
| (+) Land Homesite Value: | + | $0 | |
| (+) Land Non-Homesite Value: | + | $309,750 | |
| (+) Curr Use (HS): | + | $0 | $0 |
| (+) Curr Use (NHS): | + | $0 | $0 |
| | | -------------------------- | |
| (=) Market Value: | = | $877,381 | |
| (–) Productivity Loss: | – | $0 | |
| | | -------------------------- | |
| (=) Subtotal: | = | $877,381 | |
| (+) Senior Appraised Value: | + | $0 | |
| (+) Non-Senior Appraised Value: | + | $877,381 | |
| | | -------------------------- | |
| (=) Total Appraised Value: | = | $877,381 | |
| (–) Senior Exemption Loss: | – | $0 | |
| (–) Exemption Loss: | – | $0 | |
| | | -------------------------- | |
| (=) Taxable Value: | = | $877,381 | |
Taxing Jurisdiction
| Owner: | RICHARD L & JANICE L BLEEK | | |
| % Ownership: | 100.0000000000% | | |
| Total Value: | $877,381 | | |
| Tax Area: | 0213 - 1-49F1E1H2L1 |
| CE | COUNTY CURRENT EXPENSE | 0.9034619479 | $877,381 | $877,381 | $792.68 | | |
| CNTYDD | DEVELOPMENTAL DISABILITIES | 0.0052121823 | $877,381 | $877,381 | $4.57 | | |
| CNTYVET | VETERANS RELIEF | 0.0052777810 | $877,381 | $877,381 | $4.63 | | |
| MENTAL | MENTAL HEALTH | 0.0052121823 | $877,381 | $877,381 | $4.57 | | |
| ROADS | COUNTY ROADS | 0.7415066410 | $877,381 | $877,381 | $650.58 | | |
| ROADSCU | COUNTY ROADS TO CUR EXP | 0.0000000000 | $877,381 | $877,381 | $0.00 | | |
| HOSP2CASH | HOSP DIST #2 GENERAL | 0.0536075306 | $877,381 | $877,381 | $47.03 | | |
| SCH49CP | SCHOOL DIST #49 CAP PROJ | 0.6279093905 | $877,381 | $877,381 | $550.92 | | |
| SCH49MO | SCHOOL DIST #49 EP & O | 0.6376483602 | $877,381 | $877,381 | $559.46 | | |
| CONSERVE | CONSERVATION FUTURES | 0.0275621078 | $877,381 | $877,381 | $24.18 | | |
| EMS1 | FIRE DIST #1 EMS | 0.4679948282 | $877,381 | $877,381 | $410.61 | | |
| FD1 | FIRE DIST #1 GENERAL | 1.2171942929 | $877,381 | $877,381 | $1,067.94 | | |
| LIB1 | LIBRARY DIST #1 GENERAL | 0.2868827388 | $877,381 | $877,381 | $251.71 | | |
| PORTPT | PORT OF PT GENERAL | 0.1134941229 | $877,381 | $877,381 | $99.58 | | |
| PORTPTIDD | PORT OF PT IDD 2019 | 0.2577346692 | $877,381 | $877,381 | $226.13 | | |
| PUD1 | PUD #1 GENERAL | 0.0597888892 | $877,381 | $877,381 | $52.46 | | |
| STATE | STATE SCHOOL PART 1 | 1.4940692947 | $877,381 | $877,381 | $1,310.87 | | |
| STATE2 | STATE SCHOOL PART 2 | 0.8050170049 | $877,381 | $877,381 | $706.31 | | |
| | Total Tax Rate: | 7.7095739644 | | | | | |
| | | | | Taxes w/Current Exemptions: | $6,764.23 | | |
| | | | | Taxes w/o Exemptions: | $6,764.23 | | |
Improvement / Building
| Improvement #1: | Residential Bldg | State Code: | 11 | 1911.0 sqft | Value: | $567,631 |
| Bathrooms (#): | 2 (FULL) | Bathrooms (#): | 1 (HALF) | | Bedrooms (#): | 2 | Exterior Wall: | SI/ST | | Fireplace: | SIN 2-GOOD | Floor Construction: | FRAME | | Foundation: | CONPR | Heating/Cooling: | F/A | | Inside Verify: | YES-FIX | Roof Cover: | COMP |
|
| | Type | Description | Class CD | Sub Class CD | Year Built | Area |
| | MA | Main Area | 5+ | 2S | 1996 | 1245.0 |
| | MA2 | Second Floor Main Area | 5+ | 2S | 1996 | 666.0 |
| | HWPOR | House Wood Porch | 5 | * | 1996 | 80.0 |
| | HDECK | House Deck | 5 | * | 1996 | 76.0 |
| | GDET | Detached Garage | 5 | 2S | 1996 | 345.0 |
Sketch
Property Image
Land
| 1 | 3338-1115L | Low Bank Wtrfrt Ludlow Bay Village Townhouses | 0.0000 | 0.00 | 0.00 | 0.00 | 1.00 | $309,750 | $0 |
Roll Value History
| 2026 | N/A | N/A | N/A | N/A | N/A |
| 2025 | $567,631 | $309,750 | $0 | $877,381 | $877,381 |
| 2024 | $567,631 | $309,750 | $0 | $877,381 | $877,381 |
| 2023 | $567,631 | $280,000 | $0 | $847,631 | $847,631 |
| 2022 | $535,343 | $275,000 | $0 | $810,343 | $810,343 |
Deed and Sales History
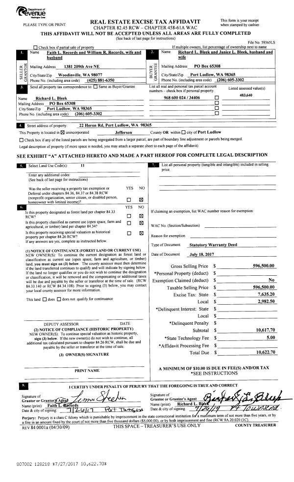
| 1 | 07/18/2017 | SWD | Statutory Warranty Deed | FAITH L & WILLIAM R RECORDS | RICHARD L & JANICE L BLEEK | | | $596,500.00 | 128218 | |
| 2 | 01/20/2009 | SWD | Statutory Warranty Deed | RECORDS, FAITH L | RECORDS, FAITH L/WILLIAM R | 0 | 0 | $0.00 | 112532 | 0 |
| 3 | 08/06/2008 | SWD | Statutory Warranty Deed | HILL, GEORGE/BARBARA | RECORDS, FAITH L | 0 | 0 | $550,000.00 | 111724 | 0 |
| 4 | 08/06/2008 | QCD | Quit Claim Deed | RECORDS, WILLIAM R | RECORDS, FAITH L | 0 | 0 | $0.00 | 111725 | 0 |
| 5 | 07/25/1996 | SWD | Statutory Warranty Deed | POPE RESOURCES | HILL, GEORGE C & BARBARA F | 0 | 0 | $317,000.00 | 80094 | 0 |
Payout Agreement
| No payout information available.. |