Property
Account |
| Property ID: | 34441 | Abbreviated Legal Description: | LUDLOW BEACH TRS 1 9 (PARCEL A) WITH AGREEMENTS |
| Parcel # / Geo ID: | 968700108 | Agent Code: | |
| Type: | Real | | |
| Tax Area: | 0213 - 1-49F1E1H2L1 | Land Use Code | 11 |
| Open Space: | N | DFL | N |
| Historic Property: | N | Remodel Property: | N |
| Multi-Family Redevelopment: | N | | |
| Township: | 28N | Section: | 16 |
| Range: | 1E |
Location |
| Address: | 263 LUDLOW BAY RD PORT LUDLOW, WA 98365 | Mapsco: | 060/038 |
| Neighborhood: | LUDLOW BEACH TRACTS 1 (INSIDE THE MPR) AND SHORT PLATS | Map ID: | |
| Neighborhood CD: | 3348 |
Owner |
| Name: | RICHARD R WALDO | Owner ID: | 89914 |
| Mailing Address: | 263 LUDLOW BAY RD PORT LUDLOW, WA 98365 | % Ownership: | 100.0000000000% |
| | | Exemptions: | |
Pay Tax Due
There is currently No Amount Due on this property.
Taxes and Assessment Details
Property Tax Information as of
03/11/2026
Click on "Statement Details" to expand or collapse a tax statement.
* Please enter a valid date ** Please enter a valid date *
Statement Details |
| 2026 | 23695 | STATE - STATE LEVY (SCHOOL) | $636.67 | $636.65 | $0.00 | $0.00 | $1273.32 | $0.00 |
| 2026 | 23695 | COUNTY - COUNTY LEVIES (CE, DD, VET, MH) | $254.55 | $254.52 | $0.00 | $0.00 | $509.07 | $0.00 |
| 2026 | 23695 | CONSERVE - CONSERVATION FUTURES | $7.63 | $7.63 | $0.00 | $0.00 | $15.26 | $0.00 |
| 2026 | 23695 | COROADS - COUNTY ROADS (ROADS, DIV TO CE) | $205.34 | $205.33 | $0.00 | $0.00 | $410.67 | $0.00 |
| 2026 | 23695 | PORTPT - PORT DISTRICT | $102.80 | $102.80 | $0.00 | $0.00 | $205.60 | $0.00 |
| 2026 | 23695 | PUD1 - PUD #1 | $16.56 | $16.55 | $0.00 | $0.00 | $33.11 | $0.00 |
| 2026 | 23695 | LIB1 - LIBRARY DIST #1 | $79.45 | $79.44 | $0.00 | $0.00 | $158.89 | $0.00 |
| 2026 | 23695 | HD2 - HOSP DIST #2 | $14.85 | $14.84 | $0.00 | $0.00 | $29.69 | $0.00 |
| 2026 | 23695 | SD49 - SCHOOL DIST #49 | $350.46 | $350.45 | $0.00 | $0.00 | $700.91 | $0.00 |
| 2026 | 23695 | FD1 - FIRE DISTRICT #1 | $337.07 | $337.06 | $0.00 | $0.00 | $674.13 | $0.00 |
| 2026 | 23695 | EMS1 - FIRE DIST #1 EMS | $129.60 | $129.59 | $0.00 | $0.00 | $259.19 | $0.00 |
| 2026 | 23695 | FP - DNR Forest Fire Protection Assmt | $8.50 | $8.50 | $0.00 | $0.00 | $17.00 | $0.00 |
| 2026 | 23695 | FPLCA - DNR Landowner Contingency Assmt | $3.00 | $3.00 | $0.00 | $0.00 | $6.00 | $0.00 |
| 2026 | 23695 | JCCD - JC Conservation District | $2.55 | $2.55 | $0.00 | $0.00 | $5.10 | $0.00 |
| 2026 | 23695 | NWA - Noxious Weed Assessment | $2.98 | $2.97 | $0.00 | $0.00 | $5.95 | $0.00 |
| 2026 | 23695 | FP ADMIN - FP ADMIN | $0.50 | $0.00 | $0.00 | $0.00 | $0.50 | $0.00 |
| 2026 | 23695 | TOTAL: | $2152.51 | $2151.88 | $0.00 | $0.00 | $4304.39 | $0.00 |
|
| 2026 | 23695 | $2152.51 | $2151.88 | $0.00 | $0.00 | $4304.39 | $0.00 |
Statement Details |
| 2025 | 23757 | STATE - STATE LEVY (SCHOOL) | $664.06 | $664.06 | $0.00 | $0.00 | $1328.12 | $0.00 |
| 2025 | 23757 | COUNTY - COUNTY LEVIES (CE, DD, VET, MH) | $261.15 | $261.11 | $0.00 | $0.00 | $522.26 | $0.00 |
| 2025 | 23757 | CONSERVE - CONSERVATION FUTURES | $7.83 | $7.83 | $0.00 | $0.00 | $15.66 | $0.00 |
| 2025 | 23757 | COROADS - COUNTY ROADS (ROADS, DIV TO CE) | $209.22 | $209.20 | $0.00 | $0.00 | $418.42 | $0.00 |
| 2025 | 23757 | PORTPT - PORT DISTRICT | $106.57 | $106.55 | $0.00 | $0.00 | $213.12 | $0.00 |
| 2025 | 23757 | PUD1 - PUD #1 | $17.09 | $17.08 | $0.00 | $0.00 | $34.17 | $0.00 |
| 2025 | 23757 | LIB1 - LIBRARY DIST #1 | $80.94 | $80.94 | $0.00 | $0.00 | $161.88 | $0.00 |
| 2025 | 23757 | HD2 - HOSP DIST #2 | $15.24 | $15.23 | $0.00 | $0.00 | $30.47 | $0.00 |
| 2025 | 23757 | SD49 - SCHOOL DIST #49 | $355.90 | $355.89 | $0.00 | $0.00 | $711.79 | $0.00 |
| 2025 | 23757 | FD1 - FIRE DISTRICT #1 | $344.60 | $344.60 | $0.00 | $0.00 | $689.20 | $0.00 |
| 2025 | 23757 | EMS1 - FIRE DIST #1 EMS | $132.54 | $132.54 | $0.00 | $0.00 | $265.08 | $0.00 |
| 2025 | 23757 | FP - DNR Forest Fire Protection Assmt | $8.50 | $8.50 | $0.00 | $0.00 | $17.00 | $0.00 |
| 2025 | 23757 | FPLCA - DNR Landowner Contingency Assmt | $3.00 | $3.00 | $0.00 | $0.00 | $6.00 | $0.00 |
| 2025 | 23757 | JCCD - JC Conservation District | $2.55 | $2.55 | $0.00 | $0.00 | $5.10 | $0.00 |
| 2025 | 23757 | NWA - Noxious Weed Assessment | $2.15 | $2.15 | $0.00 | $0.00 | $4.30 | $0.00 |
| 2025 | 23757 | FP ADMIN - FP ADMIN | $0.50 | $0.00 | $0.00 | $0.00 | $0.50 | $0.00 |
| 2025 | 23757 | TOTAL: | $2211.84 | $2211.23 | $0.00 | $0.00 | $4423.07 | $0.00 |
|
| 2025 | 23757 | $2211.84 | $2211.23 | $0.00 | $0.00 | $4423.07 | $0.00 |
Statement Details |
| 2024 | 23802 | STATE - STATE LEVY (SCHOOL) | $607.20 | $607.19 | $0.00 | $0.00 | $1214.39 | $0.00 |
| 2024 | 23802 | COUNTY - COUNTY LEVIES (CE, DD, VET, MH) | $259.84 | $259.80 | $0.00 | $0.00 | $519.64 | $0.00 |
| 2024 | 23802 | CONSERVE - CONSERVATION FUTURES | $7.79 | $7.79 | $0.00 | $0.00 | $15.58 | $0.00 |
| 2024 | 23802 | COROADS - COUNTY ROADS (ROADS, DIV TO CE) | $209.08 | $209.07 | $0.00 | $0.00 | $418.15 | $0.00 |
| 2024 | 23802 | PORTPT - PORT DISTRICT | $107.32 | $107.31 | $0.00 | $0.00 | $214.63 | $0.00 |
| 2024 | 23802 | PUD1 - PUD #1 | $17.07 | $17.06 | $0.00 | $0.00 | $34.13 | $0.00 |
| 2024 | 23802 | LIB1 - LIBRARY DIST #1 | $80.89 | $80.89 | $0.00 | $0.00 | $161.78 | $0.00 |
| 2024 | 23802 | HD2 - HOSP DIST #2 | $15.16 | $15.16 | $0.00 | $0.00 | $30.32 | $0.00 |
| 2024 | 23802 | SD49 - SCHOOL DIST #49 | $271.15 | $271.13 | $0.00 | $0.00 | $542.28 | $0.00 |
| 2024 | 23802 | FD1 - FIRE DISTRICT #1 | $343.55 | $343.55 | $0.00 | $0.00 | $687.10 | $0.00 |
| 2024 | 23802 | EMS1 - FIRE DIST #1 EMS | $131.23 | $131.22 | $0.00 | $0.00 | $262.45 | $0.00 |
| 2024 | 23802 | JCCD - JC Conservation District | $2.55 | $2.55 | $0.00 | $0.00 | $5.10 | $0.00 |
| 2024 | 23802 | NWA - Noxious Weed Assessment | $2.15 | $2.15 | $0.00 | $0.00 | $4.30 | $0.00 |
| 2024 | 23802 | TOTAL: | $2054.98 | $2054.87 | $0.00 | $0.00 | $4109.85 | $0.00 |
|
| 2024 | 23802 | $2054.98 | $2054.87 | $0.00 | $0.00 | $4109.85 | $0.00 |
Statement Details |
| 2023 | 23841 | STATE - STATE LEVY (SCHOOL) | $591.96 | $591.94 | $0.00 | $0.00 | $1183.90 | $0.00 |
| 2023 | 23841 | COUNTY - COUNTY LEVIES (CE, DD, VET, MH) | $258.32 | $258.29 | $0.00 | $0.00 | $516.61 | $0.00 |
| 2023 | 23841 | CONSERVE - CONSERVATION FUTURES | $7.75 | $7.74 | $0.00 | $0.00 | $15.49 | $0.00 |
| 2023 | 23841 | COROADS - COUNTY ROADS (ROADS, DIV TO CE) | $208.99 | $208.99 | $0.00 | $0.00 | $417.98 | $0.00 |
| 2023 | 23841 | PORTPT - PORT DISTRICT | $108.82 | $108.81 | $0.00 | $0.00 | $217.63 | $0.00 |
| 2023 | 23841 | PUD1 - PUD #1 | $17.12 | $17.12 | $0.00 | $0.00 | $34.24 | $0.00 |
| 2023 | 23841 | LIB1 - LIBRARY DIST #1 | $80.86 | $80.85 | $0.00 | $0.00 | $161.71 | $0.00 |
| 2023 | 23841 | HD2 - HOSP DIST #2 | $15.08 | $15.07 | $0.00 | $0.00 | $30.15 | $0.00 |
| 2023 | 23841 | SD49 - SCHOOL DIST #49 | $276.71 | $276.70 | $0.00 | $0.00 | $553.41 | $0.00 |
| 2023 | 23841 | FD3 - FIRE DISTRICT #3 | $256.98 | $256.98 | $0.00 | $0.00 | $513.96 | $0.00 |
| 2023 | 23841 | EMS3 - FIRE DIST #3 EMS | $91.87 | $91.87 | $0.00 | $0.00 | $183.74 | $0.00 |
| 2023 | 23841 | JCCD - JC Conservation District | $2.55 | $2.55 | $0.00 | $0.00 | $5.10 | $0.00 |
| 2023 | 23841 | NWA - Noxious Weed Assessment | $2.15 | $2.15 | $0.00 | $0.00 | $4.30 | $0.00 |
| 2023 | 23841 | TOTAL: | $1919.16 | $1919.06 | $0.00 | $0.00 | $3838.22 | $0.00 |
|
| 2023 | 23841 | $1919.16 | $1919.06 | $0.00 | $0.00 | $3838.22 | $0.00 |
Values
| (+) Improvement Homesite Value: | + | $0 | |
| (+) Improvement Non-Homesite Value: | + | $407,888 | |
| (+) Land Homesite Value: | + | $0 | |
| (+) Land Non-Homesite Value: | + | $145,950 | |
| (+) Curr Use (HS): | + | $0 | $0 |
| (+) Curr Use (NHS): | + | $0 | $0 |
| | | -------------------------- | |
| (=) Market Value: | = | $553,838 | |
| (–) Productivity Loss: | – | $0 | |
| | | -------------------------- | |
| (=) Subtotal: | = | $553,838 | |
| (+) Senior Appraised Value: | + | $0 | |
| (+) Non-Senior Appraised Value: | + | $553,838 | |
| | | -------------------------- | |
| (=) Total Appraised Value: | = | $553,838 | |
| (–) Senior Exemption Loss: | – | $0 | |
| (–) Exemption Loss: | – | $0 | |
| | | -------------------------- | |
| (=) Taxable Value: | = | $553,838 | |
Taxing Jurisdiction
| Owner: | RICHARD R WALDO | | |
| % Ownership: | 100.0000000000% | | |
| Total Value: | $553,838 | | |
| Tax Area: | 0213 - 1-49F1E1H2L1 |
| CE | COUNTY CURRENT EXPENSE | 0.9034619479 | $553,838 | $553,838 | $500.37 | | |
| CNTYDD | DEVELOPMENTAL DISABILITIES | 0.0052121823 | $553,838 | $553,838 | $2.89 | | |
| CNTYVET | VETERANS RELIEF | 0.0052777810 | $553,838 | $553,838 | $2.92 | | |
| MENTAL | MENTAL HEALTH | 0.0052121823 | $553,838 | $553,838 | $2.89 | | |
| ROADS | COUNTY ROADS | 0.7415066410 | $553,838 | $553,838 | $410.67 | | |
| ROADSCU | COUNTY ROADS TO CUR EXP | 0.0000000000 | $553,838 | $553,838 | $0.00 | | |
| HOSP2CASH | HOSP DIST #2 GENERAL | 0.0536075306 | $553,838 | $553,838 | $29.69 | | |
| SCH49CP | SCHOOL DIST #49 CAP PROJ | 0.6279093905 | $553,838 | $553,838 | $347.76 | | |
| SCH49MO | SCHOOL DIST #49 EP & O | 0.6376483602 | $553,838 | $553,838 | $353.15 | | |
| CONSERVE | CONSERVATION FUTURES | 0.0275621078 | $553,838 | $553,838 | $15.26 | | |
| EMS1 | FIRE DIST #1 EMS | 0.4679948282 | $553,838 | $553,838 | $259.19 | | |
| FD1 | FIRE DIST #1 GENERAL | 1.2171942929 | $553,838 | $553,838 | $674.13 | | |
| LIB1 | LIBRARY DIST #1 GENERAL | 0.2868827388 | $553,838 | $553,838 | $158.89 | | |
| PORTPT | PORT OF PT GENERAL | 0.1134941229 | $553,838 | $553,838 | $62.86 | | |
| PORTPTIDD | PORT OF PT IDD 2019 | 0.2577346692 | $553,838 | $553,838 | $142.74 | | |
| PUD1 | PUD #1 GENERAL | 0.0597888892 | $553,838 | $553,838 | $33.11 | | |
| STATE | STATE SCHOOL PART 1 | 1.4940692947 | $553,838 | $553,838 | $827.47 | | |
| STATE2 | STATE SCHOOL PART 2 | 0.8050170049 | $553,838 | $553,838 | $445.85 | | |
| | Total Tax Rate: | 7.7095739644 | | | | | |
| | | | | Taxes w/Current Exemptions: | $4,269.84 | | |
| | | | | Taxes w/o Exemptions: | $4,269.84 | | |
Improvement / Building
| Improvement #1: | Residential Bldg | State Code: | 11 | 1650.0 sqft | Value: | $407,888 |
| Bathrooms (#): | 3 (FULL) | Bedrooms (#): | 2 | | Exterior Wall: | SI/ST | Fireplace: | WD ST-GOOD | | Floor Construction: | FRAME | Foundation: | CONPR | | Heating/Cooling: | ELBB | Inside Verify: | NO | | Roof Cover: | TILE |   |   |
|
| | Type | Description | Class CD | Sub Class CD | Year Built | Area |
| | MA | Main Area | 3 | 1S | 1991 | 1650.0 |
| | BSMTF | House basement finished | 3 | 1S | 1991 | 1050.0 |
| | GBLTIN | Builtin Garage | 3 | 1S | 1991 | 600.0 |
| | HWPOR | House Wood Porch | 3 | 1S | 1991 | 274.0 |
| | HDECK | House Deck | 3 | 1S | 1991 | 687.0 |
| | CONCD | Concrete Drive | 3 | 1S | 1991 | 700.0 |
Sketch
| No sketches available for this property. |
Property Image
Land
| 1 | 3348-1245S | | 0.0000 | 0.00 | 0.00 | 0.00 | 1.00 | $145,950 | $0 |
Roll Value History
| 2026 | N/A | N/A | N/A | N/A | N/A |
| 2025 | $407,888 | $145,950 | $0 | $553,838 | $553,838 |
| 2024 | $407,888 | $145,950 | $0 | $553,838 | $553,838 |
| 2023 | $390,893 | $134,000 | $0 | $524,893 | $524,893 |
| 2022 | $373,898 | $129,000 | $0 | $502,898 | $502,898 |
Deed and Sales History
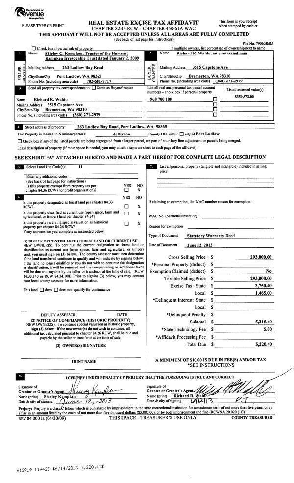
| 1 | 06/14/2013 | SWD | Statutory Warranty Deed | SHIRLEY C KEMPKEN TRSTEE | RICHARD R WALDO | | | $293,000.00 | 119423 | |
| 2 | 03/05/2009 | WD | Warranty Deed | KEMPKEN, HARTMUT ESTATE O | KEMPKEN, SHIRLEY C TRUSTEE OF | 0 | 0 | $0.00 | 112611 | 0 |
| 3 | 12/28/2006 | SWD | Statutory Warranty Deed | SCHROADER, GLEN W/GLADYS | KEMPKEN, HARTMUT | 0 | 0 | $500,000.00 | 106121 | 0 |
| 4 | 02/28/2006 | QCD | Quit Claim Deed | KEMPKEN, SHIRLEYW | KEMPKEN, HARTMUT | 0 | 0 | $0.00 | 106122 | 0 |
Payout Agreement
| No payout information available.. |