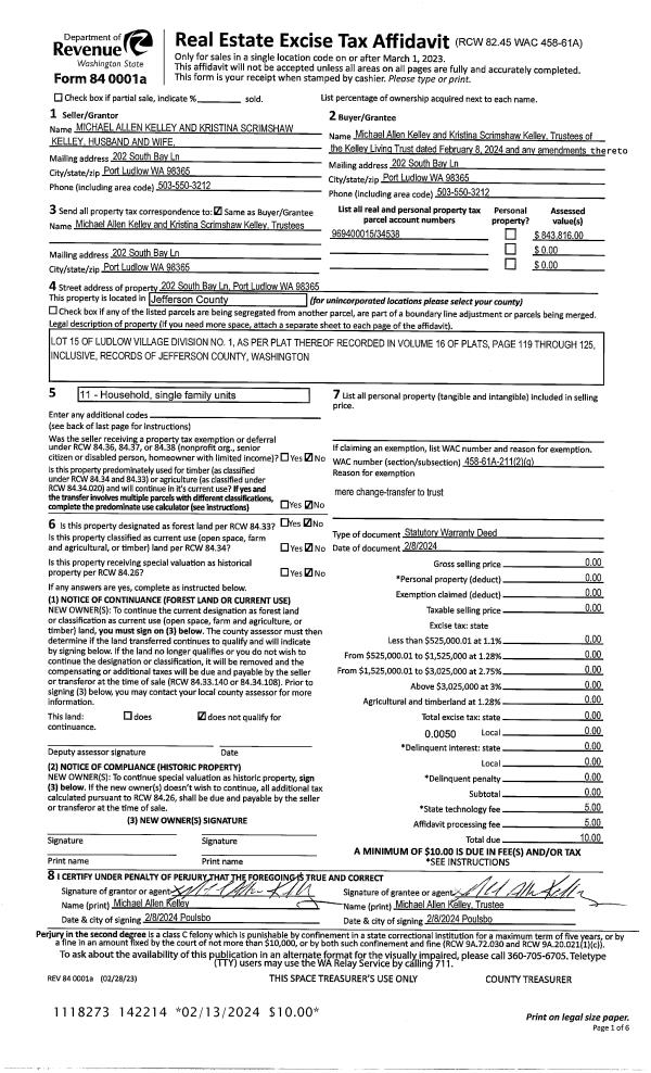
Property
Account |
| Property ID: | 34537 | Abbreviated Legal Description: | LUDLOW POINT VILLAGE DIV 1 LOT 14 |
| Parcel # / Geo ID: | 969400014 | Agent Code: | |
| Type: | Real | | |
| Tax Area: | 0213 - 1-49F1E1H2L1 | Land Use Code | 11 |
| Open Space: | N | DFL | N |
| Historic Property: | N | Remodel Property: | N |
| Multi-Family Redevelopment: | N | | |
| Township: | 28N | Section: | 16 |
| Range: | 1E |
Location |
| Address: | 184 SOUTH BAY LN PORT LUDLOW, WA 98365 | Mapsco: | 063/014 |
| Neighborhood: | LUDLOW POINT TRACTS; LUDLOW POINT VILLAGE #1 | Map ID: | |
| Neighborhood CD: | 3345 |
Owner |
| Name: | CHRIS G HASHAGEN | Owner ID: | 17674 |
| Mailing Address: | KAREN L HASHAGEN 184 S BAY LN PORT LUDLOW, WA 98365-8784 | % Ownership: | 100.0000000000% |
| | | Exemptions: | |
Pay Tax Due
Select the appropriate checkbox next to the year to be paid. Multiple years may be selected.
*Convenience Fee not included
Taxes and Assessment Details
Property Tax Information as of
03/11/2026
Click on "Statement Details" to expand or collapse a tax statement.
* Please enter a valid date ** Please enter a valid date *
Statement Details |
| 2026 | 23787 | STATE - STATE LEVY (SCHOOL) | $1050.04 | $1050.03 | $0.00 | $0.00 | $0.00 | $2100.07 |
| 2026 | 23787 | COUNTY - COUNTY LEVIES (CE, DD, VET, MH) | $419.80 | $419.80 | $0.00 | $0.00 | $0.00 | $839.60 |
| 2026 | 23787 | CONSERVE - CONSERVATION FUTURES | $12.59 | $12.59 | $0.00 | $0.00 | $0.00 | $25.18 |
| 2026 | 23787 | COROADS - COUNTY ROADS (ROADS, DIV TO CE) | $338.66 | $338.66 | $0.00 | $0.00 | $0.00 | $677.32 |
| 2026 | 23787 | PORTPT - PORT DISTRICT | $169.55 | $169.54 | $0.00 | $0.00 | $0.00 | $339.09 |
| 2026 | 23787 | PUD1 - PUD #1 | $27.31 | $27.30 | $0.00 | $0.00 | $0.00 | $54.61 |
| 2026 | 23787 | LIB1 - LIBRARY DIST #1 | $131.03 | $131.02 | $0.00 | $0.00 | $0.00 | $262.05 |
| 2026 | 23787 | HD2 - HOSP DIST #2 | $24.49 | $24.48 | $0.00 | $0.00 | $0.00 | $48.97 |
| 2026 | 23787 | SD49 - SCHOOL DIST #49 | $578.01 | $578.00 | $0.00 | $0.00 | $0.00 | $1156.01 |
| 2026 | 23787 | FD1 - FIRE DISTRICT #1 | $555.92 | $555.91 | $0.00 | $0.00 | $0.00 | $1111.83 |
| 2026 | 23787 | EMS1 - FIRE DIST #1 EMS | $213.74 | $213.74 | $0.00 | $0.00 | $0.00 | $427.48 |
| 2026 | 23787 | FP - DNR Forest Fire Protection Assmt | $8.50 | $8.50 | $0.00 | $0.00 | $0.00 | $17.00 |
| 2026 | 23787 | FPLCA - DNR Landowner Contingency Assmt | $3.00 | $3.00 | $0.00 | $0.00 | $0.00 | $6.00 |
| 2026 | 23787 | JCCD - JC Conservation District | $2.55 | $2.55 | $0.00 | $0.00 | $0.00 | $5.10 |
| 2026 | 23787 | NWA - Noxious Weed Assessment | $2.98 | $2.97 | $0.00 | $0.00 | $0.00 | $5.95 |
| 2026 | 23787 | FP ADMIN - FP ADMIN | $0.50 | $0.00 | $0.00 | $0.00 | $0.00 | $0.50 |
| 2026 | 23787 | TOTAL: | $3538.67 | $3538.09 | $0.00 | $0.00 | $0.00 | $7076.76 |
|
| 2026 | 23787 | $3538.67 | $3538.09 | $0.00 | $0.00 | $0.00 | $7076.76 |
Statement Details |
| 2025 | 23849 | STATE - STATE LEVY (SCHOOL) | $1095.23 | $1095.22 | $0.00 | $0.00 | $2190.45 | $0.00 |
| 2025 | 23849 | COUNTY - COUNTY LEVIES (CE, DD, VET, MH) | $430.70 | $430.67 | $0.00 | $0.00 | $861.37 | $0.00 |
| 2025 | 23849 | CONSERVE - CONSERVATION FUTURES | $12.92 | $12.91 | $0.00 | $0.00 | $25.83 | $0.00 |
| 2025 | 23849 | COROADS - COUNTY ROADS (ROADS, DIV TO CE) | $345.06 | $345.04 | $0.00 | $0.00 | $690.10 | $0.00 |
| 2025 | 23849 | PORTPT - PORT DISTRICT | $175.75 | $175.74 | $0.00 | $0.00 | $351.49 | $0.00 |
| 2025 | 23849 | PUD1 - PUD #1 | $28.18 | $28.18 | $0.00 | $0.00 | $56.36 | $0.00 |
| 2025 | 23849 | LIB1 - LIBRARY DIST #1 | $133.50 | $133.49 | $0.00 | $0.00 | $266.99 | $0.00 |
| 2025 | 23849 | HD2 - HOSP DIST #2 | $25.13 | $25.13 | $0.00 | $0.00 | $50.26 | $0.00 |
| 2025 | 23849 | SD49 - SCHOOL DIST #49 | $586.98 | $586.96 | $0.00 | $0.00 | $1173.94 | $0.00 |
| 2025 | 23849 | FD1 - FIRE DISTRICT #1 | $568.35 | $568.34 | $0.00 | $0.00 | $1136.69 | $0.00 |
| 2025 | 23849 | EMS1 - FIRE DIST #1 EMS | $218.60 | $218.60 | $0.00 | $0.00 | $437.20 | $0.00 |
| 2025 | 23849 | FP - DNR Forest Fire Protection Assmt | $8.50 | $8.50 | $0.00 | $0.00 | $17.00 | $0.00 |
| 2025 | 23849 | FPLCA - DNR Landowner Contingency Assmt | $3.00 | $3.00 | $0.00 | $0.00 | $6.00 | $0.00 |
| 2025 | 23849 | JCCD - JC Conservation District | $2.55 | $2.55 | $0.00 | $0.00 | $5.10 | $0.00 |
| 2025 | 23849 | NWA - Noxious Weed Assessment | $2.15 | $2.15 | $0.00 | $0.00 | $4.30 | $0.00 |
| 2025 | 23849 | FP ADMIN - FP ADMIN | $0.50 | $0.00 | $0.00 | $0.00 | $0.50 | $0.00 |
| 2025 | 23849 | TOTAL: | $3637.10 | $3636.48 | $0.00 | $0.00 | $7273.58 | $0.00 |
|
| 2025 | 23849 | $3637.10 | $3636.48 | $0.00 | $0.00 | $7273.58 | $0.00 |
Statement Details |
| 2024 | 23895 | STATE - STATE LEVY (SCHOOL) | $993.92 | $993.90 | $0.00 | $0.00 | $1987.82 | $0.00 |
| 2024 | 23895 | COUNTY - COUNTY LEVIES (CE, DD, VET, MH) | $425.30 | $425.30 | $0.00 | $0.00 | $850.60 | $0.00 |
| 2024 | 23895 | CONSERVE - CONSERVATION FUTURES | $12.76 | $12.75 | $0.00 | $0.00 | $25.51 | $0.00 |
| 2024 | 23895 | COROADS - COUNTY ROADS (ROADS, DIV TO CE) | $342.23 | $342.22 | $0.00 | $0.00 | $684.45 | $0.00 |
| 2024 | 23895 | PORTPT - PORT DISTRICT | $175.68 | $175.66 | $0.00 | $0.00 | $351.34 | $0.00 |
| 2024 | 23895 | PUD1 - PUD #1 | $27.94 | $27.93 | $0.00 | $0.00 | $55.87 | $0.00 |
| 2024 | 23895 | LIB1 - LIBRARY DIST #1 | $132.41 | $132.40 | $0.00 | $0.00 | $264.81 | $0.00 |
| 2024 | 23895 | HD2 - HOSP DIST #2 | $24.82 | $24.81 | $0.00 | $0.00 | $49.63 | $0.00 |
| 2024 | 23895 | SD49 - SCHOOL DIST #49 | $443.84 | $443.82 | $0.00 | $0.00 | $887.66 | $0.00 |
| 2024 | 23895 | FD1 - FIRE DISTRICT #1 | $562.36 | $562.35 | $0.00 | $0.00 | $1124.71 | $0.00 |
| 2024 | 23895 | EMS1 - FIRE DIST #1 EMS | $214.80 | $214.80 | $0.00 | $0.00 | $429.60 | $0.00 |
| 2024 | 23895 | JCCD - JC Conservation District | $2.55 | $2.55 | $0.00 | $0.00 | $5.10 | $0.00 |
| 2024 | 23895 | NWA - Noxious Weed Assessment | $2.15 | $2.15 | $0.00 | $0.00 | $4.30 | $0.00 |
| 2024 | 23895 | TOTAL: | $3360.76 | $3360.64 | $0.00 | $0.00 | $6721.40 | $0.00 |
|
| 2024 | 23895 | $3360.76 | $3360.64 | $0.00 | $0.00 | $6721.40 | $0.00 |
Statement Details |
| 2023 | 23934 | STATE - STATE LEVY (SCHOOL) | $972.50 | $972.50 | $0.00 | $0.00 | $1945.00 | $0.00 |
| 2023 | 23934 | COUNTY - COUNTY LEVIES (CE, DD, VET, MH) | $424.37 | $424.37 | $0.00 | $0.00 | $848.74 | $0.00 |
| 2023 | 23934 | CONSERVE - CONSERVATION FUTURES | $12.73 | $12.72 | $0.00 | $0.00 | $25.45 | $0.00 |
| 2023 | 23934 | COROADS - COUNTY ROADS (ROADS, DIV TO CE) | $343.35 | $343.34 | $0.00 | $0.00 | $686.69 | $0.00 |
| 2023 | 23934 | PORTPT - PORT DISTRICT | $178.77 | $178.77 | $0.00 | $0.00 | $357.54 | $0.00 |
| 2023 | 23934 | PUD1 - PUD #1 | $28.13 | $28.13 | $0.00 | $0.00 | $56.26 | $0.00 |
| 2023 | 23934 | LIB1 - LIBRARY DIST #1 | $132.84 | $132.83 | $0.00 | $0.00 | $265.67 | $0.00 |
| 2023 | 23934 | HD2 - HOSP DIST #2 | $24.77 | $24.76 | $0.00 | $0.00 | $49.53 | $0.00 |
| 2023 | 23934 | SD49 - SCHOOL DIST #49 | $454.59 | $454.59 | $0.00 | $0.00 | $909.18 | $0.00 |
| 2023 | 23934 | FD3 - FIRE DISTRICT #3 | $422.19 | $422.18 | $0.00 | $0.00 | $844.37 | $0.00 |
| 2023 | 23934 | EMS3 - FIRE DIST #3 EMS | $150.93 | $150.93 | $0.00 | $0.00 | $301.86 | $0.00 |
| 2023 | 23934 | JCCD - JC Conservation District | $2.55 | $2.55 | $0.00 | $0.00 | $5.10 | $0.00 |
| 2023 | 23934 | NWA - Noxious Weed Assessment | $2.15 | $2.15 | $0.00 | $0.00 | $4.30 | $0.00 |
| 2023 | 23934 | TOTAL: | $3149.87 | $3149.82 | $0.00 | $0.00 | $6299.69 | $0.00 |
|
| 2023 | 23934 | $3149.87 | $3149.82 | $0.00 | $0.00 | $6299.69 | $0.00 |
Values
| (+) Improvement Homesite Value: | + | $0 | |
| (+) Improvement Non-Homesite Value: | + | $671,939 | |
| (+) Land Homesite Value: | + | $0 | |
| (+) Land Non-Homesite Value: | + | $241,500 | |
| (+) Curr Use (HS): | + | $0 | $0 |
| (+) Curr Use (NHS): | + | $0 | $0 |
| | | -------------------------- | |
| (=) Market Value: | = | $913,439 | |
| (–) Productivity Loss: | – | $0 | |
| | | -------------------------- | |
| (=) Subtotal: | = | $913,439 | |
| (+) Senior Appraised Value: | + | $0 | |
| (+) Non-Senior Appraised Value: | + | $913,439 | |
| | | -------------------------- | |
| (=) Total Appraised Value: | = | $913,439 | |
| (–) Senior Exemption Loss: | – | $0 | |
| (–) Exemption Loss: | – | $0 | |
| | | -------------------------- | |
| (=) Taxable Value: | = | $913,439 | |
Taxing Jurisdiction
| Owner: | CHRIS G HASHAGEN | | |
| % Ownership: | 100.0000000000% | | |
| Total Value: | $913,439 | | |
| Tax Area: | 0213 - 1-49F1E1H2L1 |
| CE | COUNTY CURRENT EXPENSE | 0.9034619479 | $913,439 | $913,439 | $825.26 | | |
| CNTYDD | DEVELOPMENTAL DISABILITIES | 0.0052121823 | $913,439 | $913,439 | $4.76 | | |
| CNTYVET | VETERANS RELIEF | 0.0052777810 | $913,439 | $913,439 | $4.82 | | |
| MENTAL | MENTAL HEALTH | 0.0052121823 | $913,439 | $913,439 | $4.76 | | |
| ROADS | COUNTY ROADS | 0.7415066410 | $913,439 | $913,439 | $677.32 | | |
| ROADSCU | COUNTY ROADS TO CUR EXP | 0.0000000000 | $913,439 | $913,439 | $0.00 | | |
| HOSP2CASH | HOSP DIST #2 GENERAL | 0.0536075306 | $913,439 | $913,439 | $48.97 | | |
| SCH49CP | SCHOOL DIST #49 CAP PROJ | 0.6279093905 | $913,439 | $913,439 | $573.56 | | |
| SCH49MO | SCHOOL DIST #49 EP & O | 0.6376483602 | $913,439 | $913,439 | $582.45 | | |
| CONSERVE | CONSERVATION FUTURES | 0.0275621078 | $913,439 | $913,439 | $25.18 | | |
| EMS1 | FIRE DIST #1 EMS | 0.4679948282 | $913,439 | $913,439 | $427.48 | | |
| FD1 | FIRE DIST #1 GENERAL | 1.2171942929 | $913,439 | $913,439 | $1,111.83 | | |
| LIB1 | LIBRARY DIST #1 GENERAL | 0.2868827388 | $913,439 | $913,439 | $262.05 | | |
| PORTPT | PORT OF PT GENERAL | 0.1134941229 | $913,439 | $913,439 | $103.67 | | |
| PORTPTIDD | PORT OF PT IDD 2019 | 0.2577346692 | $913,439 | $913,439 | $235.42 | | |
| PUD1 | PUD #1 GENERAL | 0.0597888892 | $913,439 | $913,439 | $54.61 | | |
| STATE | STATE SCHOOL PART 1 | 1.4940692947 | $913,439 | $913,439 | $1,364.74 | | |
| STATE2 | STATE SCHOOL PART 2 | 0.8050170049 | $913,439 | $913,439 | $735.33 | | |
| | Total Tax Rate: | 7.7095739644 | | | | | |
| | | | | Taxes w/Current Exemptions: | $7,042.21 | | |
| | | | | Taxes w/o Exemptions: | $7,042.21 | | |
Improvement / Building
| Improvement #1: | Residential Bldg | State Code: | 11 | 2868.0 sqft | Value: | $671,939 |
| Bathrooms (#): | 3 (FULL) | Bedrooms (#): | 2 | | Exterior Wall: | SI/ST | Fireplace: | SIN 2-GOOD | | Fireplace: | WD ST-GOOD | Floor Construction: | FRAME | | Foundation: | CONPR | Heating/Cooling: | HPUMP | | Inside Verify: | YES-FIX | Roof Cover: | TILE |
|
| | Type | Description | Class CD | Sub Class CD | Year Built | Area |
| | MA | Main Area | 4+ | 2S | 1993 | 2099.0 |
| | MA2 | Second Floor Main Area | 4+ | 2S | 1993 | 769.0 |
| | PATIO | House Patio | 4 | 2S | 1993 | 671.5 |
| | HWPOR | House Wood Porch | 4 | 2S | 1993 | 35.0 |
| | HCPOR | House Concrete Porch | 4 | 2S | 1993 | 112.0 |
| | HDECK | House Deck | 4 | 2S | 1993 | 409.4 |
| | GATT | House Attached Garage | 4 | 2S | 1993 | 840.0 |
| | BSMTU | House basement unfinished | 4 | 2S | 1993 | 1200.0 |
| | CONCD | Concrete Drive | 4 | 2S | 1993 | 1500.0 |
Sketch
Property Image
Land
| 1 | 3345-1135L | | 0.0000 | 0.00 | 0.00 | 0.00 | 1.00 | $241,500 | $0 |
Roll Value History
| 2026 | N/A | N/A | N/A | N/A | N/A |
| 2025 | $671,939 | $241,500 | $0 | $913,439 | $913,439 |
| 2024 | $671,939 | $241,500 | $0 | $913,439 | $913,439 |
| 2023 | $643,941 | $215,250 | $0 | $859,191 | $859,191 |
| 2022 | $615,944 | $210,250 | $0 | $826,194 | $826,194 |
Deed and Sales History
| 1 | 09/27/2006 | QCD | Quit Claim Deed | HASHAGEN, CHRIS G | HASHAGEN, KAREN & CHRIS | 0 | 0 | $0.00 | 107693 | 0 |
| 2 | 10/28/2003 | SWD | Statutory Warranty Deed | SHULL, JERRY A/TRUSTEE | HASHAGEN, CHRIS G | 0 | 0 | $545,000.00 | 98677 | 0 |
| 3 | 12/04/2001 | SWD | Statutory Warranty Deed | SHULL, JERRY A | SHULL, JERRY A TRUSTEE OF THE | 0 | 0 | $0.00 | 93636 | 0 |
| 4 | 09/25/2001 | SWD | Statutory Warranty Deed | ABRAMS, AL/JOANN | SHULL, JERRY A | 0 | 0 | $555,000.00 | 93174 | 0 |
| 5 | 02/12/1998 | SWD | Statutory Warranty Deed | D'AMBROSIO ENTERPRISES | ABRAMS, AL & JOANN | 0 | 0 | $400,000.00 | 83819 | 0 |
| 6 | 01/08/1992 | QCD | Quit Claim Deed | D'AMBROSIO, JERRY J/MARY | D'AMBROSIO ENTERPRISES | 0 | 0 | $0.00 | 67543 | 0 |
Payout Agreement
| No payout information available.. |