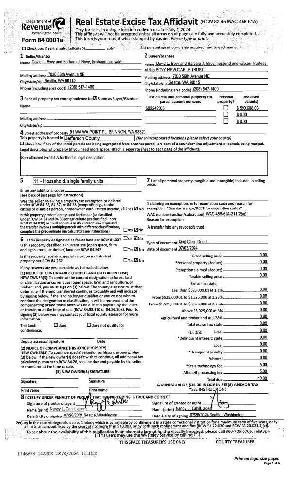
Property
Account |
| Property ID: | 34644 | Abbreviated Legal Description: | MABEL ADDITION BLK 125 LOT 8 |
| Parcel # / Geo ID: | 969912506 | Agent Code: | |
| Type: | Real | | |
| Tax Area: | 0110 - C-50F1E1H2 | Land Use Code | 11 |
| Open Space: | N | DFL | N |
| Historic Property: | N | Remodel Property: | N |
| Multi-Family Redevelopment: | N | | |
| Township: | 30N | Section: | 11 |
| Range: | 1W |
Location |
| Address: | 2095 LAWRENCE ST PORT TOWNSEND, WA 98368 | Mapsco: | 080/028 |
| Neighborhood: | MABEL | Map ID: | |
| Neighborhood CD: | 6270 |
Owner |
| Name: | STEVEN R LAFLEUR | Owner ID: | 109740 |
| Mailing Address: | 2095 LAWRENCE ST PORT TOWNSEND, WA 98368-7927 | % Ownership: | 100.0000000000% |
| | | Exemptions: | |
Pay Tax Due
Select the appropriate checkbox next to the year to be paid. Multiple years may be selected.
*Convenience Fee not included
Taxes and Assessment Details
Property Tax Information as of
03/11/2026
Click on "Statement Details" to expand or collapse a tax statement.
* Please enter a valid date ** Please enter a valid date *
Statement Details |
| 2026 | 23893 | STATE - STATE LEVY (SCHOOL) | $555.87 | $555.86 | $0.00 | $0.00 | $0.00 | $1111.73 |
| 2026 | 23893 | COUNTY - COUNTY LEVIES (CE, DD, VET, MH) | $222.24 | $222.22 | $0.00 | $0.00 | $0.00 | $444.46 |
| 2026 | 23893 | CONSERVE - CONSERVATION FUTURES | $6.67 | $6.66 | $0.00 | $0.00 | $0.00 | $13.33 |
| 2026 | 23893 | CITYPT - CITY OF PT | $315.45 | $315.43 | $0.00 | $0.00 | $0.00 | $630.88 |
| 2026 | 23893 | PORTPT - PORT DISTRICT | $89.76 | $89.75 | $0.00 | $0.00 | $0.00 | $179.51 |
| 2026 | 23893 | PUD1 - PUD #1 | $14.46 | $14.45 | $0.00 | $0.00 | $0.00 | $28.91 |
| 2026 | 23893 | HD2 - HOSP DIST #2 | $12.96 | $12.96 | $0.00 | $0.00 | $0.00 | $25.92 |
| 2026 | 23893 | SD50 - SCHOOL DIST #50 | $440.38 | $440.35 | $0.00 | $0.00 | $0.00 | $880.73 |
| 2026 | 23893 | FD1 - FIRE DISTRICT #1 | $294.29 | $294.28 | $0.00 | $0.00 | $0.00 | $588.57 |
| 2026 | 23893 | EMS1 - FIRE DIST #1 EMS | $113.15 | $113.15 | $0.00 | $0.00 | $0.00 | $226.30 |
| 2026 | 23893 | JCCD - JC Conservation District | $2.55 | $2.55 | $0.00 | $0.00 | $0.00 | $5.10 |
| 2026 | 23893 | NWA - Noxious Weed Assessment | $2.98 | $2.97 | $0.00 | $0.00 | $0.00 | $5.95 |
| 2026 | 23893 | TOTAL: | $2070.76 | $2070.63 | $0.00 | $0.00 | $0.00 | $4141.39 |
|
| 2026 | 23893 | $2070.76 | $2070.63 | $0.00 | $0.00 | $0.00 | $4141.39 |
Statement Details |
| 2025 | 23955 | STATE - STATE LEVY (SCHOOL) | $560.00 | $559.99 | $0.00 | $0.00 | $1119.99 | $0.00 |
| 2025 | 23955 | COUNTY - COUNTY LEVIES (CE, DD, VET, MH) | $220.22 | $220.20 | $0.00 | $0.00 | $440.42 | $0.00 |
| 2025 | 23955 | CONSERVE - CONSERVATION FUTURES | $6.61 | $6.60 | $0.00 | $0.00 | $13.21 | $0.00 |
| 2025 | 23955 | CITYPT - CITY OF PT | $317.58 | $317.57 | $0.00 | $0.00 | $635.15 | $0.00 |
| 2025 | 23955 | PORTPT - PORT DISTRICT | $89.86 | $89.86 | $0.00 | $0.00 | $179.72 | $0.00 |
| 2025 | 23955 | PUD1 - PUD #1 | $14.41 | $14.41 | $0.00 | $0.00 | $28.82 | $0.00 |
| 2025 | 23955 | HD2 - HOSP DIST #2 | $12.85 | $12.85 | $0.00 | $0.00 | $25.70 | $0.00 |
| 2025 | 23955 | SD50 - SCHOOL DIST #50 | $409.28 | $409.25 | $0.00 | $0.00 | $818.53 | $0.00 |
| 2025 | 23955 | FD1 - FIRE DISTRICT #1 | $290.60 | $290.60 | $0.00 | $0.00 | $581.20 | $0.00 |
| 2025 | 23955 | EMS1 - FIRE DIST #1 EMS | $111.77 | $111.77 | $0.00 | $0.00 | $223.54 | $0.00 |
| 2025 | 23955 | JCCD - JC Conservation District | $2.55 | $2.55 | $0.00 | $0.00 | $5.10 | $0.00 |
| 2025 | 23955 | NWA - Noxious Weed Assessment | $2.15 | $2.15 | $0.00 | $0.00 | $4.30 | $0.00 |
| 2025 | 23955 | TOTAL: | $2037.88 | $2037.80 | $0.00 | $0.00 | $4075.68 | $0.00 |
|
| 2025 | 23955 | $2037.88 | $2037.80 | $0.00 | $0.00 | $4075.68 | $0.00 |
Statement Details |
| 2024 | 24001 | STATE - STATE LEVY (SCHOOL) | $509.91 | $509.89 | $0.00 | $0.00 | $1019.80 | $0.00 |
| 2024 | 24001 | COUNTY - COUNTY LEVIES (CE, DD, VET, MH) | $218.19 | $218.18 | $0.00 | $0.00 | $436.37 | $0.00 |
| 2024 | 24001 | CONSERVE - CONSERVATION FUTURES | $6.55 | $6.54 | $0.00 | $0.00 | $13.09 | $0.00 |
| 2024 | 24001 | CITYPT - CITY OF PT | $311.77 | $311.76 | $0.00 | $0.00 | $623.53 | $0.00 |
| 2024 | 24001 | PORTPT - PORT DISTRICT | $90.12 | $90.12 | $0.00 | $0.00 | $180.24 | $0.00 |
| 2024 | 24001 | PUD1 - PUD #1 | $14.33 | $14.33 | $0.00 | $0.00 | $28.66 | $0.00 |
| 2024 | 24001 | HD2 - HOSP DIST #2 | $12.73 | $12.73 | $0.00 | $0.00 | $25.46 | $0.00 |
| 2024 | 24001 | SD50 - SCHOOL DIST #50 | $412.54 | $412.53 | $0.00 | $0.00 | $825.07 | $0.00 |
| 2024 | 24001 | FD1 - FIRE DISTRICT #1 | $288.50 | $288.50 | $0.00 | $0.00 | $577.00 | $0.00 |
| 2024 | 24001 | EMS1 - FIRE DIST #1 EMS | $110.20 | $110.19 | $0.00 | $0.00 | $220.39 | $0.00 |
| 2024 | 24001 | JCCD - JC Conservation District | $2.55 | $2.55 | $0.00 | $0.00 | $5.10 | $0.00 |
| 2024 | 24001 | NWA - Noxious Weed Assessment | $2.15 | $2.15 | $0.00 | $0.00 | $4.30 | $0.00 |
| 2024 | 24001 | TOTAL: | $1979.54 | $1979.47 | $0.00 | $0.00 | $3959.01 | $0.00 |
|
| 2024 | 24001 | $1979.54 | $1979.47 | $0.00 | $0.00 | $3959.01 | $0.00 |
Statement Details |
| 2023 | 24040 | STATE - STATE LEVY (SCHOOL) | $512.96 | $512.95 | $0.00 | $0.00 | $1025.91 | $0.00 |
| 2023 | 24040 | COUNTY - COUNTY LEVIES (CE, DD, VET, MH) | $223.84 | $223.83 | $0.00 | $0.00 | $447.67 | $0.00 |
| 2023 | 24040 | CONSERVE - CONSERVATION FUTURES | $6.71 | $6.71 | $0.00 | $0.00 | $13.42 | $0.00 |
| 2023 | 24040 | CITYPT - CITY OF PT | $316.36 | $316.35 | $0.00 | $0.00 | $632.71 | $0.00 |
| 2023 | 24040 | PORTPT - PORT DISTRICT | $94.30 | $94.29 | $0.00 | $0.00 | $188.59 | $0.00 |
| 2023 | 24040 | PUD1 - PUD #1 | $14.84 | $14.83 | $0.00 | $0.00 | $29.67 | $0.00 |
| 2023 | 24040 | HD2 - HOSP DIST #2 | $13.07 | $13.06 | $0.00 | $0.00 | $26.13 | $0.00 |
| 2023 | 24040 | SD50 - SCHOOL DIST #50 | $407.05 | $407.03 | $0.00 | $0.00 | $814.08 | $0.00 |
| 2023 | 24040 | FD1 - FIRE DISTRICT #1 | $184.40 | $184.39 | $0.00 | $0.00 | $368.79 | $0.00 |
| 2023 | 24040 | EMS1 - FIRE DIST #1 EMS | $78.44 | $78.44 | $0.00 | $0.00 | $156.88 | $0.00 |
| 2023 | 24040 | JCCD - JC Conservation District | $2.55 | $2.55 | $0.00 | $0.00 | $5.10 | $0.00 |
| 2023 | 24040 | NWA - Noxious Weed Assessment | $2.15 | $2.15 | $0.00 | $0.00 | $4.30 | $0.00 |
| 2023 | 24040 | TOTAL: | $1856.67 | $1856.58 | $0.00 | $0.00 | $3713.25 | $0.00 |
|
| 2023 | 24040 | $1856.67 | $1856.58 | $0.00 | $0.00 | $3713.25 | $0.00 |
Values
| (+) Improvement Homesite Value: | + | $0 | |
| (+) Improvement Non-Homesite Value: | + | $253,549 | |
| (+) Land Homesite Value: | + | $0 | |
| (+) Land Non-Homesite Value: | + | $230,000 | |
| (+) Curr Use (HS): | + | $0 | $0 |
| (+) Curr Use (NHS): | + | $0 | $0 |
| | | -------------------------- | |
| (=) Market Value: | = | $483,549 | |
| (–) Productivity Loss: | – | $0 | |
| | | -------------------------- | |
| (=) Subtotal: | = | $483,549 | |
| (+) Senior Appraised Value: | + | $0 | |
| (+) Non-Senior Appraised Value: | + | $483,549 | |
| | | -------------------------- | |
| (=) Total Appraised Value: | = | $483,549 | |
| (–) Senior Exemption Loss: | – | $0 | |
| (–) Exemption Loss: | – | $0 | |
| | | -------------------------- | |
| (=) Taxable Value: | = | $483,549 | |
Taxing Jurisdiction
| Owner: | STEVEN R LAFLEUR | | |
| % Ownership: | 100.0000000000% | | |
| Total Value: | $483,549 | | |
| Tax Area: | 0110 - C-50F1E1H2 |
| CE | COUNTY CURRENT EXPENSE | 0.9034619479 | $483,549 | $483,549 | $436.87 | | |
| CNTYDD | DEVELOPMENTAL DISABILITIES | 0.0052121823 | $483,549 | $483,549 | $2.52 | | |
| CNTYVET | VETERANS RELIEF | 0.0052777810 | $483,549 | $483,549 | $2.55 | | |
| MENTAL | MENTAL HEALTH | 0.0052121823 | $483,549 | $483,549 | $2.52 | | |
| PTGEN | CITY OF PT GENERAL | 0.8551967795 | $483,549 | $483,549 | $413.53 | | |
| PTLLL | CITY OF PT - LIBRARY LID LIFT | 0.4010114288 | $483,549 | $483,549 | $193.91 | | |
| PTMVBOND | CITY OF PT MV BOND | 0.0484717981 | $483,549 | $483,549 | $23.44 | | |
| HOSP2CASH | HOSP DIST #2 GENERAL | 0.0536075306 | $483,549 | $483,549 | $25.92 | | |
| SCH50BOND | SCHOOL DIST #50 BOND 2016 | 0.5377451389 | $483,549 | $483,549 | $260.03 | | |
| SCH50CP | SCHOOL DIST #50 CAP PROJ | 0.4573475088 | $483,549 | $483,549 | $221.15 | | |
| SCH50MO | SCHOOL DIST #50 EP & O | 0.8262822886 | $483,549 | $483,549 | $399.55 | | |
| CONSERVE | CONSERVATION FUTURES | 0.0275621078 | $483,549 | $483,549 | $13.33 | | |
| EMS1 | FIRE DIST #1 EMS | 0.4679948282 | $483,549 | $483,549 | $226.30 | | |
| FD1 | FIRE DIST #1 GENERAL | 1.2171942929 | $483,549 | $483,549 | $588.57 | | |
| PORTPT | PORT OF PT GENERAL | 0.1134941229 | $483,549 | $483,549 | $54.88 | | |
| PORTPTIDD | PORT OF PT IDD 2019 | 0.2577346692 | $483,549 | $483,549 | $124.63 | | |
| PUD1 | PUD #1 GENERAL | 0.0597888892 | $483,549 | $483,549 | $28.91 | | |
| STATE | STATE SCHOOL PART 1 | 1.4940692947 | $483,549 | $483,549 | $722.46 | | |
| STATE2 | STATE SCHOOL PART 2 | 0.8050170049 | $483,549 | $483,549 | $389.27 | | |
| | Total Tax Rate: | 8.5416817766 | | | | | |
| | | | | Taxes w/Current Exemptions: | $4,130.34 | | |
| | | | | Taxes w/o Exemptions: | $4,130.34 | | |
Improvement / Building
| Improvement #1: | Residential Bldg | State Code: | 11 | 1200.0 sqft | Value: | $253,549 |
| Bathrooms (#): | 1 (FULL) | Bedrooms (#): | 3 | | Exterior Wall: | SI/ST | Fireplace: | WD ST-FAIR | | Floor Construction: | FRAME | Foundation: | CONPR | | Heating/Cooling: | ELBB | Roof Cover: | COMP |
|
| | Type | Description | Class CD | Sub Class CD | Year Built | Area |
| | MA | Main Area | 3+ | 1S | 1920 | 1200.0 |
| | PATIO | House Patio | 3 | * | 1920 | 132.0 |
| | HENCL | House Enclosure | 3 | * | 1920 | 30.0 |
| | BSMTU | House basement unfinished | 3 | * | 1920 | 600.0 |
| | GARAG | Garage (Table Not Dep) | 3 | * | 1920 | 640.0 |
| | HDECK | House Deck | 3 | * | 1920 | 300.0 |
Sketch
Property Image
Land
| 1 | 6270-1165L | | 0.0000 | 0.00 | 0.00 | 0.00 | 1.00 | $230,000 | $0 |
Roll Value History
| 2026 | N/A | N/A | N/A | N/A | N/A |
| 2025 | $253,549 | $230,000 | $0 | $483,549 | $483,549 |
| 2024 | $236,048 | $231,000 | $0 | $467,048 | $467,048 |
| 2023 | $225,785 | $215,000 | $0 | $440,785 | $440,785 |
| 2022 | $225,785 | $210,000 | $0 | $435,785 | $435,785 |
Deed and Sales History
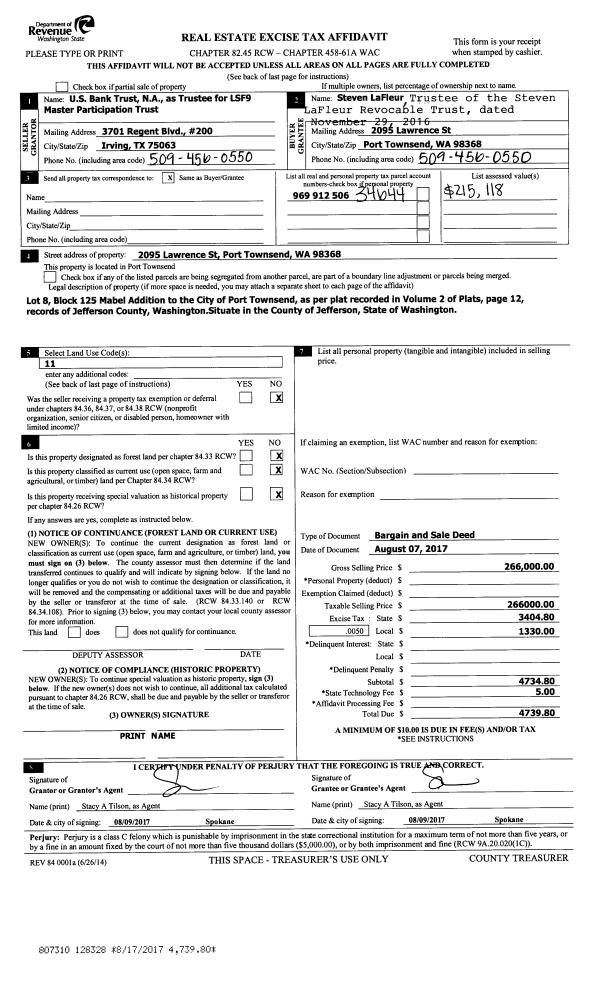
| 1 | 09/26/2023 | QCD | Quit Claim Deed | STEVEN LAFLEUR REVOCABLE TRUST | STEVEN R LAFLEUR | | | | 141618 | |
| 2 | 08/07/2017 | BSD | Bargain and Sale Deed | U S BANK TRUST | STEVEN LAFLEUR REVOCABLE TRUST | | | $266,000.00 | 128328 | |
| 3 | 05/24/2016 | TRED | Trustee Deed | ISAAC BUELL | U S BANK TRUST | | | | 125496 | |
| 4 | 12/05/2008 | SWD | Statutory Warranty Deed | ERWIN, SPENCER | BUELL, ISAAC/STEFANIE | 0 | 0 | $256,500.00 | 112254 | 0 |
| 5 | 08/21/2007 | SWD | Statutory Warranty Deed | JORDAN, RICHARD W | ERWIN, SPENCER F | 0 | 0 | $248,500.00 | 109936 | 0 |
| 6 | 08/21/2007 | QCD | Quit Claim Deed | ERWIN, HEATHER K | ERWIN, SPENCER F | 0 | 0 | $0.00 | 109937 | 0 |
| 7 | 08/29/2005 | SWD | Statutory Warranty Deed | SOKOL, ROBERT H/EDEL TRAU | JORDAN, RICHARD W | 0 | 0 | $306,000.00 | 104630 | 0 |
|   | |
Payout Agreement
| No payout information available.. |