Property
Account |
| Property ID: | 34650 | Abbreviated Legal Description: | MADRONA VISTA 5 |
| Parcel # / Geo ID: | 970200004 | Agent Code: | |
| Type: | Real | | |
| Tax Area: | 0213 - 1-49F1E1H2L1 | Land Use Code | 91 |
| Open Space: | N | DFL | N |
| Historic Property: | N | Remodel Property: | N |
| Multi-Family Redevelopment: | N | | |
| Township: | 28N | Section: | 34 |
| Range: | 1E |
Location |
| Address: | | Mapsco: | 069/005 |
| Neighborhood: | S34 T28N R1E/SHORT PLATS/MADRONA VISTA | Map ID: | |
| Neighborhood CD: | 3380 |
Owner |
| Name: | RICHARD MOORE | Owner ID: | 22870 |
| Mailing Address: | 71 MADRONA VISTA PL PORT LUDLOW, WA 98365-9504 | % Ownership: | 100.0000000000% |
| | | Exemptions: | |
Pay Tax Due
Select the appropriate checkbox next to the year to be paid. Multiple years may be selected.
*Convenience Fee not included
Taxes and Assessment Details
Property Tax Information as of
03/10/2026
Click on "Statement Details" to expand or collapse a tax statement.
* Please enter a valid date ** Please enter a valid date *
Statement Details |
| 2026 | 23899 | STATE - STATE LEVY (SCHOOL) | $145.42 | $145.41 | $0.00 | $0.00 | $0.00 | $290.83 |
| 2026 | 23899 | COUNTY - COUNTY LEVIES (CE, DD, VET, MH) | $58.15 | $58.13 | $0.00 | $0.00 | $0.00 | $116.28 |
| 2026 | 23899 | CONSERVE - CONSERVATION FUTURES | $1.75 | $1.74 | $0.00 | $0.00 | $0.00 | $3.49 |
| 2026 | 23899 | COROADS - COUNTY ROADS (ROADS, DIV TO CE) | $46.90 | $46.90 | $0.00 | $0.00 | $0.00 | $93.80 |
| 2026 | 23899 | PORTPT - PORT DISTRICT | $23.48 | $23.48 | $0.00 | $0.00 | $0.00 | $46.96 |
| 2026 | 23899 | PUD1 - PUD #1 | $3.78 | $3.78 | $0.00 | $0.00 | $0.00 | $7.56 |
| 2026 | 23899 | LIB1 - LIBRARY DIST #1 | $18.15 | $18.14 | $0.00 | $0.00 | $0.00 | $36.29 |
| 2026 | 23899 | HD2 - HOSP DIST #2 | $3.39 | $3.39 | $0.00 | $0.00 | $0.00 | $6.78 |
| 2026 | 23899 | SD49 - SCHOOL DIST #49 | $80.05 | $80.04 | $0.00 | $0.00 | $0.00 | $160.09 |
| 2026 | 23899 | FD1 - FIRE DISTRICT #1 | $76.99 | $76.99 | $0.00 | $0.00 | $0.00 | $153.98 |
| 2026 | 23899 | EMS1 - FIRE DIST #1 EMS | $29.60 | $29.60 | $0.00 | $0.00 | $0.00 | $59.20 |
| 2026 | 23899 | FP - DNR Forest Fire Protection Assmt | $8.50 | $8.50 | $0.00 | $0.00 | $0.00 | $17.00 |
| 2026 | 23899 | FPLCA - DNR Landowner Contingency Assmt | $3.00 | $3.00 | $0.00 | $0.00 | $0.00 | $6.00 |
| 2026 | 23899 | JCCD - JC Conservation District | $2.53 | $2.53 | $0.00 | $0.00 | $0.00 | $5.06 |
| 2026 | 23899 | NWA - Noxious Weed Assessment | $2.98 | $2.97 | $0.00 | $0.00 | $0.00 | $5.95 |
| 2026 | 23899 | WAT - Clean Water District | $13.00 | $13.00 | $0.00 | $0.00 | $0.00 | $26.00 |
| 2026 | 23899 | FP ADMIN - FP ADMIN | $0.50 | $0.00 | $0.00 | $0.00 | $0.00 | $0.50 |
| 2026 | 23899 | TOTAL: | $518.17 | $517.60 | $0.00 | $0.00 | $0.00 | $1035.77 |
|
| 2026 | 23899 | $518.17 | $517.60 | $0.00 | $0.00 | $0.00 | $1035.77 |
Statement Details |
| 2025 | 23961 | STATE - STATE LEVY (SCHOOL) | $145.09 | $145.07 | $0.00 | $0.00 | $290.16 | $0.00 |
| 2025 | 23961 | COUNTY - COUNTY LEVIES (CE, DD, VET, MH) | $57.07 | $57.04 | $0.00 | $0.00 | $114.11 | $0.00 |
| 2025 | 23961 | CONSERVE - CONSERVATION FUTURES | $1.71 | $1.71 | $0.00 | $0.00 | $3.42 | $0.00 |
| 2025 | 23961 | COROADS - COUNTY ROADS (ROADS, DIV TO CE) | $45.71 | $45.71 | $0.00 | $0.00 | $91.42 | $0.00 |
| 2025 | 23961 | PORTPT - PORT DISTRICT | $23.29 | $23.27 | $0.00 | $0.00 | $46.56 | $0.00 |
| 2025 | 23961 | PUD1 - PUD #1 | $3.74 | $3.73 | $0.00 | $0.00 | $7.47 | $0.00 |
| 2025 | 23961 | LIB1 - LIBRARY DIST #1 | $17.69 | $17.68 | $0.00 | $0.00 | $35.37 | $0.00 |
| 2025 | 23961 | HD2 - HOSP DIST #2 | $3.33 | $3.33 | $0.00 | $0.00 | $6.66 | $0.00 |
| 2025 | 23961 | SD49 - SCHOOL DIST #49 | $77.76 | $77.75 | $0.00 | $0.00 | $155.51 | $0.00 |
| 2025 | 23961 | FD1 - FIRE DISTRICT #1 | $75.29 | $75.28 | $0.00 | $0.00 | $150.57 | $0.00 |
| 2025 | 23961 | EMS1 - FIRE DIST #1 EMS | $28.96 | $28.95 | $0.00 | $0.00 | $57.91 | $0.00 |
| 2025 | 23961 | FP - DNR Forest Fire Protection Assmt | $8.50 | $8.50 | $0.00 | $0.00 | $17.00 | $0.00 |
| 2025 | 23961 | FPLCA - DNR Landowner Contingency Assmt | $3.00 | $3.00 | $0.00 | $0.00 | $6.00 | $0.00 |
| 2025 | 23961 | JCCD - JC Conservation District | $2.53 | $2.53 | $0.00 | $0.00 | $5.06 | $0.00 |
| 2025 | 23961 | NWA - Noxious Weed Assessment | $2.15 | $2.15 | $0.00 | $0.00 | $4.30 | $0.00 |
| 2025 | 23961 | WAT - Clean Water District | $13.00 | $13.00 | $0.00 | $0.00 | $26.00 | $0.00 |
| 2025 | 23961 | FP ADMIN - FP ADMIN | $0.50 | $0.00 | $0.00 | $0.00 | $0.50 | $0.00 |
| 2025 | 23961 | TOTAL: | $509.32 | $508.70 | $0.00 | $0.00 | $1018.02 | $0.00 |
|
| 2025 | 23961 | $509.32 | $508.70 | $0.00 | $0.00 | $1018.02 | $0.00 |
Statement Details |
| 2024 | 24007 | STATE - STATE LEVY (SCHOOL) | $127.25 | $127.24 | $0.00 | $0.00 | $254.49 | $0.00 |
| 2024 | 24007 | COUNTY - COUNTY LEVIES (CE, DD, VET, MH) | $54.46 | $54.43 | $0.00 | $0.00 | $108.89 | $0.00 |
| 2024 | 24007 | CONSERVE - CONSERVATION FUTURES | $1.64 | $1.63 | $0.00 | $0.00 | $3.27 | $0.00 |
| 2024 | 24007 | COROADS - COUNTY ROADS (ROADS, DIV TO CE) | $43.82 | $43.81 | $0.00 | $0.00 | $87.63 | $0.00 |
| 2024 | 24007 | PORTPT - PORT DISTRICT | $22.50 | $22.48 | $0.00 | $0.00 | $44.98 | $0.00 |
| 2024 | 24007 | PUD1 - PUD #1 | $3.58 | $3.57 | $0.00 | $0.00 | $7.15 | $0.00 |
| 2024 | 24007 | LIB1 - LIBRARY DIST #1 | $16.95 | $16.95 | $0.00 | $0.00 | $33.90 | $0.00 |
| 2024 | 24007 | HD2 - HOSP DIST #2 | $3.18 | $3.17 | $0.00 | $0.00 | $6.35 | $0.00 |
| 2024 | 24007 | SD49 - SCHOOL DIST #49 | $56.83 | $56.82 | $0.00 | $0.00 | $113.65 | $0.00 |
| 2024 | 24007 | FD1 - FIRE DISTRICT #1 | $72.00 | $71.99 | $0.00 | $0.00 | $143.99 | $0.00 |
| 2024 | 24007 | EMS1 - FIRE DIST #1 EMS | $27.50 | $27.50 | $0.00 | $0.00 | $55.00 | $0.00 |
| 2024 | 24007 | FP - DNR Forest Fire Protection Assmt | $8.50 | $8.50 | $0.00 | $0.00 | $17.00 | $0.00 |
| 2024 | 24007 | FPLCA - DNR Landowner Contingency Assmt | $3.00 | $3.00 | $0.00 | $0.00 | $6.00 | $0.00 |
| 2024 | 24007 | JCCD - JC Conservation District | $2.53 | $2.53 | $0.00 | $0.00 | $5.06 | $0.00 |
| 2024 | 24007 | NWA - Noxious Weed Assessment | $2.15 | $2.15 | $0.00 | $0.00 | $4.30 | $0.00 |
| 2024 | 24007 | WAT - Clean Water District | $12.50 | $12.50 | $0.00 | $0.00 | $25.00 | $0.00 |
| 2024 | 24007 | FP ADMIN - FP ADMIN | $0.50 | $0.00 | $0.00 | $0.00 | $0.50 | $0.00 |
| 2024 | 24007 | TOTAL: | $458.89 | $458.27 | $0.00 | $0.00 | $917.16 | $0.00 |
|
| 2024 | 24007 | $458.89 | $458.27 | $0.00 | $0.00 | $917.16 | $0.00 |
Statement Details |
| 2023 | 24046 | STATE - STATE LEVY (SCHOOL) | $129.48 | $129.48 | $0.00 | $0.00 | $258.96 | $0.00 |
| 2023 | 24046 | COUNTY - COUNTY LEVIES (CE, DD, VET, MH) | $56.51 | $56.49 | $0.00 | $0.00 | $113.00 | $0.00 |
| 2023 | 24046 | CONSERVE - CONSERVATION FUTURES | $1.70 | $1.69 | $0.00 | $0.00 | $3.39 | $0.00 |
| 2023 | 24046 | COROADS - COUNTY ROADS (ROADS, DIV TO CE) | $45.72 | $45.70 | $0.00 | $0.00 | $91.42 | $0.00 |
| 2023 | 24046 | PORTPT - PORT DISTRICT | $23.81 | $23.79 | $0.00 | $0.00 | $47.60 | $0.00 |
| 2023 | 24046 | PUD1 - PUD #1 | $3.75 | $3.74 | $0.00 | $0.00 | $7.49 | $0.00 |
| 2023 | 24046 | LIB1 - LIBRARY DIST #1 | $17.69 | $17.68 | $0.00 | $0.00 | $35.37 | $0.00 |
| 2023 | 24046 | HD2 - HOSP DIST #2 | $3.31 | $3.29 | $0.00 | $0.00 | $6.60 | $0.00 |
| 2023 | 24046 | SD49 - SCHOOL DIST #49 | $60.53 | $60.52 | $0.00 | $0.00 | $121.05 | $0.00 |
| 2023 | 24046 | FD3 - FIRE DISTRICT #3 | $56.21 | $56.21 | $0.00 | $0.00 | $112.42 | $0.00 |
| 2023 | 24046 | EMS3 - FIRE DIST #3 EMS | $20.10 | $20.09 | $0.00 | $0.00 | $40.19 | $0.00 |
| 2023 | 24046 | FP - DNR Forest Fire Protection Assmt | $8.50 | $8.50 | $0.00 | $0.00 | $17.00 | $0.00 |
| 2023 | 24046 | FPLCA - DNR Landowner Contingency Assmt | $3.00 | $3.00 | $0.00 | $0.00 | $6.00 | $0.00 |
| 2023 | 24046 | JCCD - JC Conservation District | $2.53 | $2.53 | $0.00 | $0.00 | $5.06 | $0.00 |
| 2023 | 24046 | NWA - Noxious Weed Assessment | $2.15 | $2.15 | $0.00 | $0.00 | $4.30 | $0.00 |
| 2023 | 24046 | WAT - Clean Water District | $12.00 | $12.00 | $0.00 | $0.00 | $24.00 | $0.00 |
| 2023 | 24046 | FP ADMIN - FP ADMIN | $0.50 | $0.00 | $0.00 | $0.00 | $0.50 | $0.00 |
| 2023 | 24046 | TOTAL: | $447.49 | $446.86 | $0.00 | $0.00 | $894.35 | $0.00 |
|
| 2023 | 24046 | $447.49 | $446.86 | $0.00 | $0.00 | $894.35 | $0.00 |
Values
| (+) Improvement Homesite Value: | + | $0 | |
| (+) Improvement Non-Homesite Value: | + | $0 | |
| (+) Land Homesite Value: | + | $0 | |
| (+) Land Non-Homesite Value: | + | $126,500 | |
| (+) Curr Use (HS): | + | $0 | $0 |
| (+) Curr Use (NHS): | + | $0 | $0 |
| | | -------------------------- | |
| (=) Market Value: | = | $126,500 | |
| (–) Productivity Loss: | – | $0 | |
| | | -------------------------- | |
| (=) Subtotal: | = | $126,500 | |
| (+) Senior Appraised Value: | + | $0 | |
| (+) Non-Senior Appraised Value: | + | $126,500 | |
| | | -------------------------- | |
| (=) Total Appraised Value: | = | $126,500 | |
| (–) Senior Exemption Loss: | – | $0 | |
| (–) Exemption Loss: | – | $0 | |
| | | -------------------------- | |
| (=) Taxable Value: | = | $126,500 | |
Taxing Jurisdiction
| Owner: | RICHARD MOORE | | |
| % Ownership: | 100.0000000000% | | |
| Total Value: | $126,500 | | |
| Tax Area: | 0213 - 1-49F1E1H2L1 |
| CE | COUNTY CURRENT EXPENSE | 0.9034619479 | $126,500 | $126,500 | $114.29 | | |
| CNTYDD | DEVELOPMENTAL DISABILITIES | 0.0052121823 | $126,500 | $126,500 | $0.66 | | |
| CNTYVET | VETERANS RELIEF | 0.0052777810 | $126,500 | $126,500 | $0.67 | | |
| MENTAL | MENTAL HEALTH | 0.0052121823 | $126,500 | $126,500 | $0.66 | | |
| ROADS | COUNTY ROADS | 0.7415066410 | $126,500 | $126,500 | $93.80 | | |
| ROADSCU | COUNTY ROADS TO CUR EXP | 0.0000000000 | $126,500 | $126,500 | $0.00 | | |
| HOSP2CASH | HOSP DIST #2 GENERAL | 0.0536075306 | $126,500 | $126,500 | $6.78 | | |
| SCH49CP | SCHOOL DIST #49 CAP PROJ | 0.6279093905 | $126,500 | $126,500 | $79.43 | | |
| SCH49MO | SCHOOL DIST #49 EP & O | 0.6376483602 | $126,500 | $126,500 | $80.66 | | |
| CONSERVE | CONSERVATION FUTURES | 0.0275621078 | $126,500 | $126,500 | $3.49 | | |
| EMS1 | FIRE DIST #1 EMS | 0.4679948282 | $126,500 | $126,500 | $59.20 | | |
| FD1 | FIRE DIST #1 GENERAL | 1.2171942929 | $126,500 | $126,500 | $153.98 | | |
| LIB1 | LIBRARY DIST #1 GENERAL | 0.2868827388 | $126,500 | $126,500 | $36.29 | | |
| PORTPT | PORT OF PT GENERAL | 0.1134941229 | $126,500 | $126,500 | $14.36 | | |
| PORTPTIDD | PORT OF PT IDD 2019 | 0.2577346692 | $126,500 | $126,500 | $32.60 | | |
| PUD1 | PUD #1 GENERAL | 0.0597888892 | $126,500 | $126,500 | $7.56 | | |
| STATE | STATE SCHOOL PART 1 | 1.4940692947 | $126,500 | $126,500 | $189.00 | | |
| STATE2 | STATE SCHOOL PART 2 | 0.8050170049 | $126,500 | $126,500 | $101.83 | | |
| | Total Tax Rate: | 7.7095739644 | | | | | |
| | | | | Taxes w/Current Exemptions: | $975.26 | | |
| | | | | Taxes w/o Exemptions: | $975.26 | | |
Improvement / Building
Sketch
| No sketches available for this property. |
Property Image
Land
| 1 | 3380-1145L | | 0.0000 | 0.00 | 0.00 | 0.00 | 1.00 | $126,500 | $0 |
Roll Value History
| 2026 | N/A | N/A | N/A | N/A | N/A |
| 2025 | $0 | $126,500 | $0 | $126,500 | $126,500 |
| 2024 | $0 | $121,000 | $0 | $121,000 | $121,000 |
| 2023 | $0 | $110,000 | $0 | $110,000 | $110,000 |
| 2022 | $0 | $110,000 | $0 | $110,000 | $110,000 |
Deed and Sales History
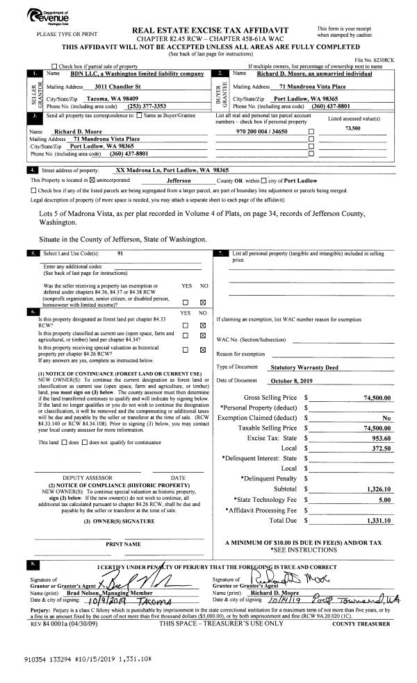
| 1 | 10/08/2019 | SWD | Statutory Warranty Deed | BDN LLC | RICHARD MOORE | | | $74,500.00 | 133294 | |
| 2 | 08/26/2013 | SWD | Statutory Warranty Deed | RONALD GREENIDGE | BDN LLC | | | $65,000.00 | 119867 | |
| 3 | 11/09/2005 | SWD | Statutory Warranty Deed | TYNER, JR GEORGE R & SHAR | GREENIDGE, RONALD & SUZANNAH | 0 | 0 | $0.00 | 105374 | 0 |
Payout Agreement
| No payout information available.. |