Property
Account |
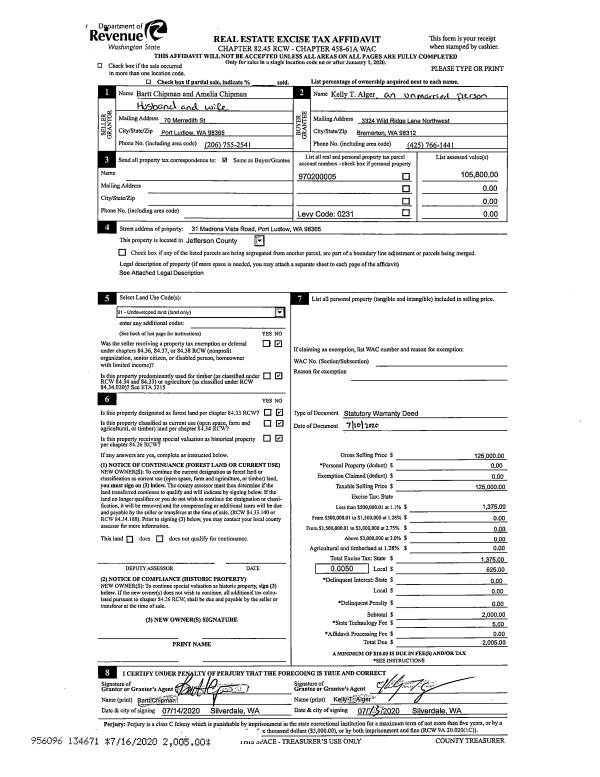
| Property ID: | 34651 | Abbreviated Legal Description: | MADRONA VISTA 6 |
| Parcel # / Geo ID: | 970200005 | Agent Code: | |
| Type: | Real | | |
| Tax Area: | 0213 - 1-49F1E1H2L1 | Land Use Code | 91 |
| Open Space: | N | DFL | N |
| Historic Property: | N | Remodel Property: | N |
| Multi-Family Redevelopment: | N | | |
| Township: | 28N | Section: | 34 |
| Range: | 1E |
Location |
| Address: | 31 MADRONA VISTA PL PORT LUDLOW, WA 98365 | Mapsco: | 069/006 |
| Neighborhood: | S34 T28N R1E/SHORT PLATS/MADRONA VISTA | Map ID: | |
| Neighborhood CD: | 3380 |
Owner |
| Name: | KELLY T ALGER | Owner ID: | 99360 |
| Mailing Address: | 5420 GLENWOOD RD SW PORT ORCHARD, WA 98367-7508 | % Ownership: | 100.0000000000% |
| | | Exemptions: | |
Pay Tax Due
There is currently No Amount Due on this property.
Taxes and Assessment Details
Property Tax Information as of
03/11/2026
Click on "Statement Details" to expand or collapse a tax statement.
* Please enter a valid date ** Please enter a valid date *
Statement Details |
| | TOTAL: | $0.00 | $0.00 | $0.00 | $0.00 | $0.00 | $0.00 |
|
| | $0.00 | $0.00 | $0.00 | $0.00 | $0.00 | $0.00 |
Values
| (+) Improvement Homesite Value: | + | $0 | |
| (+) Improvement Non-Homesite Value: | + | $0 | |
| (+) Land Homesite Value: | + | $0 | |
| (+) Land Non-Homesite Value: | + | $162,150 | |
| (+) Curr Use (HS): | + | $0 | $0 |
| (+) Curr Use (NHS): | + | $0 | $0 |
| | | -------------------------- | |
| (=) Market Value: | = | $162,150 | |
| (–) Productivity Loss: | – | $0 | |
| | | -------------------------- | |
| (=) Subtotal: | = | $162,150 | |
| (+) Senior Appraised Value: | + | $0 | |
| (+) Non-Senior Appraised Value: | + | $162,150 | |
| | | -------------------------- | |
| (=) Total Appraised Value: | = | $162,150 | |
| (–) Senior Exemption Loss: | – | $0 | |
| (–) Exemption Loss: | – | $0 | |
| | | -------------------------- | |
| (=) Taxable Value: | = | $162,150 | |
Taxing Jurisdiction
| Owner: | KELLY T ALGER | | |
| % Ownership: | 100.0000000000% | | |
| Total Value: | $162,150 | | |
| Tax Area: | 0213 - 1-49F1E1H2L1 |
| CE | COUNTY CURRENT EXPENSE | 0.9034619479 | $162,150 | $162,150 | $146.50 | | |
| CNTYDD | DEVELOPMENTAL DISABILITIES | 0.0052121823 | $162,150 | $162,150 | $0.85 | | |
| CNTYVET | VETERANS RELIEF | 0.0052777810 | $162,150 | $162,150 | $0.86 | | |
| MENTAL | MENTAL HEALTH | 0.0052121823 | $162,150 | $162,150 | $0.85 | | |
| ROADS | COUNTY ROADS | 0.7415066410 | $162,150 | $162,150 | $120.24 | | |
| ROADSCU | COUNTY ROADS TO CUR EXP | 0.0000000000 | $162,150 | $162,150 | $0.00 | | |
| HOSP2CASH | HOSP DIST #2 GENERAL | 0.0536075306 | $162,150 | $162,150 | $8.69 | | |
| SCH49CP | SCHOOL DIST #49 CAP PROJ | 0.6279093905 | $162,150 | $162,150 | $101.82 | | |
| SCH49MO | SCHOOL DIST #49 EP & O | 0.6376483602 | $162,150 | $162,150 | $103.39 | | |
| CONSERVE | CONSERVATION FUTURES | 0.0275621078 | $162,150 | $162,150 | $4.47 | | |
| EMS1 | FIRE DIST #1 EMS | 0.4679948282 | $162,150 | $162,150 | $75.89 | | |
| FD1 | FIRE DIST #1 GENERAL | 1.2171942929 | $162,150 | $162,150 | $197.37 | | |
| LIB1 | LIBRARY DIST #1 GENERAL | 0.2868827388 | $162,150 | $162,150 | $46.52 | | |
| PORTPT | PORT OF PT GENERAL | 0.1134941229 | $162,150 | $162,150 | $18.40 | | |
| PORTPTIDD | PORT OF PT IDD 2019 | 0.2577346692 | $162,150 | $162,150 | $41.79 | | |
| PUD1 | PUD #1 GENERAL | 0.0597888892 | $162,150 | $162,150 | $9.69 | | |
| STATE | STATE SCHOOL PART 1 | 1.4940692947 | $162,150 | $162,150 | $242.26 | | |
| STATE2 | STATE SCHOOL PART 2 | 0.8050170049 | $162,150 | $162,150 | $130.53 | | |
| | Total Tax Rate: | 7.7095739644 | | | | | |
| | | | | Taxes w/Current Exemptions: | $1,250.12 | | |
| | | | | Taxes w/o Exemptions: | $1,250.12 | | |
Improvement / Building
Sketch
| No sketches available for this property. |
Property Image
Land
| 1 | 9808 | Water System, Septic, & Power | 0.0000 | 0.00 | 0.00 | 0.00 | 1.00 | $23,000 | $0 |
| 2 | 3380-1145L | Good View Lots in Madrona Vista 2 Lots Typical | 0.0000 | 0.00 | 0.00 | 0.00 | 1.00 | $139,150 | $0 |
Roll Value History
| 2026 | N/A | N/A | N/A | N/A | N/A |
| 2025 | $0 | $162,150 | $0 | $162,150 | $162,150 |
| 2024 | $0 | $155,100 | $0 | $155,100 | $155,100 |
| 2023 | $0 | $141,000 | $0 | $141,000 | $141,000 |
| 2022 | $0 | $141,000 | $0 | $141,000 | $141,000 |
Deed and Sales History
| 1 | 07/10/2020 | SWD | Statutory Warranty Deed | BARTT & AMELIA CHIPMAN | KELLY T ALGER | | | $125,000.00 | 134671 | |
| 2 | 03/16/2016 | SWD | Statutory Warranty Deed | JOHN S VANDENOVER | BARTT & AMELIA CHIPMAN | | | $98,000.00 | 125016 | |
| 3 | 02/11/2004 | SWD | Statutory Warranty Deed | TYNER, GEORGE R & SHARON | VANDENOVER, JOHN S | 0 | 0 | $68,000.00 | 99494 | 0 |
Payout Agreement
| No payout information available.. |