Property
Account |
| Property ID: | 34699 | Abbreviated Legal Description: | MATS VIEW MEADOWS LOT 19(PARCEL G V28/P60) BND TGTH BY BLA#103016 |
| Parcel # / Geo ID: | 970800019 | Agent Code: | |
| Type: | Real | | |
| Tax Area: | 0213 - 1-49F1E1H2L1 | Land Use Code | 11 |
| Open Space: | N | DFL | N |
| Historic Property: | N | Remodel Property: | N |
| Multi-Family Redevelopment: | N | | |
| Township: | 28N | Section: | 5 |
| Range: | 1E |
Location |
| Address: | 204 HAROLDS HOLLOW PORT LUDLOW, WA 98365 | Mapsco: | 067/019 |
| Neighborhood: | S4&5 T28N R1E INC MATS VIEW TERRACE, OLYMPUS BCH & HOLTH SP | Map ID: | |
| Neighborhood CD: | 3312 |
Owner |
| Name: | TRENTALANGE FAMILY REV LIV TRUST | Owner ID: | 113795 |
| Mailing Address: | MICHAEL T TRENTALANGE TTEE BARBARA C TRENTALANGE TTEE 950 20TH AVE E SEATTLE, WA 98112 | % Ownership: | 100.0000000000% |
| | | Exemptions: | |
Pay Tax Due
There is currently No Amount Due on this property.
Taxes and Assessment Details
Property Tax Information as of
03/10/2026
Click on "Statement Details" to expand or collapse a tax statement.
* Please enter a valid date ** Please enter a valid date *
Statement Details |
| 2026 | 23948 | STATE - STATE LEVY (SCHOOL) | $889.11 | $889.09 | $0.00 | $0.00 | $1778.20 | $0.00 |
| 2026 | 23948 | COUNTY - COUNTY LEVIES (CE, DD, VET, MH) | $355.47 | $355.44 | $0.00 | $0.00 | $710.91 | $0.00 |
| 2026 | 23948 | CONSERVE - CONSERVATION FUTURES | $10.66 | $10.66 | $0.00 | $0.00 | $21.32 | $0.00 |
| 2026 | 23948 | COROADS - COUNTY ROADS (ROADS, DIV TO CE) | $286.76 | $286.75 | $0.00 | $0.00 | $573.51 | $0.00 |
| 2026 | 23948 | PORTPT - PORT DISTRICT | $143.56 | $143.56 | $0.00 | $0.00 | $287.12 | $0.00 |
| 2026 | 23948 | PUD1 - PUD #1 | $23.12 | $23.12 | $0.00 | $0.00 | $46.24 | $0.00 |
| 2026 | 23948 | LIB1 - LIBRARY DIST #1 | $110.95 | $110.94 | $0.00 | $0.00 | $221.89 | $0.00 |
| 2026 | 23948 | HD2 - HOSP DIST #2 | $20.73 | $20.73 | $0.00 | $0.00 | $41.46 | $0.00 |
| 2026 | 23948 | SD49 - SCHOOL DIST #49 | $489.42 | $489.41 | $0.00 | $0.00 | $978.83 | $0.00 |
| 2026 | 23948 | FD1 - FIRE DISTRICT #1 | $470.72 | $470.71 | $0.00 | $0.00 | $941.43 | $0.00 |
| 2026 | 23948 | EMS1 - FIRE DIST #1 EMS | $180.99 | $180.98 | $0.00 | $0.00 | $361.97 | $0.00 |
| 2026 | 23948 | JCCD - JC Conservation District | $2.55 | $2.55 | $0.00 | $0.00 | $5.10 | $0.00 |
| 2026 | 23948 | NWA - Noxious Weed Assessment | $2.98 | $2.97 | $0.00 | $0.00 | $5.95 | $0.00 |
| 2026 | 23948 | OSS - On Site Septic | $23.10 | $23.10 | $0.00 | $0.00 | $46.20 | $0.00 |
| 2026 | 23948 | WAT - Clean Water District | $13.00 | $13.00 | $0.00 | $0.00 | $26.00 | $0.00 |
| 2026 | 23948 | TOTAL: | $3023.12 | $3023.01 | $0.00 | $0.00 | $6046.13 | $0.00 |
|
| 2026 | 23948 | $3023.12 | $3023.01 | $0.00 | $0.00 | $6046.13 | $0.00 |
Statement Details |
| 2025 | 24010 | STATE - STATE LEVY (SCHOOL) | $388.92 | $388.91 | $0.00 | $0.00 | $777.83 | $0.00 |
| 2025 | 24010 | COUNTY - COUNTY LEVIES (CE, DD, VET, MH) | $152.95 | $152.92 | $0.00 | $0.00 | $305.87 | $0.00 |
| 2025 | 24010 | CONSERVE - CONSERVATION FUTURES | $4.59 | $4.58 | $0.00 | $0.00 | $9.17 | $0.00 |
| 2025 | 24010 | COROADS - COUNTY ROADS (ROADS, DIV TO CE) | $122.53 | $122.52 | $0.00 | $0.00 | $245.05 | $0.00 |
| 2025 | 24010 | PORTPT - PORT DISTRICT | $62.42 | $62.40 | $0.00 | $0.00 | $124.82 | $0.00 |
| 2025 | 24010 | PUD1 - PUD #1 | $10.01 | $10.00 | $0.00 | $0.00 | $20.01 | $0.00 |
| 2025 | 24010 | LIB1 - LIBRARY DIST #1 | $47.41 | $47.40 | $0.00 | $0.00 | $94.81 | $0.00 |
| 2025 | 24010 | HD2 - HOSP DIST #2 | $8.93 | $8.92 | $0.00 | $0.00 | $17.85 | $0.00 |
| 2025 | 24010 | SD49 - SCHOOL DIST #49 | $208.44 | $208.42 | $0.00 | $0.00 | $416.86 | $0.00 |
| 2025 | 24010 | FD1 - FIRE DISTRICT #1 | $201.82 | $201.81 | $0.00 | $0.00 | $403.63 | $0.00 |
| 2025 | 24010 | EMS1 - FIRE DIST #1 EMS | $77.63 | $77.62 | $0.00 | $0.00 | $155.25 | $0.00 |
| 2025 | 24010 | JCCD - JC Conservation District | $2.55 | $2.55 | $0.00 | $0.00 | $5.10 | $0.00 |
| 2025 | 24010 | NWA - Noxious Weed Assessment | $2.15 | $2.15 | $0.00 | $0.00 | $4.30 | $0.00 |
| 2025 | 24010 | WAT - Clean Water District | $13.00 | $13.00 | $0.00 | $0.00 | $26.00 | $0.00 |
| 2025 | 24010 | TOTAL: | $1303.35 | $1303.20 | $0.00 | $0.00 | $2606.55 | $0.00 |
|
| 2025 | 24010 | $1303.35 | $1303.20 | $0.00 | $0.00 | $2606.55 | $0.00 |
Statement Details |
| 2024 | 24056 | STATE - STATE LEVY (SCHOOL) | $181.33 | $181.33 | $0.00 | $0.00 | $362.66 | $0.00 |
| 2024 | 24056 | COUNTY - COUNTY LEVIES (CE, DD, VET, MH) | $77.60 | $77.59 | $0.00 | $0.00 | $155.19 | $0.00 |
| 2024 | 24056 | CONSERVE - CONSERVATION FUTURES | $2.33 | $2.32 | $0.00 | $0.00 | $4.65 | $0.00 |
| 2024 | 24056 | COROADS - COUNTY ROADS (ROADS, DIV TO CE) | $62.44 | $62.43 | $0.00 | $0.00 | $124.87 | $0.00 |
| 2024 | 24056 | PORTPT - PORT DISTRICT | $32.05 | $32.05 | $0.00 | $0.00 | $64.10 | $0.00 |
| 2024 | 24056 | PUD1 - PUD #1 | $5.10 | $5.09 | $0.00 | $0.00 | $10.19 | $0.00 |
| 2024 | 24056 | LIB1 - LIBRARY DIST #1 | $24.16 | $24.15 | $0.00 | $0.00 | $48.31 | $0.00 |
| 2024 | 24056 | HD2 - HOSP DIST #2 | $4.53 | $4.52 | $0.00 | $0.00 | $9.05 | $0.00 |
| 2024 | 24056 | SD49 - SCHOOL DIST #49 | $80.97 | $80.97 | $0.00 | $0.00 | $161.94 | $0.00 |
| 2024 | 24056 | FD1 - FIRE DISTRICT #1 | $102.60 | $102.59 | $0.00 | $0.00 | $205.19 | $0.00 |
| 2024 | 24056 | EMS1 - FIRE DIST #1 EMS | $39.19 | $39.19 | $0.00 | $0.00 | $78.38 | $0.00 |
| 2024 | 24056 | JCCD - JC Conservation District | $2.53 | $2.53 | $0.00 | $0.00 | $5.06 | $0.00 |
| 2024 | 24056 | NWA - Noxious Weed Assessment | $2.15 | $2.15 | $0.00 | $0.00 | $4.30 | $0.00 |
| 2024 | 24056 | WAT - Clean Water District | $12.50 | $12.50 | $0.00 | $0.00 | $25.00 | $0.00 |
| 2024 | 24056 | TOTAL: | $629.48 | $629.41 | $0.00 | $0.00 | $1258.89 | $0.00 |
|
| 2024 | 24056 | $629.48 | $629.41 | $0.00 | $0.00 | $1258.89 | $0.00 |
Statement Details |
| 2023 | 24095 | STATE - STATE LEVY (SCHOOL) | $184.51 | $184.51 | $0.00 | $0.00 | $369.02 | $0.00 |
| 2023 | 24095 | COUNTY - COUNTY LEVIES (CE, DD, VET, MH) | $80.53 | $80.49 | $0.00 | $0.00 | $161.02 | $0.00 |
| 2023 | 24095 | CONSERVE - CONSERVATION FUTURES | $2.42 | $2.41 | $0.00 | $0.00 | $4.83 | $0.00 |
| 2023 | 24095 | COROADS - COUNTY ROADS (ROADS, DIV TO CE) | $65.14 | $65.14 | $0.00 | $0.00 | $130.28 | $0.00 |
| 2023 | 24095 | PORTPT - PORT DISTRICT | $33.92 | $33.91 | $0.00 | $0.00 | $67.83 | $0.00 |
| 2023 | 24095 | PUD1 - PUD #1 | $5.34 | $5.33 | $0.00 | $0.00 | $10.67 | $0.00 |
| 2023 | 24095 | LIB1 - LIBRARY DIST #1 | $25.20 | $25.20 | $0.00 | $0.00 | $50.40 | $0.00 |
| 2023 | 24095 | HD2 - HOSP DIST #2 | $4.70 | $4.70 | $0.00 | $0.00 | $9.40 | $0.00 |
| 2023 | 24095 | SD49 - SCHOOL DIST #49 | $86.25 | $86.24 | $0.00 | $0.00 | $172.49 | $0.00 |
| 2023 | 24095 | FD3 - FIRE DISTRICT #3 | $80.10 | $80.10 | $0.00 | $0.00 | $160.20 | $0.00 |
| 2023 | 24095 | EMS3 - FIRE DIST #3 EMS | $28.64 | $28.63 | $0.00 | $0.00 | $57.27 | $0.00 |
| 2023 | 24095 | JCCD - JC Conservation District | $2.53 | $2.53 | $0.00 | $0.00 | $5.06 | $0.00 |
| 2023 | 24095 | NWA - Noxious Weed Assessment | $2.15 | $2.15 | $0.00 | $0.00 | $4.30 | $0.00 |
| 2023 | 24095 | WAT - Clean Water District | $12.00 | $12.00 | $0.00 | $0.00 | $24.00 | $0.00 |
| 2023 | 24095 | TOTAL: | $613.43 | $613.34 | $0.00 | $0.00 | $1226.77 | $0.00 |
|
| 2023 | 24095 | $613.43 | $613.34 | $0.00 | $0.00 | $1226.77 | $0.00 |
Values
| (+) Improvement Homesite Value: | + | $0 | |
| (+) Improvement Non-Homesite Value: | + | $564,426 | |
| (+) Land Homesite Value: | + | $0 | |
| (+) Land Non-Homesite Value: | + | $209,013 | |
| (+) Curr Use (HS): | + | $0 | $0 |
| (+) Curr Use (NHS): | + | $0 | $0 |
| | | -------------------------- | |
| (=) Market Value: | = | $773,439 | |
| (–) Productivity Loss: | – | $0 | |
| | | -------------------------- | |
| (=) Subtotal: | = | $773,439 | |
| (+) Senior Appraised Value: | + | $0 | |
| (+) Non-Senior Appraised Value: | + | $773,439 | |
| | | -------------------------- | |
| (=) Total Appraised Value: | = | $773,439 | |
| (–) Senior Exemption Loss: | – | $0 | |
| (–) Exemption Loss: | – | $0 | |
| | | -------------------------- | |
| (=) Taxable Value: | = | $773,439 | |
Taxing Jurisdiction
| Owner: | TRENTALANGE FAMILY REV LIV TRUST | | |
| % Ownership: | 100.0000000000% | | |
| Total Value: | $773,439 | | |
| Tax Area: | 0213 - 1-49F1E1H2L1 |
| CE | COUNTY CURRENT EXPENSE | 0.9034619479 | $773,439 | $773,439 | $698.77 | | |
| CNTYDD | DEVELOPMENTAL DISABILITIES | 0.0052121823 | $773,439 | $773,439 | $4.03 | | |
| CNTYVET | VETERANS RELIEF | 0.0052777810 | $773,439 | $773,439 | $4.08 | | |
| MENTAL | MENTAL HEALTH | 0.0052121823 | $773,439 | $773,439 | $4.03 | | |
| ROADS | COUNTY ROADS | 0.7415066410 | $773,439 | $773,439 | $573.51 | | |
| ROADSCU | COUNTY ROADS TO CUR EXP | 0.0000000000 | $773,439 | $773,439 | $0.00 | | |
| HOSP2CASH | HOSP DIST #2 GENERAL | 0.0536075306 | $773,439 | $773,439 | $41.46 | | |
| SCH49CP | SCHOOL DIST #49 CAP PROJ | 0.6279093905 | $773,439 | $773,439 | $485.65 | | |
| SCH49MO | SCHOOL DIST #49 EP & O | 0.6376483602 | $773,439 | $773,439 | $493.18 | | |
| CONSERVE | CONSERVATION FUTURES | 0.0275621078 | $773,439 | $773,439 | $21.32 | | |
| EMS1 | FIRE DIST #1 EMS | 0.4679948282 | $773,439 | $773,439 | $361.97 | | |
| FD1 | FIRE DIST #1 GENERAL | 1.2171942929 | $773,439 | $773,439 | $941.43 | | |
| LIB1 | LIBRARY DIST #1 GENERAL | 0.2868827388 | $773,439 | $773,439 | $221.89 | | |
| PORTPT | PORT OF PT GENERAL | 0.1134941229 | $773,439 | $773,439 | $87.78 | | |
| PORTPTIDD | PORT OF PT IDD 2019 | 0.2577346692 | $773,439 | $773,439 | $199.34 | | |
| PUD1 | PUD #1 GENERAL | 0.0597888892 | $773,439 | $773,439 | $46.24 | | |
| STATE | STATE SCHOOL PART 1 | 1.4940692947 | $773,439 | $773,439 | $1,155.57 | | |
| STATE2 | STATE SCHOOL PART 2 | 0.8050170049 | $773,439 | $773,439 | $622.63 | | |
| | Total Tax Rate: | 7.7095739644 | | | | | |
| | | | | Taxes w/Current Exemptions: | $5,962.88 | | |
| | | | | Taxes w/o Exemptions: | $5,962.88 | | |
Improvement / Building
| Improvement #1: | Residential Bldg | State Code: | 11 | 2243.0 sqft | Value: | $564,426 |
| Bathrooms (#): | 4 (FULL) | Bedrooms (#): | 3 | | Exterior Wall: | SI/ST | Foundation: | CONPR | | Roof Cover: | COMP |   |   |
|
| | Type | Description | Class CD | Sub Class CD | Year Built | Area |
| | MA | Main Area | 4- | 15SF | 2024 | 1388.0 |
| | MA2 | Second Floor Main Area | 4- | 15SF | 2024 | 855.0 |
| | HWPOR | House Wood Porch | 3 | * | 2024 | 564.0 |
| | GATT | House Attached Garage | 3 | * | 2024 | 480.0 |
| | BSMTU | House basement unfinished | 2 | * | 2024 | 1500.0 |
| | CONCD | Concrete Drive | 3 | * | 2024 | 0.0 |
Sketch
Property Image
Land
| 1 | 3312-1143L | | 0.0000 | 0.00 | 0.00 | 0.00 | 1.00 | $209,013 | $0 |
Roll Value History
| 2026 | N/A | N/A | N/A | N/A | N/A |
| 2025 | $564,426 | $209,013 | $0 | $773,439 | $773,439 |
| 2024 | $124,435 | $199,925 | $0 | $324,360 | $324,360 |
| 2023 | $0 | $156,750 | $0 | $156,750 | $156,750 |
| 2022 | $0 | $156,750 | $0 | $156,750 | $156,750 |
Deed and Sales History
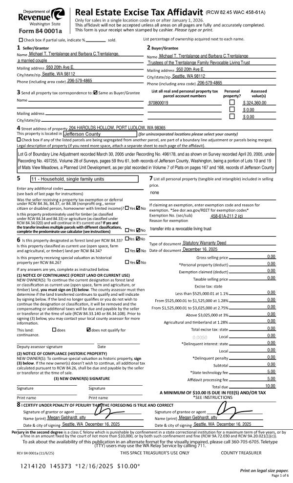
| 1 | 12/16/2025 | SWD | Statutory Warranty Deed | BARBARA C & MICHAEL T TRENTALANGE | TRENTALANGE FAMILY REV LIV TRUST | | | | 145373 | |
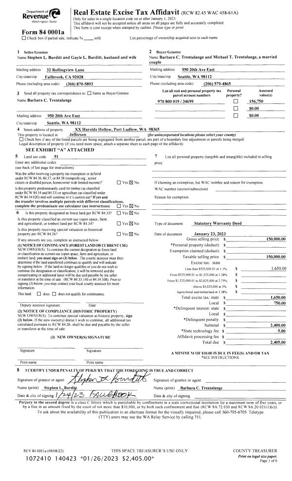
| 2 | 01/23/2023 | SWD | Statutory Warranty Deed | STEPHEN L BURDITT | BARBARA C & MICHAEL T TRENTALANGE | | | $150,000.00 | 140423 | |
| 3 | 07/26/2005 | SWD | Statutory Warranty Deed | JEFFCO JOINT VENTURE LLC | BURDITT, STEPHEN L & GAYLE L | 0 | 0 | $164,000.00 | 104527 | 0 |
Payout Agreement
| No payout information available.. |