Property
Account |
| Property ID: | 34743 | Abbreviated Legal Description: | MATS MATS BEACH BLK 5 LOT 13 & TL ABUT WITH EASE |
| Parcel # / Geo ID: | 970800508 | Agent Code: | |
| Type: | Real | | |
| Tax Area: | 0213 - 1-49F1E1H2L1 | Land Use Code | 11 |
| Open Space: | N | DFL | N |
| Historic Property: | N | Remodel Property: | N |
| Multi-Family Redevelopment: | N | | |
| Township: | 29N | Section: | 33 |
| Range: | 1E |
Location |
| Address: | 80 PROSPECT ST PORT LUDLOW, WA 98365 | Mapsco: | 066/043 |
| Neighborhood: | S32,S33 T29N R1E; MATS MATS BEACH; RIDGECREST/GAINER/LACY SP | Map ID: | |
| Neighborhood CD: | 3290 |
Owner |
| Name: | COLE ROTTWEILER | Owner ID: | 111191 |
| Mailing Address: | NANCY GARLAND 6500 NE BAKER HILL RD BAINBRIDGE ISLAND, WA 98110-2036 | % Ownership: | 100.0000000000% |
| | | Exemptions: | |
Pay Tax Due
There is currently No Amount Due on this property.
Taxes and Assessment Details
Property Tax Information as of
03/12/2026
Click on "Statement Details" to expand or collapse a tax statement.
* Please enter a valid date ** Please enter a valid date *
Statement Details |
| | TOTAL: | $0.00 | $0.00 | $0.00 | $0.00 | $0.00 | $0.00 |
|
| | $0.00 | $0.00 | $0.00 | $0.00 | $0.00 | $0.00 |
Values
| (+) Improvement Homesite Value: | + | $0 | |
| (+) Improvement Non-Homesite Value: | + | $494,659 | |
| (+) Land Homesite Value: | + | $0 | |
| (+) Land Non-Homesite Value: | + | $219,995 | |
| (+) Curr Use (HS): | + | $0 | $0 |
| (+) Curr Use (NHS): | + | $0 | $0 |
| | | -------------------------- | |
| (=) Market Value: | = | $714,654 | |
| (–) Productivity Loss: | – | $0 | |
| | | -------------------------- | |
| (=) Subtotal: | = | $714,654 | |
| (+) Senior Appraised Value: | + | $0 | |
| (+) Non-Senior Appraised Value: | + | $714,654 | |
| | | -------------------------- | |
| (=) Total Appraised Value: | = | $714,654 | |
| (–) Senior Exemption Loss: | – | $0 | |
| (–) Exemption Loss: | – | $0 | |
| | | -------------------------- | |
| (=) Taxable Value: | = | $714,654 | |
Taxing Jurisdiction
| Owner: | COLE ROTTWEILER | | |
| % Ownership: | 100.0000000000% | | |
| Total Value: | N/A | | |
| Tax Area: | 0213 - 1-49F1E1H2L1 |
| CE | COUNTY CURRENT EXPENSE | N/A | N/A | N/A | N/A | | |
| CNTYDD | DEVELOPMENTAL DISABILITIES | N/A | N/A | N/A | N/A | | |
| CNTYVET | VETERANS RELIEF | N/A | N/A | N/A | N/A | | |
| MENTAL | MENTAL HEALTH | N/A | N/A | N/A | N/A | | |
| ROADS | COUNTY ROADS | N/A | N/A | N/A | N/A | | |
| HOSP2CASH | HOSP DIST #2 GENERAL | N/A | N/A | N/A | N/A | | |
| SCH49CP | SCHOOL DIST #49 CAP PROJ | N/A | N/A | N/A | N/A | | |
| SCH49MO | SCHOOL DIST #49 EP & O | N/A | N/A | N/A | N/A | | |
| CONSERVE | CONSERVATION FUTURES | N/A | N/A | N/A | N/A | | |
| EMS1 | FIRE DIST #1 EMS | N/A | N/A | N/A | N/A | | |
| FD1 | FIRE DIST #1 GENERAL | N/A | N/A | N/A | N/A | | |
| LIB1 | LIBRARY DIST #1 GENERAL | N/A | N/A | N/A | N/A | | |
| PORTPT | PORT OF PT GENERAL | N/A | N/A | N/A | N/A | | |
| PORTPTIDD | PORT OF PT IDD 2019 | N/A | N/A | N/A | N/A | | |
| PUD1 | PUD #1 GENERAL | N/A | N/A | N/A | N/A | | |
| STATE | STATE SCHOOL PART 1 | N/A | N/A | N/A | N/A | | |
| STATE2 | STATE SCHOOL PART 2 | N/A | N/A | N/A | N/A | | |
| | Total Tax Rate: | N/A | | | | | |
| | | | | Taxes w/Current Exemptions: | N/A | | |
| | | | | Taxes w/o Exemptions: | N/A | | |
Improvement / Building
| Improvement #1: | Residential Bldg | State Code: | 11 | 2149.0 sqft | Value: | $494,659 |
| Bathrooms (#): | 1 (FULL) | Bathrooms (#): | 1 (HALF) | | Bedrooms (#): | 2 | Exterior Wall: | PL/T1 | | Fireplace: | SIN 2-AVG | Floor Construction: | FRAME | | Foundation: | CONPR | Heating/Cooling: | HPUMP | | Inside Verify: | YES-FIX | Roof Cover: | METAL |
|
| | Type | Description | Class CD | Sub Class CD | Year Built | Area |
| | MA | Main Area | 4 | 15SF | 1979 | 1269.0 |
| | MA2 | Second Floor Main Area | 4 | 15SF | 1979 | 880.0 |
| | HDECK | House Deck | 4 | * | 1979 | 120.0 |
| | BSMTU | House basement unfinished | 3 | * | 1979 | 824.0 |
| | GARAG | Garage (Table Not Dep) | 4 | * | 1979 | 768.0 |
| | SHED | Shed (Table Not Dep) | 4 | * | 2021 | 0.0 |
Sketch
Property Image
Land
| 1 | 3290-1127F | Low/Medium Bank Wtrfrt Mats Mats Bay | 0.0000 | 0.00 | 0.00 | 0.00 | 0.00 | $218,500 | $0 |
| 2 | 9301F | Tidelands | 0.0000 | 0.00 | 0.00 | 0.00 | 0.00 | $1,495 | $0 |
Roll Value History
| 2026 | N/A | N/A | N/A | N/A | N/A |
| 2025 | $494,659 | $219,995 | $0 | $714,654 | $714,654 |
| 2024 | $359,730 | $148,830 | $0 | $508,560 | $508,560 |
| 2023 | $344,090 | $130,300 | $0 | $474,390 | $474,390 |
| 2022 | $328,449 | $125,300 | $0 | $453,749 | $453,749 |
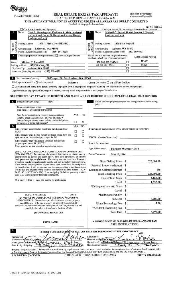
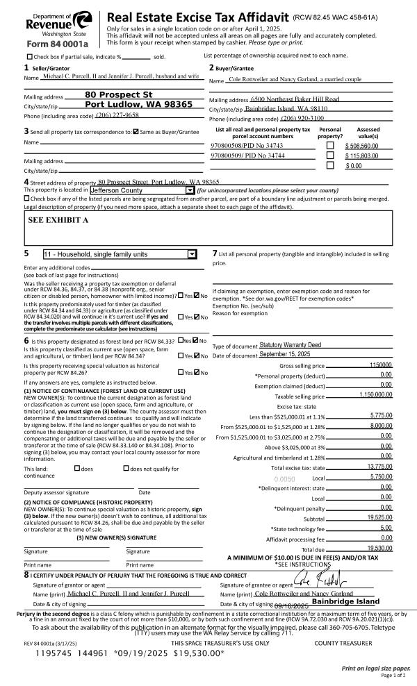
Deed and Sales History
| 1 | 09/15/2025 | SWD | Statutory Warranty Deed | MICHAEL II & JENNIFER PURCELL | COLE ROTTWEILER | | | $1,150,000.00 | 144961 | |
|   | |
| 2 | 05/10/2016 | SWD | Statutory Warranty Deed | JACK L MANNING & KATHLEEN A MUIR | MICHAEL II & JENNIFER PURCELL | | | $325,000.00 | 125462 | |
|   | |
| 3 | 04/10/2015 | SWD | Statutory Warranty Deed | WAYNE COOK TRUSTEE | JACK L MANNING & KATHLEEN A MUIR | | | $110,000.00 | 123021 | |
|   | |
Payout Agreement
| No payout information available.. |