Property
Account |
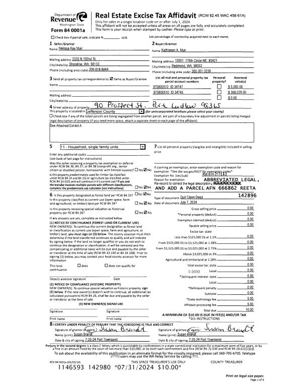
| Property ID: | 34745 | Abbreviated Legal Description: | MATS MATS BEACH BLK 5 LOTS 15 AND 16 & TL TX S W/EASE |
| Parcel # / Geo ID: | 970800510 | Agent Code: | |
| Type: | Real | | |
| Tax Area: | 0213 - 1-49F1E1H2L1 | Land Use Code | 11 |
| Open Space: | N | DFL | N |
| Historic Property: | N | Remodel Property: | N |
| Multi-Family Redevelopment: | N | | |
| Township: | 29N | Section: | 33 |
| Range: | 1E |
Location |
| Address: | 90 PROSPECT ST PORT LUDLOW, WA 98365 | Mapsco: | 066/046 |
| Neighborhood: | S32,S33 T29N R1E; MATS MATS BEACH; RIDGECREST/GAINER/LACY SP | Map ID: | |
| Neighborhood CD: | 3290 |
Owner |
| Name: | COLE ROTTWEILER | Owner ID: | 111191 |
| Mailing Address: | NANCY GARLAND 6500 NE BAKER HILL RD BAINBRIDGE ISLAND, WA 98110-2036 | % Ownership: | 100.0000000000% |
| | | Exemptions: | |
Pay Tax Due
Select the appropriate checkbox next to the year to be paid. Multiple years may be selected.
*Convenience Fee not included
Taxes and Assessment Details
Property Tax Information as of
03/10/2026
Click on "Statement Details" to expand or collapse a tax statement.
* Please enter a valid date ** Please enter a valid date *
Statement Details |
| 2026 | 23993 | STATE - STATE LEVY (SCHOOL) | $484.14 | $484.14 | $0.00 | $0.00 | $0.00 | $968.28 |
| 2026 | 23993 | COUNTY - COUNTY LEVIES (CE, DD, VET, MH) | $193.56 | $193.56 | $0.00 | $0.00 | $0.00 | $387.12 |
| 2026 | 23993 | CONSERVE - CONSERVATION FUTURES | $5.81 | $5.80 | $0.00 | $0.00 | $0.00 | $11.61 |
| 2026 | 23993 | COROADS - COUNTY ROADS (ROADS, DIV TO CE) | $156.15 | $156.14 | $0.00 | $0.00 | $0.00 | $312.29 |
| 2026 | 23993 | PORTPT - PORT DISTRICT | $78.18 | $78.17 | $0.00 | $0.00 | $0.00 | $156.35 |
| 2026 | 23993 | PUD1 - PUD #1 | $12.59 | $12.59 | $0.00 | $0.00 | $0.00 | $25.18 |
| 2026 | 23993 | LIB1 - LIBRARY DIST #1 | $60.41 | $60.41 | $0.00 | $0.00 | $0.00 | $120.82 |
| 2026 | 23993 | HD2 - HOSP DIST #2 | $11.29 | $11.29 | $0.00 | $0.00 | $0.00 | $22.58 |
| 2026 | 23993 | SD49 - SCHOOL DIST #49 | $266.51 | $266.49 | $0.00 | $0.00 | $0.00 | $533.00 |
| 2026 | 23993 | FD1 - FIRE DISTRICT #1 | $256.32 | $256.31 | $0.00 | $0.00 | $0.00 | $512.63 |
| 2026 | 23993 | EMS1 - FIRE DIST #1 EMS | $98.55 | $98.55 | $0.00 | $0.00 | $0.00 | $197.10 |
| 2026 | 23993 | JCCD - JC Conservation District | $2.55 | $2.55 | $0.00 | $0.00 | $0.00 | $5.10 |
| 2026 | 23993 | NWA - Noxious Weed Assessment | $2.98 | $2.97 | $0.00 | $0.00 | $0.00 | $5.95 |
| 2026 | 23993 | OSS - On Site Septic | $23.10 | $23.10 | $0.00 | $0.00 | $0.00 | $46.20 |
| 2026 | 23993 | WAT - Clean Water District | $13.00 | $13.00 | $0.00 | $0.00 | $0.00 | $26.00 |
| 2026 | 23993 | TOTAL: | $1665.14 | $1665.07 | $0.00 | $0.00 | $0.00 | $3330.21 |
|
| 2026 | 23993 | $1665.14 | $1665.07 | $0.00 | $0.00 | $0.00 | $3330.21 |
Statement Details |
| 2025 | 24055 | STATE - STATE LEVY (SCHOOL) | $483.33 | $483.33 | $0.00 | $0.00 | $966.66 | $0.00 |
| 2025 | 24055 | COUNTY - COUNTY LEVIES (CE, DD, VET, MH) | $190.08 | $190.06 | $0.00 | $0.00 | $380.14 | $0.00 |
| 2025 | 24055 | CONSERVE - CONSERVATION FUTURES | $5.70 | $5.70 | $0.00 | $0.00 | $11.40 | $0.00 |
| 2025 | 24055 | COROADS - COUNTY ROADS (ROADS, DIV TO CE) | $152.28 | $152.27 | $0.00 | $0.00 | $304.55 | $0.00 |
| 2025 | 24055 | PORTPT - PORT DISTRICT | $77.56 | $77.56 | $0.00 | $0.00 | $155.12 | $0.00 |
| 2025 | 24055 | PUD1 - PUD #1 | $12.44 | $12.43 | $0.00 | $0.00 | $24.87 | $0.00 |
| 2025 | 24055 | LIB1 - LIBRARY DIST #1 | $58.92 | $58.91 | $0.00 | $0.00 | $117.83 | $0.00 |
| 2025 | 24055 | HD2 - HOSP DIST #2 | $11.09 | $11.09 | $0.00 | $0.00 | $22.18 | $0.00 |
| 2025 | 24055 | SD49 - SCHOOL DIST #49 | $259.04 | $259.03 | $0.00 | $0.00 | $518.07 | $0.00 |
| 2025 | 24055 | FD1 - FIRE DISTRICT #1 | $250.82 | $250.81 | $0.00 | $0.00 | $501.63 | $0.00 |
| 2025 | 24055 | EMS1 - FIRE DIST #1 EMS | $96.47 | $96.47 | $0.00 | $0.00 | $192.94 | $0.00 |
| 2025 | 24055 | JCCD - JC Conservation District | $2.55 | $2.55 | $0.00 | $0.00 | $5.10 | $0.00 |
| 2025 | 24055 | NWA - Noxious Weed Assessment | $2.15 | $2.15 | $0.00 | $0.00 | $4.30 | $0.00 |
| 2025 | 24055 | OSS - On Site Septic | $21.50 | $21.50 | $0.00 | $0.00 | $43.00 | $0.00 |
| 2025 | 24055 | WAT - Clean Water District | $13.00 | $13.00 | $0.00 | $0.00 | $26.00 | $0.00 |
| 2025 | 24055 | TOTAL: | $1636.93 | $1636.86 | $0.00 | $0.00 | $3273.79 | $0.00 |
|
| 2025 | 24055 | $1636.93 | $1636.86 | $0.00 | $0.00 | $3273.79 | $0.00 |
Statement Details |
| 2024 | 24101 | STATE - STATE LEVY (SCHOOL) | $425.74 | $425.73 | $0.00 | $0.00 | $851.47 | $0.00 |
| 2024 | 24101 | COUNTY - COUNTY LEVIES (CE, DD, VET, MH) | $182.18 | $182.18 | $0.00 | $0.00 | $364.36 | $0.00 |
| 2024 | 24101 | CONSERVE - CONSERVATION FUTURES | $5.47 | $5.46 | $0.00 | $0.00 | $10.93 | $0.00 |
| 2024 | 24101 | COROADS - COUNTY ROADS (ROADS, DIV TO CE) | $146.60 | $146.58 | $0.00 | $0.00 | $293.18 | $0.00 |
| 2024 | 24101 | PORTPT - PORT DISTRICT | $75.25 | $75.24 | $0.00 | $0.00 | $150.49 | $0.00 |
| 2024 | 24101 | PUD1 - PUD #1 | $11.97 | $11.96 | $0.00 | $0.00 | $23.93 | $0.00 |
| 2024 | 24101 | LIB1 - LIBRARY DIST #1 | $56.72 | $56.71 | $0.00 | $0.00 | $113.43 | $0.00 |
| 2024 | 24101 | HD2 - HOSP DIST #2 | $10.63 | $10.63 | $0.00 | $0.00 | $21.26 | $0.00 |
| 2024 | 24101 | SD49 - SCHOOL DIST #49 | $190.11 | $190.11 | $0.00 | $0.00 | $380.22 | $0.00 |
| 2024 | 24101 | FD1 - FIRE DISTRICT #1 | $240.88 | $240.88 | $0.00 | $0.00 | $481.76 | $0.00 |
| 2024 | 24101 | EMS1 - FIRE DIST #1 EMS | $92.01 | $92.00 | $0.00 | $0.00 | $184.01 | $0.00 |
| 2024 | 24101 | JCCD - JC Conservation District | $2.55 | $2.55 | $0.00 | $0.00 | $5.10 | $0.00 |
| 2024 | 24101 | NWA - Noxious Weed Assessment | $2.15 | $2.15 | $0.00 | $0.00 | $4.30 | $0.00 |
| 2024 | 24101 | OSS - On Site Septic | $21.00 | $21.00 | $0.00 | $0.00 | $42.00 | $0.00 |
| 2024 | 24101 | WAT - Clean Water District | $12.50 | $12.50 | $0.00 | $0.00 | $25.00 | $0.00 |
| 2024 | 24101 | TOTAL: | $1475.76 | $1475.68 | $0.00 | $0.00 | $2951.44 | $0.00 |
|
| 2024 | 24101 | $1475.76 | $1475.68 | $0.00 | $0.00 | $2951.44 | $0.00 |
Statement Details |
| 2023 | 24140 | STATE - STATE LEVY (SCHOOL) | $420.24 | $420.22 | $0.00 | $0.00 | $840.46 | $0.00 |
| 2023 | 24140 | COUNTY - COUNTY LEVIES (CE, DD, VET, MH) | $183.38 | $183.37 | $0.00 | $0.00 | $366.75 | $0.00 |
| 2023 | 24140 | CONSERVE - CONSERVATION FUTURES | $5.50 | $5.50 | $0.00 | $0.00 | $11.00 | $0.00 |
| 2023 | 24140 | COROADS - COUNTY ROADS (ROADS, DIV TO CE) | $148.37 | $148.36 | $0.00 | $0.00 | $296.73 | $0.00 |
| 2023 | 24140 | PORTPT - PORT DISTRICT | $77.25 | $77.24 | $0.00 | $0.00 | $154.49 | $0.00 |
| 2023 | 24140 | PUD1 - PUD #1 | $12.16 | $12.15 | $0.00 | $0.00 | $24.31 | $0.00 |
| 2023 | 24140 | LIB1 - LIBRARY DIST #1 | $57.40 | $57.40 | $0.00 | $0.00 | $114.80 | $0.00 |
| 2023 | 24140 | HD2 - HOSP DIST #2 | $10.71 | $10.70 | $0.00 | $0.00 | $21.41 | $0.00 |
| 2023 | 24140 | SD49 - SCHOOL DIST #49 | $196.44 | $196.43 | $0.00 | $0.00 | $392.87 | $0.00 |
| 2023 | 24140 | FD3 - FIRE DISTRICT #3 | $182.43 | $182.43 | $0.00 | $0.00 | $364.86 | $0.00 |
| 2023 | 24140 | EMS3 - FIRE DIST #3 EMS | $65.22 | $65.22 | $0.00 | $0.00 | $130.44 | $0.00 |
| 2023 | 24140 | JCCD - JC Conservation District | $2.55 | $2.55 | $0.00 | $0.00 | $5.10 | $0.00 |
| 2023 | 24140 | NWA - Noxious Weed Assessment | $2.15 | $2.15 | $0.00 | $0.00 | $4.30 | $0.00 |
| 2023 | 24140 | OSS - On Site Septic | $20.50 | $20.50 | $0.00 | $0.00 | $41.00 | $0.00 |
| 2023 | 24140 | WAT - Clean Water District | $12.00 | $12.00 | $0.00 | $0.00 | $24.00 | $0.00 |
| 2023 | 24140 | TOTAL: | $1396.30 | $1396.22 | $0.00 | $0.00 | $2792.52 | $0.00 |
|
| 2023 | 24140 | $1396.30 | $1396.22 | $0.00 | $0.00 | $2792.52 | $0.00 |
Values
| (+) Improvement Homesite Value: | + | $0 | |
| (+) Improvement Non-Homesite Value: | + | $144,496 | |
| (+) Land Homesite Value: | + | $0 | |
| (+) Land Non-Homesite Value: | + | $276,661 | |
| (+) Curr Use (HS): | + | $0 | $0 |
| (+) Curr Use (NHS): | + | $0 | $0 |
| | | -------------------------- | |
| (=) Market Value: | = | $421,157 | |
| (–) Productivity Loss: | – | $0 | |
| | | -------------------------- | |
| (=) Subtotal: | = | $421,157 | |
| (+) Senior Appraised Value: | + | $0 | |
| (+) Non-Senior Appraised Value: | + | $421,157 | |
| | | -------------------------- | |
| (=) Total Appraised Value: | = | $421,157 | |
| (–) Senior Exemption Loss: | – | $0 | |
| (–) Exemption Loss: | – | $0 | |
| | | -------------------------- | |
| (=) Taxable Value: | = | $421,157 | |
Taxing Jurisdiction
| Owner: | COLE ROTTWEILER | | |
| % Ownership: | 100.0000000000% | | |
| Total Value: | N/A | | |
| Tax Area: | 0213 - 1-49F1E1H2L1 |
| CE | COUNTY CURRENT EXPENSE | N/A | N/A | N/A | N/A | | |
| CNTYDD | DEVELOPMENTAL DISABILITIES | N/A | N/A | N/A | N/A | | |
| CNTYVET | VETERANS RELIEF | N/A | N/A | N/A | N/A | | |
| MENTAL | MENTAL HEALTH | N/A | N/A | N/A | N/A | | |
| ROADS | COUNTY ROADS | N/A | N/A | N/A | N/A | | |
| HOSP2CASH | HOSP DIST #2 GENERAL | N/A | N/A | N/A | N/A | | |
| SCH49CP | SCHOOL DIST #49 CAP PROJ | N/A | N/A | N/A | N/A | | |
| SCH49MO | SCHOOL DIST #49 EP & O | N/A | N/A | N/A | N/A | | |
| CONSERVE | CONSERVATION FUTURES | N/A | N/A | N/A | N/A | | |
| EMS1 | FIRE DIST #1 EMS | N/A | N/A | N/A | N/A | | |
| FD1 | FIRE DIST #1 GENERAL | N/A | N/A | N/A | N/A | | |
| LIB1 | LIBRARY DIST #1 GENERAL | N/A | N/A | N/A | N/A | | |
| PORTPT | PORT OF PT GENERAL | N/A | N/A | N/A | N/A | | |
| PORTPTIDD | PORT OF PT IDD 2019 | N/A | N/A | N/A | N/A | | |
| PUD1 | PUD #1 GENERAL | N/A | N/A | N/A | N/A | | |
| STATE | STATE SCHOOL PART 1 | N/A | N/A | N/A | N/A | | |
| STATE2 | STATE SCHOOL PART 2 | N/A | N/A | N/A | N/A | | |
| | Total Tax Rate: | N/A | | | | | |
| | | | | Taxes w/Current Exemptions: | N/A | | |
| | | | | Taxes w/o Exemptions: | N/A | | |
Improvement / Building
| Improvement #1: | Residential Bldg | State Code: | 11 | 958.0 sqft | Value: | $144,496 |
| Bathrooms (#): | 1 (FULL) | Bedrooms (#): | 1 | | Exterior Wall: | PL/T1 | Fireplace: | WD ST-AVG | | Floor Construction: | FRAME | Foundation: | PO&BL | | Heating/Cooling: | WD/NO | Roof Cover: | METAL |
|
| | Type | Description | Class CD | Sub Class CD | Year Built | Area |
| | MA | Main Area | 3 | 1S | 1972 | 958.0 |
| | HWPOR | House Wood Porch | 2 | * | 1972 | 96.0 |
| | SHED | Shed (Table Not Dep) | 6 | * | 1972 | 576.0 |
| | OTHER | Other | * | * | 1972 | 0.0 |
| | HDECK | House Deck | 3 | * | 1972 | 208.0 |
Sketch
Property Image
Land
| 1 | 9301F | | 0.0000 | 0.00 | 0.00 | 0.00 | 0.00 | $2,961 | $0 |
| 2 | 3290-1127F | | 0.0000 | 0.00 | 0.00 | 0.00 | 0.00 | $273,700 | $0 |
Roll Value History
| 2026 | N/A | N/A | N/A | N/A | N/A |
| 2025 | $144,496 | $276,661 | $0 | $421,157 | $421,157 |
| 2024 | $138,475 | $264,633 | $0 | $403,108 | $403,108 |
| 2023 | $132,454 | $235,575 | $0 | $368,029 | $368,029 |
| 2022 | $126,434 | $230,575 | $0 | $357,009 | $357,009 |
Deed and Sales History
| 1 | 07/29/2024 | SWD | Statutory Warranty Deed | DONALD M BENDER | COLE ROTTWEILER | | | $420,000.00 | 142981 | |
|   | |
| 2 | 07/07/2024 | SWD | Statutory Warranty Deed | MELISSA K MUIR | KATHLEEN A MUIR | | | | 142980 | |
| 3 | 07/07/2024 | QCD | Quit Claim Deed | | KATHLEEN A MUIR | | | | 142896 | |
| 4 | 05/26/2015 | QCD | Quit Claim Deed | | | | | | 123669 | |
| 5 | 05/26/2015 | QCD | Quit Claim Deed | | | | | | 123406 | |
| 6 | 10/12/2004 | QCD | Quit Claim Deed | MUIR, RONALD JASON | MUIR, MEGAN | 0 | 0 | $0.00 | 101695 | 0 |
| 7 | 10/12/2004 | QCD | Quit Claim Deed | MUIR, RONALD JASON | MUIR, MEGAN | 0 | 0 | $0.00 | 102023 | 0 |
| 8 | 10/12/2004 | QCD | Quit Claim Deed | BANDURA, KIMBERLY A | MUIR, MEGAN | 0 | 0 | $0.00 | 102024 | 0 |
| 9 | 10/12/2004 | QCD | Quit Claim Deed | BANDURA, KIMBERLY | MUIR, MEGAN | 0 | 0 | $0.00 | 101694 | 0 |
| 10 | 02/22/1993 | WD | Warranty Deed | ESTATE OF MICHAEL B MUIR | MUIR/MELISSA K/MEGAN L/ET AL | 0 | 0 | $0.00 | 70636 | 0 |
Payout Agreement
| No payout information available.. |