Property
Account |
| Property ID: | 34776 | Abbreviated Legal Description: | MARSHALL ADDITION BLK 3 LOT 3 |
| Parcel # / Geo ID: | 971100303 | Agent Code: | |
| Type: | Real | | |
| Tax Area: | 0441 - 1-46F4E4H2C1L1P2 | Land Use Code | 18 |
| Open Space: | N | DFL | N |
| Historic Property: | N | Remodel Property: | N |
| Multi-Family Redevelopment: | N | | |
| Township: | 25N | Section: | 31 |
| Range: | 2W |
Location |
| Address: | 314380 HIGHWAY 101 BRINNON, WA 98320 | Mapsco: | 010/010 |
| Neighborhood: | MARSHALL & WILLIAMS ADDITON | Map ID: | |
| Neighborhood CD: | 1295 |
Owner |
| Name: | TIFFANY SULLIVAN | Owner ID: | 89170 |
| Mailing Address: | PO BOX 184 PORT HADLOCK, WA 98339-0184 | % Ownership: | 100.0000000000% |
| | | Exemptions: | |
Pay Tax Due
Select the appropriate checkbox next to the year to be paid. Multiple years may be selected.
*Convenience Fee not included
Taxes and Assessment Details
Property Tax Information as of
03/11/2026
Click on "Statement Details" to expand or collapse a tax statement.
* Please enter a valid date ** Please enter a valid date *
Statement Details |
| 2026 | 24024 | STATE - STATE LEVY (SCHOOL) | $85.93 | $85.93 | $0.00 | $0.00 | $0.00 | $171.86 |
| 2026 | 24024 | COUNTY - COUNTY LEVIES (CE, DD, VET, MH) | $34.37 | $34.33 | $0.00 | $0.00 | $0.00 | $68.70 |
| 2026 | 24024 | CONSERVE - CONSERVATION FUTURES | $1.03 | $1.03 | $0.00 | $0.00 | $0.00 | $2.06 |
| 2026 | 24024 | COROADS - COUNTY ROADS (ROADS, DIV TO CE) | $27.72 | $27.71 | $0.00 | $0.00 | $0.00 | $55.43 |
| 2026 | 24024 | PORTPT - PORT DISTRICT | $13.88 | $13.87 | $0.00 | $0.00 | $0.00 | $27.75 |
| 2026 | 24024 | PUD1 - PUD #1 | $2.24 | $2.23 | $0.00 | $0.00 | $0.00 | $4.47 |
| 2026 | 24024 | LIB1 - LIBRARY DIST #1 | $10.72 | $10.72 | $0.00 | $0.00 | $0.00 | $21.44 |
| 2026 | 24024 | HD2 - HOSP DIST #2 | $2.01 | $2.00 | $0.00 | $0.00 | $0.00 | $4.01 |
| 2026 | 24024 | SD46 - SCHOOL DIST #46 | $25.75 | $25.75 | $0.00 | $0.00 | $0.00 | $51.50 |
| 2026 | 24024 | FD4 - FIRE DISTRICT #4 | $62.37 | $62.37 | $0.00 | $0.00 | $0.00 | $124.74 |
| 2026 | 24024 | EMS4 - FIRE DIST #4 EMS | $17.36 | $17.36 | $0.00 | $0.00 | $0.00 | $34.72 |
| 2026 | 24024 | CEM1 - CEMETERY DIST #1 | $0.40 | $0.40 | $0.00 | $0.00 | $0.00 | $0.80 |
| 2026 | 24024 | JCCD - JC Conservation District | $2.53 | $2.53 | $0.00 | $0.00 | $0.00 | $5.06 |
| 2026 | 24024 | NWA - Noxious Weed Assessment | $2.98 | $2.97 | $0.00 | $0.00 | $0.00 | $5.95 |
| 2026 | 24024 | OSS - On Site Septic | $23.10 | $23.10 | $0.00 | $0.00 | $0.00 | $46.20 |
| 2026 | 24024 | WAT - Clean Water District | $13.00 | $13.00 | $0.00 | $0.00 | $0.00 | $26.00 |
| 2026 | 24024 | TOTAL: | $325.39 | $325.30 | $0.00 | $0.00 | $0.00 | $650.69 |
|
| 2026 | 24024 | $325.39 | $325.30 | $0.00 | $0.00 | $0.00 | $650.69 |
Statement Details |
| 2025 | 24086 | STATE - STATE LEVY (SCHOOL) | $62.95 | $62.94 | $0.00 | $0.00 | $125.89 | $0.00 |
| 2025 | 24086 | COUNTY - COUNTY LEVIES (CE, DD, VET, MH) | $24.75 | $24.75 | $0.00 | $0.00 | $49.50 | $0.00 |
| 2025 | 24086 | CONSERVE - CONSERVATION FUTURES | $0.74 | $0.74 | $0.00 | $0.00 | $1.48 | $0.00 |
| 2025 | 24086 | COROADS - COUNTY ROADS (ROADS, DIV TO CE) | $19.83 | $19.83 | $0.00 | $0.00 | $39.66 | $0.00 |
| 2025 | 24086 | PORTPT - PORT DISTRICT | $10.11 | $10.09 | $0.00 | $0.00 | $20.20 | $0.00 |
| 2025 | 24086 | PUD1 - PUD #1 | $1.62 | $1.62 | $0.00 | $0.00 | $3.24 | $0.00 |
| 2025 | 24086 | LIB1 - LIBRARY DIST #1 | $7.68 | $7.67 | $0.00 | $0.00 | $15.35 | $0.00 |
| 2025 | 24086 | HD2 - HOSP DIST #2 | $1.45 | $1.44 | $0.00 | $0.00 | $2.89 | $0.00 |
| 2025 | 24086 | SD46 - SCHOOL DIST #46 | $16.64 | $16.64 | $0.00 | $0.00 | $33.28 | $0.00 |
| 2025 | 24086 | FD4 - FIRE DISTRICT #4 | $46.12 | $46.10 | $0.00 | $0.00 | $92.22 | $0.00 |
| 2025 | 24086 | EMS4 - FIRE DIST #4 EMS | $12.80 | $12.79 | $0.00 | $0.00 | $25.59 | $0.00 |
| 2025 | 24086 | CEM1 - CEMETERY DIST #1 | $0.30 | $0.29 | $0.00 | $0.00 | $0.59 | $0.00 |
| 2025 | 24086 | JCCD - JC Conservation District | $2.55 | $2.55 | $0.00 | $0.00 | $5.10 | $0.00 |
| 2025 | 24086 | NWA - Noxious Weed Assessment | $2.15 | $2.15 | $0.00 | $0.00 | $4.30 | $0.00 |
| 2025 | 24086 | OSS - On Site Septic | $21.50 | $21.50 | $0.00 | $0.00 | $43.00 | $0.00 |
| 2025 | 24086 | WAT - Clean Water District | $13.00 | $13.00 | $0.00 | $0.00 | $26.00 | $0.00 |
| 2025 | 24086 | TOTAL: | $244.19 | $244.10 | $0.00 | $0.00 | $488.29 | $0.00 |
|
| 2025 | 24086 | $244.19 | $244.10 | $0.00 | $0.00 | $488.29 | $0.00 |
Statement Details |
| 2024 | 24132 | STATE - STATE LEVY (SCHOOL) | $17.36 | $17.35 | $0.00 | $0.00 | $34.71 | $0.00 |
| 2024 | 24132 | COUNTY - COUNTY LEVIES (CE, DD, VET, MH) | $7.42 | $7.42 | $0.00 | $0.00 | $14.84 | $0.00 |
| 2024 | 24132 | CONSERVE - CONSERVATION FUTURES | $0.23 | $0.22 | $0.00 | $0.00 | $0.45 | $0.00 |
| 2024 | 24132 | COROADS - COUNTY ROADS (ROADS, DIV TO CE) | $5.98 | $5.97 | $0.00 | $0.00 | $11.95 | $0.00 |
| 2024 | 24132 | PORTPT - PORT DISTRICT | $3.07 | $3.06 | $0.00 | $0.00 | $6.13 | $0.00 |
| 2024 | 24132 | PUD1 - PUD #1 | $0.49 | $0.49 | $0.00 | $0.00 | $0.98 | $0.00 |
| 2024 | 24132 | LIB1 - LIBRARY DIST #1 | $2.31 | $2.31 | $0.00 | $0.00 | $4.62 | $0.00 |
| 2024 | 24132 | HD2 - HOSP DIST #2 | $0.44 | $0.43 | $0.00 | $0.00 | $0.87 | $0.00 |
| 2024 | 24132 | SD46 - SCHOOL DIST #46 | $5.21 | $5.21 | $0.00 | $0.00 | $10.42 | $0.00 |
| 2024 | 24132 | FD4 - FIRE DISTRICT #4 | $13.46 | $13.45 | $0.00 | $0.00 | $26.91 | $0.00 |
| 2024 | 24132 | EMS4 - FIRE DIST #4 EMS | $3.75 | $3.75 | $0.00 | $0.00 | $7.50 | $0.00 |
| 2024 | 24132 | CEM1 - CEMETERY DIST #1 | $0.09 | $0.09 | $0.00 | $0.00 | $0.18 | $0.00 |
| 2024 | 24132 | JCCD - JC Conservation District | $2.55 | $2.55 | $0.00 | $0.00 | $5.10 | $0.00 |
| 2024 | 24132 | NWA - Noxious Weed Assessment | $2.15 | $2.15 | $0.00 | $0.00 | $4.30 | $0.00 |
| 2024 | 24132 | OSS - On Site Septic | $21.00 | $21.00 | $0.00 | $0.00 | $42.00 | $0.00 |
| 2024 | 24132 | WAT - Clean Water District | $12.50 | $12.50 | $0.00 | $0.00 | $25.00 | $0.00 |
| 2024 | 24132 | TOTAL: | $98.01 | $97.95 | $0.00 | $0.00 | $195.96 | $0.00 |
|
| 2024 | 24132 | $98.01 | $97.95 | $0.00 | $0.00 | $195.96 | $0.00 |
Statement Details |
| 2023 | 24171 | STATE - STATE LEVY (SCHOOL) | $17.67 | $17.65 | $0.00 | $0.00 | $35.32 | $0.00 |
| 2023 | 24171 | COUNTY - COUNTY LEVIES (CE, DD, VET, MH) | $7.73 | $7.69 | $0.00 | $0.00 | $15.42 | $0.00 |
| 2023 | 24171 | CONSERVE - CONSERVATION FUTURES | $0.23 | $0.23 | $0.00 | $0.00 | $0.46 | $0.00 |
| 2023 | 24171 | COROADS - COUNTY ROADS (ROADS, DIV TO CE) | $6.24 | $6.23 | $0.00 | $0.00 | $12.47 | $0.00 |
| 2023 | 24171 | PORTPT - PORT DISTRICT | $3.25 | $3.24 | $0.00 | $0.00 | $6.49 | $0.00 |
| 2023 | 24171 | PUD1 - PUD #1 | $0.51 | $0.51 | $0.00 | $0.00 | $1.02 | $0.00 |
| 2023 | 24171 | LIB1 - LIBRARY DIST #1 | $2.41 | $2.41 | $0.00 | $0.00 | $4.82 | $0.00 |
| 2023 | 24171 | HD2 - HOSP DIST #2 | $0.46 | $0.44 | $0.00 | $0.00 | $0.90 | $0.00 |
| 2023 | 24171 | SD46 - SCHOOL DIST #46 | $5.77 | $5.76 | $0.00 | $0.00 | $11.53 | $0.00 |
| 2023 | 24171 | FD4 - FIRE DISTRICT #4 | $9.59 | $9.58 | $0.00 | $0.00 | $19.17 | $0.00 |
| 2023 | 24171 | EMS4 - FIRE DIST #4 EMS | $2.73 | $2.72 | $0.00 | $0.00 | $5.45 | $0.00 |
| 2023 | 24171 | CEM1 - CEMETERY DIST #1 | $0.10 | $0.09 | $0.00 | $0.00 | $0.19 | $0.00 |
| 2023 | 24171 | JCCD - JC Conservation District | $2.55 | $2.55 | $0.00 | $0.00 | $5.10 | $0.00 |
| 2023 | 24171 | NWA - Noxious Weed Assessment | $2.15 | $2.15 | $0.00 | $0.00 | $4.30 | $0.00 |
| 2023 | 24171 | OSS - On Site Septic | $20.50 | $20.50 | $0.00 | $0.00 | $41.00 | $0.00 |
| 2023 | 24171 | WAT - Clean Water District | $12.00 | $12.00 | $0.00 | $0.00 | $24.00 | $0.00 |
| 2023 | 24171 | TOTAL: | $93.89 | $93.75 | $0.00 | $0.00 | $187.64 | $0.00 |
|
| 2023 | 24171 | $93.89 | $93.75 | $0.00 | $0.00 | $187.64 | $0.00 |
Values
| (+) Improvement Homesite Value: | + | $0 | |
| (+) Improvement Non-Homesite Value: | + | $0 | |
| (+) Land Homesite Value: | + | $0 | |
| (+) Land Non-Homesite Value: | + | $74,750 | |
| (+) Curr Use (HS): | + | $0 | $0 |
| (+) Curr Use (NHS): | + | $0 | $0 |
| | | -------------------------- | |
| (=) Market Value: | = | $74,750 | |
| (–) Productivity Loss: | – | $0 | |
| | | -------------------------- | |
| (=) Subtotal: | = | $74,750 | |
| (+) Senior Appraised Value: | + | $0 | |
| (+) Non-Senior Appraised Value: | + | $74,750 | |
| | | -------------------------- | |
| (=) Total Appraised Value: | = | $74,750 | |
| (–) Senior Exemption Loss: | – | $0 | |
| (–) Exemption Loss: | – | $0 | |
| | | -------------------------- | |
| (=) Taxable Value: | = | $74,750 | |
Taxing Jurisdiction
| Owner: | TIFFANY SULLIVAN | | |
| % Ownership: | 100.0000000000% | | |
| Total Value: | $74,750 | | |
| Tax Area: | 0441 - 1-46F4E4H2C1L1P2 |
| CE | COUNTY CURRENT EXPENSE | 0.9034619479 | $74,750 | $74,750 | $67.53 | | |
| CNTYDD | DEVELOPMENTAL DISABILITIES | 0.0052121823 | $74,750 | $74,750 | $0.39 | | |
| CNTYVET | VETERANS RELIEF | 0.0052777810 | $74,750 | $74,750 | $0.39 | | |
| MENTAL | MENTAL HEALTH | 0.0052121823 | $74,750 | $74,750 | $0.39 | | |
| ROADS | COUNTY ROADS | 0.7415066410 | $74,750 | $74,750 | $55.43 | | |
| ROADSCU | COUNTY ROADS TO CUR EXP | 0.0000000000 | $74,750 | $74,750 | $0.00 | | |
| HOSP2CASH | HOSP DIST #2 GENERAL | 0.0536075306 | $74,750 | $74,750 | $4.01 | | |
| SCH46MO | SCHOOL DIST #46 EP & O | 0.6890207067 | $74,750 | $74,750 | $51.50 | | |
| CEM1 | CEMETERY DIST #1 GENERAL | 0.0107168292 | $74,750 | $74,750 | $0.80 | | |
| CONSERVE | CONSERVATION FUTURES | 0.0275621078 | $74,750 | $74,750 | $2.06 | | |
| EMS4 | FIRE DIST #4 EMS | 0.4644216158 | $74,750 | $74,750 | $34.72 | | |
| FD4 | FIRE DIST #4 GENERAL | 1.3939598390 | $74,750 | $74,750 | $104.20 | | |
| FD4BOND | FIRE DIST #4 BOND 2019 | 0.2748466981 | $74,750 | $74,750 | $20.54 | | |
| LIB1 | LIBRARY DIST #1 GENERAL | 0.2868827388 | $74,750 | $74,750 | $21.44 | | |
| PORTPT | PORT OF PT GENERAL | 0.1134941229 | $74,750 | $74,750 | $8.48 | | |
| PORTPTIDD | PORT OF PT IDD 2019 | 0.2577346692 | $74,750 | $74,750 | $19.27 | | |
| PUD1 | PUD #1 GENERAL | 0.0597888892 | $74,750 | $74,750 | $4.47 | | |
| STATE | STATE SCHOOL PART 1 | 1.4940692947 | $74,750 | $74,750 | $111.68 | | |
| STATE2 | STATE SCHOOL PART 2 | 0.8050170049 | $74,750 | $74,750 | $60.18 | | |
| | Total Tax Rate: | 7.5917927814 | | | | | |
| | | | | Taxes w/Current Exemptions: | $567.48 | | |
| | | | | Taxes w/o Exemptions: | $567.48 | | |
Improvement / Building
Sketch
| No sketches available for this property. |
Property Image
Land
| 1 | 1295-1155L | | 0.0000 | 0.00 | 0.00 | 0.00 | 1.00 | $74,750 | $0 |
Roll Value History
| 2026 | N/A | N/A | N/A | N/A | N/A |
| 2025 | $0 | $74,750 | $0 | $74,750 | $74,750 |
| 2024 | $0 | $52,500 | $0 | $52,500 | $52,500 |
| 2023 | $0 | $15,000 | $0 | $15,000 | $15,000 |
| 2022 | $0 | $15,000 | $0 | $15,000 | $15,000 |
Deed and Sales History
| 1 | 08/28/2024 | SWD | Statutory Warranty Deed | ALLEN & NICOLA SIMMONS | TIFFANY SULLIVAN | | | $98,000.00 | 143224 | |
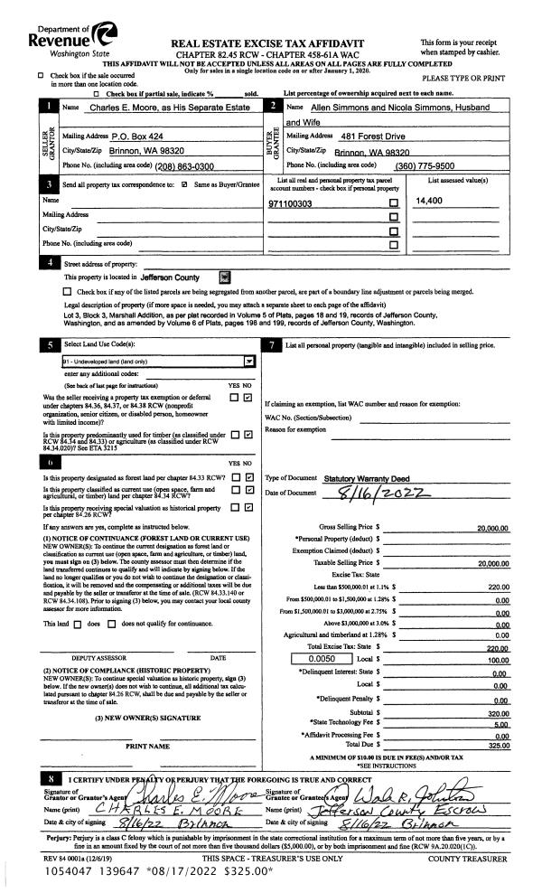
| 2 | 08/16/2022 | SWD | Statutory Warranty Deed | CHARLES E MOORE | ALLEN & NICOLA SIMMONS | | | $20,000.00 | 139647 | |
Payout Agreement
| No payout information available.. |