Property
Account |
| Property ID: | 34842 | Abbreviated Legal Description: | MELWOOD TERRACE LOT 23 |
| Parcel # / Geo ID: | 972000023 | Agent Code: | |
| Type: | Real | | |
| Tax Area: | 0211 - 1-49F1E1H2L1 | Land Use Code | 18 |
| Open Space: | N | DFL | N |
| Historic Property: | N | Remodel Property: | N |
| Multi-Family Redevelopment: | N | | |
| Township: | 29N | Section: | 1 |
| Range: | 1W |
Location |
| Address: | | Mapsco: | 068/023 |
| Neighborhood: | MELWOOD TERRACE | Map ID: | |
| Neighborhood CD: | 4208 |
Owner |
| Name: | ZACHARY M HARIG | Owner ID: | 107538 |
| Mailing Address: | 140 LYLUS LN PORT HADLOCK, WA 98339-9423 | % Ownership: | 100.0000000000% |
| | | Exemptions: | |
Pay Tax Due
Select the appropriate checkbox next to the year to be paid. Multiple years may be selected.
*Convenience Fee not included
Taxes and Assessment Details
Property Tax Information as of
03/11/2026
Click on "Statement Details" to expand or collapse a tax statement.
* Please enter a valid date ** Please enter a valid date *
Statement Details |
| 2026 | 24088 | STATE - STATE LEVY (SCHOOL) | $22.76 | $22.76 | $0.00 | $0.00 | $0.00 | $45.52 |
| 2026 | 24088 | COUNTY - COUNTY LEVIES (CE, DD, VET, MH) | $9.10 | $9.09 | $0.00 | $0.00 | $0.00 | $18.19 |
| 2026 | 24088 | CONSERVE - CONSERVATION FUTURES | $0.28 | $0.27 | $0.00 | $0.00 | $0.00 | $0.55 |
| 2026 | 24088 | COROADS - COUNTY ROADS (ROADS, DIV TO CE) | $7.34 | $7.34 | $0.00 | $0.00 | $0.00 | $14.68 |
| 2026 | 24088 | PORTPT - PORT DISTRICT | $3.68 | $3.67 | $0.00 | $0.00 | $0.00 | $7.35 |
| 2026 | 24088 | PUD1 - PUD #1 | $0.59 | $0.59 | $0.00 | $0.00 | $0.00 | $1.18 |
| 2026 | 24088 | LIB1 - LIBRARY DIST #1 | $2.84 | $2.84 | $0.00 | $0.00 | $0.00 | $5.68 |
| 2026 | 24088 | HD2 - HOSP DIST #2 | $0.53 | $0.53 | $0.00 | $0.00 | $0.00 | $1.06 |
| 2026 | 24088 | SD49 - SCHOOL DIST #49 | $12.54 | $12.52 | $0.00 | $0.00 | $0.00 | $25.06 |
| 2026 | 24088 | FD1 - FIRE DISTRICT #1 | $12.05 | $12.05 | $0.00 | $0.00 | $0.00 | $24.10 |
| 2026 | 24088 | EMS1 - FIRE DIST #1 EMS | $4.64 | $4.63 | $0.00 | $0.00 | $0.00 | $9.27 |
| 2026 | 24088 | FP - DNR Forest Fire Protection Assmt | $8.50 | $8.50 | $0.00 | $0.00 | $0.00 | $17.00 |
| 2026 | 24088 | FPLCA - DNR Landowner Contingency Assmt | $3.00 | $3.00 | $0.00 | $0.00 | $0.00 | $6.00 |
| 2026 | 24088 | JCCD - JC Conservation District | $2.53 | $2.53 | $0.00 | $0.00 | $0.00 | $5.06 |
| 2026 | 24088 | NWA - Noxious Weed Assessment | $2.98 | $2.97 | $0.00 | $0.00 | $0.00 | $5.95 |
| 2026 | 24088 | WAT - Clean Water District | $13.00 | $13.00 | $0.00 | $0.00 | $0.00 | $26.00 |
| 2026 | 24088 | FP ADMIN - FP ADMIN | $0.50 | $0.00 | $0.00 | $0.00 | $0.00 | $0.50 |
| 2026 | 24088 | TOTAL: | $106.86 | $106.29 | $0.00 | $0.00 | $0.00 | $213.15 |
|
| 2026 | 24088 | $106.86 | $106.29 | $0.00 | $0.00 | $0.00 | $213.15 |
Statement Details |
| 2025 | 24152 | STATE - STATE LEVY (SCHOOL) | $22.66 | $22.66 | $0.00 | $0.00 | $45.32 | $0.00 |
| 2025 | 24152 | COUNTY - COUNTY LEVIES (CE, DD, VET, MH) | $8.91 | $8.91 | $0.00 | $0.00 | $17.82 | $0.00 |
| 2025 | 24152 | CONSERVE - CONSERVATION FUTURES | $0.27 | $0.26 | $0.00 | $0.00 | $0.53 | $0.00 |
| 2025 | 24152 | COROADS - COUNTY ROADS (ROADS, DIV TO CE) | $7.14 | $7.14 | $0.00 | $0.00 | $14.28 | $0.00 |
| 2025 | 24152 | PORTPT - PORT DISTRICT | $3.64 | $3.63 | $0.00 | $0.00 | $7.27 | $0.00 |
| 2025 | 24152 | PUD1 - PUD #1 | $0.59 | $0.58 | $0.00 | $0.00 | $1.17 | $0.00 |
| 2025 | 24152 | LIB1 - LIBRARY DIST #1 | $2.76 | $2.76 | $0.00 | $0.00 | $5.52 | $0.00 |
| 2025 | 24152 | HD2 - HOSP DIST #2 | $0.52 | $0.52 | $0.00 | $0.00 | $1.04 | $0.00 |
| 2025 | 24152 | SD49 - SCHOOL DIST #49 | $12.15 | $12.14 | $0.00 | $0.00 | $24.29 | $0.00 |
| 2025 | 24152 | FD1 - FIRE DISTRICT #1 | $11.76 | $11.76 | $0.00 | $0.00 | $23.52 | $0.00 |
| 2025 | 24152 | EMS1 - FIRE DIST #1 EMS | $4.53 | $4.52 | $0.00 | $0.00 | $9.05 | $0.00 |
| 2025 | 24152 | FP - DNR Forest Fire Protection Assmt | $8.50 | $8.50 | $0.00 | $0.00 | $17.00 | $0.00 |
| 2025 | 24152 | FPLCA - DNR Landowner Contingency Assmt | $3.00 | $3.00 | $0.00 | $0.00 | $6.00 | $0.00 |
| 2025 | 24152 | JCCD - JC Conservation District | $2.55 | $2.55 | $0.00 | $0.00 | $5.10 | $0.00 |
| 2025 | 24152 | NWA - Noxious Weed Assessment | $2.15 | $2.15 | $0.00 | $0.00 | $4.30 | $0.00 |
| 2025 | 24152 | WAT - Clean Water District | $13.00 | $13.00 | $0.00 | $0.00 | $26.00 | $0.00 |
| 2025 | 24152 | FP ADMIN - FP ADMIN | $0.50 | $0.00 | $0.00 | $0.00 | $0.50 | $0.00 |
| 2025 | 24152 | TOTAL: | $104.63 | $104.08 | $0.00 | $0.00 | $208.71 | $0.00 |
|
| 2025 | 24152 | $104.63 | $104.08 | $0.00 | $0.00 | $208.71 | $0.00 |
Statement Details |
| 2024 | 24198 | STATE - STATE LEVY (SCHOOL) | $20.82 | $20.82 | $0.00 | $0.00 | $41.64 | $0.00 |
| 2024 | 24198 | COUNTY - COUNTY LEVIES (CE, DD, VET, MH) | $8.91 | $8.91 | $0.00 | $0.00 | $17.82 | $0.00 |
| 2024 | 24198 | CONSERVE - CONSERVATION FUTURES | $0.27 | $0.26 | $0.00 | $0.00 | $0.53 | $0.00 |
| 2024 | 24198 | COROADS - COUNTY ROADS (ROADS, DIV TO CE) | $7.18 | $7.16 | $0.00 | $0.00 | $14.34 | $0.00 |
| 2024 | 24198 | PORTPT - PORT DISTRICT | $3.68 | $3.68 | $0.00 | $0.00 | $7.36 | $0.00 |
| 2024 | 24198 | PUD1 - PUD #1 | $0.59 | $0.58 | $0.00 | $0.00 | $1.17 | $0.00 |
| 2024 | 24198 | LIB1 - LIBRARY DIST #1 | $2.78 | $2.77 | $0.00 | $0.00 | $5.55 | $0.00 |
| 2024 | 24198 | HD2 - HOSP DIST #2 | $0.52 | $0.52 | $0.00 | $0.00 | $1.04 | $0.00 |
| 2024 | 24198 | SD49 - SCHOOL DIST #49 | $9.30 | $9.30 | $0.00 | $0.00 | $18.60 | $0.00 |
| 2024 | 24198 | FD1 - FIRE DISTRICT #1 | $11.78 | $11.78 | $0.00 | $0.00 | $23.56 | $0.00 |
| 2024 | 24198 | EMS1 - FIRE DIST #1 EMS | $4.50 | $4.50 | $0.00 | $0.00 | $9.00 | $0.00 |
| 2024 | 24198 | FP - DNR Forest Fire Protection Assmt | $8.50 | $8.50 | $0.00 | $0.00 | $17.00 | $0.00 |
| 2024 | 24198 | FPLCA - DNR Landowner Contingency Assmt | $3.00 | $3.00 | $0.00 | $0.00 | $6.00 | $0.00 |
| 2024 | 24198 | JCCD - JC Conservation District | $2.55 | $2.55 | $0.00 | $0.00 | $5.10 | $0.00 |
| 2024 | 24198 | NWA - Noxious Weed Assessment | $2.15 | $2.15 | $0.00 | $0.00 | $4.30 | $0.00 |
| 2024 | 24198 | WAT - Clean Water District | $12.50 | $12.50 | $0.00 | $0.00 | $25.00 | $0.00 |
| 2024 | 24198 | FP ADMIN - FP ADMIN | $0.50 | $0.00 | $0.00 | $0.00 | $0.50 | $0.00 |
| 2024 | 24198 | TOTAL: | $99.53 | $98.98 | $0.00 | $0.00 | $198.51 | $0.00 |
|
| 2024 | 24198 | $99.53 | $98.98 | $0.00 | $0.00 | $198.51 | $0.00 |
Statement Details |
| 2023 | 24237 | STATE - STATE LEVY (SCHOOL) | $21.20 | $21.18 | $0.00 | $0.00 | $42.38 | $0.00 |
| 2023 | 24237 | COUNTY - COUNTY LEVIES (CE, DD, VET, MH) | $9.25 | $9.23 | $0.00 | $0.00 | $18.48 | $0.00 |
| 2023 | 24237 | CONSERVE - CONSERVATION FUTURES | $0.28 | $0.27 | $0.00 | $0.00 | $0.55 | $0.00 |
| 2023 | 24237 | COROADS - COUNTY ROADS (ROADS, DIV TO CE) | $7.49 | $7.47 | $0.00 | $0.00 | $14.96 | $0.00 |
| 2023 | 24237 | PORTPT - PORT DISTRICT | $3.90 | $3.89 | $0.00 | $0.00 | $7.79 | $0.00 |
| 2023 | 24237 | PUD1 - PUD #1 | $0.62 | $0.61 | $0.00 | $0.00 | $1.23 | $0.00 |
| 2023 | 24237 | LIB1 - LIBRARY DIST #1 | $2.90 | $2.89 | $0.00 | $0.00 | $5.79 | $0.00 |
| 2023 | 24237 | HD2 - HOSP DIST #2 | $0.55 | $0.53 | $0.00 | $0.00 | $1.08 | $0.00 |
| 2023 | 24237 | SD49 - SCHOOL DIST #49 | $9.91 | $9.90 | $0.00 | $0.00 | $19.81 | $0.00 |
| 2023 | 24237 | FD1 - FIRE DISTRICT #1 | $7.62 | $7.61 | $0.00 | $0.00 | $15.23 | $0.00 |
| 2023 | 24237 | EMS1 - FIRE DIST #1 EMS | $3.24 | $3.24 | $0.00 | $0.00 | $6.48 | $0.00 |
| 2023 | 24237 | FP - DNR Forest Fire Protection Assmt | $8.50 | $8.50 | $0.00 | $0.00 | $17.00 | $0.00 |
| 2023 | 24237 | FPLCA - DNR Landowner Contingency Assmt | $3.00 | $3.00 | $0.00 | $0.00 | $6.00 | $0.00 |
| 2023 | 24237 | JCCD - JC Conservation District | $2.55 | $2.55 | $0.00 | $0.00 | $5.10 | $0.00 |
| 2023 | 24237 | NWA - Noxious Weed Assessment | $2.15 | $2.15 | $0.00 | $0.00 | $4.30 | $0.00 |
| 2023 | 24237 | WAT - Clean Water District | $12.00 | $12.00 | $0.00 | $0.00 | $24.00 | $0.00 |
| 2023 | 24237 | FP ADMIN - FP ADMIN | $0.50 | $0.00 | $0.00 | $0.00 | $0.50 | $0.00 |
| 2023 | 24237 | TOTAL: | $95.66 | $95.02 | $0.00 | $0.00 | $190.68 | $0.00 |
|
| 2023 | 24237 | $95.66 | $95.02 | $0.00 | $0.00 | $190.68 | $0.00 |
Values
| (+) Improvement Homesite Value: | + | $0 | |
| (+) Improvement Non-Homesite Value: | + | $0 | |
| (+) Land Homesite Value: | + | $0 | |
| (+) Land Non-Homesite Value: | + | $19,800 | |
| (+) Curr Use (HS): | + | $0 | $0 |
| (+) Curr Use (NHS): | + | $0 | $0 |
| | | -------------------------- | |
| (=) Market Value: | = | $19,800 | |
| (–) Productivity Loss: | – | $0 | |
| | | -------------------------- | |
| (=) Subtotal: | = | $19,800 | |
| (+) Senior Appraised Value: | + | $0 | |
| (+) Non-Senior Appraised Value: | + | $19,800 | |
| | | -------------------------- | |
| (=) Total Appraised Value: | = | $19,800 | |
| (–) Senior Exemption Loss: | – | $0 | |
| (–) Exemption Loss: | – | $0 | |
| | | -------------------------- | |
| (=) Taxable Value: | = | $19,800 | |
Taxing Jurisdiction
| Owner: | ZACHARY M HARIG | | |
| % Ownership: | 100.0000000000% | | |
| Total Value: | $19,800 | | |
| Tax Area: | 0211 - 1-49F1E1H2L1 |
| CE | COUNTY CURRENT EXPENSE | 0.9034619479 | $19,800 | $19,800 | $17.89 | | |
| CNTYDD | DEVELOPMENTAL DISABILITIES | 0.0052121823 | $19,800 | $19,800 | $0.10 | | |
| CNTYVET | VETERANS RELIEF | 0.0052777810 | $19,800 | $19,800 | $0.10 | | |
| MENTAL | MENTAL HEALTH | 0.0052121823 | $19,800 | $19,800 | $0.10 | | |
| ROADS | COUNTY ROADS | 0.7415066410 | $19,800 | $19,800 | $14.68 | | |
| ROADSCU | COUNTY ROADS TO CUR EXP | 0.0000000000 | $19,800 | $19,800 | $0.00 | | |
| HOSP2CASH | HOSP DIST #2 GENERAL | 0.0536075306 | $19,800 | $19,800 | $1.06 | | |
| SCH49CP | SCHOOL DIST #49 CAP PROJ | 0.6279093905 | $19,800 | $19,800 | $12.43 | | |
| SCH49MO | SCHOOL DIST #49 EP & O | 0.6376483602 | $19,800 | $19,800 | $12.63 | | |
| CONSERVE | CONSERVATION FUTURES | 0.0275621078 | $19,800 | $19,800 | $0.55 | | |
| EMS1 | FIRE DIST #1 EMS | 0.4679948282 | $19,800 | $19,800 | $9.27 | | |
| FD1 | FIRE DIST #1 GENERAL | 1.2171942929 | $19,800 | $19,800 | $24.10 | | |
| LIB1 | LIBRARY DIST #1 GENERAL | 0.2868827388 | $19,800 | $19,800 | $5.68 | | |
| PORTPT | PORT OF PT GENERAL | 0.1134941229 | $19,800 | $19,800 | $2.25 | | |
| PORTPTIDD | PORT OF PT IDD 2019 | 0.2577346692 | $19,800 | $19,800 | $5.10 | | |
| PUD1 | PUD #1 GENERAL | 0.0597888892 | $19,800 | $19,800 | $1.18 | | |
| STATE | STATE SCHOOL PART 1 | 1.4940692947 | $19,800 | $19,800 | $29.58 | | |
| STATE2 | STATE SCHOOL PART 2 | 0.8050170049 | $19,800 | $19,800 | $15.94 | | |
| | Total Tax Rate: | 7.7095739644 | | | | | |
| | | | | Taxes w/Current Exemptions: | $152.64 | | |
| | | | | Taxes w/o Exemptions: | $152.64 | | |
Improvement / Building
Sketch
| No sketches available for this property. |
Property Image
Land
| 1 | 4208-1185S | | 0.0000 | 0.00 | 0.00 | 0.00 | 1.00 | $19,800 | $0 |
Roll Value History
| 2026 | N/A | N/A | N/A | N/A | N/A |
| 2025 | $0 | $19,800 | $0 | $19,800 | $19,800 |
| 2024 | $0 | $18,900 | $0 | $18,900 | $18,900 |
| 2023 | $0 | $18,000 | $0 | $18,000 | $18,000 |
| 2022 | $0 | $18,000 | $0 | $18,000 | $18,000 |
Deed and Sales History
| 1 | 08/12/2022 | SWD | Statutory Warranty Deed | HOFFMASTER FAMILY TRUST | ZACHARY M HARIG | | | $468,000.00 | 139685 | |
|   | |
| 2 | 08/17/2016 | QCD | Quit Claim Deed | ROBERT L & DEBORAH A HOFFMASTER | HOFFMASTER FAMILY TRUST | | | | 126186 | |
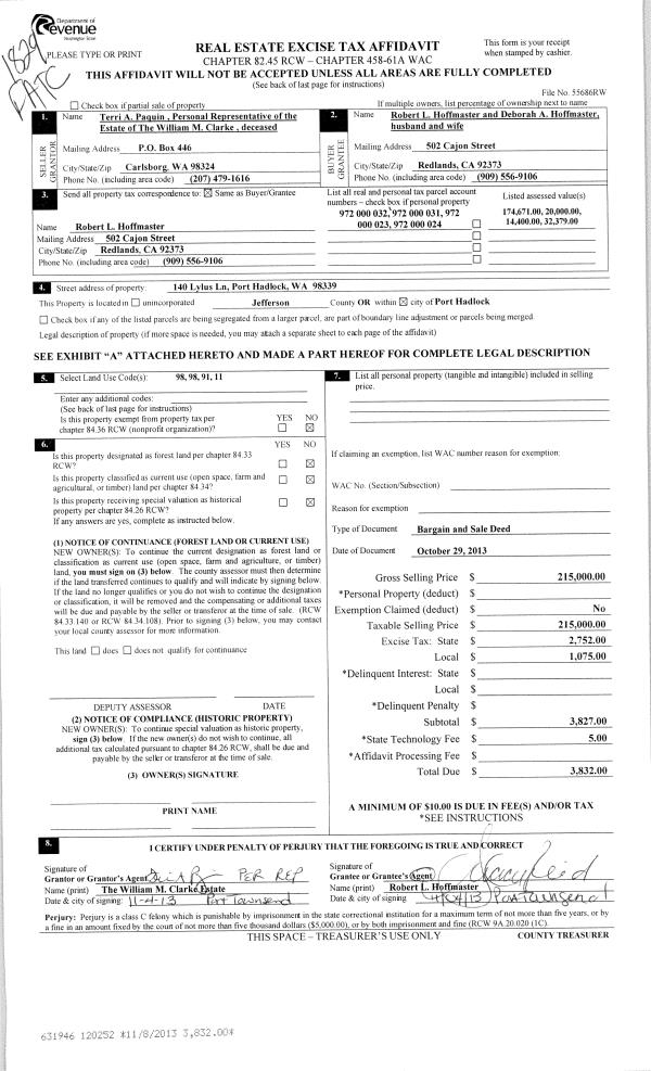
| 3 | 10/29/2013 | BSD | Bargain and Sale Deed | WILLIAM M CLARKE | ROBERT L & DEBORAH A HOFFMASTER | | | $215,000.00 | 120252 | |
|   | |
| 4 | 09/27/2006 | QCD | Quit Claim Deed | CLARKE, WILLIAM M/HELENA | CLARKE, WILLIAM M | 0 | 0 | $0.00 | 107711 | 0 |
Payout Agreement
| No payout information available.. |