Property
Account |
| Property ID: | 34847 | Abbreviated Legal Description: | MELWOOD TERRACE LOT 31 |
| Parcel # / Geo ID: | 972000031 | Agent Code: | |
| Type: | Real | | |
| Tax Area: | 0211 - 1-49F1E1H2L1 | Land Use Code | 91 |
| Open Space: | N | DFL | N |
| Historic Property: | N | Remodel Property: | N |
| Multi-Family Redevelopment: | N | | |
| Township: | 29N | Section: | 1 |
| Range: | 1W |
Location |
| Address: | 140 LYLUS LN PORT HADLOCK, WA 98339 | Mapsco: | 068/031 |
| Neighborhood: | MELWOOD TERRACE | Map ID: | |
| Neighborhood CD: | 4208 |
Owner |
| Name: | ZACHARY M HARIG | Owner ID: | 107538 |
| Mailing Address: | 140 LYLUS LN PORT HADLOCK, WA 98339-9423 | % Ownership: | 100.0000000000% |
| | | Exemptions: | |
Pay Tax Due
Select the appropriate checkbox next to the year to be paid. Multiple years may be selected.
*Convenience Fee not included
Taxes and Assessment Details
Property Tax Information as of
03/11/2026
Click on "Statement Details" to expand or collapse a tax statement.
* Please enter a valid date ** Please enter a valid date *
Statement Details |
| 2026 | 24093 | STATE - STATE LEVY (SCHOOL) | $31.62 | $31.61 | $0.00 | $0.00 | $0.00 | $63.23 |
| 2026 | 24093 | COUNTY - COUNTY LEVIES (CE, DD, VET, MH) | $12.65 | $12.63 | $0.00 | $0.00 | $0.00 | $25.28 |
| 2026 | 24093 | CONSERVE - CONSERVATION FUTURES | $0.38 | $0.38 | $0.00 | $0.00 | $0.00 | $0.76 |
| 2026 | 24093 | COROADS - COUNTY ROADS (ROADS, DIV TO CE) | $10.20 | $10.19 | $0.00 | $0.00 | $0.00 | $20.39 |
| 2026 | 24093 | PORTPT - PORT DISTRICT | $5.11 | $5.10 | $0.00 | $0.00 | $0.00 | $10.21 |
| 2026 | 24093 | PUD1 - PUD #1 | $0.82 | $0.82 | $0.00 | $0.00 | $0.00 | $1.64 |
| 2026 | 24093 | LIB1 - LIBRARY DIST #1 | $3.95 | $3.94 | $0.00 | $0.00 | $0.00 | $7.89 |
| 2026 | 24093 | HD2 - HOSP DIST #2 | $0.74 | $0.73 | $0.00 | $0.00 | $0.00 | $1.47 |
| 2026 | 24093 | SD49 - SCHOOL DIST #49 | $17.41 | $17.40 | $0.00 | $0.00 | $0.00 | $34.81 |
| 2026 | 24093 | FD1 - FIRE DISTRICT #1 | $16.74 | $16.73 | $0.00 | $0.00 | $0.00 | $33.47 |
| 2026 | 24093 | EMS1 - FIRE DIST #1 EMS | $6.44 | $6.43 | $0.00 | $0.00 | $0.00 | $12.87 |
| 2026 | 24093 | FPLCA - DNR Landowner Contingency Assmt | $3.00 | $3.00 | $0.00 | $0.00 | $0.00 | $6.00 |
| 2026 | 24093 | JCCD - JC Conservation District | $2.53 | $2.53 | $0.00 | $0.00 | $0.00 | $5.06 |
| 2026 | 24093 | NWA - Noxious Weed Assessment | $2.98 | $2.97 | $0.00 | $0.00 | $0.00 | $5.95 |
| 2026 | 24093 | WAT - Clean Water District | $13.00 | $13.00 | $0.00 | $0.00 | $0.00 | $26.00 |
| 2026 | 24093 | TOTAL: | $127.57 | $127.46 | $0.00 | $0.00 | $0.00 | $255.03 |
|
| 2026 | 24093 | $127.57 | $127.46 | $0.00 | $0.00 | $0.00 | $255.03 |
Statement Details |
| 2025 | 24157 | STATE - STATE LEVY (SCHOOL) | $31.48 | $31.47 | $0.00 | $0.00 | $62.95 | $0.00 |
| 2025 | 24157 | COUNTY - COUNTY LEVIES (CE, DD, VET, MH) | $12.38 | $12.37 | $0.00 | $0.00 | $24.75 | $0.00 |
| 2025 | 24157 | CONSERVE - CONSERVATION FUTURES | $0.37 | $0.37 | $0.00 | $0.00 | $0.74 | $0.00 |
| 2025 | 24157 | COROADS - COUNTY ROADS (ROADS, DIV TO CE) | $9.92 | $9.91 | $0.00 | $0.00 | $19.83 | $0.00 |
| 2025 | 24157 | PORTPT - PORT DISTRICT | $5.05 | $5.05 | $0.00 | $0.00 | $10.10 | $0.00 |
| 2025 | 24157 | PUD1 - PUD #1 | $0.81 | $0.81 | $0.00 | $0.00 | $1.62 | $0.00 |
| 2025 | 24157 | LIB1 - LIBRARY DIST #1 | $3.84 | $3.83 | $0.00 | $0.00 | $7.67 | $0.00 |
| 2025 | 24157 | HD2 - HOSP DIST #2 | $0.72 | $0.72 | $0.00 | $0.00 | $1.44 | $0.00 |
| 2025 | 24157 | SD49 - SCHOOL DIST #49 | $16.87 | $16.87 | $0.00 | $0.00 | $33.74 | $0.00 |
| 2025 | 24157 | FD1 - FIRE DISTRICT #1 | $16.34 | $16.33 | $0.00 | $0.00 | $32.67 | $0.00 |
| 2025 | 24157 | EMS1 - FIRE DIST #1 EMS | $6.28 | $6.28 | $0.00 | $0.00 | $12.56 | $0.00 |
| 2025 | 24157 | FPLCA - DNR Landowner Contingency Assmt | $3.00 | $3.00 | $0.00 | $0.00 | $6.00 | $0.00 |
| 2025 | 24157 | JCCD - JC Conservation District | $2.53 | $2.53 | $0.00 | $0.00 | $5.06 | $0.00 |
| 2025 | 24157 | NWA - Noxious Weed Assessment | $2.15 | $2.15 | $0.00 | $0.00 | $4.30 | $0.00 |
| 2025 | 24157 | WAT - Clean Water District | $13.00 | $13.00 | $0.00 | $0.00 | $26.00 | $0.00 |
| 2025 | 24157 | TOTAL: | $124.74 | $124.69 | $0.00 | $0.00 | $249.43 | $0.00 |
|
| 2025 | 24157 | $124.74 | $124.69 | $0.00 | $0.00 | $249.43 | $0.00 |
Statement Details |
| 2024 | 24203 | STATE - STATE LEVY (SCHOOL) | $28.93 | $28.91 | $0.00 | $0.00 | $57.84 | $0.00 |
| 2024 | 24203 | COUNTY - COUNTY LEVIES (CE, DD, VET, MH) | $12.38 | $12.37 | $0.00 | $0.00 | $24.75 | $0.00 |
| 2024 | 24203 | CONSERVE - CONSERVATION FUTURES | $0.37 | $0.37 | $0.00 | $0.00 | $0.74 | $0.00 |
| 2024 | 24203 | COROADS - COUNTY ROADS (ROADS, DIV TO CE) | $9.97 | $9.95 | $0.00 | $0.00 | $19.92 | $0.00 |
| 2024 | 24203 | PORTPT - PORT DISTRICT | $5.12 | $5.11 | $0.00 | $0.00 | $10.23 | $0.00 |
| 2024 | 24203 | PUD1 - PUD #1 | $0.82 | $0.81 | $0.00 | $0.00 | $1.63 | $0.00 |
| 2024 | 24203 | LIB1 - LIBRARY DIST #1 | $3.86 | $3.85 | $0.00 | $0.00 | $7.71 | $0.00 |
| 2024 | 24203 | HD2 - HOSP DIST #2 | $0.72 | $0.72 | $0.00 | $0.00 | $1.44 | $0.00 |
| 2024 | 24203 | SD49 - SCHOOL DIST #49 | $12.92 | $12.90 | $0.00 | $0.00 | $25.82 | $0.00 |
| 2024 | 24203 | FD1 - FIRE DISTRICT #1 | $16.37 | $16.36 | $0.00 | $0.00 | $32.73 | $0.00 |
| 2024 | 24203 | EMS1 - FIRE DIST #1 EMS | $6.25 | $6.25 | $0.00 | $0.00 | $12.50 | $0.00 |
| 2024 | 24203 | FPLCA - DNR Landowner Contingency Assmt | $3.00 | $3.00 | $0.00 | $0.00 | $6.00 | $0.00 |
| 2024 | 24203 | JCCD - JC Conservation District | $2.53 | $2.53 | $0.00 | $0.00 | $5.06 | $0.00 |
| 2024 | 24203 | NWA - Noxious Weed Assessment | $2.15 | $2.15 | $0.00 | $0.00 | $4.30 | $0.00 |
| 2024 | 24203 | WAT - Clean Water District | $12.50 | $12.50 | $0.00 | $0.00 | $25.00 | $0.00 |
| 2024 | 24203 | TOTAL: | $117.89 | $117.78 | $0.00 | $0.00 | $235.67 | $0.00 |
|
| 2024 | 24203 | $117.89 | $117.78 | $0.00 | $0.00 | $235.67 | $0.00 |
Statement Details |
| 2023 | 24242 | STATE - STATE LEVY (SCHOOL) | $29.43 | $29.42 | $0.00 | $0.00 | $58.85 | $0.00 |
| 2023 | 24242 | COUNTY - COUNTY LEVIES (CE, DD, VET, MH) | $12.86 | $12.83 | $0.00 | $0.00 | $25.69 | $0.00 |
| 2023 | 24242 | CONSERVE - CONSERVATION FUTURES | $0.39 | $0.38 | $0.00 | $0.00 | $0.77 | $0.00 |
| 2023 | 24242 | COROADS - COUNTY ROADS (ROADS, DIV TO CE) | $10.39 | $10.39 | $0.00 | $0.00 | $20.78 | $0.00 |
| 2023 | 24242 | PORTPT - PORT DISTRICT | $5.42 | $5.40 | $0.00 | $0.00 | $10.82 | $0.00 |
| 2023 | 24242 | PUD1 - PUD #1 | $0.85 | $0.85 | $0.00 | $0.00 | $1.70 | $0.00 |
| 2023 | 24242 | LIB1 - LIBRARY DIST #1 | $4.02 | $4.02 | $0.00 | $0.00 | $8.04 | $0.00 |
| 2023 | 24242 | HD2 - HOSP DIST #2 | $0.76 | $0.74 | $0.00 | $0.00 | $1.50 | $0.00 |
| 2023 | 24242 | SD49 - SCHOOL DIST #49 | $13.76 | $13.75 | $0.00 | $0.00 | $27.51 | $0.00 |
| 2023 | 24242 | FD1 - FIRE DISTRICT #1 | $10.58 | $10.58 | $0.00 | $0.00 | $21.16 | $0.00 |
| 2023 | 24242 | EMS1 - FIRE DIST #1 EMS | $4.50 | $4.50 | $0.00 | $0.00 | $9.00 | $0.00 |
| 2023 | 24242 | FPLCA - DNR Landowner Contingency Assmt | $3.00 | $3.00 | $0.00 | $0.00 | $6.00 | $0.00 |
| 2023 | 24242 | JCCD - JC Conservation District | $2.53 | $2.53 | $0.00 | $0.00 | $5.06 | $0.00 |
| 2023 | 24242 | NWA - Noxious Weed Assessment | $2.15 | $2.15 | $0.00 | $0.00 | $4.30 | $0.00 |
| 2023 | 24242 | WAT - Clean Water District | $12.00 | $12.00 | $0.00 | $0.00 | $24.00 | $0.00 |
| 2023 | 24242 | TOTAL: | $112.64 | $112.54 | $0.00 | $0.00 | $225.18 | $0.00 |
|
| 2023 | 24242 | $112.64 | $112.54 | $0.00 | $0.00 | $225.18 | $0.00 |
Values
| (+) Improvement Homesite Value: | + | $0 | |
| (+) Improvement Non-Homesite Value: | + | $0 | |
| (+) Land Homesite Value: | + | $0 | |
| (+) Land Non-Homesite Value: | + | $27,500 | |
| (+) Curr Use (HS): | + | $0 | $0 |
| (+) Curr Use (NHS): | + | $0 | $0 |
| | | -------------------------- | |
| (=) Market Value: | = | $27,500 | |
| (–) Productivity Loss: | – | $0 | |
| | | -------------------------- | |
| (=) Subtotal: | = | $27,500 | |
| (+) Senior Appraised Value: | + | $0 | |
| (+) Non-Senior Appraised Value: | + | $27,500 | |
| | | -------------------------- | |
| (=) Total Appraised Value: | = | $27,500 | |
| (–) Senior Exemption Loss: | – | $0 | |
| (–) Exemption Loss: | – | $0 | |
| | | -------------------------- | |
| (=) Taxable Value: | = | $27,500 | |
Taxing Jurisdiction
| Owner: | ZACHARY M HARIG | | |
| % Ownership: | 100.0000000000% | | |
| Total Value: | N/A | | |
| Tax Area: | 0211 - 1-49F1E1H2L1 |
| CE | COUNTY CURRENT EXPENSE | N/A | N/A | N/A | N/A | | |
| CNTYDD | DEVELOPMENTAL DISABILITIES | N/A | N/A | N/A | N/A | | |
| CNTYVET | VETERANS RELIEF | N/A | N/A | N/A | N/A | | |
| MENTAL | MENTAL HEALTH | N/A | N/A | N/A | N/A | | |
| ROADS | COUNTY ROADS | N/A | N/A | N/A | N/A | | |
| HOSP2CASH | HOSP DIST #2 GENERAL | N/A | N/A | N/A | N/A | | |
| SCH49CP | SCHOOL DIST #49 CAP PROJ | N/A | N/A | N/A | N/A | | |
| SCH49MO | SCHOOL DIST #49 EP & O | N/A | N/A | N/A | N/A | | |
| CONSERVE | CONSERVATION FUTURES | N/A | N/A | N/A | N/A | | |
| EMS1 | FIRE DIST #1 EMS | N/A | N/A | N/A | N/A | | |
| FD1 | FIRE DIST #1 GENERAL | N/A | N/A | N/A | N/A | | |
| LIB1 | LIBRARY DIST #1 GENERAL | N/A | N/A | N/A | N/A | | |
| PORTPT | PORT OF PT GENERAL | N/A | N/A | N/A | N/A | | |
| PORTPTIDD | PORT OF PT IDD 2019 | N/A | N/A | N/A | N/A | | |
| PUD1 | PUD #1 GENERAL | N/A | N/A | N/A | N/A | | |
| STATE | STATE SCHOOL PART 1 | N/A | N/A | N/A | N/A | | |
| STATE2 | STATE SCHOOL PART 2 | N/A | N/A | N/A | N/A | | |
| | Total Tax Rate: | N/A | | | | | |
| | | | | Taxes w/Current Exemptions: | N/A | | |
| | | | | Taxes w/o Exemptions: | N/A | | |
Improvement / Building
Sketch
| No sketches available for this property. |
Property Image
Land
| 1 | 4208-1155S | | 0.0000 | 0.00 | 0.00 | 0.00 | 1.00 | $27,500 | $0 |
Roll Value History
| 2026 | N/A | N/A | N/A | N/A | N/A |
| 2025 | $0 | $27,500 | $0 | $27,500 | $27,500 |
| 2024 | $0 | $26,250 | $0 | $26,250 | $26,250 |
| 2023 | $0 | $25,000 | $0 | $25,000 | $25,000 |
| 2022 | $0 | $25,000 | $0 | $25,000 | $25,000 |
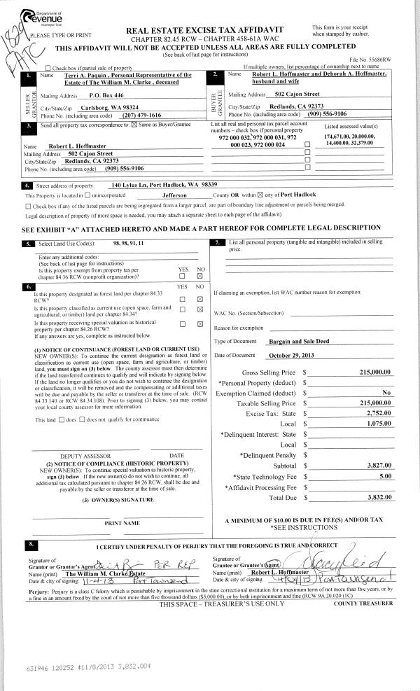
Deed and Sales History
| 1 | 08/12/2022 | SWD | Statutory Warranty Deed | HOFFMASTER FAMILY TRUST | ZACHARY M HARIG | | | $468,000.00 | 139685 | |
|   | |
| 2 | 08/17/2016 | QCD | Quit Claim Deed | ROBERT L & DEBORAH A HOFFMASTER | HOFFMASTER FAMILY TRUST | | | | 126186 | |
| 3 | 10/29/2013 | BSD | Bargain and Sale Deed | WILLIAM M CLARKE | ROBERT L & DEBORAH A HOFFMASTER | | | $215,000.00 | 120252 | |
|   | |
Payout Agreement
| No payout information available.. |