Property
Account |
| Property ID: | 34848 | Abbreviated Legal Description: | MELWOOD TERRACE LOT 32 |
| Parcel # / Geo ID: | 972000032 | Agent Code: | |
| Type: | Real | | |
| Tax Area: | 0211 - 1-49F1E1H2L1 | Land Use Code | 11 |
| Open Space: | N | DFL | N |
| Historic Property: | N | Remodel Property: | N |
| Multi-Family Redevelopment: | N | | |
| Township: | 29N | Section: | 1 |
| Range: | 1W |
Location |
| Address: | 140 LYLUS LN PORT HADLOCK, WA 98339 | Mapsco: | 068/032 |
| Neighborhood: | MELWOOD TERRACE | Map ID: | |
| Neighborhood CD: | 4208 |
Owner |
| Name: | ZACHARY M HARIG | Owner ID: | 107538 |
| Mailing Address: | 140 LYLUS LN PORT HADLOCK, WA 98339-9423 | % Ownership: | 100.0000000000% |
| | | Exemptions: | |
Pay Tax Due
There is currently No Amount Due on this property.
Taxes and Assessment Details
Property Tax Information as of
03/10/2026
Click on "Statement Details" to expand or collapse a tax statement.
* Please enter a valid date ** Please enter a valid date *
Statement Details |
| | TOTAL: | $0.00 | $0.00 | $0.00 | $0.00 | $0.00 | $0.00 |
|
| | $0.00 | $0.00 | $0.00 | $0.00 | $0.00 | $0.00 |
Values
| (+) Improvement Homesite Value: | + | $0 | |
| (+) Improvement Non-Homesite Value: | + | $359,580 | |
| (+) Land Homesite Value: | + | $0 | |
| (+) Land Non-Homesite Value: | + | $88,000 | |
| (+) Curr Use (HS): | + | $0 | $0 |
| (+) Curr Use (NHS): | + | $0 | $0 |
| | | -------------------------- | |
| (=) Market Value: | = | $447,580 | |
| (–) Productivity Loss: | – | $0 | |
| | | -------------------------- | |
| (=) Subtotal: | = | $447,580 | |
| (+) Senior Appraised Value: | + | $0 | |
| (+) Non-Senior Appraised Value: | + | $447,580 | |
| | | -------------------------- | |
| (=) Total Appraised Value: | = | $447,580 | |
| (–) Senior Exemption Loss: | – | $0 | |
| (–) Exemption Loss: | – | $0 | |
| | | -------------------------- | |
| (=) Taxable Value: | = | $447,580 | |
Taxing Jurisdiction
| Owner: | ZACHARY M HARIG | | |
| % Ownership: | 100.0000000000% | | |
| Total Value: | $447,580 | | |
| Tax Area: | 0211 - 1-49F1E1H2L1 |
| CE | COUNTY CURRENT EXPENSE | 0.9034619479 | $447,580 | $447,580 | $404.37 | | |
| CNTYDD | DEVELOPMENTAL DISABILITIES | 0.0052121823 | $447,580 | $447,580 | $2.33 | | |
| CNTYVET | VETERANS RELIEF | 0.0052777810 | $447,580 | $447,580 | $2.36 | | |
| MENTAL | MENTAL HEALTH | 0.0052121823 | $447,580 | $447,580 | $2.33 | | |
| ROADS | COUNTY ROADS | 0.7415066410 | $447,580 | $447,580 | $331.88 | | |
| ROADSCU | COUNTY ROADS TO CUR EXP | 0.0000000000 | $447,580 | $447,580 | $0.00 | | |
| HOSP2CASH | HOSP DIST #2 GENERAL | 0.0536075306 | $447,580 | $447,580 | $23.99 | | |
| SCH49CP | SCHOOL DIST #49 CAP PROJ | 0.6279093905 | $447,580 | $447,580 | $281.04 | | |
| SCH49MO | SCHOOL DIST #49 EP & O | 0.6376483602 | $447,580 | $447,580 | $285.40 | | |
| CONSERVE | CONSERVATION FUTURES | 0.0275621078 | $447,580 | $447,580 | $12.34 | | |
| EMS1 | FIRE DIST #1 EMS | 0.4679948282 | $447,580 | $447,580 | $209.47 | | |
| FD1 | FIRE DIST #1 GENERAL | 1.2171942929 | $447,580 | $447,580 | $544.79 | | |
| LIB1 | LIBRARY DIST #1 GENERAL | 0.2868827388 | $447,580 | $447,580 | $128.40 | | |
| PORTPT | PORT OF PT GENERAL | 0.1134941229 | $447,580 | $447,580 | $50.80 | | |
| PORTPTIDD | PORT OF PT IDD 2019 | 0.2577346692 | $447,580 | $447,580 | $115.36 | | |
| PUD1 | PUD #1 GENERAL | 0.0597888892 | $447,580 | $447,580 | $26.76 | | |
| STATE | STATE SCHOOL PART 1 | 1.4940692947 | $447,580 | $447,580 | $668.72 | | |
| STATE2 | STATE SCHOOL PART 2 | 0.8050170049 | $447,580 | $447,580 | $360.31 | | |
| | Total Tax Rate: | 7.7095739644 | | | | | |
| | | | | Taxes w/Current Exemptions: | $3,450.65 | | |
| | | | | Taxes w/o Exemptions: | $3,450.65 | | |
Improvement / Building
| Improvement #1: | Residential Bldg | State Code: | 11 | 1389.0 sqft | Value: | $359,580 |
| Bathrooms (#): | 2 (FULL) | Bedrooms (#): | 2 | | Exterior Wall: | PL/T1 | Fireplace: | WD ST-AVG | | Floor Construction: | FRAME | Foundation: | CONPR | | Heating/Cooling: | ELBB | Inside Verify: | YES-FIX | | Roof Cover: | METAL |   |   |
|
| | Type | Description | Class CD | Sub Class CD | Year Built | Area |
| | MA | Main Area | 5- | 15SF | 1980 | 912.0 |
| | MA2 | Second Floor Main Area | 5- | 15SF | 1980 | 477.0 |
| | HDECK | House Deck | 4 | * | 1980 | 548.0 |
| | GDET | Detached Garage | 4 | 15SF | 1980 | 816.0 |
| | CARPTF | Carport W/Floor | 3 | * | 1980 | 744.0 |
| | CARPT | Carport (Table Not Dep) | 3 | * | 1980 | 240.0 |
Sketch
| No sketches available for this property. |
Property Image
Land
| 1 | 4208-1155S | Melwood Terrace Fair Wtr Views | 0.0000 | 0.00 | 0.00 | 0.00 | 1.00 | $88,000 | $0 |
Roll Value History
| 2026 | N/A | N/A | N/A | N/A | N/A |
| 2025 | $359,580 | $88,000 | $0 | $447,580 | $447,580 |
| 2024 | $343,946 | $84,000 | $0 | $427,946 | $427,946 |
| 2023 | $328,312 | $75,000 | $0 | $403,312 | $403,312 |
| 2022 | $240,180 | $70,000 | $0 | $310,180 | $310,180 |
Deed and Sales History
| 1 | 08/12/2022 | SWD | Statutory Warranty Deed | HOFFMASTER FAMILY TRUST | ZACHARY M HARIG | | | $468,000.00 | 139685 | |
|   | |
| 2 | 08/17/2016 | QCD | Quit Claim Deed | ROBERT L & DEBORAH A HOFFMASTER | HOFFMASTER FAMILY TRUST | | | | 126186 | |
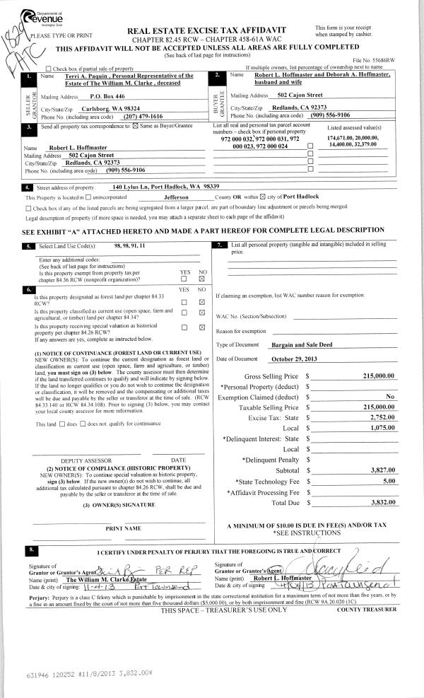
| 3 | 10/29/2013 | BSD | Bargain and Sale Deed | WILLIAM M CLARKE | ROBERT L & DEBORAH A HOFFMASTER | | | $215,000.00 | 120252 | |
|   | |
Payout Agreement
| No payout information available.. |