Property
Account |
| Property ID: | 34902 | Abbreviated Legal Description: | MONTANA ADDITION BLK 4 LOTS 1(ALL) & 3(E17') BND TGTHER BY RESTR COV 520/797 |
| Parcel # / Geo ID: | 972900401 | Agent Code: | |
| Type: | Real | | |
| Tax Area: | 0110 - C-50F1E1H2 | Land Use Code | 11 |
| Open Space: | N | DFL | N |
| Historic Property: | N | Remodel Property: | N |
| Multi-Family Redevelopment: | N | | |
| Township: | 31N | Section: | 34 |
| Range: | 1W |
Location |
| Address: | 4901 CLEVELAND ST PORT TOWNSEND, WA 98368 | Mapsco: | 081/011 |
| Neighborhood: | MONTANA ADDITION | Map ID: | |
| Neighborhood CD: | 6030 |
Owner |
| Name: | BRADLEY C HARRIS | Owner ID: | 110302 |
| Mailing Address: | CURTIS M HILL 4901 CLEVELAND ST PORT TOWNSEND, WA 98368 | % Ownership: | 100.0000000000% |
| | | Exemptions: | |
Pay Tax Due
Select the appropriate checkbox next to the year to be paid. Multiple years may be selected.
*Convenience Fee not included
Taxes and Assessment Details
Property Tax Information as of
03/12/2026
Click on "Statement Details" to expand or collapse a tax statement.
* Please enter a valid date ** Please enter a valid date *
Statement Details |
| 2026 | 24148 | STATE - STATE LEVY (SCHOOL) | $724.28 | $724.27 | $0.00 | $0.00 | $0.00 | $1448.55 |
| 2026 | 24148 | COUNTY - COUNTY LEVIES (CE, DD, VET, MH) | $289.57 | $289.55 | $0.00 | $0.00 | $0.00 | $579.12 |
| 2026 | 24148 | CONSERVE - CONSERVATION FUTURES | $8.69 | $8.68 | $0.00 | $0.00 | $0.00 | $17.37 |
| 2026 | 24148 | CITYPT - CITY OF PT | $411.01 | $411.01 | $0.00 | $0.00 | $0.00 | $822.02 |
| 2026 | 24148 | PORTPT - PORT DISTRICT | $116.96 | $116.94 | $0.00 | $0.00 | $0.00 | $233.90 |
| 2026 | 24148 | PUD1 - PUD #1 | $18.84 | $18.83 | $0.00 | $0.00 | $0.00 | $37.67 |
| 2026 | 24148 | HD2 - HOSP DIST #2 | $16.89 | $16.89 | $0.00 | $0.00 | $0.00 | $33.78 |
| 2026 | 24148 | SD50 - SCHOOL DIST #50 | $573.79 | $573.77 | $0.00 | $0.00 | $0.00 | $1147.56 |
| 2026 | 24148 | FD1 - FIRE DISTRICT #1 | $383.45 | $383.45 | $0.00 | $0.00 | $0.00 | $766.90 |
| 2026 | 24148 | EMS1 - FIRE DIST #1 EMS | $147.43 | $147.43 | $0.00 | $0.00 | $0.00 | $294.86 |
| 2026 | 24148 | FP - DNR Forest Fire Protection Assmt | $8.50 | $8.50 | $0.00 | $0.00 | $0.00 | $17.00 |
| 2026 | 24148 | FPLCA - DNR Landowner Contingency Assmt | $3.00 | $3.00 | $0.00 | $0.00 | $0.00 | $6.00 |
| 2026 | 24148 | JCCD - JC Conservation District | $2.55 | $2.55 | $0.00 | $0.00 | $0.00 | $5.10 |
| 2026 | 24148 | NWA - Noxious Weed Assessment | $2.98 | $2.97 | $0.00 | $0.00 | $0.00 | $5.95 |
| 2026 | 24148 | FP ADMIN - FP ADMIN | $0.50 | $0.00 | $0.00 | $0.00 | $0.00 | $0.50 |
| 2026 | 24148 | TOTAL: | $2708.44 | $2707.84 | $0.00 | $0.00 | $0.00 | $5416.28 |
|
| 2026 | 24148 | $2708.44 | $2707.84 | $0.00 | $0.00 | $0.00 | $5416.28 |
Statement Details |
| 2025 | 24212 | STATE - STATE LEVY (SCHOOL) | $745.34 | $745.34 | $0.00 | $0.00 | $1490.68 | $0.00 |
| 2025 | 24212 | COUNTY - COUNTY LEVIES (CE, DD, VET, MH) | $293.11 | $293.10 | $0.00 | $0.00 | $586.21 | $0.00 |
| 2025 | 24212 | CONSERVE - CONSERVATION FUTURES | $8.79 | $8.79 | $0.00 | $0.00 | $17.58 | $0.00 |
| 2025 | 24212 | CITYPT - CITY OF PT | $422.69 | $422.68 | $0.00 | $0.00 | $845.37 | $0.00 |
| 2025 | 24212 | PORTPT - PORT DISTRICT | $119.60 | $119.60 | $0.00 | $0.00 | $239.20 | $0.00 |
| 2025 | 24212 | PUD1 - PUD #1 | $19.18 | $19.18 | $0.00 | $0.00 | $38.36 | $0.00 |
| 2025 | 24212 | HD2 - HOSP DIST #2 | $17.10 | $17.10 | $0.00 | $0.00 | $34.20 | $0.00 |
| 2025 | 24212 | SD50 - SCHOOL DIST #50 | $544.72 | $544.71 | $0.00 | $0.00 | $1089.43 | $0.00 |
| 2025 | 24212 | FD1 - FIRE DISTRICT #1 | $386.78 | $386.77 | $0.00 | $0.00 | $773.55 | $0.00 |
| 2025 | 24212 | EMS1 - FIRE DIST #1 EMS | $148.77 | $148.76 | $0.00 | $0.00 | $297.53 | $0.00 |
| 2025 | 24212 | FP - DNR Forest Fire Protection Assmt | $8.50 | $8.50 | $0.00 | $0.00 | $17.00 | $0.00 |
| 2025 | 24212 | FPLCA - DNR Landowner Contingency Assmt | $3.00 | $3.00 | $0.00 | $0.00 | $6.00 | $0.00 |
| 2025 | 24212 | JCCD - JC Conservation District | $2.55 | $2.55 | $0.00 | $0.00 | $5.10 | $0.00 |
| 2025 | 24212 | NWA - Noxious Weed Assessment | $2.15 | $2.15 | $0.00 | $0.00 | $4.30 | $0.00 |
| 2025 | 24212 | FP ADMIN - FP ADMIN | $0.50 | $0.00 | $0.00 | $0.00 | $0.50 | $0.00 |
| 2025 | 24212 | TOTAL: | $2722.78 | $2722.23 | $0.00 | $0.00 | $5445.01 | $0.00 |
|
| 2025 | 24212 | $2722.78 | $2722.23 | $0.00 | $0.00 | $5445.01 | $0.00 |
Statement Details |
| 2024 | 24258 | STATE - STATE LEVY (SCHOOL) | $645.10 | $645.10 | $0.00 | $0.00 | $1290.20 | $0.00 |
| 2024 | 24258 | COUNTY - COUNTY LEVIES (CE, DD, VET, MH) | $276.05 | $276.05 | $0.00 | $0.00 | $552.10 | $0.00 |
| 2024 | 24258 | CONSERVE - CONSERVATION FUTURES | $8.28 | $8.28 | $0.00 | $0.00 | $16.56 | $0.00 |
| 2024 | 24258 | CITYPT - CITY OF PT | $394.44 | $394.42 | $0.00 | $0.00 | $788.86 | $0.00 |
| 2024 | 24258 | PORTPT - PORT DISTRICT | $114.03 | $114.01 | $0.00 | $0.00 | $228.04 | $0.00 |
| 2024 | 24258 | PUD1 - PUD #1 | $18.13 | $18.13 | $0.00 | $0.00 | $36.26 | $0.00 |
| 2024 | 24258 | HD2 - HOSP DIST #2 | $16.11 | $16.10 | $0.00 | $0.00 | $32.21 | $0.00 |
| 2024 | 24258 | SD50 - SCHOOL DIST #50 | $521.93 | $521.91 | $0.00 | $0.00 | $1043.84 | $0.00 |
| 2024 | 24258 | FD1 - FIRE DISTRICT #1 | $365.00 | $365.00 | $0.00 | $0.00 | $730.00 | $0.00 |
| 2024 | 24258 | EMS1 - FIRE DIST #1 EMS | $139.42 | $139.41 | $0.00 | $0.00 | $278.83 | $0.00 |
| 2024 | 24258 | FP - DNR Forest Fire Protection Assmt | $8.50 | $8.50 | $0.00 | $0.00 | $17.00 | $0.00 |
| 2024 | 24258 | FPLCA - DNR Landowner Contingency Assmt | $3.00 | $3.00 | $0.00 | $0.00 | $6.00 | $0.00 |
| 2024 | 24258 | JCCD - JC Conservation District | $2.55 | $2.55 | $0.00 | $0.00 | $5.10 | $0.00 |
| 2024 | 24258 | NWA - Noxious Weed Assessment | $2.15 | $2.15 | $0.00 | $0.00 | $4.30 | $0.00 |
| 2024 | 24258 | FP ADMIN - FP ADMIN | $0.50 | $0.00 | $0.00 | $0.00 | $0.50 | $0.00 |
| 2024 | 24258 | TOTAL: | $2515.19 | $2514.61 | $0.00 | $0.00 | $5029.80 | $0.00 |
|
| 2024 | 24258 | $2515.19 | $2514.61 | $0.00 | $0.00 | $5029.80 | $0.00 |
Statement Details |
| 2023 | 24297 | STATE - STATE LEVY (SCHOOL) | $164.91 | $164.91 | $0.00 | $0.00 | $329.82 | $0.00 |
| 2023 | 24297 | COUNTY - COUNTY LEVIES (CE, DD, VET, MH) | $71.97 | $71.96 | $0.00 | $0.00 | $143.93 | $0.00 |
| 2023 | 24297 | CONSERVE - CONSERVATION FUTURES | $2.16 | $2.16 | $0.00 | $0.00 | $4.32 | $0.00 |
| 2023 | 24297 | CITYPT - CITY OF PT | $101.72 | $101.69 | $0.00 | $0.00 | $203.41 | $0.00 |
| 2023 | 24297 | PORTPT - PORT DISTRICT | $30.32 | $30.31 | $0.00 | $0.00 | $60.63 | $0.00 |
| 2023 | 24297 | PUD1 - PUD #1 | $4.77 | $4.77 | $0.00 | $0.00 | $9.54 | $0.00 |
| 2023 | 24297 | HD2 - HOSP DIST #2 | $4.21 | $4.19 | $0.00 | $0.00 | $8.40 | $0.00 |
| 2023 | 24297 | SD50 - SCHOOL DIST #50 | $130.86 | $130.86 | $0.00 | $0.00 | $261.72 | $0.00 |
| 2023 | 24297 | FD1 - FIRE DISTRICT #1 | $59.28 | $59.28 | $0.00 | $0.00 | $118.56 | $0.00 |
| 2023 | 24297 | EMS1 - FIRE DIST #1 EMS | $25.22 | $25.21 | $0.00 | $0.00 | $50.43 | $0.00 |
| 2023 | 24297 | FPLCA - DNR Landowner Contingency Assmt | $3.00 | $3.00 | $0.00 | $0.00 | $6.00 | $0.00 |
| 2023 | 24297 | JCCD - JC Conservation District | $2.55 | $2.55 | $0.00 | $0.00 | $5.10 | $0.00 |
| 2023 | 24297 | NWA - Noxious Weed Assessment | $2.15 | $2.15 | $0.00 | $0.00 | $4.30 | $0.00 |
| 2023 | 24297 | TOTAL: | $603.12 | $603.04 | $0.00 | $0.00 | $1206.16 | $0.00 |
|
| 2023 | 24297 | $603.12 | $603.04 | $0.00 | $0.00 | $1206.16 | $0.00 |
Values
| (+) Improvement Homesite Value: | + | $0 | |
| (+) Improvement Non-Homesite Value: | + | $439,555 | |
| (+) Land Homesite Value: | + | $0 | |
| (+) Land Non-Homesite Value: | + | $190,500 | |
| (+) Curr Use (HS): | + | $0 | $0 |
| (+) Curr Use (NHS): | + | $0 | $0 |
| | | -------------------------- | |
| (=) Market Value: | = | $630,055 | |
| (–) Productivity Loss: | – | $0 | |
| | | -------------------------- | |
| (=) Subtotal: | = | $630,055 | |
| (+) Senior Appraised Value: | + | $0 | |
| (+) Non-Senior Appraised Value: | + | $630,055 | |
| | | -------------------------- | |
| (=) Total Appraised Value: | = | $630,055 | |
| (–) Senior Exemption Loss: | – | $0 | |
| (–) Exemption Loss: | – | $0 | |
| | | -------------------------- | |
| (=) Taxable Value: | = | $630,055 | |
Taxing Jurisdiction
| Owner: | BRADLEY C HARRIS | | |
| % Ownership: | 100.0000000000% | | |
| Total Value: | $630,055 | | |
| Tax Area: | 0110 - C-50F1E1H2 |
| CE | COUNTY CURRENT EXPENSE | 0.9034619479 | $630,055 | $630,055 | $569.23 | | |
| CNTYDD | DEVELOPMENTAL DISABILITIES | 0.0052121823 | $630,055 | $630,055 | $3.28 | | |
| CNTYVET | VETERANS RELIEF | 0.0052777810 | $630,055 | $630,055 | $3.33 | | |
| MENTAL | MENTAL HEALTH | 0.0052121823 | $630,055 | $630,055 | $3.28 | | |
| PTGEN | CITY OF PT GENERAL | 0.8551967795 | $630,055 | $630,055 | $538.82 | | |
| PTLLL | CITY OF PT - LIBRARY LID LIFT | 0.4010114288 | $630,055 | $630,055 | $252.66 | | |
| PTMVBOND | CITY OF PT MV BOND | 0.0484717981 | $630,055 | $630,055 | $30.54 | | |
| HOSP2CASH | HOSP DIST #2 GENERAL | 0.0536075306 | $630,055 | $630,055 | $33.78 | | |
| SCH50BOND | SCHOOL DIST #50 BOND 2016 | 0.5377451389 | $630,055 | $630,055 | $338.81 | | |
| SCH50CP | SCHOOL DIST #50 CAP PROJ | 0.4573475088 | $630,055 | $630,055 | $288.15 | | |
| SCH50MO | SCHOOL DIST #50 EP & O | 0.8262822886 | $630,055 | $630,055 | $520.60 | | |
| CONSERVE | CONSERVATION FUTURES | 0.0275621078 | $630,055 | $630,055 | $17.37 | | |
| EMS1 | FIRE DIST #1 EMS | 0.4679948282 | $630,055 | $630,055 | $294.86 | | |
| FD1 | FIRE DIST #1 GENERAL | 1.2171942929 | $630,055 | $630,055 | $766.90 | | |
| PORTPT | PORT OF PT GENERAL | 0.1134941229 | $630,055 | $630,055 | $71.51 | | |
| PORTPTIDD | PORT OF PT IDD 2019 | 0.2577346692 | $630,055 | $630,055 | $162.39 | | |
| PUD1 | PUD #1 GENERAL | 0.0597888892 | $630,055 | $630,055 | $37.67 | | |
| STATE | STATE SCHOOL PART 1 | 1.4940692947 | $630,055 | $630,055 | $941.35 | | |
| STATE2 | STATE SCHOOL PART 2 | 0.8050170049 | $630,055 | $630,055 | $507.20 | | |
| | Total Tax Rate: | 8.5416817766 | | | | | |
| | | | | Taxes w/Current Exemptions: | $5,381.73 | | |
| | | | | Taxes w/o Exemptions: | $5,381.73 | | |
Improvement / Building
| Improvement #1: | Residential Bldg | State Code: | 11 | 1920.0 sqft | Value: | $439,555 |
| | Type | Description | Class CD | Sub Class CD | Year Built | Area |
| | MA | Main Area | 4+ | 1S | 2022 | 960.0 |
| | MA2 | Second Floor Main Area | 4 | 2S | 2022 | 960.0 |
| | HDECK | House Deck | 4 | 2S | 2022 | 80.0 |
| | HDECK | House Deck | 4 | | 2022 | 144.0 |
| | HDECK | House Deck | 4 | 2S | 2024 | 160.0 |
Sketch
Property Image
Land
| 1 | 6030-1165L | | 0.0000 | 0.00 | 0.00 | 0.00 | 1.00 | $126,500 | $0 |
| 2 | 6030-1175L | | 0.0000 | 0.00 | 0.00 | 0.00 | 1.00 | $64,000 | $0 |
Roll Value History
| 2026 | N/A | N/A | N/A | N/A | N/A |
| 2025 | $439,555 | $190,500 | $0 | $630,055 | $630,055 |
| 2024 | $428,467 | $193,160 | $0 | $621,627 | $621,627 |
| 2023 | $405,662 | $152,000 | $0 | $557,662 | $557,662 |
| 2022 | $18,100 | $122,000 | $0 | $140,100 | $140,100 |
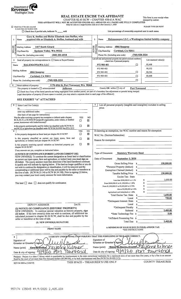
Deed and Sales History
| 1 | 01/23/2024 | SWD | Statutory Warranty Deed | HALEMANNAWA LLC | BRADLEY C HARRIS | | | $670,000.00 | 142157 | |
| 2 | 09/03/2020 | SWD | Statutory Warranty Deed | GARY K STEFFAN | HALEMANNAWA LLC | | | $150,000.00 | 135045 | WOP |
|   | |
| 3 | 11/16/1994 | BLA | Boundary Line Adjustment | STEFFAN, GARY K/ELIZABETH | STEFFAN, GARY K/ELIZABETH A | 0 | 0 | $0.00 | 76083 | 0 |
| 4 | 09/27/1994 | SWD | Statutory Warranty Deed | ARCHER, GLEN | STEFFAN, GARY K/ELIZABETH A | 0 | 0 | $55,000.00 | 75250 | 0 |
Payout Agreement
| No payout information available.. |