Property
Account |
| Property ID: | 34904 | Abbreviated Legal Description: | MONTANA ADDITION BLK 4 LOTS 3(LS E17'),5(LS W17') BND TGTHER BY RESTR COV 520/797 |
| Parcel # / Geo ID: | 972900403 | Agent Code: | |
| Type: | Real | | |
| Tax Area: | 0110 - C-50F1E1H2 | Land Use Code | 11 |
| Open Space: | N | DFL | N |
| Historic Property: | N | Remodel Property: | N |
| Multi-Family Redevelopment: | N | | |
| Township: | 31N | Section: | 34 |
| Range: | 1W |
Location |
| Address: | 1152 49TH ST PORT TOWNSEND, WA 98368 | Mapsco: | 081/014 |
| Neighborhood: | MONTANA ADDITION | Map ID: | |
| Neighborhood CD: | 6030 |
Owner |
| Name: | HALEMANNAWA LLC | Owner ID: | 103282 |
| Mailing Address: | 4900 SHERIDAN ST PORT TOWNSEND, WA 98368-2051 | % Ownership: | 100.0000000000% |
| | | Exemptions: | |
Pay Tax Due
There is currently No Amount Due on this property.
Taxes and Assessment Details
Property Tax Information as of
03/10/2026
Click on "Statement Details" to expand or collapse a tax statement.
* Please enter a valid date ** Please enter a valid date *
Statement Details |
| | TOTAL: | $0.00 | $0.00 | $0.00 | $0.00 | $0.00 | $0.00 |
|
| | $0.00 | $0.00 | $0.00 | $0.00 | $0.00 | $0.00 |
Values
| (+) Improvement Homesite Value: | + | $0 | |
| (+) Improvement Non-Homesite Value: | + | $104,304 | |
| (+) Land Homesite Value: | + | $0 | |
| (+) Land Non-Homesite Value: | + | $147,600 | |
| (+) Curr Use (HS): | + | $0 | $0 |
| (+) Curr Use (NHS): | + | $0 | $0 |
| | | -------------------------- | |
| (=) Market Value: | = | $251,904 | |
| (–) Productivity Loss: | – | $0 | |
| | | -------------------------- | |
| (=) Subtotal: | = | $251,904 | |
| (+) Senior Appraised Value: | + | $0 | |
| (+) Non-Senior Appraised Value: | + | $251,904 | |
| | | -------------------------- | |
| (=) Total Appraised Value: | = | $251,904 | |
| (–) Senior Exemption Loss: | – | $0 | |
| (–) Exemption Loss: | – | $0 | |
| | | -------------------------- | |
| (=) Taxable Value: | = | $251,904 | |
Taxing Jurisdiction
| Owner: | HALEMANNAWA LLC | | |
| % Ownership: | 100.0000000000% | | |
| Total Value: | $251,904 | | |
| Tax Area: | 0110 - C-50F1E1H2 |
| CE | COUNTY CURRENT EXPENSE | 0.9034619479 | $251,904 | $251,904 | $227.59 | | |
| CNTYDD | DEVELOPMENTAL DISABILITIES | 0.0052121823 | $251,904 | $251,904 | $1.31 | | |
| CNTYVET | VETERANS RELIEF | 0.0052777810 | $251,904 | $251,904 | $1.33 | | |
| MENTAL | MENTAL HEALTH | 0.0052121823 | $251,904 | $251,904 | $1.31 | | |
| PTGEN | CITY OF PT GENERAL | 0.8551967795 | $251,904 | $251,904 | $215.43 | | |
| PTLLL | CITY OF PT - LIBRARY LID LIFT | 0.4010114288 | $251,904 | $251,904 | $101.02 | | |
| PTMVBOND | CITY OF PT MV BOND | 0.0484717981 | $251,904 | $251,904 | $12.21 | | |
| HOSP2CASH | HOSP DIST #2 GENERAL | 0.0536075306 | $251,904 | $251,904 | $13.50 | | |
| SCH50BOND | SCHOOL DIST #50 BOND 2016 | 0.5377451389 | $251,904 | $251,904 | $135.46 | | |
| SCH50CP | SCHOOL DIST #50 CAP PROJ | 0.4573475088 | $251,904 | $251,904 | $115.21 | | |
| SCH50MO | SCHOOL DIST #50 EP & O | 0.8262822886 | $251,904 | $251,904 | $208.14 | | |
| CONSERVE | CONSERVATION FUTURES | 0.0275621078 | $251,904 | $251,904 | $6.94 | | |
| EMS1 | FIRE DIST #1 EMS | 0.4679948282 | $251,904 | $251,904 | $117.89 | | |
| FD1 | FIRE DIST #1 GENERAL | 1.2171942929 | $251,904 | $251,904 | $306.62 | | |
| PORTPT | PORT OF PT GENERAL | 0.1134941229 | $251,904 | $251,904 | $28.59 | | |
| PORTPTIDD | PORT OF PT IDD 2019 | 0.2577346692 | $251,904 | $251,904 | $64.92 | | |
| PUD1 | PUD #1 GENERAL | 0.0597888892 | $251,904 | $251,904 | $15.06 | | |
| STATE | STATE SCHOOL PART 1 | 1.4940692947 | $251,904 | $251,904 | $376.36 | | |
| STATE2 | STATE SCHOOL PART 2 | 0.8050170049 | $251,904 | $251,904 | $202.79 | | |
| | Total Tax Rate: | 8.5416817766 | | | | | |
| | | | | Taxes w/Current Exemptions: | $2,151.68 | | |
| | | | | Taxes w/o Exemptions: | $2,151.68 | | |
Improvement / Building
| Improvement #1: | Residential Bldg | State Code: | 11 | 960.0 sqft | Value: | $104,304 |
| Bathrooms (#): | 2 (FULL) | Bedrooms (#): | 2 | | Exterior Wall: | METAL | Floor Construction: | FRAME | | Foundation: | CONPR | Heating/Cooling: | HPUMP | | Interior Finish: | FIN | Roof Cover: | COMP |
|
| | Type | Description | Class CD | Sub Class CD | Year Built | Area |
| | MA | Main Area | 4+ | 1S | 2025 | 960.0 |
| | HWPOR | House Wood Porch | 4 | 1S | 2025 | 64.0 |
Sketch
Property Image
Land
| 1 | 6030-1185L | No View Lots | 0.0000 | 0.00 | 0.00 | 0.00 | 1.00 | $17,600 | $0 |
| 2 | 6030-1175L | Terr View/Good Qual Lots | 0.0000 | 0.00 | 0.00 | 0.00 | 1.00 | $130,000 | $0 |
Roll Value History
| 2026 | N/A | N/A | N/A | N/A | N/A |
| 2025 | $104,304 | $147,600 | $0 | $251,904 | $251,904 |
| 2024 | $0 | $116,600 | $0 | $116,600 | $116,600 |
| 2023 | $0 | $106,000 | $0 | $106,000 | $106,000 |
| 2022 | $0 | $106,000 | $0 | $106,000 | $106,000 |
Deed and Sales History
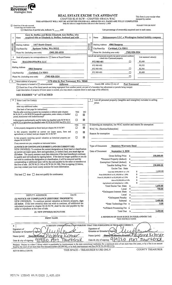
| 1 | 09/03/2020 | SWD | Statutory Warranty Deed | GARY K STEFFAN | HALEMANNAWA LLC | | | $150,000.00 | 135045 | WOP |
|   | |
Payout Agreement
| No payout information available.. |