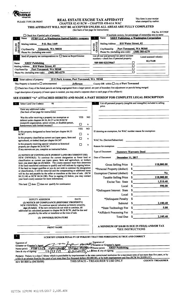
Property
Account |
| Property ID: | 34935 | Abbreviated Legal Description: | MONTANA ADDITION BLK 17 LOTS 6 & 8 SUBJ/EASE |
| Parcel # / Geo ID: | 972901706 | Agent Code: | |
| Type: | Real | | |
| Tax Area: | 0110 - C-50F1E1H2 | Land Use Code | 11 |
| Open Space: | N | DFL | N |
| Historic Property: | N | Remodel Property: | N |
| Multi-Family Redevelopment: | N | | |
| Township: | 31N | Section: | 34 |
| Range: | 1W |
Location |
| Address: | 5152 GRANT ST PORT TOWNSEND, WA 98368 | Mapsco: | 081/073 |
| Neighborhood: | MONTANA ADDITION | Map ID: | |
| Neighborhood CD: | 6030 |
Owner |
| Name: | FIONA LEE JTWROS | Owner ID: | 104687 |
| Mailing Address: | MARIEKA M KLAWITTER 108 N 54TH ST SEATTLE, WA 98103-6012 | % Ownership: | 100.0000000000% |
| | | Exemptions: | |
Pay Tax Due
Select the appropriate checkbox next to the year to be paid. Multiple years may be selected.
*Convenience Fee not included
Taxes and Assessment Details
Property Tax Information as of
03/11/2026
Click on "Statement Details" to expand or collapse a tax statement.
* Please enter a valid date ** Please enter a valid date *
Statement Details |
| 2026 | 24181 | STATE - STATE LEVY (SCHOOL) | $534.77 | $534.76 | $0.00 | $0.00 | $0.00 | $1069.53 |
| 2026 | 24181 | COUNTY - COUNTY LEVIES (CE, DD, VET, MH) | $213.80 | $213.79 | $0.00 | $0.00 | $0.00 | $427.59 |
| 2026 | 24181 | CONSERVE - CONSERVATION FUTURES | $6.41 | $6.41 | $0.00 | $0.00 | $0.00 | $12.82 |
| 2026 | 24181 | CITYPT - CITY OF PT | $303.48 | $303.45 | $0.00 | $0.00 | $0.00 | $606.93 |
| 2026 | 24181 | PORTPT - PORT DISTRICT | $86.35 | $86.35 | $0.00 | $0.00 | $0.00 | $172.70 |
| 2026 | 24181 | PUD1 - PUD #1 | $13.91 | $13.90 | $0.00 | $0.00 | $0.00 | $27.81 |
| 2026 | 24181 | HD2 - HOSP DIST #2 | $12.47 | $12.47 | $0.00 | $0.00 | $0.00 | $24.94 |
| 2026 | 24181 | SD50 - SCHOOL DIST #50 | $423.65 | $423.65 | $0.00 | $0.00 | $0.00 | $847.30 |
| 2026 | 24181 | FD1 - FIRE DISTRICT #1 | $283.12 | $283.12 | $0.00 | $0.00 | $0.00 | $566.24 |
| 2026 | 24181 | EMS1 - FIRE DIST #1 EMS | $108.86 | $108.85 | $0.00 | $0.00 | $0.00 | $217.71 |
| 2026 | 24181 | JCCD - JC Conservation District | $2.55 | $2.55 | $0.00 | $0.00 | $0.00 | $5.10 |
| 2026 | 24181 | NWA - Noxious Weed Assessment | $2.98 | $2.97 | $0.00 | $0.00 | $0.00 | $5.95 |
| 2026 | 24181 | TOTAL: | $1992.35 | $1992.27 | $0.00 | $0.00 | $0.00 | $3984.62 |
|
| 2026 | 24181 | $1992.35 | $1992.27 | $0.00 | $0.00 | $0.00 | $3984.62 |
Statement Details |
| 2025 | 24245 | STATE - STATE LEVY (SCHOOL) | $555.32 | $555.32 | $0.00 | $0.00 | $1110.64 | $0.00 |
| 2025 | 24245 | COUNTY - COUNTY LEVIES (CE, DD, VET, MH) | $218.39 | $218.36 | $0.00 | $0.00 | $436.75 | $0.00 |
| 2025 | 24245 | CONSERVE - CONSERVATION FUTURES | $6.55 | $6.55 | $0.00 | $0.00 | $13.10 | $0.00 |
| 2025 | 24245 | CITYPT - CITY OF PT | $314.92 | $314.92 | $0.00 | $0.00 | $629.84 | $0.00 |
| 2025 | 24245 | PORTPT - PORT DISTRICT | $89.12 | $89.10 | $0.00 | $0.00 | $178.22 | $0.00 |
| 2025 | 24245 | PUD1 - PUD #1 | $14.29 | $14.29 | $0.00 | $0.00 | $28.58 | $0.00 |
| 2025 | 24245 | HD2 - HOSP DIST #2 | $12.74 | $12.74 | $0.00 | $0.00 | $25.48 | $0.00 |
| 2025 | 24245 | SD50 - SCHOOL DIST #50 | $405.85 | $405.84 | $0.00 | $0.00 | $811.69 | $0.00 |
| 2025 | 24245 | FD1 - FIRE DISTRICT #1 | $288.17 | $288.17 | $0.00 | $0.00 | $576.34 | $0.00 |
| 2025 | 24245 | EMS1 - FIRE DIST #1 EMS | $110.84 | $110.84 | $0.00 | $0.00 | $221.68 | $0.00 |
| 2025 | 24245 | JCCD - JC Conservation District | $2.55 | $2.55 | $0.00 | $0.00 | $5.10 | $0.00 |
| 2025 | 24245 | NWA - Noxious Weed Assessment | $2.15 | $2.15 | $0.00 | $0.00 | $4.30 | $0.00 |
| 2025 | 24245 | TOTAL: | $2020.89 | $2020.83 | $0.00 | $0.00 | $4041.72 | $0.00 |
|
| 2025 | 24245 | $2020.89 | $2020.83 | $0.00 | $0.00 | $4041.72 | $0.00 |
Statement Details |
| 2024 | 24291 | STATE - STATE LEVY (SCHOOL) | $495.82 | $495.82 | $0.00 | $0.00 | $991.64 | $0.00 |
| 2024 | 24291 | COUNTY - COUNTY LEVIES (CE, DD, VET, MH) | $212.18 | $212.17 | $0.00 | $0.00 | $424.35 | $0.00 |
| 2024 | 24291 | CONSERVE - CONSERVATION FUTURES | $6.36 | $6.36 | $0.00 | $0.00 | $12.72 | $0.00 |
| 2024 | 24291 | CITYPT - CITY OF PT | $303.16 | $303.15 | $0.00 | $0.00 | $606.31 | $0.00 |
| 2024 | 24291 | PORTPT - PORT DISTRICT | $87.64 | $87.63 | $0.00 | $0.00 | $175.27 | $0.00 |
| 2024 | 24291 | PUD1 - PUD #1 | $13.94 | $13.93 | $0.00 | $0.00 | $27.87 | $0.00 |
| 2024 | 24291 | HD2 - HOSP DIST #2 | $12.38 | $12.38 | $0.00 | $0.00 | $24.76 | $0.00 |
| 2024 | 24291 | SD50 - SCHOOL DIST #50 | $401.16 | $401.14 | $0.00 | $0.00 | $802.30 | $0.00 |
| 2024 | 24291 | FD1 - FIRE DISTRICT #1 | $280.54 | $280.53 | $0.00 | $0.00 | $561.07 | $0.00 |
| 2024 | 24291 | EMS1 - FIRE DIST #1 EMS | $107.16 | $107.15 | $0.00 | $0.00 | $214.31 | $0.00 |
| 2024 | 24291 | JCCD - JC Conservation District | $2.55 | $2.55 | $0.00 | $0.00 | $5.10 | $0.00 |
| 2024 | 24291 | NWA - Noxious Weed Assessment | $2.15 | $2.15 | $0.00 | $0.00 | $4.30 | $0.00 |
| 2024 | 24291 | TOTAL: | $1925.04 | $1924.96 | $0.00 | $0.00 | $3850.00 | $0.00 |
|
| 2024 | 24291 | $1925.04 | $1924.96 | $0.00 | $0.00 | $3850.00 | $0.00 |
Statement Details |
| 2023 | 24330 | STATE - STATE LEVY (SCHOOL) | $498.64 | $498.62 | $0.00 | $0.00 | $997.26 | $0.00 |
| 2023 | 24330 | COUNTY - COUNTY LEVIES (CE, DD, VET, MH) | $217.60 | $217.57 | $0.00 | $0.00 | $435.17 | $0.00 |
| 2023 | 24330 | CONSERVE - CONSERVATION FUTURES | $6.53 | $6.52 | $0.00 | $0.00 | $13.05 | $0.00 |
| 2023 | 24330 | CITYPT - CITY OF PT | $307.53 | $307.52 | $0.00 | $0.00 | $615.05 | $0.00 |
| 2023 | 24330 | PORTPT - PORT DISTRICT | $91.67 | $91.65 | $0.00 | $0.00 | $183.32 | $0.00 |
| 2023 | 24330 | PUD1 - PUD #1 | $14.43 | $14.42 | $0.00 | $0.00 | $28.85 | $0.00 |
| 2023 | 24330 | HD2 - HOSP DIST #2 | $12.70 | $12.69 | $0.00 | $0.00 | $25.39 | $0.00 |
| 2023 | 24330 | SD50 - SCHOOL DIST #50 | $395.68 | $395.67 | $0.00 | $0.00 | $791.35 | $0.00 |
| 2023 | 24330 | FD1 - FIRE DISTRICT #1 | $179.25 | $179.25 | $0.00 | $0.00 | $358.50 | $0.00 |
| 2023 | 24330 | EMS1 - FIRE DIST #1 EMS | $76.25 | $76.25 | $0.00 | $0.00 | $152.50 | $0.00 |
| 2023 | 24330 | JCCD - JC Conservation District | $2.55 | $2.55 | $0.00 | $0.00 | $5.10 | $0.00 |
| 2023 | 24330 | NWA - Noxious Weed Assessment | $2.15 | $2.15 | $0.00 | $0.00 | $4.30 | $0.00 |
| 2023 | 24330 | TOTAL: | $1804.98 | $1804.86 | $0.00 | $0.00 | $3609.84 | $0.00 |
|
| 2023 | 24330 | $1804.98 | $1804.86 | $0.00 | $0.00 | $3609.84 | $0.00 |
Values
| (+) Improvement Homesite Value: | + | $0 | |
| (+) Improvement Non-Homesite Value: | + | $270,197 | |
| (+) Land Homesite Value: | + | $0 | |
| (+) Land Non-Homesite Value: | + | $195,000 | |
| (+) Curr Use (HS): | + | $0 | $0 |
| (+) Curr Use (NHS): | + | $0 | $0 |
| | | -------------------------- | |
| (=) Market Value: | = | $465,197 | |
| (–) Productivity Loss: | – | $0 | |
| | | -------------------------- | |
| (=) Subtotal: | = | $465,197 | |
| (+) Senior Appraised Value: | + | $0 | |
| (+) Non-Senior Appraised Value: | + | $465,197 | |
| | | -------------------------- | |
| (=) Total Appraised Value: | = | $465,197 | |
| (–) Senior Exemption Loss: | – | $0 | |
| (–) Exemption Loss: | – | $0 | |
| | | -------------------------- | |
| (=) Taxable Value: | = | $465,197 | |
Taxing Jurisdiction
| Owner: | FIONA LEE JTWROS | | |
| % Ownership: | 100.0000000000% | | |
| Total Value: | $465,197 | | |
| Tax Area: | 0110 - C-50F1E1H2 |
| CE | COUNTY CURRENT EXPENSE | 0.9034619479 | $465,197 | $465,197 | $420.29 | | |
| CNTYDD | DEVELOPMENTAL DISABILITIES | 0.0052121823 | $465,197 | $465,197 | $2.42 | | |
| CNTYVET | VETERANS RELIEF | 0.0052777810 | $465,197 | $465,197 | $2.46 | | |
| MENTAL | MENTAL HEALTH | 0.0052121823 | $465,197 | $465,197 | $2.42 | | |
| PTGEN | CITY OF PT GENERAL | 0.8551967795 | $465,197 | $465,197 | $397.83 | | |
| PTLLL | CITY OF PT - LIBRARY LID LIFT | 0.4010114288 | $465,197 | $465,197 | $186.55 | | |
| PTMVBOND | CITY OF PT MV BOND | 0.0484717981 | $465,197 | $465,197 | $22.55 | | |
| HOSP2CASH | HOSP DIST #2 GENERAL | 0.0536075306 | $465,197 | $465,197 | $24.94 | | |
| SCH50BOND | SCHOOL DIST #50 BOND 2016 | 0.5377451389 | $465,197 | $465,197 | $250.16 | | |
| SCH50CP | SCHOOL DIST #50 CAP PROJ | 0.4573475088 | $465,197 | $465,197 | $212.76 | | |
| SCH50MO | SCHOOL DIST #50 EP & O | 0.8262822886 | $465,197 | $465,197 | $384.38 | | |
| CONSERVE | CONSERVATION FUTURES | 0.0275621078 | $465,197 | $465,197 | $12.82 | | |
| EMS1 | FIRE DIST #1 EMS | 0.4679948282 | $465,197 | $465,197 | $217.71 | | |
| FD1 | FIRE DIST #1 GENERAL | 1.2171942929 | $465,197 | $465,197 | $566.24 | | |
| PORTPT | PORT OF PT GENERAL | 0.1134941229 | $465,197 | $465,197 | $52.80 | | |
| PORTPTIDD | PORT OF PT IDD 2019 | 0.2577346692 | $465,197 | $465,197 | $119.90 | | |
| PUD1 | PUD #1 GENERAL | 0.0597888892 | $465,197 | $465,197 | $27.81 | | |
| STATE | STATE SCHOOL PART 1 | 1.4940692947 | $465,197 | $465,197 | $695.04 | | |
| STATE2 | STATE SCHOOL PART 2 | 0.8050170049 | $465,197 | $465,197 | $374.49 | | |
| | Total Tax Rate: | 8.5416817766 | | | | | |
| | | | | Taxes w/Current Exemptions: | $3,973.57 | | |
| | | | | Taxes w/o Exemptions: | $3,973.57 | | |
Improvement / Building
| Improvement #1: | Residential Bldg | State Code: | 11 | 594.0 sqft | Value: | $201,864 |
| Bathrooms (#): | 1 (FULL) | Bedrooms (#): | 1 | | Exterior Wall: | SI/ST | Fireplace: | PROPS-GOOD | | Floor Construction: | FRAME | Foundation: | CONPR | | Heating/Cooling: | WD/NO | Roof Cover: | METAL |
|
| | Type | Description | Class CD | Sub Class CD | Year Built | Area |
| | MA | Main Area | 4 | 2S | 2014 | 594.0 |
| | GBLTIN | Builtin Garage | 4 | 2S | 2014 | 594.0 |
| | HBAL | House Balcony | 4 | 2S | 2014 | 156.0 |
| | CONCD | Concrete Drive | 3 | * | 2014 | 230.0 |
| Improvement #2: | Residential Bldg | State Code: | 11 | 204.0 sqft | Value: | $68,333 |
| Bathrooms (#): | 1 (FULL) | Bedrooms (#): | 1 | | Exterior Wall: | SI/ST | Fireplace: | WD ST-GOOD | | Floor Construction: | FRAME | Foundation: | CONPR | | Heating/Cooling: | WD/NO | Roof Cover: | METAL |
|
Sketch
Property Image
Land
| 1 | 6030-1185L | | 0.0000 | 0.00 | 0.00 | 0.00 | 1.00 | $55,000 | $0 |
| 2 | 6030-1175L | | 0.0000 | 0.00 | 0.00 | 0.00 | 1.00 | $140,000 | $0 |
Roll Value History
| 2026 | N/A | N/A | N/A | N/A | N/A |
| 2025 | $270,197 | $195,000 | $0 | $465,197 | $465,197 |
| 2024 | $265,146 | $198,000 | $0 | $463,146 | $463,146 |
| 2023 | $253,618 | $175,000 | $0 | $428,618 | $428,618 |
| 2022 | $253,618 | $170,000 | $0 | $423,618 | $423,618 |
Deed and Sales History
| 1 | 04/23/2021 | SWD | Statutory Warranty Deed | HAROLD MORGADO | FIONA LEE JTWROS | | | $435,000.00 | 136648 | |
| 2 | 05/26/2017 | SWD | Statutory Warranty Deed | WILLIAM TORELL | HAROLD MORGADO | | | $290,000.00 | 127800 | |
| 3 | 11/01/2013 | QCD | Quit Claim Deed | | | | | | 120215 | |
| 4 | 08/20/2012 | SWD | Statutory Warranty Deed | THE 1990 BERMAN FAMILY TR | TORELL, WILLIAM/WYMAN, KAREN | 0 | 0 | $80,000.00 | 117948 | 0 |
Payout Agreement
| No payout information available.. |