Property
Account |
| Property ID: | 34938 | Abbreviated Legal Description: | MONTANA ADDITION BLK 19 LOTS 1 & 2 W/ALL VAC GRANTS ST BTWN 52ND & 53RD LLA#104765 SUBJ/EASE |
| Parcel # / Geo ID: | 972901901 | Agent Code: | |
| Type: | Real | | |
| Tax Area: | 0110 - C-50F1E1H2 | Land Use Code | 11 |
| Open Space: | N | DFL | N |
| Historic Property: | N | Remodel Property: | N |
| Multi-Family Redevelopment: | N | | |
| Township: | 31N | Section: | 34 |
| Range: | 1W |
Location |
| Address: | 1301 53RD ST PORT TOWNSEND, WA 98368 | Mapsco: | 081/079 |
| Neighborhood: | MONTANA ADDITION | Map ID: | |
| Neighborhood CD: | 6030 |
Owner |
| Name: | MARC A HANKIN | Owner ID: | 102182 |
| Mailing Address: | 1301 53RD ST PORT TOWNSEND, WA 98368-1519 | % Ownership: | 100.0000000000% |
| | | Exemptions: | |
Pay Tax Due
Select the appropriate checkbox next to the year to be paid. Multiple years may be selected.
*Convenience Fee not included
Taxes and Assessment Details
Property Tax Information as of
03/10/2026
Click on "Statement Details" to expand or collapse a tax statement.
* Please enter a valid date ** Please enter a valid date *
Statement Details |
| 2026 | 24184 | STATE - STATE LEVY (SCHOOL) | $982.62 | $982.60 | $0.00 | $0.00 | $0.00 | $1965.22 |
| 2026 | 24184 | COUNTY - COUNTY LEVIES (CE, DD, VET, MH) | $392.85 | $392.84 | $0.00 | $0.00 | $0.00 | $785.69 |
| 2026 | 24184 | CONSERVE - CONSERVATION FUTURES | $11.78 | $11.78 | $0.00 | $0.00 | $0.00 | $23.56 |
| 2026 | 24184 | CITYPT - CITY OF PT | $557.62 | $557.60 | $0.00 | $0.00 | $0.00 | $1115.22 |
| 2026 | 24184 | PORTPT - PORT DISTRICT | $158.67 | $158.65 | $0.00 | $0.00 | $0.00 | $317.32 |
| 2026 | 24184 | PUD1 - PUD #1 | $25.56 | $25.55 | $0.00 | $0.00 | $0.00 | $51.11 |
| 2026 | 24184 | HD2 - HOSP DIST #2 | $22.91 | $22.91 | $0.00 | $0.00 | $0.00 | $45.82 |
| 2026 | 24184 | SD50 - SCHOOL DIST #50 | $778.45 | $778.43 | $0.00 | $0.00 | $0.00 | $1556.88 |
| 2026 | 24184 | FD1 - FIRE DISTRICT #1 | $520.22 | $520.22 | $0.00 | $0.00 | $0.00 | $1040.44 |
| 2026 | 24184 | EMS1 - FIRE DIST #1 EMS | $200.02 | $200.01 | $0.00 | $0.00 | $0.00 | $400.03 |
| 2026 | 24184 | FP - DNR Forest Fire Protection Assmt | $8.50 | $8.50 | $0.00 | $0.00 | $0.00 | $17.00 |
| 2026 | 24184 | FPLCA - DNR Landowner Contingency Assmt | $3.00 | $3.00 | $0.00 | $0.00 | $0.00 | $6.00 |
| 2026 | 24184 | JCCD - JC Conservation District | $2.55 | $2.55 | $0.00 | $0.00 | $0.00 | $5.10 |
| 2026 | 24184 | NWA - Noxious Weed Assessment | $2.98 | $2.97 | $0.00 | $0.00 | $0.00 | $5.95 |
| 2026 | 24184 | FP ADMIN - FP ADMIN | $0.50 | $0.00 | $0.00 | $0.00 | $0.00 | $0.50 |
| 2026 | 24184 | TOTAL: | $3668.23 | $3667.61 | $0.00 | $0.00 | $0.00 | $7335.84 |
|
| 2026 | 24184 | $3668.23 | $3667.61 | $0.00 | $0.00 | $0.00 | $7335.84 |
Statement Details |
| 2025 | 24248 | STATE - STATE LEVY (SCHOOL) | $1021.77 | $1021.76 | $0.00 | $0.00 | $2043.53 | $0.00 |
| 2025 | 24248 | COUNTY - COUNTY LEVIES (CE, DD, VET, MH) | $401.82 | $401.79 | $0.00 | $0.00 | $803.61 | $0.00 |
| 2025 | 24248 | CONSERVE - CONSERVATION FUTURES | $12.05 | $12.05 | $0.00 | $0.00 | $24.10 | $0.00 |
| 2025 | 24248 | CITYPT - CITY OF PT | $579.44 | $579.44 | $0.00 | $0.00 | $1158.88 | $0.00 |
| 2025 | 24248 | PORTPT - PORT DISTRICT | $163.97 | $163.95 | $0.00 | $0.00 | $327.92 | $0.00 |
| 2025 | 24248 | PUD1 - PUD #1 | $26.29 | $26.29 | $0.00 | $0.00 | $52.58 | $0.00 |
| 2025 | 24248 | HD2 - HOSP DIST #2 | $23.44 | $23.44 | $0.00 | $0.00 | $46.88 | $0.00 |
| 2025 | 24248 | SD50 - SCHOOL DIST #50 | $746.75 | $746.73 | $0.00 | $0.00 | $1493.48 | $0.00 |
| 2025 | 24248 | FD1 - FIRE DISTRICT #1 | $530.22 | $530.22 | $0.00 | $0.00 | $1060.44 | $0.00 |
| 2025 | 24248 | EMS1 - FIRE DIST #1 EMS | $203.94 | $203.94 | $0.00 | $0.00 | $407.88 | $0.00 |
| 2025 | 24248 | FP - DNR Forest Fire Protection Assmt | $8.50 | $8.50 | $0.00 | $0.00 | $17.00 | $0.00 |
| 2025 | 24248 | FPLCA - DNR Landowner Contingency Assmt | $3.00 | $3.00 | $0.00 | $0.00 | $6.00 | $0.00 |
| 2025 | 24248 | JCCD - JC Conservation District | $2.55 | $2.55 | $0.00 | $0.00 | $5.10 | $0.00 |
| 2025 | 24248 | NWA - Noxious Weed Assessment | $2.15 | $2.15 | $0.00 | $0.00 | $4.30 | $0.00 |
| 2025 | 24248 | FP ADMIN - FP ADMIN | $0.50 | $0.00 | $0.00 | $0.00 | $0.50 | $0.00 |
| 2025 | 24248 | TOTAL: | $3726.39 | $3725.81 | $0.00 | $0.00 | $7452.20 | $0.00 |
|
| 2025 | 24248 | $3726.39 | $3725.81 | $0.00 | $0.00 | $7452.20 | $0.00 |
Statement Details |
| 2024 | 24294 | STATE - STATE LEVY (SCHOOL) | $920.86 | $920.84 | $0.00 | $0.00 | $1841.70 | $0.00 |
| 2024 | 24294 | COUNTY - COUNTY LEVIES (CE, DD, VET, MH) | $394.06 | $394.03 | $0.00 | $0.00 | $788.09 | $0.00 |
| 2024 | 24294 | CONSERVE - CONSERVATION FUTURES | $11.82 | $11.81 | $0.00 | $0.00 | $23.63 | $0.00 |
| 2024 | 24294 | CITYPT - CITY OF PT | $563.03 | $563.02 | $0.00 | $0.00 | $1126.05 | $0.00 |
| 2024 | 24294 | PORTPT - PORT DISTRICT | $162.76 | $162.75 | $0.00 | $0.00 | $325.51 | $0.00 |
| 2024 | 24294 | PUD1 - PUD #1 | $25.88 | $25.88 | $0.00 | $0.00 | $51.76 | $0.00 |
| 2024 | 24294 | HD2 - HOSP DIST #2 | $22.99 | $22.99 | $0.00 | $0.00 | $45.98 | $0.00 |
| 2024 | 24294 | SD50 - SCHOOL DIST #50 | $745.02 | $745.00 | $0.00 | $0.00 | $1490.02 | $0.00 |
| 2024 | 24294 | FD1 - FIRE DISTRICT #1 | $521.02 | $521.01 | $0.00 | $0.00 | $1042.03 | $0.00 |
| 2024 | 24294 | EMS1 - FIRE DIST #1 EMS | $199.01 | $199.01 | $0.00 | $0.00 | $398.02 | $0.00 |
| 2024 | 24294 | JCCD - JC Conservation District | $2.55 | $2.55 | $0.00 | $0.00 | $5.10 | $0.00 |
| 2024 | 24294 | NWA - Noxious Weed Assessment | $2.15 | $2.15 | $0.00 | $0.00 | $4.30 | $0.00 |
| 2024 | 24294 | TOTAL: | $3571.15 | $3571.04 | $0.00 | $0.00 | $7142.19 | $0.00 |
|
| 2024 | 24294 | $3571.15 | $3571.04 | $0.00 | $0.00 | $7142.19 | $0.00 |
Statement Details |
| 2023 | 24333 | STATE - STATE LEVY (SCHOOL) | $931.12 | $931.10 | $0.00 | $0.00 | $1862.22 | $0.00 |
| 2023 | 24333 | COUNTY - COUNTY LEVIES (CE, DD, VET, MH) | $406.32 | $406.29 | $0.00 | $0.00 | $812.61 | $0.00 |
| 2023 | 24333 | CONSERVE - CONSERVATION FUTURES | $12.19 | $12.18 | $0.00 | $0.00 | $24.37 | $0.00 |
| 2023 | 24333 | CITYPT - CITY OF PT | $574.26 | $574.24 | $0.00 | $0.00 | $1148.50 | $0.00 |
| 2023 | 24333 | PORTPT - PORT DISTRICT | $171.16 | $171.16 | $0.00 | $0.00 | $342.32 | $0.00 |
| 2023 | 24333 | PUD1 - PUD #1 | $26.94 | $26.93 | $0.00 | $0.00 | $53.87 | $0.00 |
| 2023 | 24333 | HD2 - HOSP DIST #2 | $23.72 | $23.70 | $0.00 | $0.00 | $47.42 | $0.00 |
| 2023 | 24333 | SD50 - SCHOOL DIST #50 | $738.85 | $738.85 | $0.00 | $0.00 | $1477.70 | $0.00 |
| 2023 | 24333 | FD1 - FIRE DISTRICT #1 | $334.72 | $334.71 | $0.00 | $0.00 | $669.43 | $0.00 |
| 2023 | 24333 | EMS1 - FIRE DIST #1 EMS | $142.38 | $142.38 | $0.00 | $0.00 | $284.76 | $0.00 |
| 2023 | 24333 | JCCD - JC Conservation District | $2.55 | $2.55 | $0.00 | $0.00 | $5.10 | $0.00 |
| 2023 | 24333 | NWA - Noxious Weed Assessment | $2.15 | $2.15 | $0.00 | $0.00 | $4.30 | $0.00 |
| 2023 | 24333 | TOTAL: | $3366.36 | $3366.24 | $0.00 | $0.00 | $6732.60 | $0.00 |
|
| 2023 | 24333 | $3366.36 | $3366.24 | $0.00 | $0.00 | $6732.60 | $0.00 |
Values
| (+) Improvement Homesite Value: | + | $0 | |
| (+) Improvement Non-Homesite Value: | + | $558,783 | |
| (+) Land Homesite Value: | + | $0 | |
| (+) Land Non-Homesite Value: | + | $296,000 | |
| (+) Curr Use (HS): | + | $0 | $0 |
| (+) Curr Use (NHS): | + | $0 | $0 |
| | | -------------------------- | |
| (=) Market Value: | = | $854,783 | |
| (–) Productivity Loss: | – | $0 | |
| | | -------------------------- | |
| (=) Subtotal: | = | $854,783 | |
| (+) Senior Appraised Value: | + | $0 | |
| (+) Non-Senior Appraised Value: | + | $854,783 | |
| | | -------------------------- | |
| (=) Total Appraised Value: | = | $854,783 | |
| (–) Senior Exemption Loss: | – | $0 | |
| (–) Exemption Loss: | – | $0 | |
| | | -------------------------- | |
| (=) Taxable Value: | = | $854,783 | |
Taxing Jurisdiction
| Owner: | MARC A HANKIN | | |
| % Ownership: | 100.0000000000% | | |
| Total Value: | N/A | | |
| Tax Area: | 0110 - C-50F1E1H2 |
| CE | COUNTY CURRENT EXPENSE | N/A | N/A | N/A | N/A | | |
| CNTYDD | DEVELOPMENTAL DISABILITIES | N/A | N/A | N/A | N/A | | |
| CNTYVET | VETERANS RELIEF | N/A | N/A | N/A | N/A | | |
| MENTAL | MENTAL HEALTH | N/A | N/A | N/A | N/A | | |
| PTGEN | CITY OF PT GENERAL | N/A | N/A | N/A | N/A | | |
| PTLLL | CITY OF PT - LIBRARY LID LIFT | N/A | N/A | N/A | N/A | | |
| PTMVBOND | CITY OF PT MV BOND | N/A | N/A | N/A | N/A | | |
| HOSP2CASH | HOSP DIST #2 GENERAL | N/A | N/A | N/A | N/A | | |
| SCH50BOND | SCHOOL DIST #50 BOND 2016 | N/A | N/A | N/A | N/A | | |
| SCH50CP | SCHOOL DIST #50 CAP PROJ | N/A | N/A | N/A | N/A | | |
| SCH50MO | SCHOOL DIST #50 EP & O | N/A | N/A | N/A | N/A | | |
| CONSERVE | CONSERVATION FUTURES | N/A | N/A | N/A | N/A | | |
| EMS1 | FIRE DIST #1 EMS | N/A | N/A | N/A | N/A | | |
| FD1 | FIRE DIST #1 GENERAL | N/A | N/A | N/A | N/A | | |
| PORTPT | PORT OF PT GENERAL | N/A | N/A | N/A | N/A | | |
| PORTPTIDD | PORT OF PT IDD 2019 | N/A | N/A | N/A | N/A | | |
| PUD1 | PUD #1 GENERAL | N/A | N/A | N/A | N/A | | |
| STATE | STATE SCHOOL PART 1 | N/A | N/A | N/A | N/A | | |
| STATE2 | STATE SCHOOL PART 2 | N/A | N/A | N/A | N/A | | |
| | Total Tax Rate: | N/A | | | | | |
| | | | | Taxes w/Current Exemptions: | N/A | | |
| | | | | Taxes w/o Exemptions: | N/A | | |
Improvement / Building
| Improvement #1: | Residential Bldg | State Code: | 11 | 2112.0 sqft | Value: | $558,783 |
| Bathrooms (#): | 2 (FULL) | Bedrooms (#): | 4 | | Exterior Wall: | SI/ST | Fireplace: | SIN 1-GOOD | | Fireplace: | WD ST-GOOD | Floor Construction: | FRAME | | Foundation: | CONPR | Heating/Cooling: | HPUMP | | Roof Cover: | METAL |   |   |
|
| | Type | Description | Class CD | Sub Class CD | Year Built | Area |
| | MA | Main Area | 4 | 1S | 1977 | 2112.0 |
| | HCPOR | House Concrete Porch | 4 | * | 1977 | 132.0 |
| | HDECK | House Deck | 4 | * | 1977 | 648.0 |
| | GATT | House Attached Garage | 4 | 1S | 1977 | 972.0 |
| | HWPOR | House Wood Porch | 4 | * | 1977 | 78.0 |
| | PATIO | House Patio | 4 | * | 1977 | 448.0 |
Sketch
Property Image
Land
| 1 | 6030-1179L | | 0.0000 | 0.00 | 0.00 | 0.00 | 1.00 | $66,000 | $0 |
| 2 | 6030-1175L | | 0.0000 | 0.00 | 0.00 | 0.00 | 1.00 | $130,000 | $0 |
| 3 | 6030-1175L | | 0.0000 | 0.00 | 0.00 | 0.00 | 1.00 | $100,000 | $0 |
Roll Value History
| 2026 | N/A | N/A | N/A | N/A | N/A |
| 2025 | $558,783 | $296,000 | $0 | $854,783 | $854,783 |
| 2024 | $555,171 | $297,000 | $0 | $852,171 | $852,171 |
| 2023 | $531,033 | $265,000 | $0 | $796,033 | $796,033 |
| 2022 | $531,033 | $260,000 | $0 | $791,033 | $791,033 |
Deed and Sales History
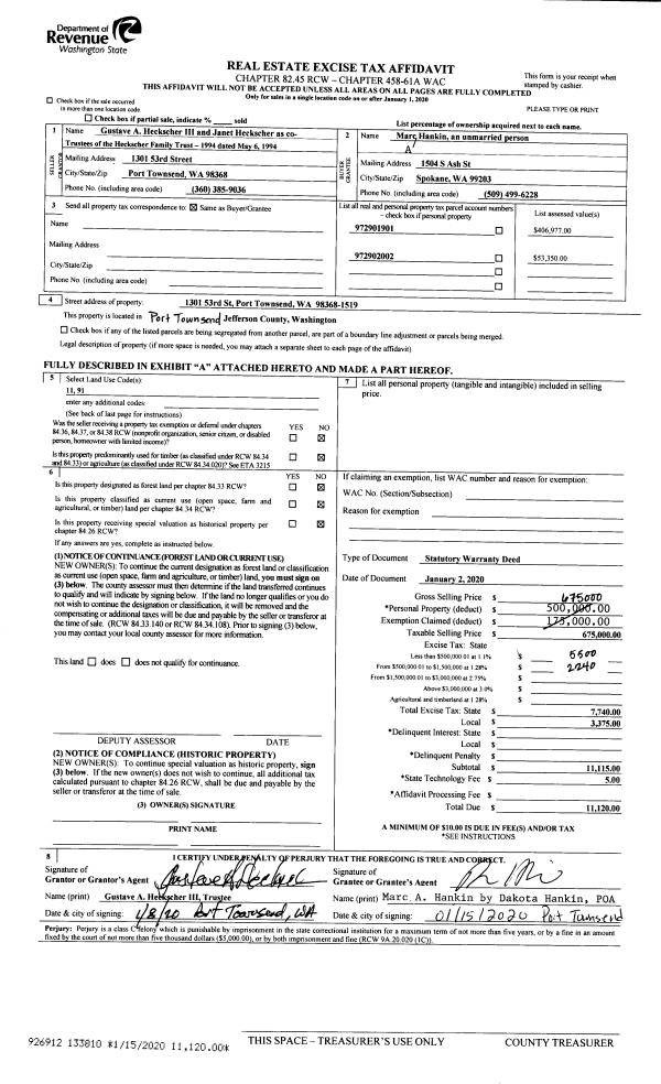
| 1 | 01/02/2020 | SWD | Statutory Warranty Deed | HECKSCHER III GUSTAVE TRUSTEE | MARC A HANKIN | | | $675,000.00 | 133810 | |
|   | |
| 2 | 09/18/2009 | SWD | Statutory Warranty Deed | HECKSCHER III GST TRUST | HECKSCHER FAMILY TRUST | 0 | 0 | $0.00 | 113424 | 0 |
| 3 | 12/28/2006 | SWD | Statutory Warranty Deed | MULRONEY, PATRICIA | HECKSCHER III, GUSTAVE/TRUSTEE | 0 | 0 | $531,050.00 | 108406 | 0 |
|   | |
| 4 | 12/28/2006 | SWD | Statutory Warranty Deed | MULRONEY, PATRICIA A | HECKSCHER III, GUSTAVE/TRUST | 0 | 0 | $0.00 | 108436 | 0 |
| 5 | 09/13/2005 | BLA | Boundary Line Adjustment | MULRONEY, PATRICIA A | MULRONEY, PATRICIA A | 0 | 0 | $0.00 | 104765 | 0 |
| 6 | 02/11/1998 | QCD | Quit Claim Deed | BULLEN, CHARLES A | MULRONEY, PATRICIA A | 0 | 0 | $0.00 | 83825 | 0 |
Payout Agreement
| No payout information available.. |