Property
Account |
| Property ID: | 34944 | Abbreviated Legal Description: | MONTANA ADDITION BLK 20 LOTS 7 & 8 |
| Parcel # / Geo ID: | 972902002 | Agent Code: | |
| Type: | Real | | |
| Tax Area: | 0110 - C-50F1E1H2 | Land Use Code | 91 |
| Open Space: | N | DFL | N |
| Historic Property: | N | Remodel Property: | N |
| Multi-Family Redevelopment: | N | | |
| Township: | 31N | Section: | 34 |
| Range: | 1W |
Location |
| Address: | | Mapsco: | 081/089 |
| Neighborhood: | MONTANA ADDITION | Map ID: | |
| Neighborhood CD: | 6030 |
Owner |
| Name: | MARC A HANKIN | Owner ID: | 102182 |
| Mailing Address: | 1301 53RD ST PORT TOWNSEND, WA 98368-1519 | % Ownership: | 100.0000000000% |
| | | Exemptions: | |
Pay Tax Due
Select the appropriate checkbox next to the year to be paid. Multiple years may be selected.
*Convenience Fee not included
Taxes and Assessment Details
Property Tax Information as of
03/10/2026
Click on "Statement Details" to expand or collapse a tax statement.
* Please enter a valid date ** Please enter a valid date *
Statement Details |
| 2026 | 24189 | STATE - STATE LEVY (SCHOOL) | $104.33 | $104.33 | $0.00 | $0.00 | $0.00 | $208.66 |
| 2026 | 24189 | COUNTY - COUNTY LEVIES (CE, DD, VET, MH) | $41.72 | $41.70 | $0.00 | $0.00 | $0.00 | $83.42 |
| 2026 | 24189 | CONSERVE - CONSERVATION FUTURES | $1.25 | $1.25 | $0.00 | $0.00 | $0.00 | $2.50 |
| 2026 | 24189 | CITYPT - CITY OF PT | $59.21 | $59.21 | $0.00 | $0.00 | $0.00 | $118.42 |
| 2026 | 24189 | PORTPT - PORT DISTRICT | $16.85 | $16.84 | $0.00 | $0.00 | $0.00 | $33.69 |
| 2026 | 24189 | PUD1 - PUD #1 | $2.72 | $2.71 | $0.00 | $0.00 | $0.00 | $5.43 |
| 2026 | 24189 | HD2 - HOSP DIST #2 | $2.44 | $2.43 | $0.00 | $0.00 | $0.00 | $4.87 |
| 2026 | 24189 | SD50 - SCHOOL DIST #50 | $82.67 | $82.65 | $0.00 | $0.00 | $0.00 | $165.32 |
| 2026 | 24189 | FD1 - FIRE DISTRICT #1 | $55.24 | $55.23 | $0.00 | $0.00 | $0.00 | $110.47 |
| 2026 | 24189 | EMS1 - FIRE DIST #1 EMS | $21.24 | $21.24 | $0.00 | $0.00 | $0.00 | $42.48 |
| 2026 | 24189 | FPLCA - DNR Landowner Contingency Assmt | $3.00 | $3.00 | $0.00 | $0.00 | $0.00 | $6.00 |
| 2026 | 24189 | JCCD - JC Conservation District | $2.53 | $2.53 | $0.00 | $0.00 | $0.00 | $5.06 |
| 2026 | 24189 | NWA - Noxious Weed Assessment | $2.98 | $2.97 | $0.00 | $0.00 | $0.00 | $5.95 |
| 2026 | 24189 | WAT - Clean Water District | $13.00 | $13.00 | $0.00 | $0.00 | $0.00 | $26.00 |
| 2026 | 24189 | TOTAL: | $409.18 | $409.09 | $0.00 | $0.00 | $0.00 | $818.27 |
|
| 2026 | 24189 | $409.18 | $409.09 | $0.00 | $0.00 | $0.00 | $818.27 |
Statement Details |
| 2025 | 24253 | STATE - STATE LEVY (SCHOOL) | $92.33 | $92.32 | $0.00 | $0.00 | $184.65 | $0.00 |
| 2025 | 24253 | COUNTY - COUNTY LEVIES (CE, DD, VET, MH) | $36.32 | $36.29 | $0.00 | $0.00 | $72.61 | $0.00 |
| 2025 | 24253 | CONSERVE - CONSERVATION FUTURES | $1.09 | $1.09 | $0.00 | $0.00 | $2.18 | $0.00 |
| 2025 | 24253 | CITYPT - CITY OF PT | $52.37 | $52.34 | $0.00 | $0.00 | $104.71 | $0.00 |
| 2025 | 24253 | PORTPT - PORT DISTRICT | $14.82 | $14.81 | $0.00 | $0.00 | $29.63 | $0.00 |
| 2025 | 24253 | PUD1 - PUD #1 | $2.38 | $2.37 | $0.00 | $0.00 | $4.75 | $0.00 |
| 2025 | 24253 | HD2 - HOSP DIST #2 | $2.12 | $2.12 | $0.00 | $0.00 | $4.24 | $0.00 |
| 2025 | 24253 | SD50 - SCHOOL DIST #50 | $67.49 | $67.46 | $0.00 | $0.00 | $134.95 | $0.00 |
| 2025 | 24253 | FD1 - FIRE DISTRICT #1 | $47.91 | $47.91 | $0.00 | $0.00 | $95.82 | $0.00 |
| 2025 | 24253 | EMS1 - FIRE DIST #1 EMS | $18.43 | $18.42 | $0.00 | $0.00 | $36.85 | $0.00 |
| 2025 | 24253 | FPLCA - DNR Landowner Contingency Assmt | $3.00 | $3.00 | $0.00 | $0.00 | $6.00 | $0.00 |
| 2025 | 24253 | JCCD - JC Conservation District | $2.53 | $2.53 | $0.00 | $0.00 | $5.06 | $0.00 |
| 2025 | 24253 | NWA - Noxious Weed Assessment | $2.15 | $2.15 | $0.00 | $0.00 | $4.30 | $0.00 |
| 2025 | 24253 | WAT - Clean Water District | $13.00 | $13.00 | $0.00 | $0.00 | $26.00 | $0.00 |
| 2025 | 24253 | TOTAL: | $355.94 | $355.81 | $0.00 | $0.00 | $711.75 | $0.00 |
|
| 2025 | 24253 | $355.94 | $355.81 | $0.00 | $0.00 | $711.75 | $0.00 |
Statement Details |
| 2024 | 24299 | STATE - STATE LEVY (SCHOOL) | $80.98 | $80.97 | $0.00 | $0.00 | $161.95 | $0.00 |
| 2024 | 24299 | COUNTY - COUNTY LEVIES (CE, DD, VET, MH) | $34.66 | $34.64 | $0.00 | $0.00 | $69.30 | $0.00 |
| 2024 | 24299 | CONSERVE - CONSERVATION FUTURES | $1.04 | $1.04 | $0.00 | $0.00 | $2.08 | $0.00 |
| 2024 | 24299 | CITYPT - CITY OF PT | $49.51 | $49.51 | $0.00 | $0.00 | $99.02 | $0.00 |
| 2024 | 24299 | PORTPT - PORT DISTRICT | $14.32 | $14.31 | $0.00 | $0.00 | $28.63 | $0.00 |
| 2024 | 24299 | PUD1 - PUD #1 | $2.28 | $2.27 | $0.00 | $0.00 | $4.55 | $0.00 |
| 2024 | 24299 | HD2 - HOSP DIST #2 | $2.02 | $2.02 | $0.00 | $0.00 | $4.04 | $0.00 |
| 2024 | 24299 | SD50 - SCHOOL DIST #50 | $65.53 | $65.50 | $0.00 | $0.00 | $131.03 | $0.00 |
| 2024 | 24299 | FD1 - FIRE DISTRICT #1 | $45.82 | $45.81 | $0.00 | $0.00 | $91.63 | $0.00 |
| 2024 | 24299 | EMS1 - FIRE DIST #1 EMS | $17.50 | $17.50 | $0.00 | $0.00 | $35.00 | $0.00 |
| 2024 | 24299 | FP - DNR Forest Fire Protection Assmt | $8.50 | $8.50 | $0.00 | $0.00 | $17.00 | $0.00 |
| 2024 | 24299 | FPLCA - DNR Landowner Contingency Assmt | $3.00 | $3.00 | $0.00 | $0.00 | $6.00 | $0.00 |
| 2024 | 24299 | JCCD - JC Conservation District | $2.53 | $2.53 | $0.00 | $0.00 | $5.06 | $0.00 |
| 2024 | 24299 | NWA - Noxious Weed Assessment | $2.15 | $2.15 | $0.00 | $0.00 | $4.30 | $0.00 |
| 2024 | 24299 | WAT - Clean Water District | $12.50 | $12.50 | $0.00 | $0.00 | $25.00 | $0.00 |
| 2024 | 24299 | FP ADMIN - FP ADMIN | $0.50 | $0.00 | $0.00 | $0.00 | $0.50 | $0.00 |
| 2024 | 24299 | TOTAL: | $342.84 | $342.25 | $0.00 | $0.00 | $685.09 | $0.00 |
|
| 2024 | 24299 | $342.84 | $342.25 | $0.00 | $0.00 | $685.09 | $0.00 |
Statement Details |
| 2023 | 24338 | STATE - STATE LEVY (SCHOOL) | $82.40 | $82.39 | $0.00 | $0.00 | $164.79 | $0.00 |
| 2023 | 24338 | COUNTY - COUNTY LEVIES (CE, DD, VET, MH) | $35.97 | $35.94 | $0.00 | $0.00 | $71.91 | $0.00 |
| 2023 | 24338 | CONSERVE - CONSERVATION FUTURES | $1.08 | $1.08 | $0.00 | $0.00 | $2.16 | $0.00 |
| 2023 | 24338 | CITYPT - CITY OF PT | $50.83 | $50.80 | $0.00 | $0.00 | $101.63 | $0.00 |
| 2023 | 24338 | PORTPT - PORT DISTRICT | $15.15 | $15.14 | $0.00 | $0.00 | $30.29 | $0.00 |
| 2023 | 24338 | PUD1 - PUD #1 | $2.39 | $2.38 | $0.00 | $0.00 | $4.77 | $0.00 |
| 2023 | 24338 | HD2 - HOSP DIST #2 | $2.10 | $2.09 | $0.00 | $0.00 | $4.19 | $0.00 |
| 2023 | 24338 | SD50 - SCHOOL DIST #50 | $65.39 | $65.38 | $0.00 | $0.00 | $130.77 | $0.00 |
| 2023 | 24338 | FD1 - FIRE DISTRICT #1 | $29.62 | $29.62 | $0.00 | $0.00 | $59.24 | $0.00 |
| 2023 | 24338 | EMS1 - FIRE DIST #1 EMS | $12.60 | $12.60 | $0.00 | $0.00 | $25.20 | $0.00 |
| 2023 | 24338 | FP - DNR Forest Fire Protection Assmt | $8.50 | $8.50 | $0.00 | $0.00 | $17.00 | $0.00 |
| 2023 | 24338 | FPLCA - DNR Landowner Contingency Assmt | $3.00 | $3.00 | $0.00 | $0.00 | $6.00 | $0.00 |
| 2023 | 24338 | JCCD - JC Conservation District | $2.53 | $2.53 | $0.00 | $0.00 | $5.06 | $0.00 |
| 2023 | 24338 | NWA - Noxious Weed Assessment | $2.15 | $2.15 | $0.00 | $0.00 | $4.30 | $0.00 |
| 2023 | 24338 | WAT - Clean Water District | $12.00 | $12.00 | $0.00 | $0.00 | $24.00 | $0.00 |
| 2023 | 24338 | FP ADMIN - FP ADMIN | $0.50 | $0.00 | $0.00 | $0.00 | $0.50 | $0.00 |
| 2023 | 24338 | TOTAL: | $326.21 | $325.60 | $0.00 | $0.00 | $651.81 | $0.00 |
|
| 2023 | 24338 | $326.21 | $325.60 | $0.00 | $0.00 | $651.81 | $0.00 |
Values
| (+) Improvement Homesite Value: | + | $0 | |
| (+) Improvement Non-Homesite Value: | + | $13,262 | |
| (+) Land Homesite Value: | + | $0 | |
| (+) Land Non-Homesite Value: | + | $77,500 | |
| (+) Curr Use (HS): | + | $0 | $0 |
| (+) Curr Use (NHS): | + | $0 | $0 |
| | | -------------------------- | |
| (=) Market Value: | = | $90,762 | |
| (–) Productivity Loss: | – | $0 | |
| | | -------------------------- | |
| (=) Subtotal: | = | $90,762 | |
| (+) Senior Appraised Value: | + | $0 | |
| (+) Non-Senior Appraised Value: | + | $90,762 | |
| | | -------------------------- | |
| (=) Total Appraised Value: | = | $90,762 | |
| (–) Senior Exemption Loss: | – | $0 | |
| (–) Exemption Loss: | – | $0 | |
| | | -------------------------- | |
| (=) Taxable Value: | = | $90,762 | |
Taxing Jurisdiction
| Owner: | MARC A HANKIN | | |
| % Ownership: | 100.0000000000% | | |
| Total Value: | $90,762 | | |
| Tax Area: | 0110 - C-50F1E1H2 |
| CE | COUNTY CURRENT EXPENSE | 0.9034619479 | $90,762 | $90,762 | $82.00 | | |
| CNTYDD | DEVELOPMENTAL DISABILITIES | 0.0052121823 | $90,762 | $90,762 | $0.47 | | |
| CNTYVET | VETERANS RELIEF | 0.0052777810 | $90,762 | $90,762 | $0.48 | | |
| MENTAL | MENTAL HEALTH | 0.0052121823 | $90,762 | $90,762 | $0.47 | | |
| PTGEN | CITY OF PT GENERAL | 0.8551967795 | $90,762 | $90,762 | $77.62 | | |
| PTLLL | CITY OF PT - LIBRARY LID LIFT | 0.4010114288 | $90,762 | $90,762 | $36.40 | | |
| PTMVBOND | CITY OF PT MV BOND | 0.0484717981 | $90,762 | $90,762 | $4.40 | | |
| HOSP2CASH | HOSP DIST #2 GENERAL | 0.0536075306 | $90,762 | $90,762 | $4.87 | | |
| SCH50BOND | SCHOOL DIST #50 BOND 2016 | 0.5377451389 | $90,762 | $90,762 | $48.81 | | |
| SCH50CP | SCHOOL DIST #50 CAP PROJ | 0.4573475088 | $90,762 | $90,762 | $41.51 | | |
| SCH50MO | SCHOOL DIST #50 EP & O | 0.8262822886 | $90,762 | $90,762 | $75.00 | | |
| CONSERVE | CONSERVATION FUTURES | 0.0275621078 | $90,762 | $90,762 | $2.50 | | |
| EMS1 | FIRE DIST #1 EMS | 0.4679948282 | $90,762 | $90,762 | $42.48 | | |
| FD1 | FIRE DIST #1 GENERAL | 1.2171942929 | $90,762 | $90,762 | $110.47 | | |
| PORTPT | PORT OF PT GENERAL | 0.1134941229 | $90,762 | $90,762 | $10.30 | | |
| PORTPTIDD | PORT OF PT IDD 2019 | 0.2577346692 | $90,762 | $90,762 | $23.39 | | |
| PUD1 | PUD #1 GENERAL | 0.0597888892 | $90,762 | $90,762 | $5.43 | | |
| STATE | STATE SCHOOL PART 1 | 1.4940692947 | $90,762 | $90,762 | $135.60 | | |
| STATE2 | STATE SCHOOL PART 2 | 0.8050170049 | $90,762 | $90,762 | $73.06 | | |
| | Total Tax Rate: | 8.5416817766 | | | | | |
| | | | | Taxes w/Current Exemptions: | $775.26 | | |
| | | | | Taxes w/o Exemptions: | $775.26 | | |
Improvement / Building
| Improvement #1: | Site Improvements | State Code: | 11 | 0.0 sqft | Value: | $13,262 |
| | Type | Description | Class CD | Sub Class CD | Year Built | Area |
| | SHED | Shed (Table Not Dep) | 3 | 1S | 2020 | 148.0 |
| | OTHER | Other | 4 | 1S | 2020 | 368.3 |
Sketch
Property Image
Land
| 1 | 6030-1175L | | 0.0000 | 0.00 | 0.00 | 0.00 | 1.00 | $50,000 | $0 |
| 2 | 6030-1185L | | 0.0000 | 0.00 | 0.00 | 0.00 | 1.00 | $27,500 | $0 |
Roll Value History
| 2026 | N/A | N/A | N/A | N/A | N/A |
| 2025 | $13,262 | $77,500 | $0 | $90,762 | $90,762 |
| 2024 | $0 | $77,000 | $0 | $77,000 | $77,000 |
| 2023 | $0 | $70,000 | $0 | $70,000 | $70,000 |
| 2022 | $0 | $70,000 | $0 | $70,000 | $70,000 |
Deed and Sales History
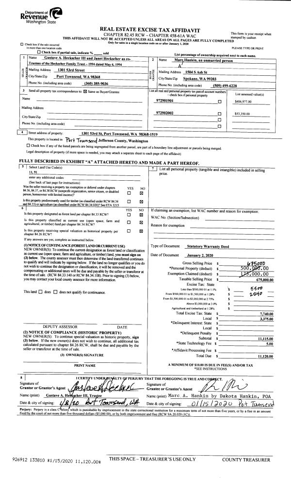
| 1 | 01/02/2020 | SWD | Statutory Warranty Deed | HECKSCHER III GUSTAVE TRUSTEE | MARC A HANKIN | | | $675,000.00 | 133810 | |
|   | |
| 2 | 09/18/2009 | SWD | Statutory Warranty Deed | HECKSCHER III GST TRUST | HECKSCHER FAMILY TRUST | 0 | 0 | $0.00 | 113424 | 0 |
| 3 | 12/28/2006 | SWD | Statutory Warranty Deed | MULRONEY, PATRICIA | HECKSCHER III, GUSTAVE/TRUSTEE | 0 | 0 | $531,050.00 | 108406 | 0 |
|   | |
| 4 | 12/28/2006 | SWD | Statutory Warranty Deed | MULRONEY, PATRICIA A | HECKSCHER III, GUSTAVE/TRUST | 0 | 0 | $0.00 | 108436 | 0 |
| 5 | 02/11/1998 | QCD | Quit Claim Deed | BULLEN, CHARLES A | MULRONEY, PATRICIA A | 0 | 0 | $0.00 | 83825 | 0 |
Payout Agreement
| No payout information available.. |