Property
Account |
| Property ID: | 34961 | Abbreviated Legal Description: | MONTANA ADDITION BLK 26 LOTS 1 & 3 CERT/LTS OF REC #517219 |
| Parcel # / Geo ID: | 972902603 | Agent Code: | |
| Type: | Real | | |
| Tax Area: | 0110 - C-50F1E1H2 | Land Use Code | 11 |
| Open Space: | N | DFL | N |
| Historic Property: | N | Remodel Property: | N |
| Multi-Family Redevelopment: | N | | |
| Township: | 31N | Section: | 34 |
| Range: | 1W |
Location |
| Address: | 908 53RD ST PORT TOWNSEND, WA 98368 | Mapsco: | 082/024 |
| Neighborhood: | MONTANA ADDITION | Map ID: | |
| Neighborhood CD: | 6030 |
Owner |
| Name: | KARLER-TUPPER TRUST | Owner ID: | 110487 |
| Mailing Address: | MARGO KARLER TRUSTEE JOSEPH L TUPPER III TRUSTEE 908 53RD ST PORT TOWNSEND, WA 98368-1536 | % Ownership: | 100.0000000000% |
| | | Exemptions: | |
Pay Tax Due
There is currently No Amount Due on this property.
Taxes and Assessment Details
Property Tax Information as of
03/11/2026
Click on "Statement Details" to expand or collapse a tax statement.
* Please enter a valid date ** Please enter a valid date *
Statement Details |
| 2026 | 24206 | STATE - STATE LEVY (SCHOOL) | $906.10 | $906.09 | $0.00 | $0.00 | $1812.19 | $0.00 |
| 2026 | 24206 | COUNTY - COUNTY LEVIES (CE, DD, VET, MH) | $362.27 | $362.24 | $0.00 | $0.00 | $724.51 | $0.00 |
| 2026 | 24206 | CONSERVE - CONSERVATION FUTURES | $10.87 | $10.86 | $0.00 | $0.00 | $21.73 | $0.00 |
| 2026 | 24206 | CITYPT - CITY OF PT | $514.20 | $514.18 | $0.00 | $0.00 | $1028.38 | $0.00 |
| 2026 | 24206 | PORTPT - PORT DISTRICT | $146.31 | $146.30 | $0.00 | $0.00 | $292.61 | $0.00 |
| 2026 | 24206 | PUD1 - PUD #1 | $23.57 | $23.56 | $0.00 | $0.00 | $47.13 | $0.00 |
| 2026 | 24206 | HD2 - HOSP DIST #2 | $21.13 | $21.12 | $0.00 | $0.00 | $42.25 | $0.00 |
| 2026 | 24206 | SD50 - SCHOOL DIST #50 | $717.83 | $717.81 | $0.00 | $0.00 | $1435.64 | $0.00 |
| 2026 | 24206 | FD1 - FIRE DISTRICT #1 | $479.71 | $479.71 | $0.00 | $0.00 | $959.42 | $0.00 |
| 2026 | 24206 | EMS1 - FIRE DIST #1 EMS | $184.44 | $184.44 | $0.00 | $0.00 | $368.88 | $0.00 |
| 2026 | 24206 | JCCD - JC Conservation District | $2.55 | $2.55 | $0.00 | $0.00 | $5.10 | $0.00 |
| 2026 | 24206 | NWA - Noxious Weed Assessment | $2.98 | $2.97 | $0.00 | $0.00 | $5.95 | $0.00 |
| 2026 | 24206 | TOTAL: | $3371.96 | $3371.83 | $0.00 | $0.00 | $6743.79 | $0.00 |
|
| 2026 | 24206 | $3371.96 | $3371.83 | $0.00 | $0.00 | $6743.79 | $0.00 |
Statement Details |
| 2025 | 24270 | STATE - STATE LEVY (SCHOOL) | $912.89 | $912.88 | $0.00 | $0.00 | $1825.77 | $0.00 |
| 2025 | 24270 | COUNTY - COUNTY LEVIES (CE, DD, VET, MH) | $358.99 | $358.98 | $0.00 | $0.00 | $717.97 | $0.00 |
| 2025 | 24270 | CONSERVE - CONSERVATION FUTURES | $10.77 | $10.76 | $0.00 | $0.00 | $21.53 | $0.00 |
| 2025 | 24270 | CITYPT - CITY OF PT | $517.71 | $517.69 | $0.00 | $0.00 | $1035.40 | $0.00 |
| 2025 | 24270 | PORTPT - PORT DISTRICT | $146.49 | $146.48 | $0.00 | $0.00 | $292.97 | $0.00 |
| 2025 | 24270 | PUD1 - PUD #1 | $23.49 | $23.49 | $0.00 | $0.00 | $46.98 | $0.00 |
| 2025 | 24270 | HD2 - HOSP DIST #2 | $20.95 | $20.94 | $0.00 | $0.00 | $41.89 | $0.00 |
| 2025 | 24270 | SD50 - SCHOOL DIST #50 | $667.18 | $667.16 | $0.00 | $0.00 | $1334.34 | $0.00 |
| 2025 | 24270 | FD1 - FIRE DISTRICT #1 | $473.73 | $473.72 | $0.00 | $0.00 | $947.45 | $0.00 |
| 2025 | 24270 | EMS1 - FIRE DIST #1 EMS | $182.21 | $182.20 | $0.00 | $0.00 | $364.41 | $0.00 |
| 2025 | 24270 | JCCD - JC Conservation District | $2.55 | $2.55 | $0.00 | $0.00 | $5.10 | $0.00 |
| 2025 | 24270 | NWA - Noxious Weed Assessment | $2.15 | $2.15 | $0.00 | $0.00 | $4.30 | $0.00 |
| 2025 | 24270 | TOTAL: | $3319.11 | $3319.00 | $0.00 | $0.00 | $6638.11 | $0.00 |
|
| 2025 | 24270 | $3319.11 | $3319.00 | $0.00 | $0.00 | $6638.11 | $0.00 |
Statement Details |
| 2024 | 24316 | STATE - STATE LEVY (SCHOOL) | $816.71 | $816.70 | $0.00 | $0.00 | $1633.41 | $0.00 |
| 2024 | 24316 | COUNTY - COUNTY LEVIES (CE, DD, VET, MH) | $349.49 | $349.47 | $0.00 | $0.00 | $698.96 | $0.00 |
| 2024 | 24316 | CONSERVE - CONSERVATION FUTURES | $10.48 | $10.48 | $0.00 | $0.00 | $20.96 | $0.00 |
| 2024 | 24316 | CITYPT - CITY OF PT | $499.35 | $499.35 | $0.00 | $0.00 | $998.70 | $0.00 |
| 2024 | 24316 | PORTPT - PORT DISTRICT | $144.35 | $144.34 | $0.00 | $0.00 | $288.69 | $0.00 |
| 2024 | 24316 | PUD1 - PUD #1 | $22.96 | $22.95 | $0.00 | $0.00 | $45.91 | $0.00 |
| 2024 | 24316 | HD2 - HOSP DIST #2 | $20.39 | $20.39 | $0.00 | $0.00 | $40.78 | $0.00 |
| 2024 | 24316 | SD50 - SCHOOL DIST #50 | $660.75 | $660.75 | $0.00 | $0.00 | $1321.50 | $0.00 |
| 2024 | 24316 | FD1 - FIRE DISTRICT #1 | $462.09 | $462.09 | $0.00 | $0.00 | $924.18 | $0.00 |
| 2024 | 24316 | EMS1 - FIRE DIST #1 EMS | $176.50 | $176.50 | $0.00 | $0.00 | $353.00 | $0.00 |
| 2024 | 24316 | JCCD - JC Conservation District | $2.55 | $2.55 | $0.00 | $0.00 | $5.10 | $0.00 |
| 2024 | 24316 | NWA - Noxious Weed Assessment | $2.15 | $2.15 | $0.00 | $0.00 | $4.30 | $0.00 |
| 2024 | 24316 | TOTAL: | $3167.77 | $3167.72 | $0.00 | $0.00 | $6335.49 | $0.00 |
|
| 2024 | 24316 | $3167.77 | $3167.72 | $0.00 | $0.00 | $6335.49 | $0.00 |
Statement Details |
| 2023 | 24355 | STATE - STATE LEVY (SCHOOL) | $441.82 | $441.81 | $0.00 | $0.00 | $883.63 | $0.00 |
| 2023 | 24355 | COUNTY - COUNTY LEVIES (CE, DD, VET, MH) | $192.81 | $192.79 | $0.00 | $0.00 | $385.60 | $0.00 |
| 2023 | 24355 | CONSERVE - CONSERVATION FUTURES | $5.78 | $5.78 | $0.00 | $0.00 | $11.56 | $0.00 |
| 2023 | 24355 | CITYPT - CITY OF PT | $272.50 | $272.47 | $0.00 | $0.00 | $544.97 | $0.00 |
| 2023 | 24355 | PORTPT - PORT DISTRICT | $81.22 | $81.21 | $0.00 | $0.00 | $162.43 | $0.00 |
| 2023 | 24355 | PUD1 - PUD #1 | $12.78 | $12.78 | $0.00 | $0.00 | $25.56 | $0.00 |
| 2023 | 24355 | HD2 - HOSP DIST #2 | $11.25 | $11.25 | $0.00 | $0.00 | $22.50 | $0.00 |
| 2023 | 24355 | SD50 - SCHOOL DIST #50 | $350.59 | $350.59 | $0.00 | $0.00 | $701.18 | $0.00 |
| 2023 | 24355 | FD1 - FIRE DISTRICT #1 | $158.83 | $158.82 | $0.00 | $0.00 | $317.65 | $0.00 |
| 2023 | 24355 | EMS1 - FIRE DIST #1 EMS | $67.56 | $67.56 | $0.00 | $0.00 | $135.12 | $0.00 |
| 2023 | 24355 | JCCD - JC Conservation District | $2.55 | $2.55 | $0.00 | $0.00 | $5.10 | $0.00 |
| 2023 | 24355 | NWA - Noxious Weed Assessment | $2.15 | $2.15 | $0.00 | $0.00 | $4.30 | $0.00 |
| 2023 | 24355 | TOTAL: | $1599.84 | $1599.76 | $0.00 | $0.00 | $3199.60 | $0.00 |
|
| 2023 | 24355 | $1599.84 | $1599.76 | $0.00 | $0.00 | $3199.60 | $0.00 |
Values
| (+) Improvement Homesite Value: | + | $0 | |
| (+) Improvement Non-Homesite Value: | + | $531,722 | |
| (+) Land Homesite Value: | + | $0 | |
| (+) Land Non-Homesite Value: | + | $256,500 | |
| (+) Curr Use (HS): | + | $0 | $0 |
| (+) Curr Use (NHS): | + | $0 | $0 |
| | | -------------------------- | |
| (=) Market Value: | = | $788,222 | |
| (–) Productivity Loss: | – | $0 | |
| | | -------------------------- | |
| (=) Subtotal: | = | $788,222 | |
| (+) Senior Appraised Value: | + | $0 | |
| (+) Non-Senior Appraised Value: | + | $788,222 | |
| | | -------------------------- | |
| (=) Total Appraised Value: | = | $788,222 | |
| (–) Senior Exemption Loss: | – | $0 | |
| (–) Exemption Loss: | – | $0 | |
| | | -------------------------- | |
| (=) Taxable Value: | = | $788,222 | |
Taxing Jurisdiction
| Owner: | KARLER-TUPPER TRUST | | |
| % Ownership: | 100.0000000000% | | |
| Total Value: | $788,222 | | |
| Tax Area: | 0110 - C-50F1E1H2 |
| CE | COUNTY CURRENT EXPENSE | 0.9034619479 | $788,222 | $788,222 | $712.13 | | |
| CNTYDD | DEVELOPMENTAL DISABILITIES | 0.0052121823 | $788,222 | $788,222 | $4.11 | | |
| CNTYVET | VETERANS RELIEF | 0.0052777810 | $788,222 | $788,222 | $4.16 | | |
| MENTAL | MENTAL HEALTH | 0.0052121823 | $788,222 | $788,222 | $4.11 | | |
| PTGEN | CITY OF PT GENERAL | 0.8551967795 | $788,222 | $788,222 | $674.08 | | |
| PTLLL | CITY OF PT - LIBRARY LID LIFT | 0.4010114288 | $788,222 | $788,222 | $316.09 | | |
| PTMVBOND | CITY OF PT MV BOND | 0.0484717981 | $788,222 | $788,222 | $38.21 | | |
| HOSP2CASH | HOSP DIST #2 GENERAL | 0.0536075306 | $788,222 | $788,222 | $42.25 | | |
| SCH50BOND | SCHOOL DIST #50 BOND 2016 | 0.5377451389 | $788,222 | $788,222 | $423.86 | | |
| SCH50CP | SCHOOL DIST #50 CAP PROJ | 0.4573475088 | $788,222 | $788,222 | $360.49 | | |
| SCH50MO | SCHOOL DIST #50 EP & O | 0.8262822886 | $788,222 | $788,222 | $651.29 | | |
| CONSERVE | CONSERVATION FUTURES | 0.0275621078 | $788,222 | $788,222 | $21.73 | | |
| EMS1 | FIRE DIST #1 EMS | 0.4679948282 | $788,222 | $788,222 | $368.88 | | |
| FD1 | FIRE DIST #1 GENERAL | 1.2171942929 | $788,222 | $788,222 | $959.42 | | |
| PORTPT | PORT OF PT GENERAL | 0.1134941229 | $788,222 | $788,222 | $89.46 | | |
| PORTPTIDD | PORT OF PT IDD 2019 | 0.2577346692 | $788,222 | $788,222 | $203.15 | | |
| PUD1 | PUD #1 GENERAL | 0.0597888892 | $788,222 | $788,222 | $47.13 | | |
| STATE | STATE SCHOOL PART 1 | 1.4940692947 | $788,222 | $788,222 | $1,177.66 | | |
| STATE2 | STATE SCHOOL PART 2 | 0.8050170049 | $788,222 | $788,222 | $634.53 | | |
| | Total Tax Rate: | 8.5416817766 | | | | | |
| | | | | Taxes w/Current Exemptions: | $6,732.74 | | |
| | | | | Taxes w/o Exemptions: | $6,732.74 | | |
Improvement / Building
| Improvement #1: | Residential Bldg | State Code: | 11 | 1764.8 sqft | Value: | $531,722 |
| Bathrooms (#): | 2 (FULL) | Bedrooms (#): | 3 | | Exterior Wall: | SI/ST | Fireplace: | DBL 1-AVG | | Floor Construction: | FRAME | Foundation: | CONPR | | Heating/Cooling: | HPUMP | Roof Cover: | COMP |
|
| | Type | Description | Class CD | Sub Class CD | Year Built | Area |
| | MA | Main Area | 5- | 1S | 2022 | 1764.8 |
| | GATT | House Attached Garage | 4 | 1S | 2022 | 506.0 |
| | HCPOR | House Concrete Porch | 4 | 1S | 2022 | 90.0 |
| | HDECK | House Deck | 4 | 1S | 2022 | 234.0 |
| | CONCD | Concrete Drive | 4 | 1S | 2022 | 765.0 |
| | ASPHD | Asphalt Drive | 4 | 1S | 2022 | 278.6 |
Sketch
Property Image
Land
| 1 | 6030-1165L | | 0.0000 | 0.00 | 0.00 | 0.00 | 1.00 | $156,500 | $0 |
| 2 | 6030-1175L | | 0.0000 | 0.00 | 0.00 | 0.00 | 1.00 | $100,000 | $0 |
Roll Value History
| 2026 | N/A | N/A | N/A | N/A | N/A |
| 2025 | $531,722 | $256,500 | $0 | $788,222 | $788,222 |
| 2024 | $502,866 | $258,500 | $0 | $761,366 | $761,366 |
| 2023 | $481,003 | $225,000 | $0 | $706,003 | $706,003 |
| 2022 | $155,350 | $220,000 | $0 | $375,350 | $375,350 |
Deed and Sales History
| 1 | 03/07/2024 | QCD | Quit Claim Deed | MARGO KARLER & JOSEPH L TUPPER III | KARLER-TUPPER TRUST | | | | 142304 | |
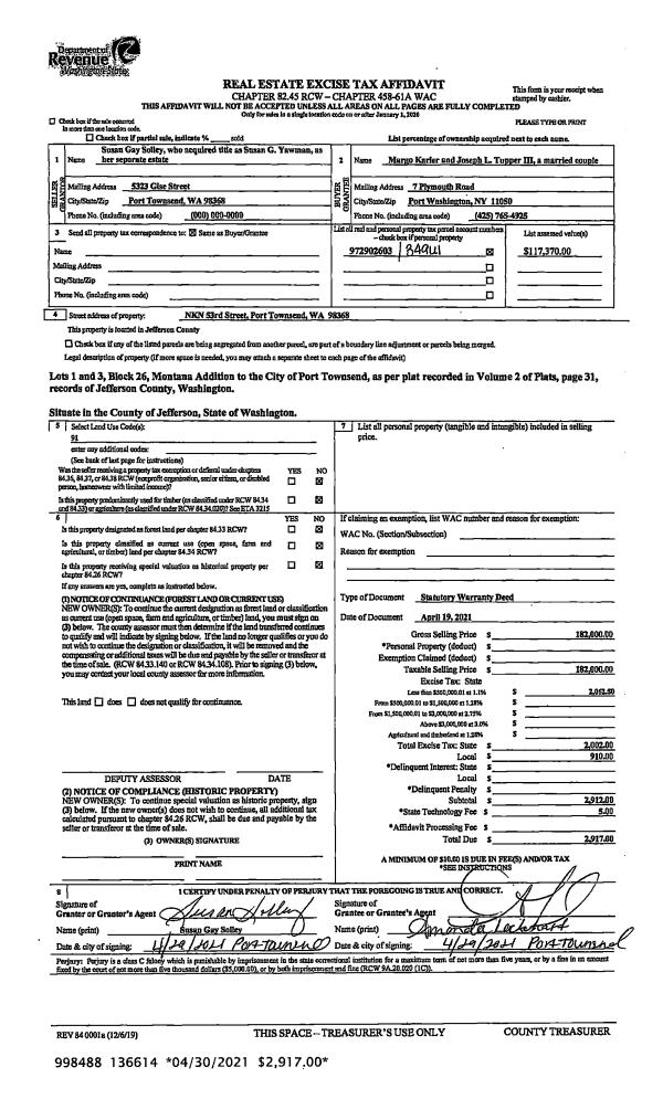
| 2 | 04/19/2021 | SWD | Statutory Warranty Deed | SUSAN G SOLLEY | MARGO KARLER & JOSEPH L TUPPER III | | | $182,000.00 | 136614 | |
Payout Agreement
| No payout information available.. |